Рейтинг@Mail.ru
Переверните экран
Новостройки Квартиры Ипотека Новостройки Москвы Новостройки Подмосковья Новостройки Новой Москвы Готовые новостройки Новостройки на карте Акции от застройщиков Коммерческие помещения Продавцы и застройщики Панорамы новостроек Видеообзор новостроек Экспертиза новостроек Экология Москвы и Подмосковья Студии 1-комнатные 2-комнатные 3-комнатные Квартиры на карте Ипотечный калькулятор Семейная ипотека Военная ипотека Банки и программы Медиа Новости недвижимости Мнение эксперта Аналитика рынка Покупателю Экспертиза новостроек Эксперты и авторы О проекте Контакты Реклама на сайте Vk Youtube Telegram Дзен Машиноместа Апартаменты #траншевая ипотека #рассрочка IT-ипотека Квартиры со скидками до 40% Видео 360° новостроек Субсидированная застройщиком Rutube Поиск дома в Москве Программа реновации в Москве Новостройки премиум-класса Новостройки бизнес-класса Рассрочка Траншевая ипотека ГАЛС Дома и коттеджи Бизнес-центры Бизнес-центры в Москве Бизнес-центры рядом с метро Строящиеся бизнес-центры Бизнес-центры класса A Бизнес-центры класса B ЛСР

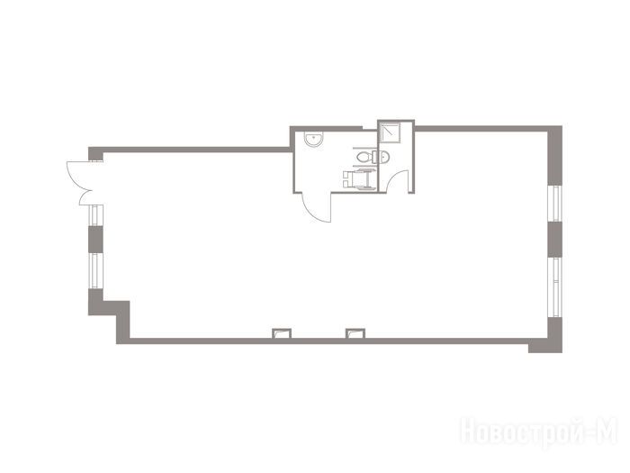
Помещение свободного назначения, 95.80 м 2

Москва, ЮАО, Москворечье-Сабурово, Каширский пр-д \ Котляковский пер.
239 500 /мес.
2 500 2
обновлено 17 декабря

Описание

Номер лота
406
Тип здания
встроенное помещение
Этаж
1
Площадь
95.80 м2
Окна
с видом во двор и на улицу
Вход в помещение
отдельный со двора
Электроснабжение
есть
Водопровод
есть
Канализация
есть
Рекомендованное назначение
Торговля

Расположение

Район
ЮАО
Район
Москворечье-Сабурово
Метро
Шоссе
Варшавское км от МКАД
Дом
Жилой квартал LIFE Варшавская
Адрес
Каширский пр-д \ Котляковский пер.

Особенности

Сдаётся помещение свободного назначения площадью 95.8 кв. м. в новостройке Жилой квартал LIFE Варшавская по адресу Москва, ЮАО, Москворечье-Сабурово, Каширский пр-д Котляковский пер.. Окна с видом во двор и на улицу. Высота потолков 0.00 м. Отдельный вход со двора. Стоимость аренды помещения — 239 500 руб. в месяц . Способы оплаты и более подробная информация по телефону.

Планировка

Посмотреть все спецпредложения

Еще помещения в Жилой квартал LIFE Варшавская

Аренда
Москва, ЮАО
Варшавская
5 мин.
0.00
Высота потолка
Паркинг
Окна
отдельный со двора
Вход
Корпус
Жилой квартал LIFE Варшавская
Аренда
Москва, ЮАО
Варшавская
5 мин.
3.95
Высота потолка
Паркинг
витринные
Окна
отдельный с улицы
Вход
Корпус
Жилой квартал LIFE Варшавская
Аренда
Дом сдан
Москва, ЮАО
Варшавская
5 мин.
5.20
Высота потолка
Паркинг
Окна
отдельный с улицы
Вход
Б8
Корпус
Жилой квартал LIFE Варшавская
Аренда
Москва, ЮАО
Варшавская
5 мин.
0.00
Высота потолка
Паркинг
Окна
отдельный с улицы
Вход
Корпус
Жилой квартал LIFE Варшавская

Скидки и спецпредложения от застройщиков

Жилой квартал LIFE Варшавская на карте

Выгодные предложения на новостройки