Рейтинг@Mail.ru
Переверните экран
Новостройки Квартиры Ипотека Новостройки Москвы Новостройки Подмосковья Новостройки Новой Москвы Готовые новостройки Новостройки на карте Акции от застройщиков Коммерческие помещения Продавцы и застройщики Панорамы новостроек Видеообзор новостроек Экспертиза новостроек Экология Москвы и Подмосковья Студии 1-комнатные 2-комнатные 3-комнатные Квартиры на карте Ипотечный калькулятор Семейная ипотека Военная ипотека Банки и программы Медиа Новости недвижимости Мнение эксперта Аналитика рынка Покупателю Экспертиза новостроек Эксперты и авторы О проекте Контакты Реклама на сайте Vk Youtube Telegram Дзен Машиноместа Апартаменты #траншевая ипотека #рассрочка IT-ипотека Квартиры со скидками до 40% Видео 360° новостроек Субсидированная застройщиком Rutube Поиск дома в Москве Программа реновации в Москве Новостройки премиум-класса Новостройки бизнес-класса Рассрочка Траншевая ипотека ГАЛС Дома и коттеджи Бизнес-центры Бизнес-центры в Москве Бизнес-центры рядом с метро Строящиеся бизнес-центры Бизнес-центры класса A Бизнес-центры класса B ЛСР

ЖК на ул. Ашхабадская

Жилой комплекс на улице Ашхабадская в подмосковном Реутове представляет собой трехсекционную новостройку на 240 квартир. Фасады монолитно-кирпичного здания оформлены по индивидуальному дизайн-проекту.

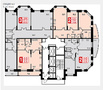
Жилой фонд новостройки состоит из одно-, двух- и трехкомнатных квартир с разнообразными планировками. В комплектацию от застройщика включены возведенные межкомнатные перегородки, деревянные двери, балконные блоки, оконные стеклопакеты и отопительное оборудование. В доме установлены лифты стандартной и повышенной грузоподъемности, есть домофоны, стойка консьержа и колясочные помещения.

Продажи квартир от застройщика в ЖК на ул. Ашхабадская завершены.

Московская область, Реутов
Нет в продаже
квартир от застройщика
Оставьте свои контакты, чтобы первым узнать о появлении в продаже квартир от собственников

Расположение

Регион Московская область
Район Реутов городской округ
Локация Реутов
Метро
Станция МЦД
Шоссе Носовихинское 1 км от МКАД
Адрес
ул. Новая, д. 18
на карте

Характеристики ЖК на ул. Ашхабадская (корпус 18)

Застройщик
Центрстрой Континент
Срок сдачи
сдан корпус 18
Высота потолка
2.80
Класс новостройки
стандарт
Стадия строительства
выдача ключей + заселение

Правовые документы

Подробная информация

Жилой комплекс на улице Ашхабадская в подмосковном Реутове представляет собой трехсекционную новостройку на 240 квартир. Фасады монолитно-кирпичного здания оформлены по индивидуальному дизайн-проекту.

Жилой фонд новостройки состоит из одно-, двух- и трехкомнатных квартир с разнообразными планировками. В комплектацию от застройщика включены возведенные межкомнатные перегородки, деревянные двери, балконные блоки, оконные стеклопакеты и отопительное оборудование. В доме установлены лифты стандартной и повышенной грузоподъемности, есть домофоны, стойка консьержа и колясочные помещения.

Продажи квартир от застройщика в ЖК на ул. Ашхабадская завершены.

сдан
Рассказать друзьям о ЖК на ул. Ашхабадская
Копировать ссылку

Скидки и акции на новостройки Подмосковья

Посмотреть все спецпредложения

ЖК на ул. Ашхабадская на карте

Инфраструктура

Во дворе дома обустроены наземные автостоянки, проложены тротуары для пешеходов, установлены лавочки, игровая площадка и уличный гимнастический комплекс. На первом этаже здания расположены коммерческие помещения под предприятия бытового обслуживания и магазины.

Отзывы о ЖК на ул. Ашхабадская

Самый полезный отзыв
З
Зарина
12 августа 2016
У нас однушка с совмещенным санузлом. Позже уже узнали, что дом запроектирован с раздельными ванной и туалетом во всех квартирах, кроме однушек как раз таки. Если бы знали, лучше добавили бы. Неудобно это, особенно по утрам, когда надо собираться на работу, а приходится делить санузел с мужем.
Ответить
Полезный отзыв?
Самый новый отзыв
М
Марина
29 ноября 2016
Дааа... не подумали о хозяевах однушек, наверное рассчитывали, что покупать будут одинокие люди. Ан нет, сейчас лишь бы наскребсти на однушку эту, а жить там семьями будут.. Вот и неудобно с совмещенным санузлом, упущение застройщика.
Ответить
Полезный отзыв?
Добавьте отзыв, заполнив личные данные, или сначала войдите на сайт, тогда информация будет автоматически взята из личного профиля.
Оценка*

Вопросы и ответы о ЖК на ул. Ашхабадская

Будьте первым, кто задаст вопрос
Задать вопрос
Напишие свой вопрос ниже — заполнив личные данные или войдите на сайт, тогда информация будет автоматически взята из личного профиля.