Рейтинг@Mail.ru
Переверните экран
Новостройки Квартиры Ипотека Новостройки Москвы Новостройки Подмосковья Новостройки Новой Москвы Готовые новостройки Новостройки на карте Акции от застройщиков Коммерческие помещения Продавцы и застройщики Панорамы новостроек Видеообзор новостроек Экспертиза новостроек Экология Москвы и Подмосковья Студии 1-комнатные 2-комнатные 3-комнатные Квартиры на карте Ипотечный калькулятор Семейная ипотека Военная ипотека Банки и программы Медиа Новости недвижимости Мнение эксперта Аналитика рынка Покупателю Экспертиза новостроек Эксперты и авторы О проекте Контакты Реклама на сайте Vk Youtube Telegram Дзен Машиноместа Апартаменты #траншевая ипотека #рассрочка ИТ-ипотека Квартиры со скидками до 40% Видео 360° новостроек Субсидированная застройщиком Rutube Поиск дома в Москве Программа реновации в Москве Новостройки премиум-класса Новостройки бизнес-класса Рассрочка Траншевая ипотека Дома и коттеджи Коттеджные поселки в Новой Москве Готовые коттеджные поселки Строящиеся коттеджные поселки Коттеджные поселки в лесу Коттеджные поселки у водоема Коттеджные поселки в ипотеку Бизнес-центры Коттеджи Ипотека со ставкой 0,1%
3-комн. помещение, 62.06 м2, 4 этаж
Срок сдачи 3 квартал 2027 года
13 886 959 
14 616 115
223 767 2
обновлено 4 мая

Описание 3-комн. помещения

Новостройка
Срок ГК
3 квартал 2027 года
Стадия строительства
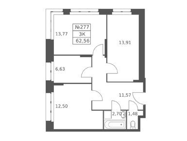
Общая площадь
62.06 м2
Площадь
34.31 м2
Площадь кухни
11.99 м2
Этаж
4 / 21
Отделка
чистовая

Расположение 3-комн. помещения

Станция МЦД
Дом
1
Адрес
ул. Волковская, вл. 67, секция 1

Особенности

Продается трехкомнатное помещение в новостройке «Волковская 67» по адресу Московская область, Люберцы городской округ, Люберцы, ул. Волковская, вл. 67. Общая площадь помещения - 62.06 кв. м. Тип проекта, по которому построен дом — Монолитно-кирпичный, компания-застройщик — КАРАНДАШ девелопмент, ООО СЗ Гранд. Стоимость помещения — 13 886 959 руб. Способы оплаты можно уточнить у продавца. Срок сдачи — 3 квартал 2027. Более подробная информация по телефону.
Инфоцентр новостроек
Инфоцентр новостроек
Время работы 9:00 — 21:00
Выбирайте помещения в «Волковская 67» по ценам от застройщика
помещение-студия 17,92 м2 4 381 588
Этаж 21/21
МО, «Волковская 67»
Люберцы-1
10 мин.
Строится
помещение-студия 18,08 м2 5 395 604
Этаж 15/21
МО, «Волковская 67»
Люберцы-1
10 мин.
Строится
помещение-студия 18,10 м2 5 137 578
Этаж 12/21
МО, «Волковская 67»
Люберцы-1
10 мин.
Строится
помещение-студия 18,26 м2 4 793 272
Этаж 10/21
МО, «Волковская 67»
Люберцы-1
10 мин.
Строится
Посмотреть 151 помещение в «Волковская 67»
1-комн. помещение 29,62 м2 7 348 333
Этаж 18/21
МО, «Волковская 67»
Люберцы-1
10 мин.
Строится
1-комн. помещение 29,75 м2 7 241 081
Этаж 13/21
МО, «Волковская 67»
Люберцы-1
10 мин.
Строится
1-комн. помещение 30,21 м2 7 198 655
Этаж 2/21
МО, «Волковская 67»
Люберцы-1
10 мин.
Строится
1-комн. помещение 30,67 м2 6 160 773
Этаж 15/21
МО, «Волковская 67»
Люберцы-1
10 мин.
Строится
Посмотреть 97 помещений в «Волковская 67»
2-комн. помещение 39,45 м2 9 965 531
Этаж 21/21
МО, «Волковская 67»
Люберцы-1
10 мин.
Строится
2-комн. помещение 39,51 м2 9 465 852
Этаж 17/21
МО, «Волковская 67»
Люберцы-1
10 мин.
Строится
2-комн. помещение 39,62 м2 9 294 341
Этаж 15/21
МО, «Волковская 67»
Люберцы-1
10 мин.
Строится
2-комн. помещение 39,68 м2 9 462 181
Этаж 15/21
МО, «Волковская 67»
Люберцы-1
10 мин.
Строится
Посмотреть 18 помещений в «Волковская 67»
3-комн. помещение 61,82 м2 13 615 996
Этаж 15/21
МО, «Волковская 67»
Люберцы-1
10 мин.
Строится
3-комн. помещение 61,84 м2 13 837 847
Этаж 5/21
МО, «Волковская 67»
Люберцы-1
10 мин.
Строится
3-комн. помещение 61,97 м2 13 866 870
Этаж 11/21
МО, «Волковская 67»
Люберцы-1
10 мин.
Строится
3-комн. помещение 62,56 м2 13 944 815
Этаж 2/21
МО, «Волковская 67»
Люберцы-1
10 мин.
Строится
Посмотреть 14 помещений в «Волковская 67»

Скидки и спецпредложения от застройщиков

«Волковская 67» на карте

Выгодные предложения на новостройки

Отзывы о «Волковская 67»

Самый полезный отзыв
О
10 октября 2024
Оценка:
Однозначно рекомендую к покупке!
Ответить
Самый новый отзыв
ПД
24 октября 2025
Оценка:
Вариант на перспективу - так как до сдачи очень далеко, а кому не горит, то самое то - одни плюсы
Ответить

Оставить отзыв

Добавьте отзыв, заполнив личные данные, или сначала войдите на сайт, тогда информация будет автоматически взята из личного профиля.
Оценка*