Рейтинг@Mail.ru
Переверните экран
Новостройки Квартиры Ипотека Новостройки Москвы Новостройки Подмосковья Новостройки Новой Москвы Готовые новостройки Новостройки на карте Акции от застройщиков Коммерческие помещения Продавцы и застройщики Панорамы новостроек Видеообзор новостроек Экспертиза новостроек Экология Москвы и Подмосковья Студии 1-комнатные 2-комнатные 3-комнатные Квартиры на карте Ипотечный калькулятор Семейная ипотека Военная ипотека Банки и программы Медиа Новости недвижимости Мнение эксперта Аналитика рынка Покупателю Экспертиза новостроек Эксперты и авторы О проекте Контакты Реклама на сайте Vk Youtube Telegram Дзен Машиноместа Апартаменты #траншевая ипотека #рассрочка ИТ-ипотека Квартиры со скидками до 40% Видео 360° новостроек Субсидированная застройщиком Rutube Поиск дома в Москве Программа реновации в Москве Новостройки премиум-класса Новостройки бизнес-класса Рассрочка Траншевая ипотека Дома и коттеджи Коттеджные поселки в Новой Москве Готовые коттеджные поселки Строящиеся коттеджные поселки Коттеджные поселки в лесу Коттеджные поселки у водоема Коттеджные поселки в ипотеку Бизнес-центры Коттеджи Ипотека со ставкой 0,1%
Данная квартира является лидером продаж среди трехкомнатных квартир в ЖК «Симоновский вал» по данным Росреестра
3-комн. квартира, 79.20 м2, 22 этаж
Срок сдачи 2 квартал 2030 года
43 024 608 
47 805 120
543 240 2
обновлено 4 мая

Описание 3-комн. квартиры

Застройщик
Срок ГК
2 квартал 2030 года
Стадия строительства
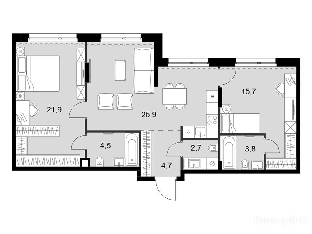
Общая площадь
79.20 м2
Жилая площадь
37.60 м2
Площадь кухни
25.90 м2
Этаж
22 / 27
Отделка
нет
Грузовой лифт
есть

Расположение 3-комн. квартиры

Локация
Станция МЦК
Ж/Д-станция
Дом
Корпус 3
Адрес
Новоостаповская улица, 6А, секция 3

Особенности

Продается трехкомнатная квартира в новостройке ЖК «Симоновский вал» по адресу Москва, ЮВАО, Южнопортовый, Новоостаповская улица, 6А. Общая площадь квартиры - 79.2 кв. м. Тип проекта, по которому построен дом — Монолитно-кирпичный, компания-застройщик — ГК ФСК, АО «СЗ ДОМ». Стоимость квартиры — 43 024 608 руб. Способы оплаты можно уточнить у продавца. Срок сдачи — 2 квартал 2030. Более подробная информация по телефону.
Инфоцентр новостроек
Инфоцентр новостроек
Время работы 9:00 — 21:00
Выбирайте квартиры и помещения в ЖК «Симоновский вал» по ценам от застройщика
Этаж 4/27
Москва, ЖК «Симоновский вал»
Дубровка
7 мин.
Строится
1-комн. квартира 40,40 м2 25 820 973
Этаж 15/27
Москва, ЖК «Симоновский вал»
Дубровка
7 мин.
Строится
1-комн. квартира 41,40 м2 25 634 880
Этаж 20/27
Москва, ЖК «Симоновский вал»
Дубровка
7 мин.
Строится
2-комн. квартира 49,80 м2 25 988 628
Этаж 2/27
Москва, ЖК «Симоновский вал»
Дубровка
7 мин.
Строится
2-комн. квартира 51,40 м2 28 768 066
Этаж 19/27
Москва, ЖК «Симоновский вал»
Дубровка
7 мин.
Строится
Этаж 25/27
Москва, ЖК «Симоновский вал»
Дубровка
7 мин.
Строится
2-комн. квартира 57,00 м2 28 055 400
Этаж 2/27
Москва, ЖК «Симоновский вал»
Дубровка
7 мин.
Строится
Посмотреть 9 квартир в ЖК «Симоновский вал»
3-комн. квартира 54,80 м2 28 285 020
Этаж 2/27
Москва, ЖК «Симоновский вал»
Дубровка
7 мин.
Строится
Этаж 11/27
Москва, ЖК «Симоновский вал»
Дубровка
7 мин.
Строится
Этаж 23/27
Москва, ЖК «Симоновский вал»
Дубровка
7 мин.
Строится
3-комн. квартира 59,50 м2 32 384 184
Этаж 20/27
Москва, ЖК «Симоновский вал»
Дубровка
7 мин.
Строится
Посмотреть 24 квартиры в ЖК «Симоновский вал»
4-комн. квартира 76,50 м2 42 165 041
Этаж 9/27
Москва, ЖК «Симоновский вал»
Дубровка
7 мин.
Строится
4-комн. квартира 112,70 м2 69 550 100
Этаж 24/27
Москва, ЖК «Симоновский вал»
Дубровка
7 мин.
Строится

Скидки и спецпредложения от застройщиков

ЖК «Симоновский вал» на карте

Выгодные предложения на новостройки

Отзывы о ЖК «Симоновский вал»

Самый полезный отзыв
О
13 января
Оценка:
Смотрю проекты с хорошей транспортной доступностью. Здесь привлекает, что до ТТК и Садового кольца недалеко. Это развязывает руки в вопросе передвижений по городу. Плюс рядом планируют строить Москва Сити-2 на месте промзоны.
Ответить
Самый новый отзыв
А
23 апреля
Оценка:
Зашёл в офис, чтобы просто взять буклет. Но менеджер так увлёк рассказом про расположение и виды, что задержался на час. Рассказал, какие этажи считаются самыми видовыми, где лучше видно реку, а где - Кремль. Я не планировал покупать, но после разговора всерьёз задумался.
Ответить

Оставить отзыв

Добавьте отзыв, заполнив личные данные, или сначала войдите на сайт, тогда информация будет автоматически взята из личного профиля.
Оценка*