Рейтинг@Mail.ru
Переверните экран
Новостройки Квартиры Ипотека Новостройки Москвы Новостройки Подмосковья Новостройки Новой Москвы Готовые новостройки Новостройки на карте Акции от застройщиков Коммерческие помещения Продавцы и застройщики Панорамы новостроек Видеообзор новостроек Экспертиза новостроек Экология Москвы и Подмосковья Студии 1-комнатные 2-комнатные 3-комнатные Квартиры на карте Ипотечный калькулятор Семейная ипотека Военная ипотека Банки и программы Медиа Новости недвижимости Мнение эксперта Аналитика рынка Покупателю Экспертиза новостроек Эксперты и авторы О проекте Контакты Реклама на сайте Vk Youtube Telegram Дзен Машиноместа Апартаменты #траншевая ипотека #рассрочка ИТ-ипотека Квартиры со скидками до 40% Видео 360° новостроек Субсидированная застройщиком Rutube Поиск дома в Москве Программа реновации в Москве Новостройки премиум-класса Новостройки бизнес-класса Рассрочка Траншевая ипотека Дома и коттеджи Коттеджные поселки в Новой Москве Готовые коттеджные поселки Строящиеся коттеджные поселки Коттеджные поселки в лесу Коттеджные поселки у водоема Коттеджные поселки в ипотеку Бизнес-центры Коттеджи Ипотека со ставкой 0,1%
3-комн. квартира, 99.50 м2, 14 этаж
Сдан
60 268 742 
75 335 928
605 716 2
обновлено 14 мая

Описание 3-комн. квартиры

Новостройка
Застройщик
Срок ГК
Дом сдан
Стадия строительства
выдача ключей + заселение
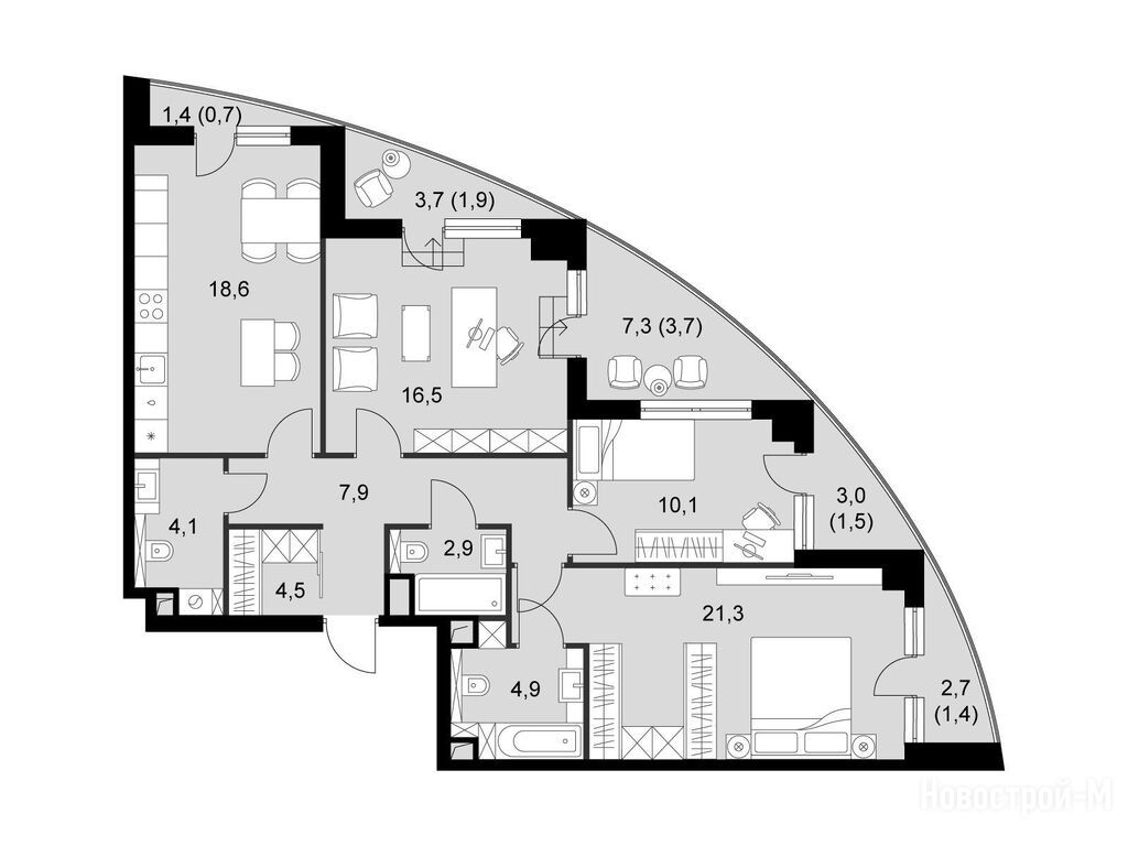
Общая площадь
99.50 м2
Жилая площадь
47.90 м2
Площадь кухни
18.60 м2
Этаж
14 / 44
Отделка
предчистовая

Расположение 3-комн. квартиры

Локация
Станция МЦК
Дом
2.2
Адрес
район Хорошёво-Мнёвники, жилой комплекс Сидней Сити, корп.2.2, секция 4

Способы покупки

Особенности

Продается трехкомнатная квартира в новостройке ЖК «Сидней Сити» по адресу Москва, СЗАО, Хорошево-Мневники, район Хорошёво-Мнёвники, жилой комплекс Сидней Сити, корп.2.2. Общая площадь квартиры - 99.5 кв. м. Тип проекта, по которому построен дом — Монолитно-кирпичный, компания-застройщик — ГК ФСК. Стоимость квартиры — 60 268 742 руб. Способы оплаты можно уточнить у продавца. Более подробная информация по телефону.
Инфоцентр новостроек
Инфоцентр новостроек
+7 (499) 705-91-41
Время работы 9:00 — 21:00
студия 30,80 м2 23 689 912
Этаж 26/43
Москва, ЖК «Сидней Сити»
Звенигородская (2026)
2 мин.
Строится
студия 40,90 м2 28 972 415
Этаж 9/26
Москва, ЖК «Сидней Сити»
Звенигородская (2026)
2 мин.
Строится
Этаж 19/43
Москва, ЖК «Сидней Сити»
Звенигородская (2026)
2 мин.
Сдан
1-комн. квартира 35,40 м2 30 108 054
Этаж 3/43
Москва, ЖК «Сидней Сити»
Звенигородская (2026)
2 мин.
Строится
1-комн. квартира 36,90 м2 31 139 910
Этаж 41/43
Москва, ЖК «Сидней Сити»
Звенигородская (2026)
2 мин.
Строится
1-комн. квартира 37,00 м2 28 837 800
Этаж 31/43
Москва, ЖК «Сидней Сити»
Звенигородская (2026)
2 мин.
Строится
Посмотреть 19 квартир в ЖК «Сидней Сити»
2-комн. квартира 43,80 м2 27 912 645
Этаж 2/43
Москва, ЖК «Сидней Сити»
Звенигородская (2026)
2 мин.
Строится
2-комн. квартира 45,00 м2 32 835 375
Этаж 32/43
Москва, ЖК «Сидней Сити»
Звенигородская (2026)
2 мин.
Строится
2-комн. квартира 45,10 м2 29 874 330
Этаж 10/43
Москва, ЖК «Сидней Сити»
Звенигородская (2026)
2 мин.
Строится
2-комн. квартира 45,30 м2 30 023 708
Этаж 20/43
Москва, ЖК «Сидней Сити»
Звенигородская (2026)
2 мин.
Строится
Посмотреть 55 квартир в ЖК «Сидней Сити»
3-комн. квартира 65,50 м2 49 511 778
Этаж 8/43
Москва, ЖК «Сидней Сити»
Звенигородская (2026)
2 мин.
Строится
3-комн. квартира 65,70 м2 50 073 255
Этаж 39/43
Москва, ЖК «Сидней Сити»
Звенигородская (2026)
2 мин.
Строится
3-комн. квартира 66,00 м2 36 918 156
Этаж 2/43
Москва, ЖК «Сидней Сити»
Звенигородская (2026)
2 мин.
Строится
3-комн. квартира 73,70 м2 42 333 870
Этаж 9/43
Москва, ЖК «Сидней Сити»
Звенигородская (2026)
2 мин.
Строится
Посмотреть 44 квартиры в ЖК «Сидней Сити»
4-комн. квартира 90,50 м2 64 779 900
Этаж 33/43
Москва, ЖК «Сидней Сити»
Звенигородская (2026)
2 мин.
Строится
4-комн. квартира 90,80 м2 57 469 862
Этаж 11/43
Москва, ЖК «Сидней Сити»
Звенигородская (2026)
2 мин.
Строится
4-комн. квартира 92,60 м2 58 624 504
Этаж 7/43
Москва, ЖК «Сидней Сити»
Звенигородская (2026)
2 мин.
Строится
4-комн. квартира 93,60 м2 58 608 950
Этаж 3/43
Москва, ЖК «Сидней Сити»
Звенигородская (2026)
2 мин.
Строится
Посмотреть 33 квартиры в ЖК «Сидней Сити»
5-комн. квартира 113,70 м2 75 222 101
Этаж 41/43
Москва, ЖК «Сидней Сити»
Звенигородская (2026)
2 мин.
Строится
5-комн. квартира 125,90 м2 89 052 595
Этаж 42/43
Москва, ЖК «Сидней Сити»
Звенигородская (2026)
2 мин.
Сдан
5-комн. квартира 137,90 м2 83 183 762
Этаж 29/43
Москва, ЖК «Сидней Сити»
Звенигородская (2026)
2 мин.
Строится
5-комн. квартира 140,50 м2 91 026 859
Этаж 31/43
Москва, ЖК «Сидней Сити»
Звенигородская (2026)
2 мин.
Строится
Посмотреть 15 квартир в ЖК «Сидней Сити»

Скидки и спецпредложения от застройщиков

ЖК «Сидней Сити» на карте

Выгодные предложения на новостройки

Отзывы о ЖК «Сидней Сити»

Самый полезный отзыв
Л
01 августа 2019
Оценка:
Достоинства
Социальная инфраструктура
Двор, окружение
Расположение
Ого, какой проект затеяли! Расположение оооочень выгодное, этот район так близко к центру, но осваивать его начали только сейчас — странно. По рендерам комплекс выглядит очень современно и прагматично.
Показать все комментарии
Ответить
Самый новый отзыв
И
08 мая
Оценка:
Как человек, который часто уезжает в командировки, я оценил систему Умная квартира. Перед отъездом нажимаю сценарий «мы уехали» — и свет выключен, вода перекрыта, розетки обесточены, но холодильник продолжает работать. А ещё через приложение можно заранее включить чайник или запустить стирку, пока едешь домой. Знаю, что у ФСК в проектах предусмотрены базовые решения «умного дома» с возможностью расширения под себя, и это действительно полезная вещь в повседневной жизни. Вот именно так технологии должны работать и упрощать быт.
Ответить

Оставить отзыв

Добавьте отзыв, заполнив личные данные, или сначала войдите на сайт, тогда информация будет автоматически взята из личного профиля.
Оценка*