Рейтинг@Mail.ru
Переверните экран
Новостройки Квартиры Ипотека Новостройки Москвы Новостройки Подмосковья Новостройки Новой Москвы Готовые новостройки Новостройки на карте Акции от застройщиков Коммерческие помещения Продавцы и застройщики Панорамы новостроек Видеообзор новостроек Экспертиза новостроек Экология Москвы и Подмосковья Студии 1-комнатные 2-комнатные 3-комнатные Квартиры на карте Ипотечный калькулятор Семейная ипотека Военная ипотека Банки и программы Медиа Новости недвижимости Мнение эксперта Аналитика рынка Покупателю Экспертиза новостроек Эксперты и авторы О проекте Контакты Реклама на сайте Vk Youtube Telegram Дзен Машиноместа Апартаменты #траншевая ипотека #рассрочка IT-ипотека Квартиры со скидками до 35% Видео 360° новостроек Субсидированная застройщиком Rutube Поиск дома в Москве Программа реновации в Москве Новостройки премиум-класса Новостройки бизнес-класса Рассрочка Траншевая ипотека Дома и коттеджи Бизнес-центры Бизнес-центры в Москве Бизнес-центры рядом с метро Строящиеся бизнес-центры Бизнес-центры класса A Бизнес-центры класса B
3-комн. квартира, 88.20 м2, 18 этаж
Сдан
29 017 800 
329 000 2
обновлено 5 февраля

Описание 3-комн. квартиры

Новостройка
Срок ГК
Дом сдан
Стадия строительства
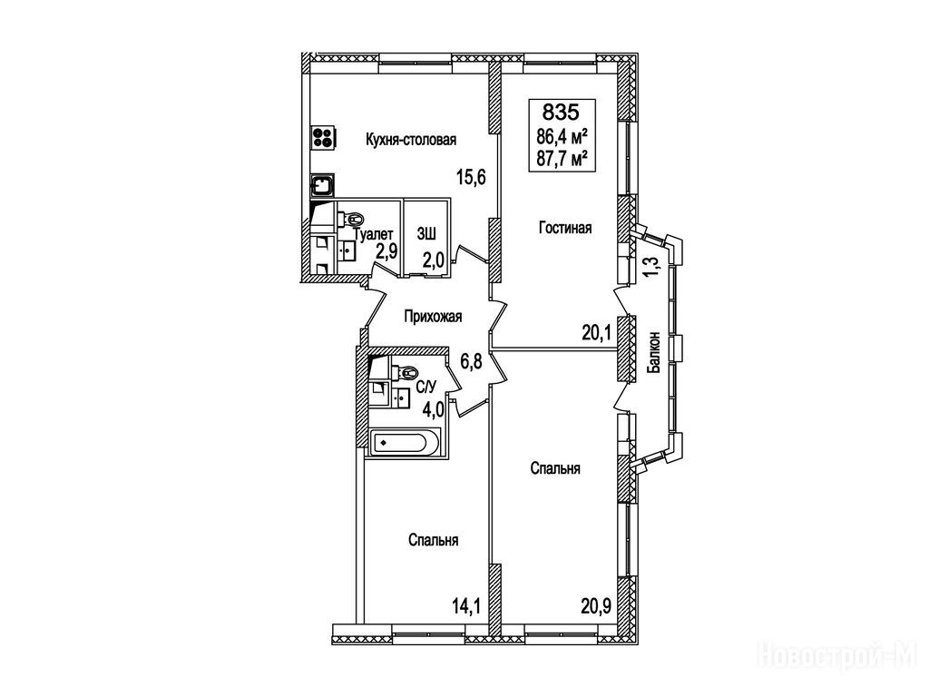
Общая площадь
88.20 м2
Жилая площадь
55.10 м2
Площадь кухни
15.60 м2
Этаж
18 / 22
Отделка
нет

Расположение 3-комн. квартиры

Локация
Станция МЦД
Дом
15
Адрес
бульвар Андрея Тарковского, д. 10, секция 10

Способы покупки

Особенности

Продается трехкомнатная квартира в новостройке ЖК «Рассказово» по адресу Москва, ТиНАО, Новомосковский АО, Внуковское С/П, Рассказовка деревня, бульвар Андрея Тарковского, д. 10. Общая площадь квартиры - 88.2 кв. м. Тип проекта, по которому построен дом — Монолитно-кирпичный, компания-застройщик — Sezar Group (Сезар Групп). Стоимость квартиры — 29 017 800 руб. Способы оплаты можно уточнить у продавца. Более подробная информация по телефону.
Инфоцентр новостроек
Инфоцентр новостроек
+7 (499) 705-91-41
Время работы 9:00 — 21:00
Посмотреть все спецпредложения
Этаж 8/22
НМ, ЖК «Рассказово»
Рассказовка
10 мин.
Сдан
Этаж 20/22
НМ, ЖК «Рассказово»
Рассказовка
10 мин.
Сдан
Этаж 8/22
НМ, ЖК «Рассказово»
Рассказовка
10 мин.
Сдан
Этаж 20/22
НМ, ЖК «Рассказово»
Рассказовка
10 мин.
Сдан
Посмотреть 9 квартир в ЖК «Рассказово»
2-комн. квартира 49,50 м2 19 057 500
Этаж 17/22
НМ, ЖК «Рассказово»
Рассказовка
10 мин.
Сдан
2-комн. квартира 52,50 м2 19 425 000
Этаж 19/22
НМ, ЖК «Рассказово»
Рассказовка
10 мин.
Сдан
2-комн. квартира 53,20 м2 20 482 000
Этаж 22/22
НМ, ЖК «Рассказово»
Рассказовка
10 мин.
Сдан
2-комн. квартира 53,30 м2 19 987 500
Этаж 21/22
НМ, ЖК «Рассказово»
Рассказовка
10 мин.
Сдан
Посмотреть 141 квартира в ЖК «Рассказово»
Этаж 15/22
НМ, ЖК «Рассказово»
Рассказовка
10 мин.
Сдан
Этаж 21/22
НМ, ЖК «Рассказово»
Рассказовка
10 мин.
Сдан
Этаж 18/22
НМ, ЖК «Рассказово»
Рассказовка
10 мин.
Сдан
Этаж 12/22
НМ, ЖК «Рассказово»
Рассказовка
10 мин.
Сдан
Посмотреть 159 квартир в ЖК «Рассказово»

Скидки и спецпредложения от застройщиков

ЖК «Рассказово» на карте

Выгодные предложения на новостройки

Самый полезный отзыв
К
20 ноября 2017
Оценка:
Транспортная доступность
Экология
Планировки
Готовность
Способы покупки
Скорость строительства
Внешний вид фасада
Заселились в комплекс, все устраивает! Воздух чистый, метро рядом, планировки удобные. Жаль только, что застройщик скидок не делает.
Показать все комментарии
Ответить
Полезный отзыв?
Самый новый отзыв
ДЯ
30 января
Оценка:
прописка тут московская, и стандарты тоже. И допом ко всему идет еще безопасный двор и симпатичные подъезды с вменяемыми консьержами.
Ответить
Полезный отзыв?
Добавьте отзыв, заполнив личные данные, или сначала войдите на сайт, тогда информация будет автоматически взята из личного профиля.
Оценка*