Рейтинг@Mail.ru
Переверните экран
Новостройки Квартиры Ипотека Новостройки Москвы Новостройки Подмосковья Новостройки Новой Москвы Готовые новостройки Новостройки на карте Акции от застройщиков Коммерческие помещения Продавцы и застройщики Панорамы новостроек Видеообзор новостроек Экспертиза новостроек Экология Москвы и Подмосковья Студии 1-комнатные 2-комнатные 3-комнатные Квартиры на карте Ипотечный калькулятор Семейная ипотека Военная ипотека Банки и программы Медиа Новости недвижимости Мнение эксперта Аналитика рынка Покупателю Экспертиза новостроек Эксперты и авторы О проекте Контакты Реклама на сайте Vk Youtube Telegram Дзен Машиноместа Апартаменты #траншевая ипотека #рассрочка IT-ипотека Квартиры со скидками до 35% Видео 360° новостроек Субсидированная застройщиком Rutube Поиск дома в Москве Программа реновации в Москве Новостройки премиум-класса Новостройки бизнес-класса Рассрочка Траншевая ипотека Дома и коттеджи Бизнес-центры Бизнес-центры в Москве Бизнес-центры рядом с метро Строящиеся бизнес-центры Бизнес-центры класса A Бизнес-центры класса B
Данная квартира является лидером продаж среди трехкомнатных квартир в ЖК «Преображенская площадь» по данным Росреестра
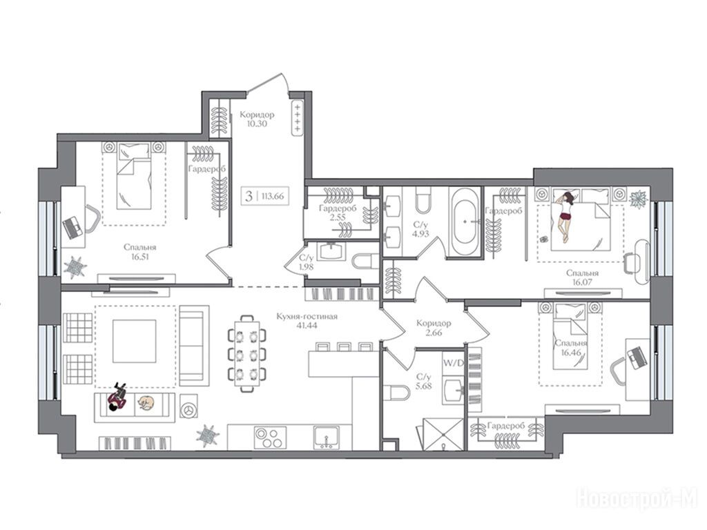
3-комн. квартира, 113.66 м2, 2 этаж
Срок сдачи 2 квартал 2027 года
52 676 458 
463 456 2
обновлено 5 февраля

Описание 3-комн. квартиры

Застройщик
Срок ГК
2 квартал 2027 года
Стадия строительства
монтаж нижних этажей
Общая площадь
113.66 м2
Жилая площадь
49.04 м2
Площадь кухни
41.44 м2
Этаж
2 / 16

Расположение 3-комн. квартиры

Локация
Станция МЦД
Дом
5 (2 очередь)
Адрес
ул. 1-я Бухвостова, вл.12/11, секция 5.2

Способы покупки

Особенности

Продается трехкомнатная квартира в новостройке ЖК «Преображенская площадь» по адресу Москва, ВАО, Преображенское, ул. 1-я Бухвостова, вл.12/11. Общая площадь квартиры - 113.66 кв. м. Тип проекта, по которому построен дом — Монолитно-кирпичный, компания-застройщик — Regions Development. Стоимость квартиры — 52 676 458 руб. Способы оплаты можно уточнить у продавца. Срок сдачи — 2 квартал 2027. Более подробная информация по телефону.
Инфоцентр новостроек
Инфоцентр новостроек
+7 (499) 705-91-41
Время работы 9:00 — 21:00

Похожие квартиры в ЖК «Преображенская площадь»

9 этаж
из 16 2 квартал 2027
Москва, ВАО
Преображенская площадь
3 мин.
5 (2 очередь)
Корпус
нет данных
Отделка
3.15 м
Потолки
ЖК «Преображенская площадь»
49 151 058 57 824 774
Промсвязьбанк, Газпромбанк, СберБанк, Совкомбанк, ДОМ.РФ, Московский Кредитный Банк, Абсолют Банк, МТС Банк, Альфа-Банк
5.90%
Ставка
20.01%
Первый взнос
от 291 533 /мес.
Все варианты
10 этаж
из 16 2 квартал 2027
Москва, ВАО
Преображенская площадь
3 мин.
5 (2 очередь)
Корпус
нет данных
Отделка
3.15 м
Потолки
ЖК «Преображенская площадь»
49 589 906 58 341 065
Промсвязьбанк, Газпромбанк, СберБанк, Совкомбанк, ДОМ.РФ, Московский Кредитный Банк, Абсолют Банк, МТС Банк, Альфа-Банк
5.90%
Ставка
20.01%
Первый взнос
от 294 136 /мес.
Все варианты
3 этаж
из 16 2 квартал 2027
Москва, ВАО
Преображенская площадь
3 мин.
5 (2 очередь)
Корпус
нет данных
Отделка
3.15 м
Потолки
ЖК «Преображенская площадь»
53 699 302
Промсвязьбанк, Газпромбанк, СберБанк, Совкомбанк, ДОМ.РФ, Московский Кредитный Банк, Абсолют Банк, МТС Банк, Альфа-Банк
5.90%
Ставка
20.01%
Первый взнос
от 318 510 /мес.
Все варианты
4 этаж
из 16 2 квартал 2027
Москва, ВАО
Преображенская площадь
3 мин.
5 (2 очередь)
Корпус
нет данных
Отделка
3.15 м
Потолки
ЖК «Преображенская площадь»
55 233 568
Промсвязьбанк, Газпромбанк, СберБанк, Совкомбанк, ДОМ.РФ, Московский Кредитный Банк, Абсолют Банк, МТС Банк, Альфа-Банк
5.90%
Ставка
20.01%
Первый взнос
от 327 610 /мес.
Все варианты
Посмотреть все спецпредложения
1-комн. квартира 37,80 м2 21 410 071
Этаж 13/16
Москва, ЖК «Преображенская площадь»
Преображенская площадь
3 мин.
Строится
1-комн. квартира 38,20 м2 27 273 880
Этаж 17/17
Москва, ЖК «Преображенская площадь»
Преображенская площадь
3 мин.
Сдан
Этаж 11/16
Москва, ЖК «Преображенская площадь»
Преображенская площадь
3 мин.
Строится
Этаж 2/16
Москва, ЖК «Преображенская площадь»
Преображенская площадь
3 мин.
Строится
Посмотреть 110 квартир в ЖК «Преображенская площадь»
2-комн. квартира 64,10 м2 44 419 887
Этаж 17/17
Москва, ЖК «Преображенская площадь»
Преображенская площадь
3 мин.
Сдан
2-комн. квартира 65,90 м2 33 477 158
Этаж 4/16
Москва, ЖК «Преображенская площадь»
Преображенская площадь
3 мин.
Строится
2-комн. квартира 66,40 м2 42 305 858
Этаж 5/12
Москва, ЖК «Преображенская площадь»
Преображенская площадь
3 мин.
Сдан
Этаж 9/16
Москва, ЖК «Преображенская площадь»
Преображенская площадь
3 мин.
Строится
Посмотреть 129 квартир в ЖК «Преображенская площадь»
3-комн. квартира 78,20 м2 45 093 132
Этаж 13/17
Москва, ЖК «Преображенская площадь»
Преображенская площадь
3 мин.
Сдан
3-комн. квартира 79,00 м2 40 771 938
Этаж 2/17
Москва, ЖК «Преображенская площадь»
Преображенская площадь
3 мин.
Сдан
3-комн. квартира 88,10 м2 56 512 412
Этаж 17/17
Москва, ЖК «Преображенская площадь»
Преображенская площадь
3 мин.
Сдан
3-комн. квартира 89,90 м2 45 041 545
Этаж 2/17
Москва, ЖК «Преображенская площадь»
Преображенская площадь
3 мин.
Сдан
Посмотреть 83 квартиры в ЖК «Преображенская площадь»
4-комн. квартира 115,10 м2 78 810 657
Этаж 17/17
Москва, ЖК «Преображенская площадь»
Преображенская площадь
3 мин.
Сдан

Скидки и спецпредложения от застройщиков

ЖК «Преображенская площадь» на карте

Выгодные предложения на новостройки

Отзывы о ЖК «Преображенская площадь»

Самый полезный отзыв
Е
11 июня 2020
Оценка:
Транспортная доступность
Скорость строительства
Добрый день!Можно узнать ,когда начнутся продажи комплекса?
Ответить
Полезный отзыв?
Самый новый отзыв
ПФ
19 мая 2025
Оценка:
Планировки
Способы покупки
Двор, окружение
Расположение
Рядом несколько парков, во дворе будет сквер с тренажерами и развлечениями для детей. Метро недалеко. Современная архитектура - тоже хорошо. Планировки продуманные, можно разместиться даже в небольших вполне комфортно
Ответить
Полезный отзыв?
Добавьте отзыв, заполнив личные данные, или сначала войдите на сайт, тогда информация будет автоматически взята из личного профиля.
Оценка*