Рейтинг@Mail.ru
Переверните экран
Новостройки Квартиры Ипотека Новостройки Москвы Новостройки Подмосковья Новостройки Новой Москвы Готовые новостройки Новостройки на карте Акции от застройщиков Коммерческие помещения Продавцы и застройщики Панорамы новостроек Видеообзор новостроек Экспертиза новостроек Экология Москвы и Подмосковья Студии 1-комнатные 2-комнатные 3-комнатные Квартиры на карте Ипотечный калькулятор Семейная ипотека Военная ипотека Банки и программы Медиа Новости недвижимости Мнение эксперта Аналитика рынка Покупателю Экспертиза новостроек Эксперты и авторы О проекте Контакты Реклама на сайте Vk Youtube Telegram Дзен Машиноместа Апартаменты #траншевая ипотека #рассрочка ИТ-ипотека Квартиры со скидками до 40% Видео 360° новостроек Субсидированная застройщиком Rutube Поиск дома в Москве Программа реновации в Москве Новостройки премиум-класса Новостройки бизнес-класса Рассрочка Траншевая ипотека Дома и коттеджи Коттеджные поселки в Новой Москве Готовые коттеджные поселки Строящиеся коттеджные поселки Коттеджные поселки в лесу Коттеджные поселки у водоема Коттеджные поселки в ипотеку Бизнес-центры Коттеджи Ипотека со ставкой 0,1%
Данная квартира является лидером продаж среди трехкомнатных квартир в ЖК «Новотомилино» по данным Росреестра
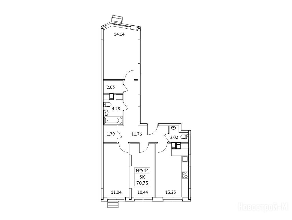
3-комн. квартира, 70.73 м2, 8 этаж
Срок сдачи 4 квартал 2026 года
14 430 493 
16 030 548
204 022 2
обновлено 13 мая

Описание 3-комн. квартиры

Новостройка
Срок ГК
4 квартал 2026 года
Общая площадь
70.73 м2
Жилая площадь
25.62 м2
Площадь кухни
13.23 м2
Этаж
8 / 13

Расположение 3-комн. квартиры

Метро
Станция МЦД
Панки
25 мин.
Станция МЦК
Дом
6
Адрес
ЖК «Новотомилино», корп. 1-3, 9, секция 5

Способы покупки

Особенности

Продается трехкомнатная квартира в новостройке ЖК «Новотомилино» по адресу Московская область, Люберцы городской округ, Томилино пос., ЖК «Новотомилино», корп. 1-3, 9. Общая площадь квартиры - 70.73 кв. м. Тип проекта, по которому построен дом — Монолитно-кирпичный, компания-застройщик — Тройка РЭД, АО «СЗ«Реалинвест». Стоимость квартиры — 14 430 493 руб. Способы оплаты можно уточнить у продавца. Срок сдачи — 4 квартал 2026. Более подробная информация по телефону.
Инфоцентр новостроек
Инфоцентр новостроек
+7 (499) 705-91-41
Время работы 9:00 — 21:00
студия 18,91 м2 5 701 576
Этаж 12/12
МО, ЖК «Новотомилино»
Панки
25 мин.
Строится
студия 19,12 м2 5 445 859
Этаж 3/12
МО, ЖК «Новотомилино»
Панки
25 мин.
Строится
студия 19,53 м2 5 463 578
Этаж 2/12
МО, ЖК «Новотомилино»
Панки
25 мин.
Строится
студия 20,16 м2 5 394 384
Этаж 12/13
МО, ЖК «Новотомилино»
Панки
25 мин.
Строится
Посмотреть 176 квартир в ЖК «Новотомилино»
1-комн. квартира 32,95 м2 8 403 893
Этаж 14/17
МО, ЖК «Новотомилино»
Панки
25 мин.
Строится
1-комн. квартира 33,13 м2 6 988 860
Этаж 13/14
МО, ЖК «Новотомилино»
Панки
25 мин.
Строится
Этаж 5/13
МО, ЖК «Новотомилино»
Панки
25 мин.
Строится
1-комн. квартира 33,41 м2 8 520 551
Этаж 13/17
МО, ЖК «Новотомилино»
Панки
25 мин.
Строится
Посмотреть 138 квартир в ЖК «Новотомилино»
2-комн. квартира 39,02 м2 13 765 040
Этаж 13/14
МО, ЖК «Новотомилино»
Панки
25 мин.
Строится
2-комн. квартира 45,27 м2 15 783 960
Этаж 13/14
МО, ЖК «Новотомилино»
Панки
25 мин.
Строится
2-комн. квартира 45,48 м2 11 416 946
Этаж 10/14
МО, ЖК «Новотомилино»
Панки
25 мин.
Строится
2-комн. квартира 50,11 м2 12 488 291
Этаж 12/12
МО, ЖК «Новотомилино»
Панки
25 мин.
Строится
Посмотреть 74 квартиры в ЖК «Новотомилино»
3-комн. квартира 56,71 м2 14 190 838
Этаж 12/12
МО, ЖК «Новотомилино»
Панки
25 мин.
Строится
3-комн. квартира 56,92 м2 13 429 102
Этаж 3/12
МО, ЖК «Новотомилино»
Панки
25 мин.
Строится
3-комн. квартира 57,38 м2 13 337 203
Этаж 2/12
МО, ЖК «Новотомилино»
Панки
25 мин.
Строится
3-комн. квартира 60,29 м2 12 789 372
Этаж 12/13
МО, ЖК «Новотомилино»
Панки
25 мин.
Строится
Посмотреть 40 квартир в ЖК «Новотомилино»

Скидки и спецпредложения от застройщиков

ЖК «Новотомилино» на карте

Выгодные предложения на новостройки

Отзывы о ЖК «Новотомилино»

Самый полезный отзыв
А
01 марта 2020
Оценка:
Достоинства
Экология
Способы покупки
Расположение
Звонил в офис продаж, сказали, что скоро уже откроют продажи, получили всю необходимую документацию - заключение о соответствии компании и проектной декларации, кажется так называется
Показать все комментарии
Ответить
Самый новый отзыв
ЕД
30 мая 2025
Оценка:
Достоинства
Транспортная доступность
Внешний вид фасада
Расположение
До станций Томилино и Панки, конечно, не пять минут пешком, но относительно недалеко – вполне можно добираться. И дома симпатичные, глаз радуют! Особенно порадовал уровень ремонта, он явно выше среднего. Сразу видно, что застройщик не экономил на материалах и отделке.
Ответить

Оставить отзыв

Добавьте отзыв, заполнив личные данные, или сначала войдите на сайт, тогда информация будет автоматически взята из личного профиля.
Оценка*