Рейтинг@Mail.ru
Переверните экран
Новостройки Квартиры Ипотека Новостройки Москвы Новостройки Подмосковья Новостройки Новой Москвы Готовые новостройки Новостройки на карте Акции от застройщиков Коммерческие помещения Продавцы и застройщики Панорамы новостроек Видеообзор новостроек Экспертиза новостроек Экология Москвы и Подмосковья Студии 1-комнатные 2-комнатные 3-комнатные Квартиры на карте Ипотечный калькулятор Семейная ипотека Военная ипотека Банки и программы Медиа Новости недвижимости Мнение эксперта Аналитика рынка Покупателю Экспертиза новостроек Эксперты и авторы О проекте Контакты Реклама на сайте Vk Youtube Telegram Дзен Машиноместа Апартаменты #траншевая ипотека #рассрочка ИТ-ипотека Квартиры со скидками до 40% Видео 360° новостроек Субсидированная застройщиком Rutube Поиск дома в Москве Программа реновации в Москве Новостройки премиум-класса Новостройки бизнес-класса Рассрочка Траншевая ипотека Дома и коттеджи Коттеджные поселки в Новой Москве Готовые коттеджные поселки Строящиеся коттеджные поселки Коттеджные поселки в лесу Коттеджные поселки у водоема Коттеджные поселки в ипотеку Бизнес-центры Коттеджи Ипотека со ставкой 0,1%
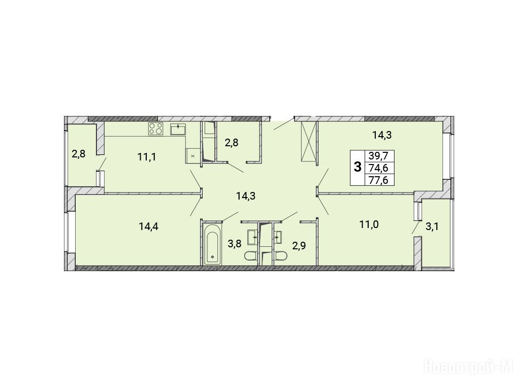
3-комн. квартира, 77.50 м2, 14 этаж
Сдан
15 491 875 
199 895 2
обновлено 4 мая

Описание 3-комн. квартиры

Новостройка
Застройщик
ДСК-1 Стройинвест ЖСК Центр-2 Конструктор Специализированный застройщик «Лидер Подмосковья»
Срок ГК
Дом сдан
Стадия строительства
выдача ключей + заселение
Тип проекта
Общая площадь
77.50 м2
Жилая площадь
39.70 м2
Площадь кухни
11.10 м2
Этаж
14 / 17

Расположение 3-комн. квартиры

Метро
Станция МЦД
Дом
305
Адрес
Поликахина, 2, секция 3

Особенности

Продается трехкомнатная квартира в новостройке ЖК «Центр-2» по адресу Московская область, Железнодорожный городской округ, Железнодорожный, Поликахина, 2. Общая площадь квартиры - 77.5 кв. м. Тип проекта, по которому построен дом — Монолитно-панельный, компания-застройщик — ЖСК Центр-2, Конструктор, ДСК-1, Специализированный застройщик «Лидер Подмосковья», Стройинвест. Стоимость квартиры — 15 491 875 руб. Способы оплаты можно уточнить у продавца. Более подробная информация по телефону.
Инфоцентр новостроек
Инфоцентр новостроек
Время работы 9:00 — 21:00
Выбирайте квартиру в ЖК «Центр-2» по ценам от застройщика
1-комн. квартира 36,30 м2 7 872 650
Этаж 15/17
МО, ЖК «Центр-2»
Железнодорожная
15 мин.
Сдан
1-комн. квартира 36,40 м2 7 252 832
Этаж 12/17
МО, ЖК «Центр-2»
Железнодорожная
15 мин.
Сдан
1-комн. квартира 36,50 м2 7 915 750
Этаж 17/17
МО, ЖК «Центр-2»
Железнодорожная
15 мин.
Сдан
1-комн. квартира 36,60 м2 7 877 825
Этаж 11/17
МО, ЖК «Центр-2»
Железнодорожная
15 мин.
Сдан
Посмотреть 29 квартир в ЖК «Центр-2»
2-комн. квартира 49,70 м2 9 431 372
Этаж 5/17
МО, ЖК «Центр-2»
Железнодорожная
15 мин.
Сдан
2-комн. квартира 49,80 м2 10 514 225
Этаж 16/17
МО, ЖК «Центр-2»
Железнодорожная
15 мин.
Сдан
2-комн. квартира 49,90 м2 9 469 124
Этаж 5/17
МО, ЖК «Центр-2»
Железнодорожная
15 мин.
Сдан
2-комн. квартира 50,00 м2 9 488 000
Этаж 12/17
МО, ЖК «Центр-2»
Железнодорожная
15 мин.
Сдан
Посмотреть 61 квартира в ЖК «Центр-2»
3-комн. квартира 77,80 м2 14 128 688
Этаж 12/17
МО, ЖК «Центр-2»
Железнодорожная
15 мин.
Сдан
3-комн. квартира 77,90 м2 16 097 400
Этаж 14/17
МО, ЖК «Центр-2»
Железнодорожная
15 мин.
Сдан
3-комн. квартира 78,30 м2 14 219 168
Этаж 12/17
МО, ЖК «Центр-2»
Железнодорожная
15 мин.
Сдан
3-комн. квартира 78,40 м2 16 200 400
Этаж 10/17
МО, ЖК «Центр-2»
Железнодорожная
15 мин.
Сдан
Посмотреть 8 квартир в ЖК «Центр-2»

Скидки и спецпредложения от застройщиков

ЖК «Центр-2» на карте

Выгодные предложения на новостройки

Отзывы о ЖК «Центр-2»

Самый полезный отзыв
Н
23 ноября 2017
Оценка:
Народ видел квартиру на планировках, с каким-то аппендиксом из комнаты в 9 квадратов, помогите разгадать, что это? Но это не балкон.
Показать все комментарии
Ответить
Самый новый отзыв
А
24 июля 2022
Оценка:
Достоинства
Социальная инфраструктура
Планировки
Готовность
Расположение
Большая территория, детям есть где гулять, рядом есть несколько детских садов и как мы поняли от соседей открылась в этом году еще новая большая школа, так что вообще здорово. Наконец-то нашли комплекс, чтобы цена была в рамках нашего бюджета, при этом с инфраструктурой и транспортом, тоже все хорошо.
Ответить

Оставить отзыв

Добавьте отзыв, заполнив личные данные, или сначала войдите на сайт, тогда информация будет автоматически взята из личного профиля.
Оценка*