Рейтинг@Mail.ru
Переверните экран
Новостройки Квартиры Ипотека Новостройки Москвы Новостройки Подмосковья Новостройки Новой Москвы Готовые новостройки Новостройки на карте Акции от застройщиков Коммерческие помещения Продавцы и застройщики Панорамы новостроек Видеообзор новостроек Экспертиза новостроек Экология Москвы и Подмосковья Студии 1-комнатные 2-комнатные 3-комнатные Квартиры на карте Ипотечный калькулятор Семейная ипотека Военная ипотека Банки и программы Медиа Новости недвижимости Мнение эксперта Аналитика рынка Покупателю Экспертиза новостроек Эксперты и авторы О проекте Контакты Реклама на сайте Vk Youtube Telegram Дзен Машиноместа Апартаменты #траншевая ипотека #рассрочка IT-ипотека Квартиры со скидками до 40% Видео 360° новостроек Субсидированная застройщиком Rutube Поиск дома в Москве Программа реновации в Москве Новостройки премиум-класса Новостройки бизнес-класса Рассрочка Траншевая ипотека ГАЛС Дома и коттеджи Бизнес-центры Бизнес-центры в Москве Бизнес-центры рядом с метро Строящиеся бизнес-центры Бизнес-центры класса A Бизнес-центры класса B ЛСР
Данная квартира является лидером продаж среди трехкомнатных квартир в Районе «Новые Ватутинки» по данным Росреестра
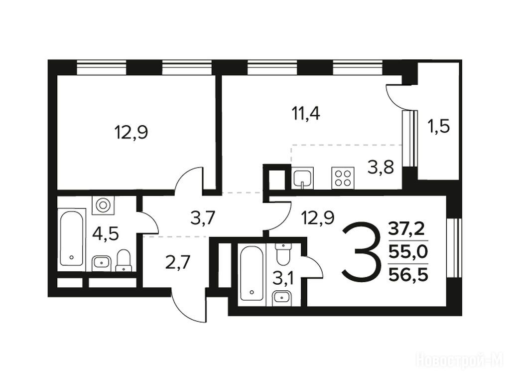
3-комн. квартира, 56.50 м2, 9 этаж
Срок сдачи 4 квартал 2026 года
17 264 000 
305 558 2
обновлено 5 декабря

Описание 3-комн. квартиры

Срок ГК
4 квартал 2026 года
Стадия строительства
монтаж верхних этажей
Общая площадь
56.50 м2
Жилая площадь
25.80 м2
Площадь кухни
15.20 м2
Этаж
9 / 11
Отделка
нет

Расположение 3-комн. квартиры

Локация
Метро
Дом
6/2 (Заречный)
Адрес
Район «Новые Ватутинки», мкр. Заречный, корп. 6/2, секция 3

Особенности

Продается трехкомнатная квартира в новостройке Район «Новые Ватутинки» по адресу Москва, ТиНАО, Новомосковский АО, Десеновское С/П, Район «Новые Ватутинки», мкр. Заречный, корп. 6/2. Общая площадь квартиры - 56.5 кв. м. Тип проекта, по которому построен дом — Монолитно-кирпичный, компания-застройщик — СЗ Стройком 1, СЗ СТРОЙКОМ, ООО «СЗ «Гео-Реал». Стоимость квартиры — 17 264 000 руб. Способы оплаты можно уточнить у продавца. Срок сдачи — 4 квартал 2026. Более подробная информация по телефону.

Правовые документы

Инфоцентр новостроек
Инфоцентр новостроек
+7 (499) 705-91-41
Время работы 9:00 — 21:00

Похожие квартиры в Районе «Новые Ватутинки»

10 этаж
из 11 4 квартал 2026
Москва, Новомосковский АО
Ольховая
11 мин.
6/2 (Заречный)
Корпус
нет
Отделка
2.85 м
Потолки
Район «Новые Ватутинки»
17 312 000
Посмотреть все спецпредложения
студия 21,10 м2 9 020 000
Этаж 9/9
НМ, Район «Новые Ватутинки»
Ольховая
11 мин.
Строится
студия 21,70 м2 9 146 000
Этаж 9/12
НМ, Район «Новые Ватутинки»
Ольховая
11 мин.
Строится
студия 22,60 м2 9 213 000
Этаж 4/9
НМ, Район «Новые Ватутинки»
Ольховая
11 мин.
Строится
студия 22,80 м2 9 506 000
Этаж 13/14
НМ, Район «Новые Ватутинки»
Ольховая
11 мин.
Строится
Посмотреть 43 квартиры в Районе «Новые Ватутинки»
1-комн. квартира 31,80 м2 12 261 000
Этаж 11/11
НМ, Район «Новые Ватутинки»
Ольховая
11 мин.
Строится
1-комн. квартира 31,90 м2 12 663 000
Этаж 6/7
НМ, Район «Новые Ватутинки»
Ольховая
11 мин.
Строится
1-комн. квартира 32,00 м2 12 518 000
Этаж 11/11
НМ, Район «Новые Ватутинки»
Ольховая
11 мин.
Строится
1-комн. квартира 32,40 м2 10 830 000
Этаж 11/11
НМ, Район «Новые Ватутинки»
Ольховая
11 мин.
Строится
Посмотреть 161 квартира в Районе «Новые Ватутинки»
2-комн. квартира 34,40 м2 13 079 000
Этаж 11/12
НМ, Район «Новые Ватутинки»
Ольховая
11 мин.
Строится
2-комн. квартира 34,70 м2 13 159 000
Этаж 7/12
НМ, Район «Новые Ватутинки»
Ольховая
11 мин.
Строится
2-комн. квартира 35,10 м2 13 113 000
Этаж 11/12
НМ, Район «Новые Ватутинки»
Ольховая
11 мин.
Строится
2-комн. квартира 35,40 м2 12 145 000
Этаж 1/12
НМ, Район «Новые Ватутинки»
Ольховая
11 мин.
Строится
Посмотреть 247 квартир в Районе «Новые Ватутинки»
3-комн. квартира 55,30 м2 19 734 000
Этаж 9/9
НМ, Район «Новые Ватутинки»
Ольховая
11 мин.
Строится
3-комн. квартира 55,80 м2 16 843 000
Этаж 1/14
НМ, Район «Новые Ватутинки»
Ольховая
11 мин.
Строится
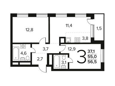
3-комн. квартира 56,50 м2 17 312 000
Этаж 10/11
НМ, Район «Новые Ватутинки»
Ольховая
11 мин.
Строится
3-комн. квартира 56,80 м2 19 430 000
Этаж 11/12
НМ, Район «Новые Ватутинки»
Ольховая
11 мин.
Строится
Посмотреть 59 квартир в Районе «Новые Ватутинки»
4-комн. квартира 86,60 м2 25 402 200
Этаж 9/9
НМ, Район «Новые Ватутинки»
Ольховая
11 мин.
Сдан
4-комн. квартира 90,50 м2 26 565 500
Этаж 6/9
НМ, Район «Новые Ватутинки»
Ольховая
11 мин.
Сдан

Скидки и спецпредложения от застройщиков

Район «Новые Ватутинки» на карте

Выгодные предложения на новостройки

Самый полезный отзыв
М
13 декабря 2017
Оценка:
Транспортная доступность
Планировки
Расположение
Подбирали комплекс исходя из расположения (хотели именно за мкадом, но чтобы не далеко), планировок, готовности и цены. Успели ухватить готовую двушку, больше таких не осталось. Выбором остались довольны, ЖК классный!
Ответить
Полезный отзыв?
Самый новый отзыв
П
21 ноября
Оценка:
Транспортная доступность
Внешний вид фасада
Двор, окружение
Снимали квартиру, потом решили купить. Управляющая компания держит уровень, охрана реально работает. Район достойный
Ответить
Полезный отзыв?
Добавьте отзыв, заполнив личные данные, или сначала войдите на сайт, тогда информация будет автоматически взята из личного профиля.
Оценка*