Рейтинг@Mail.ru
Переверните экран
Новостройки Квартиры Ипотека Новостройки Москвы Новостройки Подмосковья Новостройки Новой Москвы Готовые новостройки Новостройки на карте Акции от застройщиков Коммерческие помещения Продавцы и застройщики Панорамы новостроек Видеообзор новостроек Экспертиза новостроек Экология Москвы и Подмосковья Студии 1-комнатные 2-комнатные 3-комнатные Квартиры на карте Ипотечный калькулятор Семейная ипотека Военная ипотека Банки и программы Медиа Новости недвижимости Мнение эксперта Аналитика рынка Покупателю Экспертиза новостроек Эксперты и авторы О проекте Контакты Реклама на сайте Vk Youtube Telegram Дзен Машиноместа Апартаменты #траншевая ипотека #рассрочка IT-ипотека Квартиры со скидками до 35% Видео 360° новостроек Субсидированная застройщиком Rutube Поиск дома в Москве Программа реновации в Москве Новостройки премиум-класса Новостройки бизнес-класса Рассрочка Траншевая ипотека Дома и коттеджи Бизнес-центры Бизнес-центры в Москве Бизнес-центры рядом с метро Строящиеся бизнес-центры Бизнес-центры класса A Бизнес-центры класса B
студия, 38.10 м2, 5 этаж
Сдан
5 715 000 
150 000 2
обновлено 5 февраля

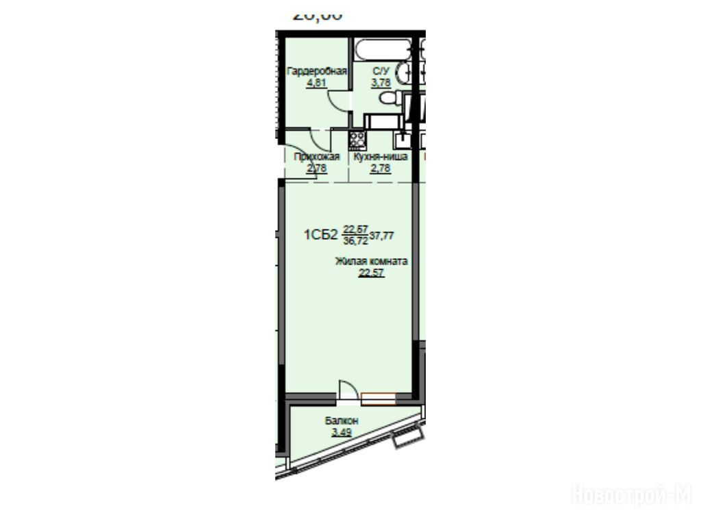
Описание студии

Застройщик
Срок ГК
Дом сдан
Стадия строительства
отделка фасада и внутренние работы
Общая площадь
38.10 м2
Жилая площадь
19.57 м2
Площадь кухни
5.78 м2
Этаж
5 / 17
Отделка
нет

Расположение студии

Метро
Ж/Д-станция
Щёлково
15 мин.
Дом
Дом №10
Адрес
жилой комплекс Соболевка, 10, секция 1

Особенности

Продается студия в новостройке ЖК «Соболевка» (Щелково) по адресу Московская область, Щелковский район, Щелково, жилой комплекс Соболевка, 10. Общая площадь квартиры - 38.1 кв. м. Тип проекта, по которому построен дом — Монолитно-кирпичный, компания-застройщик — Спутник, Гранд. Стоимость квартиры — 5 715 000 руб. Способы оплаты можно уточнить у продавца. Более подробная информация по телефону.
Инфоцентр новостроек
Инфоцентр новостроек
Время работы 9:00 — 21:00
Выбирайте квартиру в ЖК «Соболевка» (Щелково) по ценам от застройщика

Похожие квартиры в ЖК «Соболевка» (Щелково)

17 этаж
из 17 Дом сдан
Московская область, Щелковский район
Щелковская
30 мин.
Дом №10
Корпус
нет
Отделка
3.00 м
Потолки
ЖК «Соболевка» (Щелково)
5 715 000
15 этаж
из 17 Дом сдан
Московская область, Щелковский район
Щелковская
30 мин.
Дом №10
Корпус
нет
Отделка
3.00 м
Потолки
ЖК «Соболевка» (Щелково)
5 715 000
12 этаж
из 17 Дом сдан
Московская область, Щелковский район
Щелковская
30 мин.
Дом №10
Корпус
нет
Отделка
3.00 м
Потолки
ЖК «Соболевка» (Щелково)
5 715 000
13 этаж
из 17 Дом сдан
Московская область, Щелковский район
Щелковская
30 мин.
Дом №10
Корпус
нет
Отделка
3.00 м
Потолки
ЖК «Соболевка» (Щелково)
5 715 000
14 этаж
из 17 Дом сдан
Московская область, Щелковский район
Щелковская
30 мин.
Дом №10
Корпус
нет
Отделка
3.00 м
Потолки
ЖК «Соболевка» (Щелково)
5 715 000
12 этаж
из 17 Дом сдан
Московская область, Щелковский район
Щелковская
30 мин.
Дом №10
Корпус
нет
Отделка
3.00 м
Потолки
ЖК «Соболевка» (Щелково)
5 715 000
8 этаж
из 17 Дом сдан
Московская область, Щелковский район
Щелковская
30 мин.
Дом №10
Корпус
нет
Отделка
3.00 м
Потолки
ЖК «Соболевка» (Щелково)
5 715 000
16 этаж
из 17 Дом сдан
Московская область, Щелковский район
Щелковская
30 мин.
Дом №10
Корпус
нет
Отделка
3.00 м
Потолки
ЖК «Соболевка» (Щелково)
5 715 000
8 этаж
из 17 Дом сдан
Московская область, Щелковский район
Щелковская
30 мин.
Дом №10
Корпус
нет
Отделка
3.00 м
Потолки
ЖК «Соболевка» (Щелково)
5 715 000
7 этаж
из 17 Дом сдан
Московская область, Щелковский район
Щелковская
30 мин.
Дом №10
Корпус
нет
Отделка
3.00 м
Потолки
ЖК «Соболевка» (Щелково)
5 715 000
Посмотреть все спецпредложения
студия 31,20 м2 4 680 000
Этаж 1/17
МО, ЖК «Соболевка» (Щелково)
Щелковская
30 мин.
Сдан
студия 31,50 м2 4 725 000
Этаж 1/17
МО, ЖК «Соболевка» (Щелково)
Щелковская
30 мин.
Сдан
студия 31,70 м2 4 755 000
Этаж 4/17
МО, ЖК «Соболевка» (Щелково)
Щелковская
30 мин.
Сдан
студия 31,80 м2 4 770 000
Этаж 4/17
МО, ЖК «Соболевка» (Щелково)
Щелковская
30 мин.
Сдан
Посмотреть 161 квартира в ЖК «Соболевка» (Щелково)
1-комн. квартира 44,30 м2 6 866 500
Этаж 1/17
МО, ЖК «Соболевка» (Щелково)
Щелковская
30 мин.
Сдан
1-комн. квартира 44,50 м2 6 897 500
Этаж 1/17
МО, ЖК «Соболевка» (Щелково)
Щелковская
30 мин.
Сдан
1-комн. квартира 45,50 м2 7 052 500
Этаж 1/17
МО, ЖК «Соболевка» (Щелково)
Щелковская
30 мин.
Сдан
1-комн. квартира 47,80 м2 7 409 000
Этаж 17/17
МО, ЖК «Соболевка» (Щелково)
Щелковская
30 мин.
Сдан
Посмотреть 15 квартир в ЖК «Соболевка» (Щелково)
2-комн. квартира 54,50 м2 8 447 500
Этаж 14/17
МО, ЖК «Соболевка» (Щелково)
Щелковская
30 мин.
Сдан
2-комн. квартира 54,80 м2 8 494 000
Этаж 16/17
МО, ЖК «Соболевка» (Щелково)
Щелковская
30 мин.
Сдан
2-комн. квартира 54,90 м2 8 509 500
Этаж 17/17
МО, ЖК «Соболевка» (Щелково)
Щелковская
30 мин.
Сдан
2-комн. квартира 55,00 м2 8 525 000
Этаж 15/17
МО, ЖК «Соболевка» (Щелково)
Щелковская
30 мин.
Сдан
Посмотреть 91 квартира в ЖК «Соболевка» (Щелково)
3-комн. квартира 73,80 м2 11 070 000
Этаж 2/17
МО, ЖК «Соболевка» (Щелково)
Щелковская
30 мин.
Сдан
3-комн. квартира 74,30 м2 10 773 500
Этаж 17/17
МО, ЖК «Соболевка» (Щелково)
Щелковская
30 мин.
Сдан
3-комн. квартира 74,70 м2 11 205 000
Этаж 13/17
МО, ЖК «Соболевка» (Щелково)
Щелковская
30 мин.
Сдан
3-комн. квартира 75,10 м2 11 265 000
Этаж 11/17
МО, ЖК «Соболевка» (Щелково)
Щелковская
30 мин.
Сдан
Посмотреть 22 квартиры в ЖК «Соболевка» (Щелково)

Скидки и спецпредложения от застройщиков

ЖК «Соболевка» (Щелково) на карте

Выгодные предложения на новостройки

Отзывы о ЖК «Соболевка» (Щелково)

Самый полезный отзыв
НС
13 сентября 2022
Оценка:
Планировки
Способы покупки
Расположение
Хорошо отношусь к жилым проектам такого рода. интересный внешний вид, практичное расположение - рядом с транспортными развязками. а в этом случае так вообще - прекрасное расположение на природе
Ответить
Полезный отзыв?
Самый новый отзыв
ОА
15 мая 2025
Оценка:
Социальная инфраструктура
Планировки
Внешний вид фасада
Расположение
Выбирала место для комфортной жизни с детьми, изучала учебные учраждения - рядом Щёлковская гимназия, детские сады, больница и много других заведений социальной инфраструктуры. Квартир готовых подходящих не оказалось, взяла в стройке, благо уже скоро сдача планируется
Ответить
Полезный отзыв?
Добавьте отзыв, заполнив личные данные, или сначала войдите на сайт, тогда информация будет автоматически взята из личного профиля.
Оценка*