Рейтинг@Mail.ru
Переверните экран
Новостройки Квартиры Ипотека Новостройки Москвы Новостройки Подмосковья Новостройки Новой Москвы Готовые новостройки Новостройки на карте Акции от застройщиков Коммерческие помещения Продавцы и застройщики Панорамы новостроек Видеообзор новостроек Экспертиза новостроек Экология Москвы и Подмосковья Студии 1-комнатные 2-комнатные 3-комнатные Квартиры на карте Ипотечный калькулятор Семейная ипотека Военная ипотека Банки и программы Медиа Новости недвижимости Мнение эксперта Аналитика рынка Покупателю Экспертиза новостроек Эксперты и авторы О проекте Контакты Реклама на сайте Vk Youtube Telegram Дзен Машиноместа Апартаменты #траншевая ипотека #рассрочка ИТ-ипотека Квартиры со скидками до 40% Видео 360° новостроек Субсидированная застройщиком Rutube Поиск дома в Москве Программа реновации в Москве Новостройки премиум-класса Новостройки бизнес-класса Рассрочка Траншевая ипотека Дома и коттеджи Коттеджные поселки в Новой Москве Готовые коттеджные поселки Строящиеся коттеджные поселки Коттеджные поселки в лесу Коттеджные поселки у водоема Коттеджные поселки в ипотеку Бизнес-центры Коттеджи Ипотека со ставкой 0,1%
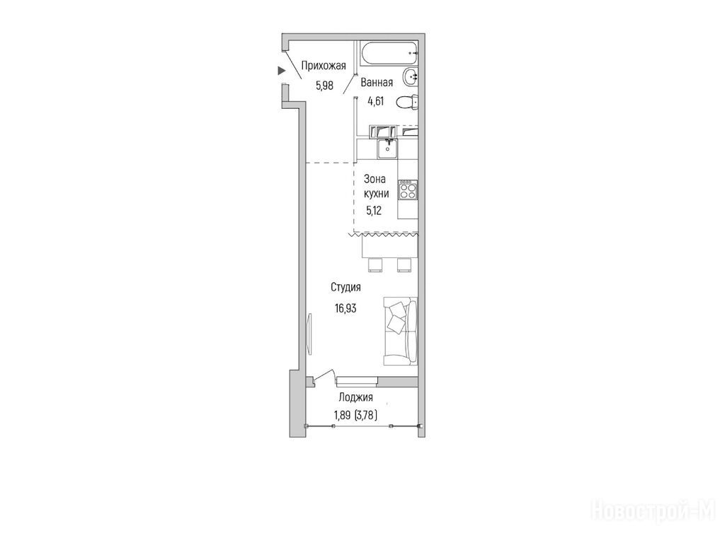
студия, 34.53 м2, 4 этаж
Срок сдачи 4 квартал 2026 года
9 474 768 
274 392 2
обновлено 4 мая

Описание студии

Новостройка
Застройщик
Срок ГК
4 квартал 2026 года
Стадия строительства
монтаж верхних этажей
Общая площадь
34.53 м2
Жилая площадь
16.93 м2
Площадь кухни
5.12 м2
Этаж
4 / 9

Расположение студии

Станция МЦД
Павшино
20 мин.
Ж/Д-станция
Дом
1
Адрес
ЖК Riga Hills (Рига Хилс), секция 5

Способы покупки

Особенности

Продается студия в новостройке ЖК Riga Hills (Рига Хиллс) по адресу Московская область, Красногорск городской округ, Ильинское С/П, Бузланово деревня, ЖК Riga Hills (Рига Хилс). Общая площадь квартиры - 34.53 кв. м. Тип проекта, по которому построен дом — Монолитно-кирпичный, компания-застройщик — ГК UNION (Юнион), ООО СЗ ЖК Яркий. Рига. Стоимость квартиры — 9 474 768 руб. Способы оплаты можно уточнить у продавца. Срок сдачи — 4 квартал 2026. Более подробная информация по телефону.
Инфоцентр новостроек
Инфоцентр новостроек
+7 (499) 705-91-41
Время работы 9:00 — 21:00

Похожие квартиры в ЖК Riga Hills (Рига Хиллс)

4 этаж
из 9 4 квартал 2026
Московская область, Ильинское С/П
Ильинская (2029)
10 мин.
1
Корпус
нет данных
Отделка
3.00 м
Потолки
ЖК Riga Hills (Рига Хиллс)
9 504 864
Альфа-Банк, СберБанк, ВТБ, Металлинвестбанк, Совкомбанк, ДОМ.РФ, Абсолют Банк, Уралсиб, Газпромбанк, АК БАРС, Московский Кредитный Банк, Россельхозбанк
6.00%
Ставка
30.10%
Первый взнос
от 56 986 /мес.
Все варианты
5 этаж
из 9 4 квартал 2026
Московская область, Ильинское С/П
Ильинская (2029)
10 мин.
1
Корпус
нет данных
Отделка
3.00 м
Потолки
ЖК Riga Hills (Рига Хиллс)
9 605 326
Альфа-Банк, СберБанк, ВТБ, Металлинвестбанк, Совкомбанк, ДОМ.РФ, Абсолют Банк, Уралсиб, Газпромбанк, АК БАРС, Московский Кредитный Банк, Россельхозбанк
6.00%
Ставка
30.10%
Первый взнос
от 57 589 /мес.
Все варианты
8 этаж
из 9 4 квартал 2026
Московская область, Ильинское С/П
Ильинская (2029)
10 мин.
1
Корпус
нет данных
Отделка
3.00 м
Потолки
ЖК Riga Hills (Рига Хиллс)
9 876 532
Альфа-Банк, СберБанк, ВТБ, Металлинвестбанк, Совкомбанк, ДОМ.РФ, Абсолют Банк, Уралсиб, Газпромбанк, АК БАРС, Московский Кредитный Банк, Россельхозбанк
6.00%
Ставка
30.10%
Первый взнос
от 59 215 /мес.
Все варианты
9 этаж
из 9 4 квартал 2026
Московская область, Ильинское С/П
Ильинская (2029)
10 мин.
1
Корпус
нет данных
Отделка
3.00 м
Потолки
ЖК Riga Hills (Рига Хиллс)
9 876 532
Альфа-Банк, СберБанк, ВТБ, Металлинвестбанк, Совкомбанк, ДОМ.РФ, Абсолют Банк, Уралсиб, Газпромбанк, АК БАРС, Московский Кредитный Банк, Россельхозбанк
6.00%
Ставка
30.10%
Первый взнос
от 59 215 /мес.
Все варианты
студия 31,28 м2 6 939 000
Этаж 6/9
МО, ЖК Riga Hills (Рига Хиллс)
Ильинская (2029)
10 мин.
Строится
студия 31,30 м2 6 939 000
Этаж 6/9
МО, ЖК Riga Hills (Рига Хиллс)
Ильинская (2029)
10 мин.
Строится
студия 31,44 м2 7 977 748
Этаж 6/9
МО, ЖК Riga Hills (Рига Хиллс)
Ильинская (2029)
10 мин.
Строится
студия 31,78 м2 7 987 752
Этаж 5/9
МО, ЖК Riga Hills (Рига Хиллс)
Ильинская (2029)
10 мин.
Строится
Посмотреть 87 квартир в ЖК Riga Hills (Рига Хиллс)
1-комн. квартира 40,50 м2 11 423 826
Этаж 3/9
МО, ЖК Riga Hills (Рига Хиллс)
Ильинская (2029)
10 мин.
Строится
1-комн. квартира 40,54 м2 11 554 384
Этаж 6/9
МО, ЖК Riga Hills (Рига Хиллс)
Ильинская (2029)
10 мин.
Строится
1-комн. квартира 44,41 м2 15 271 839
Этаж 4/9
МО, ЖК Riga Hills (Рига Хиллс)
Ильинская (2029)
10 мин.
Строится
1-комн. квартира 44,77 м2 11 494 107
Этаж 7/9
МО, ЖК Riga Hills (Рига Хиллс)
Ильинская (2029)
10 мин.
Строится
Посмотреть 116 квартир в ЖК Riga Hills (Рига Хиллс)
2-комн. квартира 74,70 м2 22 947 687
Этаж 4/9
МО, ЖК Riga Hills (Рига Хиллс)
Ильинская (2029)
10 мин.
Строится
2-комн. квартира 75,61 м2 20 547 103
Этаж 5/9
МО, ЖК Riga Hills (Рига Хиллс)
Ильинская (2029)
10 мин.
Строится
2-комн. квартира 75,75 м2 21 244 356
Этаж 8/9
МО, ЖК Riga Hills (Рига Хиллс)
Ильинская (2029)
10 мин.
Строится
2-комн. квартира 75,90 м2 17 470 813
Этаж 4/9
МО, ЖК Riga Hills (Рига Хиллс)
Ильинская (2029)
10 мин.
Строится
Посмотреть 108 квартир в ЖК Riga Hills (Рига Хиллс)
3-комн. квартира 90,74 м2 28 373 089
Этаж 9/9
МО, ЖК Riga Hills (Рига Хиллс)
Ильинская (2029)
10 мин.
Строится
3-комн. квартира 91,20 м2 23 821 839
Этаж 1/9
МО, ЖК Riga Hills (Рига Хиллс)
Ильинская (2029)
10 мин.
Строится
3-комн. квартира 101,19 м2 24 031 998
Этаж 9/9
МО, ЖК Riga Hills (Рига Хиллс)
Ильинская (2029)
10 мин.
Строится
3-комн. квартира 101,37 м2 24 082 870
Этаж 9/9
МО, ЖК Riga Hills (Рига Хиллс)
Ильинская (2029)
10 мин.
Строится
Посмотреть 50 квартир в ЖК Riga Hills (Рига Хиллс)

Скидки и спецпредложения от застройщиков

ЖК Riga Hills (Рига Хиллс) на карте

Выгодные предложения на новостройки

Отзывы о ЖК Riga Hills (Рига Хиллс)

Самый полезный отзыв
А
10 декабря 2023
Оценка:
Достоинства
Планировки
Способы покупки
Внешний вид фасада
Входные группы
Двор, окружение
Расположение
Отличные потолки и окна, 3 метра дают простор хоть какой-то. На то и бизнес класс. Оформляюсь на 7 этаже. Соседи, привет!
Показать все комментарии
Ответить
Самый новый отзыв
АM
18 февраля
Оценка:
Я купила квартиру в данном комплексе, сам комплекс, расположение и планировка отличные. Но работа менеджеров по работе с клиентами просто ужасная, еще до продажи квартиры я пыталась связаться со своим менеджером его зовут Кирилл, и он просто игнорил мои звонки, я хотела сделать покупку и в итоге мне просто приходилось почти уговаривать отдел продаж обратить на меня внимание, просто тотальный игнор, приходилось через брокера искать контакты руководителей, менеджеров действовать через них. Квартиру я все же купила и начался этап постпродажного обслуживания, можно представить, что если тебя игнорят до продажи квартиры, то после ее покупки будет еще хуже. Ну так вот, я уже третий день пишу Кириллу с вопросом сдался ли дом, тк сдача должна была быть в декабре и какой процесс получения ключей - ПОЛНЫЙ ИГНОР, он читает сообщения и просто не отвечает, на звонки не отвечает. Моя оценка связана исключительно с работой отдела продаж компании. Возможно это отдельный человек, который занимается в жизни не тем, что у него получается. Но хотелось бы предупредить, что если Вы покупаете квартиру у данного застройщика, лучше работать с брокером, который хоть как-то будет заинтересованным лицом и добиваться того, чтобы Вам просто отвечали.
Ответить

Оставить отзыв

Добавьте отзыв, заполнив личные данные, или сначала войдите на сайт, тогда информация будет автоматически взята из личного профиля.
Оценка*