Рейтинг@Mail.ru
Переверните экран
Новостройки Квартиры Ипотека Новостройки Москвы Новостройки Подмосковья Новостройки Новой Москвы Готовые новостройки Новостройки на карте Акции от застройщиков Коммерческие помещения Продавцы и застройщики Панорамы новостроек Видеообзор новостроек Экспертиза новостроек Экология Москвы и Подмосковья Студии 1-комнатные 2-комнатные 3-комнатные Квартиры на карте Ипотечный калькулятор Семейная ипотека Военная ипотека Банки и программы Медиа Новости недвижимости Мнение эксперта Аналитика рынка Покупателю Экспертиза новостроек Эксперты и авторы О проекте Контакты Реклама на сайте Vk Youtube Telegram Дзен Машиноместа Апартаменты #траншевая ипотека #рассрочка IT-ипотека Квартиры со скидками до 35% Видео 360° новостроек Субсидированная застройщиком Rutube Поиск дома в Москве Программа реновации в Москве Новостройки премиум-класса Новостройки бизнес-класса Рассрочка Траншевая ипотека Дома и коттеджи Бизнес-центры Бизнес-центры в Москве Бизнес-центры рядом с метро Строящиеся бизнес-центры Бизнес-центры класса A Бизнес-центры класса B
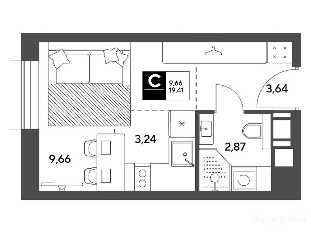
студия, 19.41 м2, 12 этаж
Срок сдачи 1 квартал 2028 года
6 327 660 
326 000 2
обновлено 5 февраля

Описание студии

Новостройка
Срок ГК
1 квартал 2028 года
Стадия строительства
котлован/фундамент
Общая площадь
19.41 м2
Жилая площадь
9.66 м2
Площадь кухни
3.24 м2
Этаж
12 / 15
Отделка
чистовая
Вид из окна
на улицу
Грузовой лифт
есть

Расположение студии

Метро
Станция МЦК
Ж/Д-станция
Дом
7
Адрес
ул. Зеленая Роща, корп. 7, секция 3

Особенности

Продается студия в новостройке ЖК «Публицист» по адресу Московская область, Пушкинский район, Пушкино, ул. Зеленая Роща, корп. 7. Общая площадь квартиры - 19.41 кв. м. Тип проекта, по которому построен дом — Монолитно-кирпичный, компания-застройщик — DOGMA, ООО СЗ Ниго-Холдинг. Стоимость квартиры — 6 327 660 руб. Способы оплаты можно уточнить у продавца. Срок сдачи — 1 квартал 2028. Более подробная информация по телефону.

Правовые документы

Инфоцентр новостроек
Инфоцентр новостроек
+7 (499) 705-91-41
Время работы 9:00 — 21:00

Похожие квартиры в ЖК «Публицист»

4 этаж
из 15 1 квартал 2028
Московская область, Пушкинский район
Ростокино
24 мин.
7
Корпус
чистовая
Отделка
2.72 м
Потолки
ЖК «Публицист»
6 269 430
Посмотреть все спецпредложения
2-комн. квартира 64,29 м2 13 781 847
Этаж 6/15 лоджия
МО, ЖК «Публицист»
Ростокино
24 мин.
Строится
студия 17,63 м2 5 818 746
Этаж 13/15
МО, ЖК «Публицист»
Ростокино
24 мин.
Строится
студия 19,41 м2 5 049 706
Этаж 10/10
МО, ЖК «Публицист»
Ростокино
24 мин.
Строится
студия 19,65 м2 5 388 030
Этаж 10/10
МО, ЖК «Публицист»
Ростокино
24 мин.
Строится
студия 19,68 м2 5 349 024
Этаж 9/10
МО, ЖК «Публицист»
Ростокино
24 мин.
Строится
Посмотреть 26 квартир в ЖК «Публицист»
1-комн. квартира 31,70 м2 7 440 624
Этаж 3/9
МО, ЖК «Публицист»
Ростокино
24 мин.
Строится
1-комн. квартира 31,80 м2 7 797 360
Этаж 7/9
МО, ЖК «Публицист»
Ростокино
24 мин.
Строится
1-комн. квартира 33,71 м2 9 533 727
Этаж 7/15
МО, ЖК «Публицист»
Ростокино
24 мин.
Строится
1-комн. квартира 33,92 м2 7 518 843
Этаж 7/12
МО, ЖК «Публицист»
Ростокино
24 мин.
Строится
Посмотреть 91 квартира в ЖК «Публицист»
2-комн. квартира 43,63 м2 9 947 640
Этаж 11/15
МО, ЖК «Публицист»
Ростокино
24 мин.
Строится
2-комн. квартира 43,87 м2 9 842 322
Этаж 3/9
МО, ЖК «Публицист»
Ростокино
24 мин.
Строится
Этаж 7/9
МО, ЖК «Публицист»
Ростокино
24 мин.
Строится
2-комн. квартира 44,40 м2 10 315 008
Этаж 9/15
МО, ЖК «Публицист»
Ростокино
24 мин.
Строится
Посмотреть 98 квартир в ЖК «Публицист»
3-комн. квартира 77,71 м2 15 673 796
Этаж 13/15 лоджия
МО, ЖК «Публицист»
Ростокино
24 мин.
Строится
3-комн. квартира 81,91 м2 16 316 472
Этаж 2/15 лоджия
МО, ЖК «Публицист»
Ростокино
24 мин.
Строится
Посмотреть 9 квартир в ЖК «Публицист»

Скидки и спецпредложения от застройщиков

ЖК «Публицист» на карте

Выгодные предложения на новостройки

Отзывы о ЖК «Публицист»

Самый полезный отзыв
А
06 мая 2024
Оценка:
Планировки
Я приобрёл квартиру в новом жилом комплексе и решил сравнить два корпуса — 10 и 11. Корпус 10 предлагает квартиры без отделки, что позволяет сделать ремонт по своему вкусу и бюджету. В таком варианте есть свои плюсы: можно сразу приступить к ремонту и воплотить свои идеи в жизнь. Однако это требует дополнительных затрат на материалы и работу. Корпус 11 предлагает квартиры с полной отделкой под ключ. Это означает, что застройщик выполнил все черновые работы, установил коммуникации и сделал косметический ремонт. Такой вариант подойдёт тем, кто хочет заехать в квартиру сразу после покупки и не тратить время и силы на ремонт. Однако стоимость таких квартир будет выше, чем в корпусе 10. В итоге я выбрал корпус 10, так как предпочитаю индивидуальный подход к дизайну и ремонту. Однако оба варианта являются хорошим предложением на рынке недвижимости.
Ответить
Полезный отзыв?
Самый новый отзыв
И
23 января
Оценка:
Заходили в офис продаж приятно удивила организация. Все аккуратно, сотрудники дружелюбные, показывают планы и объясняют детали. В таких условиях сразу понимаешь, насколько качественно подход у застройщика с самого начало
Ответить
Полезный отзыв?
Добавьте отзыв, заполнив личные данные, или сначала войдите на сайт, тогда информация будет автоматически взята из личного профиля.
Оценка*