Рейтинг@Mail.ru
Переверните экран
Новостройки Квартиры Ипотека Новостройки Москвы Новостройки Подмосковья Новостройки Новой Москвы Готовые новостройки Новостройки на карте Акции от застройщиков Коммерческие помещения Продавцы и застройщики Панорамы новостроек Видеообзор новостроек Экспертиза новостроек Экология Москвы и Подмосковья Студии 1-комнатные 2-комнатные 3-комнатные Квартиры на карте Ипотечный калькулятор Семейная ипотека Военная ипотека Банки и программы Медиа Новости недвижимости Мнение эксперта Аналитика рынка Покупателю Экспертиза новостроек Эксперты и авторы О проекте Контакты Реклама на сайте Vk Youtube Telegram Дзен Машиноместа Апартаменты #траншевая ипотека #рассрочка IT-ипотека Квартиры со скидками до 40% Видео 360° новостроек Субсидированная застройщиком Rutube Поиск дома в Москве Программа реновации в Москве Новостройки премиум-класса Новостройки бизнес-класса Рассрочка Траншевая ипотека ГАЛС Дома и коттеджи Бизнес-центры Бизнес-центры в Москве Бизнес-центры рядом с метро Строящиеся бизнес-центры Бизнес-центры класса A Бизнес-центры класса B ЛСР
Данная квартира является лидером продаж среди однокомнатных квартир в ЖК «Шолохово» по данным Росреестра
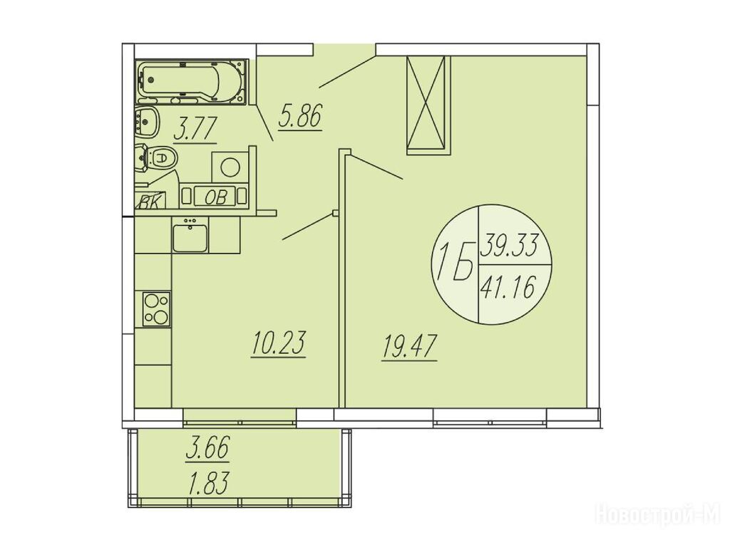
1-комн. квартира, 41.16 м2, 1 этаж
Срок сдачи 1 квартал 2026 года
6 530 755 
158 668 2
обновлено 5 декабря

Описание 1-комн. квартиры

Новостройка
Срок ГК
1 квартал 2026 года
Стадия строительства
отделка фасада
Тип проекта
Общая площадь
41.16 м2
Жилая площадь
19.47 м2
Площадь кухни
10.23 м2
Этаж
1 / 4
Отделка
нет

Расположение 1-комн. квартиры

Метро
Физтех
22 мин.
Станция МЦД
Лобня
28 мин.
Ж/Д-станция
Катуар
20 мин.
Дом
14
Адрес
Дмитровское ш., корп. 14, секция 7

Способы покупки

Особенности

Продается однокомнатная квартира в новостройке ЖК «Шолохово» по адресу Московская область, Мытищи городской округ, Федоскинское С/П, Шолохово деревня, Дмитровское ш., корп. 14. Общая площадь квартиры - 41.16 кв. м. Тип проекта, по которому построен дом — Монолит, компания-застройщик — «РосЕвроСити», ООО СЗ «Новотутинки». Стоимость квартиры — 6 530 755 руб. Способы оплаты можно уточнить у продавца. Срок сдачи — 1 квартал 2026. Более подробная информация по телефону.

Правовые документы

Инфоцентр новостроек
Инфоцентр новостроек
+7 (499) 705-91-41
Время работы 9:00 — 21:00

Похожие квартиры в ЖК «Шолохово»

4 этаж
из 4 1 квартал 2026
Московская область, Федоскинское С/П
Физтех
22 мин.
14
Корпус
нет
Отделка
2.82 м
Потолки
ЖК «Шолохово»
6 615 731
ВТБ, Альфа-Банк, СберБанк, ДОМ.РФ, Транскапиталбанк
6.00%
Ставка
40.10%
Первый взнос
от 39 665 /мес.
Все варианты
3 этаж
из 4 1 квартал 2026
Московская область, Федоскинское С/П
Физтех
22 мин.
14
Корпус
нет
Отделка
2.82 м
Потолки
ЖК «Шолохово»
6 719 141
ВТБ, Альфа-Банк, СберБанк, ДОМ.РФ, Транскапиталбанк
6.00%
Ставка
40.10%
Первый взнос
от 40 285 /мес.
Все варианты
2 этаж
из 4 1 квартал 2026
Московская область, Федоскинское С/П
Физтех
22 мин.
14
Корпус
нет
Отделка
2.82 м
Потолки
ЖК «Шолохово»
6 797 263
ВТБ, Альфа-Банк, СберБанк, ДОМ.РФ, Транскапиталбанк
6.00%
Ставка
40.10%
Первый взнос
от 40 753 /мес.
Все варианты
Посмотреть все спецпредложения
студия 29,17 м2 6 150 734
Этаж 1/4
МО, ЖК «Шолохово»
Физтех
22 мин.
Строится
студия 29,18 м2 6 239 249
Этаж 1/4
МО, ЖК «Шолохово»
Физтех
22 мин.
Строится
студия 31,21 м2 6 169 060
Этаж 1/4
МО, ЖК «Шолохово»
Физтех
22 мин.
Строится
студия 31,54 м2 6 646 154
Этаж 2/4
МО, ЖК «Шолохово»
Физтех
22 мин.
Строится
Посмотреть 13 квартир в ЖК «Шолохово»
1-комн. квартира 37,83 м2 8 019 201
Этаж 3/4
МО, ЖК «Шолохово»
Физтех
22 мин.
Строится
1-комн. квартира 39,16 м2 7 718 725
Этаж 1/4
МО, ЖК «Шолохово»
Физтех
22 мин.
Строится
1-комн. квартира 40,90 м2 7 095 493
Этаж 4/4
МО, ЖК «Шолохово»
Физтех
22 мин.
Сдан
1-комн. квартира 40,93 м2 7 264 419
Этаж 3/4
МО, ЖК «Шолохово»
Физтех
22 мин.
Сдан
Посмотреть 231 квартира в ЖК «Шолохово»
2-комн. квартира 59,63 м2 9 001 330
Этаж 1/4
МО, ЖК «Шолохово»
Физтех
22 мин.
Строится
2-комн. квартира 61,57 м2 10 080 203
Этаж 1/4
МО, ЖК «Шолохово»
Физтех
22 мин.
Строится
2-комн. квартира 61,71 м2 10 952 883
Этаж 1/4
МО, ЖК «Шолохово»
Физтех
22 мин.
Строится
2-комн. квартира 61,73 м2 8 693 034
Этаж 1/4
МО, ЖК «Шолохово»
Физтех
22 мин.
Строится
Посмотреть 194 квартиры в ЖК «Шолохово»
3-комн. квартира 64,66 м2 10 175 411
Этаж 4/4
МО, ЖК «Шолохово»
Физтех
22 мин.
Строится
3-комн. квартира 79,90 м2 13 568 049
Этаж 4/4
МО, ЖК «Шолохово»
Физтех
22 мин.
Строится
Посмотреть 6 квартир в ЖК «Шолохово»

Скидки и спецпредложения от застройщиков

ЖК «Шолохово» на карте

Выгодные предложения на новостройки

Отзывы о ЖК «Шолохово»

Самый полезный отзыв
А
09 апреля 2024
Оценка:
Планировки
Способы покупки
Двор, окружение
Транспортная доступность
Нормальный комплекс, но без машины там, конечно, жить будет сложно, я не привык добираться на работу на оленях. Взял однушку на котловане так сказать на перспективу, посмотрю, может перепродам после сдачи и возьму поближе, а может ситуация с транспортом за 2 года улучшится
Ответить
Полезный отзыв?
Самый новый отзыв
ИЖ
28 ноября
Оценка:
Планировки
Способы покупки
Выбрал Шолохово именно из‑за вайтбокса: без отделки могу собрать интерьер под себя, а вообще есть в жк варианты и с отделкой
Ответить
Полезный отзыв?
Добавьте отзыв, заполнив личные данные, или сначала войдите на сайт, тогда информация будет автоматически взята из личного профиля.
Оценка*