Рейтинг@Mail.ru
Переверните экран
Новостройки Квартиры Ипотека Новостройки Москвы Новостройки Подмосковья Новостройки Новой Москвы Готовые новостройки Новостройки на карте Акции от застройщиков Коммерческие помещения Продавцы и застройщики Панорамы новостроек Видеообзор новостроек Экспертиза новостроек Экология Москвы и Подмосковья Студии 1-комнатные 2-комнатные 3-комнатные Квартиры на карте Ипотечный калькулятор Семейная ипотека Военная ипотека Банки и программы Медиа Новости недвижимости Мнение эксперта Аналитика рынка Покупателю Экспертиза новостроек Эксперты и авторы О проекте Контакты Реклама на сайте Vk Youtube Telegram Дзен Машиноместа Апартаменты #траншевая ипотека #рассрочка IT-ипотека Квартиры со скидками до 40% Видео 360° новостроек Субсидированная застройщиком Rutube Поиск дома в Москве Программа реновации в Москве Новостройки премиум-класса Новостройки бизнес-класса Рассрочка Траншевая ипотека ГАЛС Дома и коттеджи Бизнес-центры Бизнес-центры в Москве Бизнес-центры рядом с метро Строящиеся бизнес-центры Бизнес-центры класса A Бизнес-центры класса B ЛСР
Данная квартира является лидером продаж среди однокомнатных квартир в ЖК «Новотомилино» по данным Росреестра
1-комн. квартира, 38.87 м2, 14 этаж
Срок сдачи 4 квартал 2026 года
17 797 407 
457 870 2
обновлено 5 декабря
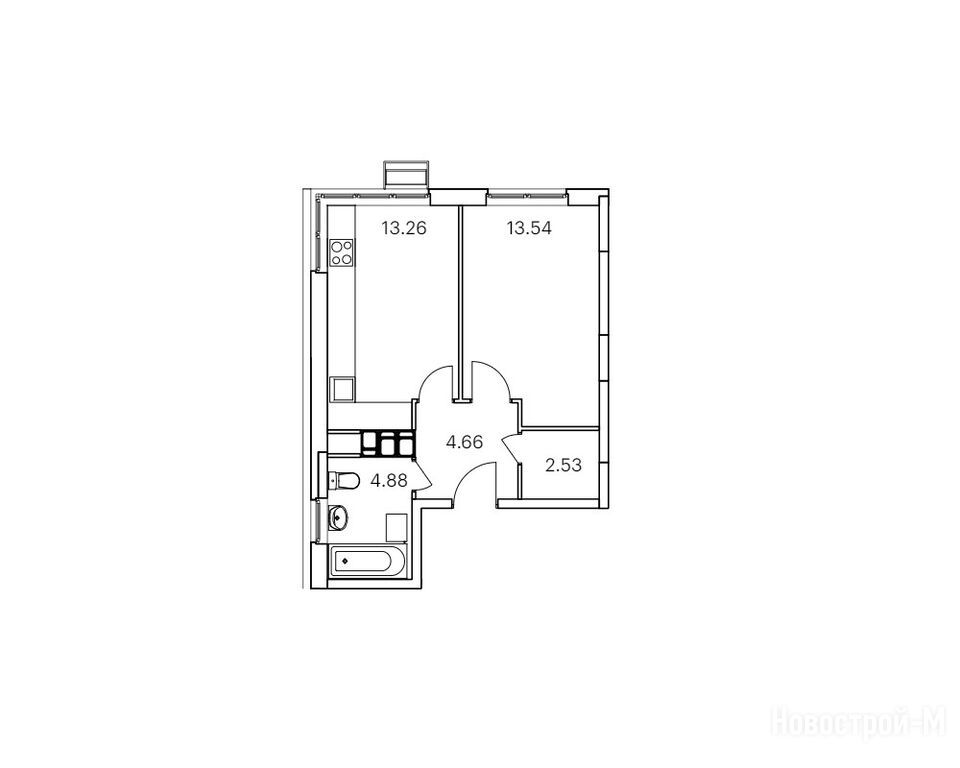
№147 2E 45.48 №151 1K 38.87 №152 1K 34.87 №148 2E 52.78 №150 1K 35.91 №149 2K 58.36 14.34 13.26 13.54 13.44 10.82 14.15 7.20 5.94 2.53 4.66 3.85 4.78 1.98 15.39 15.10 14.36 14.62 13.75 11.17 4.70 10.69 1.68 7.92 3.88 9.33 1.16 11.36 4.01 3.68 2.61 4.88 1.64 3.85 двор двор

Описание 1-комн. квартиры

Новостройка
Срок ГК
4 квартал 2026 года
Общая площадь
38.87 м2
Жилая площадь
13.54 м2
Площадь кухни
13.26 м2
Этаж
14 / 14

Расположение 1-комн. квартиры

Метро
Станция МЦД
Панки
25 мин.
Станция МЦК
Дом
5
Адрес
ЖК «Новотомилино», корп. 1-3, 9, секция 2

Способы покупки

Особенности

Продается однокомнатная квартира в новостройке ЖК «Новотомилино» по адресу Московская область, Люберцы городской округ, Томилино пос., ЖК «Новотомилино», корп. 1-3, 9. Общая площадь квартиры - 38.87 кв. м. Тип проекта, по которому построен дом — Монолитно-кирпичный, компания-застройщик — Группа компаний 3-RED, АО «СЗ«Реалинвест». Стоимость квартиры — 17 797 407 руб. Способы оплаты можно уточнить у продавца. Срок сдачи — 4 квартал 2026. Более подробная информация по телефону.
Инфоцентр новостроек
Инфоцентр новостроек
+7 (499) 705-91-41
Время работы 9:00 — 21:00

Похожие квартиры в ЖК «Новотомилино»

10 этаж
из 14 4 квартал 2026
Московская область, Люберцы городской округ
Панки
25 мин.
5
Корпус
нет данных
Отделка
2.80 м
Потолки
ЖК «Новотомилино»
17 359 606
ВТБ, Промсвязьбанк, СберБанк, Россельхозбанк, Абсолют Банк, ДОМ.РФ
6.00%
Ставка
40.10%
Первый взнос
от 104 080 /мес.
Все варианты
Посмотреть все спецпредложения
студия 19,84 м2 9 339 981
Этаж 13/14
МО, ЖК «Новотомилино»
Панки
25 мин.
Строится
студия 20,16 м2 9 246 339
Этаж 12/13
МО, ЖК «Новотомилино»
Панки
25 мин.
Строится
студия 20,92 м2 9 480 581
Этаж 10/13
МО, ЖК «Новотомилино»
Панки
25 мин.
Строится
студия 21,13 м2 10 187 101
Этаж 5/13
МО, ЖК «Новотомилино»
Панки
25 мин.
Строится
Посмотреть 80 квартир в ЖК «Новотомилино»
1-комн. квартира 32,95 м2 14 275 106
Этаж 13/17
МО, ЖК «Новотомилино»
Панки
25 мин.
Строится
1-комн. квартира 33,15 м2 14 855 482
Этаж 3/17
МО, ЖК «Новотомилино»
Панки
25 мин.
Строится
1-комн. квартира 33,41 м2 14 955 500
Этаж 17/17
МО, ЖК «Новотомилино»
Панки
25 мин.
Строится
1-комн. квартира 33,60 м2 15 848 939
Этаж 14/14
МО, ЖК «Новотомилино»
Панки
25 мин.
Строится
Посмотреть 87 квартир в ЖК «Новотомилино»
2-комн. квартира 39,67 м2 14 255 669
Этаж 14/14
МО, ЖК «Новотомилино»
Панки
25 мин.
Строится
2-комн. квартира 39,84 м2 14 425 334
Этаж 7/14
МО, ЖК «Новотомилино»
Панки
25 мин.
Строится
2-комн. квартира 45,27 м2 18 189 413
Этаж 13/14
МО, ЖК «Новотомилино»
Панки
25 мин.
Строится
2-комн. квартира 45,48 м2 20 289 500
Этаж 10/14
МО, ЖК «Новотомилино»
Панки
25 мин.
Строится
Посмотреть 33 квартиры в ЖК «Новотомилино»
3-комн. квартира 59,73 м2 22 727 400
Этаж 12/14
МО, ЖК «Новотомилино»
Панки
25 мин.
Строится
3-комн. квартира 70,02 м2 26 983 368
Этаж 14/17
МО, ЖК «Новотомилино»
Панки
25 мин.
Строится
3-комн. квартира 70,22 м2 26 646 891
Этаж 3/17
МО, ЖК «Новотомилино»
Панки
25 мин.
Строится
3-комн. квартира 70,45 м2 21 842 956
Этаж 11/13
МО, ЖК «Новотомилино»
Панки
25 мин.
Строится
Посмотреть 24 квартиры в ЖК «Новотомилино»

Скидки и спецпредложения от застройщиков

ЖК «Новотомилино» на карте

Выгодные предложения на новостройки

Отзывы о ЖК «Новотомилино»

Самый полезный отзыв
А
01 марта 2020
Оценка:
Экология
Способы покупки
Расположение
Звонил в офис продаж, сказали, что скоро уже откроют продажи, получили всю необходимую документацию - заключение о соответствии компании и проектной декларации, кажется так называется
Показать все комментарии
Ответить
Полезный отзыв?
Самый новый отзыв
ЕД
30 мая
Оценка:
Транспортная доступность
Внешний вид фасада
Расположение
До станций Томилино и Панки, конечно, не пять минут пешком, но относительно недалеко – вполне можно добираться. И дома симпатичные, глаз радуют! Особенно порадовал уровень ремонта, он явно выше среднего. Сразу видно, что застройщик не экономил на материалах и отделке.
Ответить
Полезный отзыв?
Добавьте отзыв, заполнив личные данные, или сначала войдите на сайт, тогда информация будет автоматически взята из личного профиля.
Оценка*