Рейтинг@Mail.ru
Переверните экран
Новостройки Квартиры Ипотека Новостройки Москвы Новостройки Подмосковья Новостройки Новой Москвы Готовые новостройки Новостройки на карте Акции от застройщиков Коммерческие помещения Продавцы и застройщики Панорамы новостроек Видеообзор новостроек Экспертиза новостроек Экология Москвы и Подмосковья Студии 1-комнатные 2-комнатные 3-комнатные Квартиры на карте Ипотечный калькулятор Семейная ипотека Военная ипотека Банки и программы Медиа Новости недвижимости Мнение эксперта Аналитика рынка Покупателю Экспертиза новостроек Эксперты и авторы О проекте Контакты Реклама на сайте Vk Youtube Telegram Дзен Машиноместа Апартаменты #траншевая ипотека #рассрочка IT-ипотека Квартиры со скидками до 40% Видео 360° новостроек Субсидированная застройщиком Rutube Поиск дома в Москве Программа реновации в Москве Новостройки премиум-класса Новостройки бизнес-класса Рассрочка Траншевая ипотека ГАЛС Дома и коттеджи Бизнес-центры Бизнес-центры в Москве Бизнес-центры рядом с метро Строящиеся бизнес-центры Бизнес-центры класса A Бизнес-центры класса B ЛСР
Данная квартира является лидером продаж среди однокомнатных квартир в ЖК «Ильинойс» по данным Росреестра
1-комн. квартира, 32.50 м2, 22 этаж
Срок сдачи 3 квартал 2028 года
8 457 909 
9 751 472
260 243 2
обновлено 5 декабря

Описание 1-комн. квартиры

Новостройка
Срок ГК
3 квартал 2028 года
Стадия строительства
котлован/фундамент
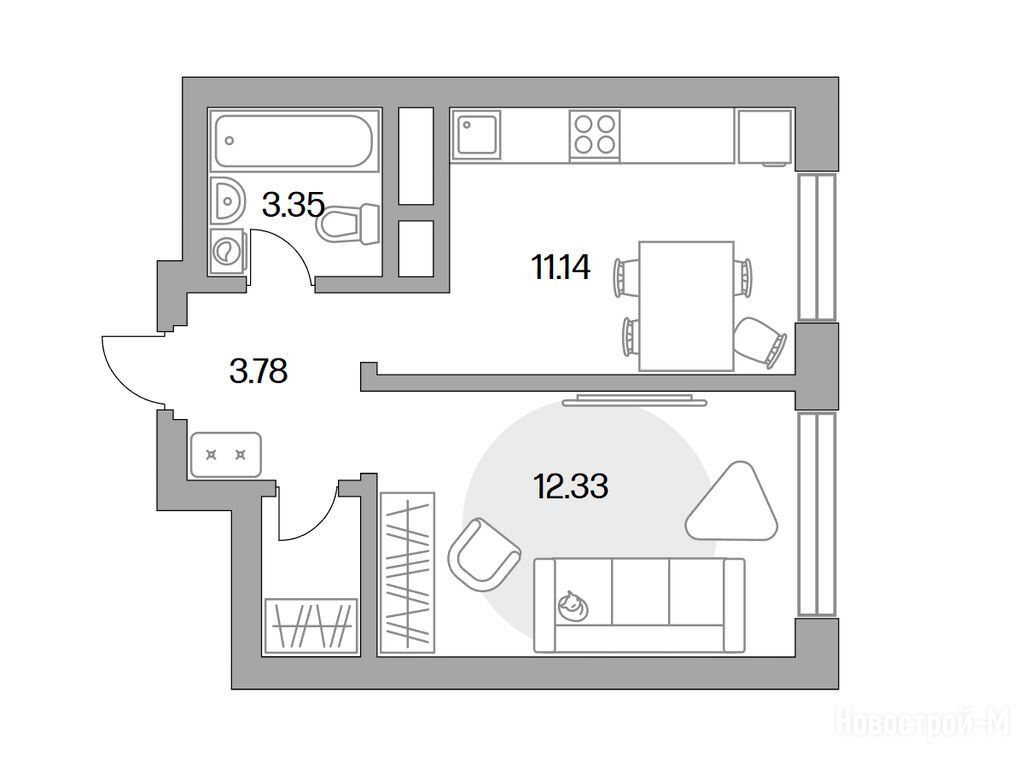
Общая площадь
32.50 м2
Жилая площадь
12.33 м2
Площадь кухни
11.14 м2
Этаж
22 / 22
Отделка
нет
Грузовой лифт
есть

Расположение 1-комн. квартиры

Станция МЦД
Дом
3
Адрес
ЖК «Ильинойс», корп. 3, секция 7

Способы покупки

Особенности

Продается однокомнатная квартира в новостройке ЖК «Ильинойс» по адресу Московская область, Красногорск городской округ, Красногорск, ЖК «Ильинойс», корп. 3. Общая площадь квартиры - 32.5 кв. м. Тип проекта, по которому построен дом — Монолитно-кирпичный, компания-застройщик — ГК «Гранель», ООО СЗ ОФЕРТА. Стоимость квартиры — 8 457 909 руб. Способы оплаты можно уточнить у продавца. Срок сдачи — 3 квартал 2028. Более подробная информация по телефону.
ГК «Гранель»
ГК «Гранель»
Сданных 16
|
Строящихся 16
Время работы 09:00 — 21:00
Онлайн-сделка
Выбирайте квартиру в ЖК «Ильинойс» по ценам от застройщика

Похожие квартиры в ЖК «Ильинойс»

22 этаж
из 22 3 квартал 2028
Московская область, Красногорск городской округ
Красногорская
15 мин.
3
Корпус
нет
Отделка
2.80 м
Потолки
ЖК «Ильинойс»
8 457 909 9 751 472
Альфа-Банк, Всероссийский банк развития регионов, Азиатско-Тихоокеанский Банк, СберБанк, Совкомбанк, Банк Санкт-Петербург, Абсолют Банк, Примсоцбанк, Металлинвестбанк, Россельхозбанк, ДОМ.РФ, Уралсиб, Севергазбанк, Московский Кредитный Банк, МТС Банк, Сургутнефтегазбанк, ВТБ
6.00%
Ставка
30.10%
Первый взнос
от 50 709 /мес.
Все варианты
Посмотреть все спецпредложения
студия 25,98 м2 7 720 161
Этаж 2/24
МО, ЖК «Ильинойс»
Красногорская
15 мин.
Строится
1-комн. квартира 32,50 м2 9 894 158
Этаж 21/22
МО, ЖК «Ильинойс»
Красногорская
15 мин.
Строится
2-комн. квартира 36,94 м2 9 286 897
Этаж 16/22
МО, ЖК «Ильинойс»
Красногорская
15 мин.
Строится
3-комн. квартира 56,45 м2 13 997 779
Этаж 22/22 лоджия
МО, ЖК «Ильинойс»
Красногорская
15 мин.
Строится
студия 24,33 м2 6 666 227
Этаж 9/23
МО, ЖК «Ильинойс»
Красногорская
15 мин.
Строится
студия 24,35 м2 6 671 707
Этаж 9/23
МО, ЖК «Ильинойс»
Красногорская
15 мин.
Строится
студия 25,98 м2 7 169 341
Этаж 13/23
МО, ЖК «Ильинойс»
Красногорская
15 мин.
Строится
Посмотреть 37 квартир в ЖК «Ильинойс»
1-комн. квартира 32,50 м2 8 457 909
Этаж 22/22
МО, ЖК «Ильинойс»
Красногорская
15 мин.
Строится
1-комн. квартира 32,80 м2 9 985 489
Этаж 20/22
МО, ЖК «Ильинойс»
Красногорская
15 мин.
Строится
Посмотреть 17 квартир в ЖК «Ильинойс»
2-комн. квартира 35,21 м2 9 266 903
Этаж 19/23
МО, ЖК «Ильинойс»
Красногорская
15 мин.
Строится
2-комн. квартира 35,41 м2 9 319 541
Этаж 22/23
МО, ЖК «Ильинойс»
Красногорская
15 мин.
Строится
2-комн. квартира 35,48 м2 10 731 690
Этаж 17/22
МО, ЖК «Ильинойс»
Красногорская
15 мин.
Строится
2-комн. квартира 36,94 м2 9 286 897
Этаж 16/22
МО, ЖК «Ильинойс»
Красногорская
15 мин.
Строится
Посмотреть 127 квартир в ЖК «Ильинойс»
3-комн. квартира 52,68 м2 12 778 401
Этаж 2/22 лоджия
МО, ЖК «Ильинойс»
Красногорская
15 мин.
Строится
3-комн. квартира 52,79 м2 15 552 733
Этаж 22/22 лоджия
МО, ЖК «Ильинойс»
Красногорская
15 мин.
Строится
3-комн. квартира 54,89 м2 13 314 473
Этаж 2/22 лоджия
МО, ЖК «Ильинойс»
Красногорская
15 мин.
Строится
3-комн. квартира 55,01 м2 13 775 762
Этаж 21/22 лоджия
МО, ЖК «Ильинойс»
Красногорская
15 мин.
Строится
Посмотреть 70 квартир в ЖК «Ильинойс»

Скидки и спецпредложения от застройщиков

ЖК «Ильинойс» на карте

Выгодные предложения на новостройки

Отзывы о ЖК «Ильинойс»

Самый полезный отзыв
О
29 сентября 2022
Оценка:
Способы покупки
Я на протяжении года живу в Красногорске, и влюбилась в этот город. Недавно увидела рекламу нового жилого комплекса Ильинойс, а так как мне бы хотелось приобрести квартиру на этапе застройки, это был отличный вариант для покупки. Оформила все быстро, в офисе продаж мне все объяснили и рассказали, жду срок сдачи))
Ответить
Полезный отзыв?
Самый новый отзыв
О
17 ноября
Оценка:
Транспортная доступность
Расположение
От ЖК «Ильинойс» до транспорта близко - по времени выходит рационально, всего 15 мин до мцд.
Ответить
Полезный отзыв?
Добавьте отзыв, заполнив личные данные, или сначала войдите на сайт, тогда информация будет автоматически взята из личного профиля.
Оценка*