Рейтинг@Mail.ru
Переверните экран
Новостройки Квартиры Ипотека Новостройки Москвы Новостройки Подмосковья Новостройки Новой Москвы Готовые новостройки Новостройки на карте Акции от застройщиков Коммерческие помещения Продавцы и застройщики Панорамы новостроек Видеообзор новостроек Экспертиза новостроек Экология Москвы и Подмосковья Студии 1-комнатные 2-комнатные 3-комнатные Квартиры на карте Ипотечный калькулятор Семейная ипотека Военная ипотека Банки и программы Медиа Новости недвижимости Мнение эксперта Аналитика рынка Покупателю Экспертиза новостроек Эксперты и авторы О проекте Контакты Реклама на сайте Vk Youtube Telegram Дзен Машиноместа Апартаменты #траншевая ипотека #рассрочка IT-ипотека Квартиры со скидками до 40% Видео 360° новостроек Субсидированная застройщиком Rutube Поиск дома в Москве Программа реновации в Москве Новостройки премиум-класса Новостройки бизнес-класса Рассрочка Траншевая ипотека ГАЛС Дома и коттеджи Бизнес-центры Бизнес-центры в Москве Бизнес-центры рядом с метро Строящиеся бизнес-центры Бизнес-центры класса A Бизнес-центры класса B ЛСР
Данная квартира является лидером продаж среди однокомнатных квартир в ЖК City Bay (Сити Бэй) по данным Росреестра
1-комн. квартира, 51.00 м2, 53 этаж
Срок сдачи 2 квартал 2028 года
22 375 276 
23 552 922
438 731 2
обновлено 5 декабря

Описание 1-комн. квартиры

Новостройка
Срок ГК
2 квартал 2028 года
Стадия строительства
котлован/фундамент
Тип проекта
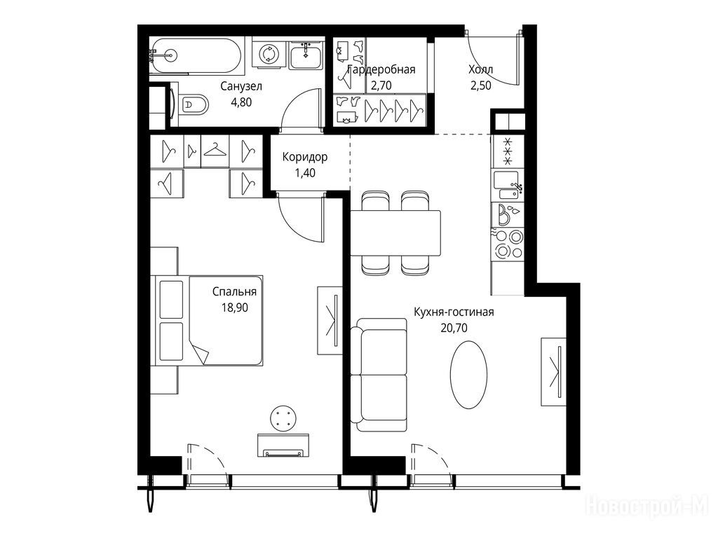
Общая площадь
51.00 м2
Этаж
53 / 59
Отделка
нет
Грузовой лифт
есть

Расположение 1-комн. квартиры

Локация
Станция МЦД
Станция МЦК
Дом
Pacific 1
Адрес
Волоколамское шоссе, д. 95-97, корп. Pacific 1, секция 1

Особенности

Продается однокомнатная квартира в новостройке ЖК City Bay (Сити Бэй) по адресу Москва, СЗАО, Покровское-Стрешнево, Волоколамское шоссе, д. 95-97, корп. Pacific 1. Общая площадь квартиры - 51 кв. м. Тип проекта, по которому построен дом — Монолитно-кирпичный, компания-застройщик — СЗ «Транспортно-пересадочный узел Лесопарковая». Стоимость квартиры — 22 375 276 руб. Способы оплаты можно уточнить у продавца. Срок сдачи — 2 квартал 2028. Более подробная информация по телефону.
Инфоцентр новостроек
Инфоцентр новостроек
+7 (499) 705-91-41
Время работы 9:00 — 21:00
Посмотреть все спецпредложения
студия 25,90 м2 15 493 104
Этаж 32/59
Москва, ЖК City Bay (Сити Бэй)
Трикотажная
5 мин.
Строится
студия 26,00 м2 14 982 526
Этаж 35/59
Москва, ЖК City Bay (Сити Бэй)
Трикотажная
5 мин.
Строится
студия 26,70 м2 15 200 179
Этаж 39/59
Москва, ЖК City Bay (Сити Бэй)
Трикотажная
5 мин.
Строится
студия 28,60 м2 16 654 504
Этаж 42/59
Москва, ЖК City Bay (Сити Бэй)
Трикотажная
5 мин.
Строится
Посмотреть 7 квартир в ЖК City Bay (Сити Бэй)
1-комн. квартира 33,00 м2 17 429 221
Этаж 25/59
Москва, ЖК City Bay (Сити Бэй)
Трикотажная
5 мин.
Строится
1-комн. квартира 33,10 м2 17 240 633
Этаж 28/59
Москва, ЖК City Bay (Сити Бэй)
Трикотажная
5 мин.
Строится
1-комн. квартира 34,00 м2 17 203 788
Этаж 20/59
Москва, ЖК City Bay (Сити Бэй)
Трикотажная
5 мин.
Строится
1-комн. квартира 36,30 м2 19 772 699
Этаж 4/15
Москва, ЖК City Bay (Сити Бэй)
Трикотажная
5 мин.
Строится
Посмотреть 379 квартир в ЖК City Bay (Сити Бэй)
2-комн. квартира 51,67 м2 23 357 664
Этаж 8/53
Москва, ЖК City Bay (Сити Бэй)
Трикотажная
5 мин.
Строится
2-комн. квартира 52,30 м2 23 543 833
Этаж 24/53
Москва, ЖК City Bay (Сити Бэй)
Трикотажная
5 мин.
Строится
2-комн. квартира 52,40 м2 24 032 540
Этаж 29/53
Москва, ЖК City Bay (Сити Бэй)
Трикотажная
5 мин.
Строится
2-комн. квартира 52,54 м2 23 854 720
Этаж 10/53
Москва, ЖК City Bay (Сити Бэй)
Трикотажная
5 мин.
Строится
Посмотреть 396 квартир в ЖК City Bay (Сити Бэй)
3-комн. квартира 73,72 м2 33 619 195
Этаж 36/49
Москва, ЖК City Bay (Сити Бэй)
Трикотажная
5 мин.
Строится
3-комн. квартира 74,56 м2 31 426 078
Этаж 23/27
Москва, ЖК City Bay (Сити Бэй)
Трикотажная
5 мин.
Строится
3-комн. квартира 76,10 м2 27 823 598
Этаж 46/59
Москва, ЖК City Bay (Сити Бэй)
Трикотажная
5 мин.
Строится
3-комн. квартира 76,17 м2 28 659 473
Этаж 3/49
Москва, ЖК City Bay (Сити Бэй)
Трикотажная
5 мин.
Строится
Посмотреть 150 квартир в ЖК City Bay (Сити Бэй)
4-комн. квартира 94,69 м2 36 773 543
Этаж 36/48
Москва, ЖК City Bay (Сити Бэй)
Трикотажная
5 мин.
Строится
4-комн. квартира 95,27 м2 38 269 759
Этаж 46/49
Москва, ЖК City Bay (Сити Бэй)
Трикотажная
5 мин.
Строится
4-комн. квартира 96,08 м2 38 073 881
Этаж 45/48
Москва, ЖК City Bay (Сити Бэй)
Трикотажная
5 мин.
Строится
4-комн. квартира 99,29 м2 38 622 986
Этаж 39/48
Москва, ЖК City Bay (Сити Бэй)
Трикотажная
5 мин.
Строится
Посмотреть 43 квартиры в ЖК City Bay (Сити Бэй)

Скидки и спецпредложения от застройщиков

ЖК City Bay (Сити Бэй) на карте

Выгодные предложения на новостройки

Отзывы о ЖК City Bay (Сити Бэй)

Самый полезный отзыв
П
04 августа 2020
Оценка:
Недавно узнала, что начался старт продаж в ЖК Сити Бэй. В принципе, отличный комплекс должен получиться, да еще со своей набережной и видом на Москву-реку. Думаю, спрос на него будет большой, тем более, что этот комплекс от МР, а на сколько мне известно, строят они качественно и в срок
Ответить
Полезный отзыв?
Самый новый отзыв
РЕ
12 ноября
Оценка:
Хороший вариант, место шикарное, планировки удобные, цены неплохие, учитывая все плюсы
Ответить
Полезный отзыв?
Добавьте отзыв, заполнив личные данные, или сначала войдите на сайт, тогда информация будет автоматически взята из личного профиля.
Оценка*