Рейтинг@Mail.ru
Переверните экран
Новостройки Квартиры Ипотека Новостройки Москвы Новостройки Подмосковья Новостройки Новой Москвы Готовые новостройки Новостройки на карте Акции от застройщиков Коммерческие помещения Продавцы и застройщики Панорамы новостроек Видеообзор новостроек Экспертиза новостроек Экология Москвы и Подмосковья Студии 1-комнатные 2-комнатные 3-комнатные Квартиры на карте Ипотечный калькулятор Семейная ипотека Военная ипотека Банки и программы Медиа Новости недвижимости Мнение эксперта Аналитика рынка Покупателю Экспертиза новостроек Эксперты и авторы О проекте Контакты Реклама на сайте Vk Youtube Telegram Дзен Машиноместа Апартаменты #траншевая ипотека #рассрочка IT-ипотека Квартиры со скидками до 40% Видео 360° новостроек Субсидированная застройщиком Rutube Поиск дома в Москве Программа реновации в Москве Новостройки премиум-класса Новостройки бизнес-класса Рассрочка Траншевая ипотека Дома и коттеджи Бизнес-центры Бизнес-центры в Москве Бизнес-центры рядом с метро Строящиеся бизнес-центры Бизнес-центры класса A Бизнес-центры класса B
Данная квартира является лидером продаж среди однокомнатных квартир в Holland park по данным Росреестра
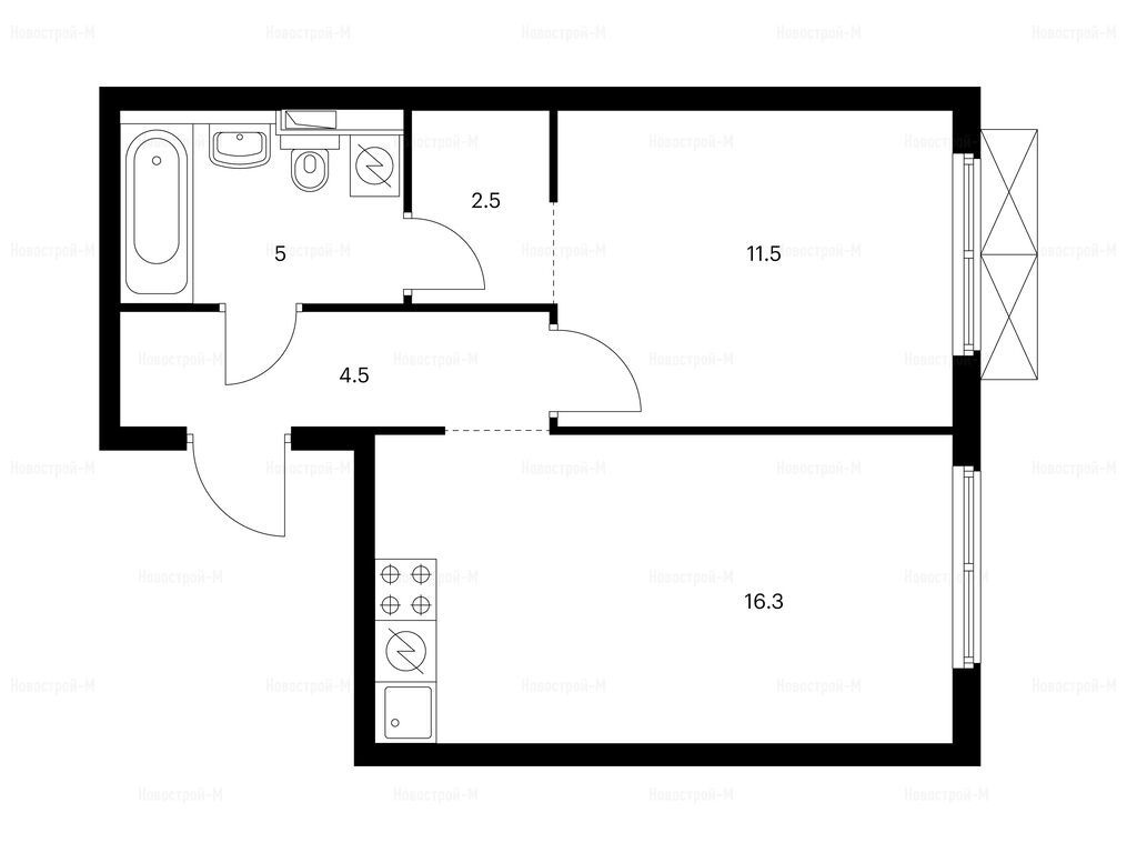
1-комн. квартира, 39.80 м2, 14 этаж
Срок сдачи 1 квартал 2026 года
22 272 876 
24 747 640
559 620 2
обновлено 30 января
52.9 59.7 36.9 24.2 59.6 88.3 40.6 35 35 52.8 39.8

Описание 1-комн. квартиры

Новостройка
Срок ГК
1 квартал 2026 года
Тип проекта
монолитно-панельный
Общая площадь
39.80 м2
Этаж
14 / 14
Отделка
нет
Грузовой лифт
есть

Расположение 1-комн. квартиры

Локация
Метро
Станция МЦД
Дом
8
Адрес
Волоколамское ш., вл. 71/13, корп. 8, секция 3

Способы покупки

Особенности

Продается однокомнатная квартира в новостройке Holland park по адресу Москва, СЗАО, Покровское-Стрешнево, Волоколамское ш., вл. 71/13, корп. 8. Общая площадь квартиры - 39.8 кв. м. Тип проекта, по которому построен дом — Монолитно-панельный, компания-застройщик — ПИК, ООО «СЗ «Стадион «Спартак». Стоимость квартиры — 22 272 876 руб. Способы оплаты можно уточнить у продавца. Срок сдачи — 1 квартал 2026. Более подробная информация по телефону.
ПИК
ПИК
Сданных 96
|
Строящихся 38
Время работы 02:00 — 21:00
Онлайн-сделка
Выбирайте квартиру в Holland park по ценам от застройщика
Посмотреть все спецпредложения
1-комн. квартира 32,90 м2 19 082 000
Этаж 16/24
Москва, Holland park
Спартак
5 мин.
Строится
1-комн. квартира 33,10 м2 22 289 540
Этаж 17/24
Москва, Holland park
Спартак
5 мин.
Строится
1-комн. квартира 35,00 м2 23 058 000
Этаж 24/24
Москва, Holland park
Спартак
5 мин.
Строится
1-комн. квартира 36,80 м2 19 261 120
Этаж 2/24
Москва, Holland park
Спартак
5 мин.
Строится
1-комн. квартира 35,00 м2 23 058 000
Этаж 24/24
Москва, Holland park
Спартак
5 мин.
Строится
1-комн. квартира 37,00 м2 21 548 430
Этаж 3/24
Москва, Holland park
Спартак
5 мин.
Строится
1-комн. квартира 37,10 м2 21 539 889
Этаж 3/24
Москва, Holland park
Спартак
5 мин.
Строится
1-комн. квартира 40,60 м2 22 475 754
Этаж 14/14
Москва, Holland park
Спартак
5 мин.
Строится
Посмотреть 6 квартир в Holland park
2-комн. квартира 52,90 м2 29 682 190
Этаж 2/14
Москва, Holland park
Спартак
5 мин.
Строится
2-комн. квартира 53,30 м2 30 370 340
Этаж 11/14
Москва, Holland park
Спартак
5 мин.
Строится
2-комн. квартира 57,90 м2 30 912 810
Этаж 24/24
Москва, Holland park
Спартак
5 мин.
Строится
Посмотреть 5 квартир в Holland park
3-комн. квартира 73,40 м2 34 725 540
Этаж 1/24
Москва, Holland park
Спартак
5 мин.
Строится
3-комн. квартира 75,50 м2 35 734 150
Этаж 2/24
Москва, Holland park
Спартак
5 мин.
Строится
3-комн. квартира 88,30 м2 40 264 800
Этаж 2/14
Москва, Holland park
Спартак
5 мин.
Строится
3-комн. квартира 88,70 м2 40 784 260
Этаж 13/14
Москва, Holland park
Спартак
5 мин.
Строится

Скидки и спецпредложения от застройщиков

Holland park на карте

Выгодные предложения на новостройки

Самый полезный отзыв
ИИ
06 февраля 2019
Оценка:
Транспортная доступность
Готовность
Когда уже ПИК разродится и выведет в продажу этот ЖК))
Ответить
Полезный отзыв?
Самый новый отзыв
БЮ
19 мая 2025
Оценка:
Транспортная доступность
Социальная инфраструктура
Двор, окружение
Расположение
Хорошее расположение комплекса: и метро и река рядом. Вокруг много зелени, парков. Хорошо развита инфраструктура. Что еще нужно для комфортного проживания
Ответить
Полезный отзыв?
Добавьте отзыв, заполнив личные данные, или сначала войдите на сайт, тогда информация будет автоматически взята из личного профиля.
Оценка*