Рейтинг@Mail.ru
Переверните экран
Новостройки Квартиры Ипотека Новостройки Москвы Новостройки Подмосковья Новостройки Новой Москвы Готовые новостройки Новостройки на карте Акции от застройщиков Коммерческие помещения Продавцы и застройщики Панорамы новостроек Видеообзор новостроек Экспертиза новостроек Экология Москвы и Подмосковья Студии 1-комнатные 2-комнатные 3-комнатные Квартиры на карте Ипотечный калькулятор Семейная ипотека Военная ипотека Банки и программы Медиа Новости недвижимости Мнение эксперта Аналитика рынка Покупателю Экспертиза новостроек Эксперты и авторы О проекте Контакты Реклама на сайте Vk Youtube Telegram Дзен Машиноместа Апартаменты #траншевая ипотека #рассрочка ИТ-ипотека Квартиры со скидками до 40% Видео 360° новостроек Субсидированная застройщиком Rutube Поиск дома в Москве Программа реновации в Москве Новостройки премиум-класса Новостройки бизнес-класса Рассрочка Траншевая ипотека Дома и коттеджи Коттеджные поселки в Новой Москве Готовые коттеджные поселки Строящиеся коттеджные поселки Коттеджные поселки в лесу Коттеджные поселки у водоема Коттеджные поселки в ипотеку Бизнес-центры Коттеджи Ипотека со ставкой 0,1%
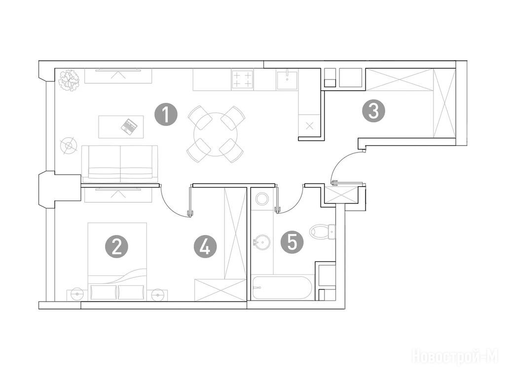
2-комн. квартира, 51.00 м2, 4 этаж
Срок сдачи 4 квартал 2027 года
26 520 000 
520 000 2
обновлено 13 мая

Описание 2-комн. квартиры

Застройщик
ГК «Основа» ООО «СЗ Останкино»
Срок ГК
4 квартал 2027 года
Стадия строительства
Общая площадь
51.00 м2
Этаж
4 / 29
Отделка
предчистовая
Грузовой лифт
есть

Расположение 2-комн. квартиры

Локация
Станция МЦД
Станция МЦК
Дом
4
Адрес
ул. Ботаническая, д. 29, секция 1

Способы покупки

Особенности

Продается двухкомнатная квартира в новостройке ЖК «Вэри на Ботанической» по адресу Москва, СВАО, Марфино, ул. Ботаническая, д. 29. Общая площадь квартиры - 51 кв. м. Тип проекта, по которому построен дом — Монолитно-кирпичный, компания-застройщик — ГК «Основа», ООО «СЗ Останкино». Стоимость квартиры — 26 520 000 руб. Способы оплаты можно уточнить у продавца. Срок сдачи — 4 квартал 2027. Более подробная информация по телефону.

Правовые документы

Инфоцентр новостроек
Инфоцентр новостроек
+7 (499) 705-91-41
Время работы 9:00 — 21:00

Похожие квартиры в ЖК «Вэри на Ботанической»

2 этаж
из 29 4 квартал 2027
Москва, СВАО
Фонвизинская
15 мин.
4
Корпус
предчистовая
Отделка
3.00 м
Потолки
ЖК «Вэри на Ботанической»
23 730 300
СберБанк, Промсвязьбанк, ДОМ.РФ, Московский Кредитный Банк, Альфа-Банк, Газпромбанк
6.00%
Ставка
20.10%
Первый взнос
от 142 275 /мес.
Все варианты
3 этаж
из 29 4 квартал 2027
Москва, СВАО
Фонвизинская
15 мин.
4
Корпус
предчистовая
Отделка
3.00 м
Потолки
ЖК «Вэри на Ботанической»
26 469 000
СберБанк, Промсвязьбанк, ДОМ.РФ, Московский Кредитный Банк, Альфа-Банк, Газпромбанк
6.00%
Ставка
20.10%
Первый взнос
от 158 695 /мес.
Все варианты
7 этаж
из 29 4 квартал 2027
Москва, СВАО
Фонвизинская
15 мин.
4
Корпус
предчистовая
Отделка
3.00 м
Потолки
ЖК «Вэри на Ботанической»
26 673 000
СберБанк, Промсвязьбанк, ДОМ.РФ, Московский Кредитный Банк, Альфа-Банк, Газпромбанк
6.00%
Ставка
20.10%
Первый взнос
от 159 918 /мес.
Все варианты
10 этаж
из 29 4 квартал 2027
Москва, СВАО
Фонвизинская
15 мин.
4
Корпус
предчистовая
Отделка
3.00 м
Потолки
ЖК «Вэри на Ботанической»
26 928 000
СберБанк, Промсвязьбанк, ДОМ.РФ, Московский Кредитный Банк, Альфа-Банк, Газпромбанк
6.00%
Ставка
20.10%
Первый взнос
от 161 447 /мес.
Все варианты
13 этаж
из 29 4 квартал 2027
Москва, СВАО
Фонвизинская
15 мин.
4
Корпус
предчистовая
Отделка
3.00 м
Потолки
ЖК «Вэри на Ботанической»
27 081 000
СберБанк, Промсвязьбанк, ДОМ.РФ, Московский Кредитный Банк, Альфа-Банк, Газпромбанк
6.00%
Ставка
20.10%
Первый взнос
от 162 364 /мес.
Все варианты
студия 25,80 м2 18 318 000
Этаж 26/29
Москва, ЖК «Вэри на Ботанической»
Фонвизинская
15 мин.
Строится
Этаж 8/29
Москва, ЖК «Вэри на Ботанической»
Фонвизинская
15 мин.
Строится
студия 26,10 м2 18 400 500
Этаж 26/29
Москва, ЖК «Вэри на Ботанической»
Фонвизинская
15 мин.
Строится
Этаж 11/29
Москва, ЖК «Вэри на Ботанической»
Фонвизинская
15 мин.
Строится
Посмотреть 19 квартир в ЖК «Вэри на Ботанической»
2-комн. квартира 40,50 м2 22 882 500
Этаж 21/29
Москва, ЖК «Вэри на Ботанической»
Фонвизинская
15 мин.
Строится
2-комн. квартира 40,70 м2 21 367 500
Этаж 2/29
Москва, ЖК «Вэри на Ботанической»
Фонвизинская
15 мин.
Строится
2-комн. квартира 41,10 м2 22 522 800
Этаж 14/29
Москва, ЖК «Вэри на Ботанической»
Фонвизинская
15 мин.
Строится
2-комн. квартира 41,60 м2 27 372 800
Этаж 26/29
Москва, ЖК «Вэри на Ботанической»
Фонвизинская
15 мин.
Строится
Посмотреть 63 квартиры в ЖК «Вэри на Ботанической»
3-комн. квартира 59,90 м2 30 069 800
Этаж 3/29
Москва, ЖК «Вэри на Ботанической»
Фонвизинская
15 мин.
Строится
3-комн. квартира 60,70 м2 30 289 300
Этаж 2/29
Москва, ЖК «Вэри на Ботанической»
Фонвизинская
15 мин.
Строится
3-комн. квартира 61,00 м2 27 590 300
Этаж 2/29
Москва, ЖК «Вэри на Ботанической»
Фонвизинская
15 мин.
Строится
3-комн. квартира 61,10 м2 32 138 600
Этаж 12/29
Москва, ЖК «Вэри на Ботанической»
Фонвизинская
15 мин.
Строится
Посмотреть 50 квартир в ЖК «Вэри на Ботанической»
4-комн. квартира 91,00 м2 47 320 000
Этаж 16/29
Москва, ЖК «Вэри на Ботанической»
Фонвизинская
15 мин.
Строится
4-комн. квартира 91,30 м2 45 741 300
Этаж 7/29
Москва, ЖК «Вэри на Ботанической»
Фонвизинская
15 мин.
Строится
Этаж 14/29
Москва, ЖК «Вэри на Ботанической»
Фонвизинская
15 мин.
Строится
4-комн. квартира 92,00 м2 46 460 000
Этаж 11/29
Москва, ЖК «Вэри на Ботанической»
Фонвизинская
15 мин.
Строится
Посмотреть 14 квартир в ЖК «Вэри на Ботанической»

Скидки и спецпредложения от застройщиков

ЖК «Вэри на Ботанической» на карте

Выгодные предложения на новостройки

Отзывы о ЖК «Вэри на Ботанической»

Самый полезный отзыв
Н
21 июля 2021
Оценка:
Не знаю, мне проект прям нравится. Понятное дело, что что-то поменяется к моменту сдачи, но пока все устраивает. На людей с их жалобами я внимания не обращаю, по сути ЖК хороший. Мост мне вообще понравился, на сайте смотрел как будет выглядеть, и эт оч стильно, и я нигде не видел подобного.
Ответить
Самый новый отзыв
М
06 мая
Оценка:
Раньше мысль о том, что можно жить у парка/леса казалось чем-то нереальным, все-таки мегаполис. С марта этого года - каждое утро начинается у меня с видом на главный Ботанический сад. Все-таки удачно мы купили здесь квартиру: сданный дом, ключи получили сразу и быстро сделали ремонт и переехали.
Ответить

Оставить отзыв

Добавьте отзыв, заполнив личные данные, или сначала войдите на сайт, тогда информация будет автоматически взята из личного профиля.
Оценка*