Рейтинг@Mail.ru
Переверните экран
Новостройки Квартиры Ипотека Новостройки Москвы Новостройки Подмосковья Новостройки Новой Москвы Готовые новостройки Новостройки на карте Акции от застройщиков Коммерческие помещения Продавцы и застройщики Панорамы новостроек Видеообзор новостроек Экспертиза новостроек Экология Москвы и Подмосковья Студии 1-комнатные 2-комнатные 3-комнатные Квартиры на карте Ипотечный калькулятор Семейная ипотека Военная ипотека Банки и программы Медиа Новости недвижимости Мнение эксперта Аналитика рынка Покупателю Экспертиза новостроек Эксперты и авторы О проекте Контакты Реклама на сайте Vk Youtube Telegram Дзен Машиноместа Апартаменты #траншевая ипотека #рассрочка ИТ-ипотека Квартиры со скидками до 40% Видео 360° новостроек Субсидированная застройщиком Rutube Поиск дома в Москве Программа реновации в Москве Новостройки премиум-класса Новостройки бизнес-класса Рассрочка Траншевая ипотека Дома и коттеджи Коттеджные поселки в Новой Москве Готовые коттеджные поселки Строящиеся коттеджные поселки Коттеджные поселки в лесу Коттеджные поселки у водоема Коттеджные поселки в ипотеку Бизнес-центры Коттеджи Ипотека со ставкой 0,1%
2-комн. квартира, 62.20 м2, 17 этаж
Сдан
9 952 000 
160 000 2
обновлено 13 мая

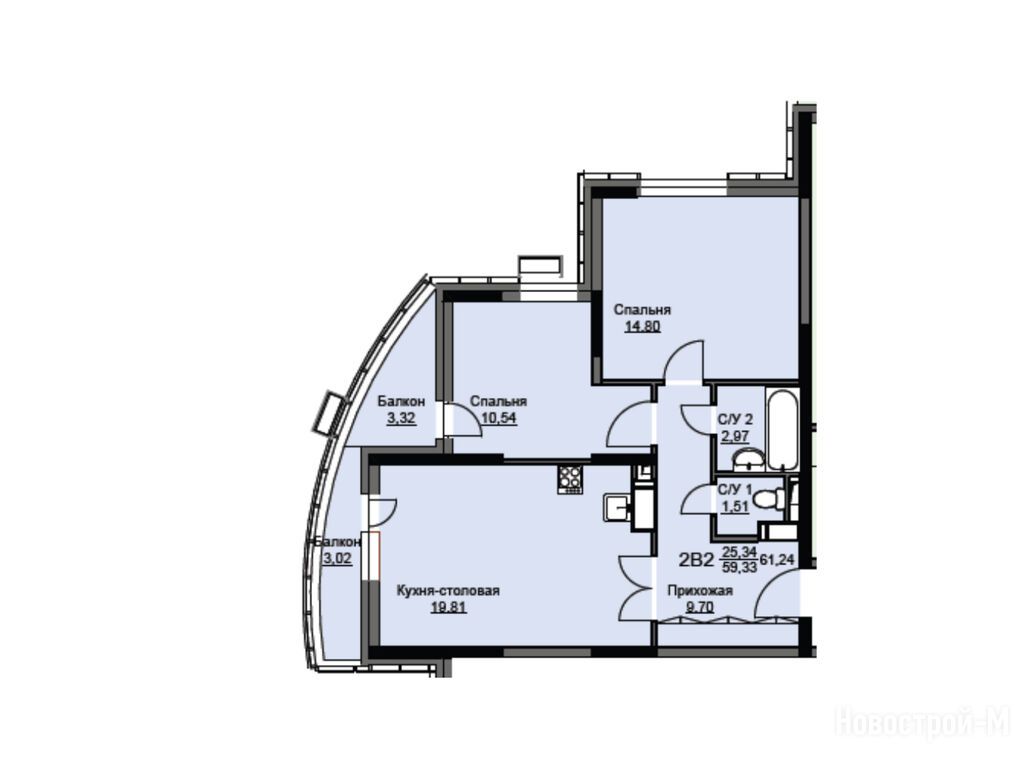
Описание 2-комн. квартиры

Застройщик
Срок ГК
Дом сдан
Стадия строительства
выдача ключей + заселение
Общая площадь
62.20 м2
Жилая площадь
25.34 м2
Площадь кухни
19.81 м2
Этаж
17 / 17
Отделка
нет

Расположение 2-комн. квартиры

Метро
Ж/Д-станция
Щёлково
15 мин.
Дом
Дом №11
Адрес
жилой комплекс Соболевка, 11, секция 1

Особенности

Продается двухкомнатная квартира в новостройке ЖК «Соболевка» (Щелково) по адресу Московская область, Щелковский район, Щелково, жилой комплекс Соболевка, 11. Общая площадь квартиры - 62.2 кв. м. Тип проекта, по которому построен дом — Монолитно-кирпичный, компания-застройщик — Спутник, Гранд. Стоимость квартиры — 9 952 000 руб. Способы оплаты можно уточнить у продавца. Более подробная информация по телефону.
Инфоцентр новостроек
Инфоцентр новостроек
Время работы 9:00 — 21:00
Выбирайте квартиру в ЖК «Соболевка» (Щелково) по ценам от застройщика
студия 31,20 м2 4 836 000
Этаж 1/17
МО, ЖК «Соболевка» (Щелково)
Щелковская
30 мин.
Сдан
студия 31,50 м2 5 512 500
Этаж 1/17
МО, ЖК «Соболевка» (Щелково)
Щелковская
30 мин.
Сдан
студия 31,80 м2 4 929 000
Этаж 4/17
МО, ЖК «Соболевка» (Щелково)
Щелковская
30 мин.
Сдан
студия 31,90 м2 5 582 500
Этаж 4/17
МО, ЖК «Соболевка» (Щелково)
Щелковская
30 мин.
Сдан
Посмотреть 155 квартир в ЖК «Соболевка» (Щелково)
1-комн. квартира 44,30 м2 7 531 000
Этаж 1/17
МО, ЖК «Соболевка» (Щелково)
Щелковская
30 мин.
Сдан
1-комн. квартира 44,50 м2 7 120 000
Этаж 1/17
МО, ЖК «Соболевка» (Щелково)
Щелковская
30 мин.
Сдан
1-комн. квартира 45,50 м2 7 280 000
Этаж 1/17
МО, ЖК «Соболевка» (Щелково)
Щелковская
30 мин.
Сдан
1-комн. квартира 47,80 м2 8 604 000
Этаж 17/17
МО, ЖК «Соболевка» (Щелково)
Щелковская
30 мин.
Сдан
Посмотреть 12 квартир в ЖК «Соболевка» (Щелково)
2-комн. квартира 54,80 м2 9 864 000
Этаж 16/17
МО, ЖК «Соболевка» (Щелково)
Щелковская
30 мин.
Сдан
2-комн. квартира 54,90 м2 9 882 000
Этаж 17/17
МО, ЖК «Соболевка» (Щелково)
Щелковская
30 мин.
Сдан
2-комн. квартира 55,00 м2 9 900 000
Этаж 15/17
МО, ЖК «Соболевка» (Щелково)
Щелковская
30 мин.
Сдан
2-комн. квартира 58,00 м2 9 280 000
Этаж 8/17
МО, ЖК «Соболевка» (Щелково)
Щелковская
30 мин.
Сдан
Посмотреть 86 квартир в ЖК «Соболевка» (Щелково)
3-комн. квартира 73,80 м2 13 284 000
Этаж 2/17
МО, ЖК «Соболевка» (Щелково)
Щелковская
30 мин.
Сдан
3-комн. квартира 74,30 м2 11 516 500
Этаж 17/17
МО, ЖК «Соболевка» (Щелково)
Щелковская
30 мин.
Сдан
3-комн. квартира 74,70 м2 13 446 000
Этаж 13/17
МО, ЖК «Соболевка» (Щелково)
Щелковская
30 мин.
Сдан
3-комн. квартира 75,20 м2 13 536 000
Этаж 15/17
МО, ЖК «Соболевка» (Щелково)
Щелковская
30 мин.
Сдан
Посмотреть 18 квартир в ЖК «Соболевка» (Щелково)

Скидки и спецпредложения от застройщиков

ЖК «Соболевка» (Щелково) на карте

Выгодные предложения на новостройки

Отзывы о ЖК «Соболевка» (Щелково)

Самый полезный отзыв
НС
13 сентября 2022
Оценка:
Достоинства
Планировки
Способы покупки
Расположение
Хорошо отношусь к жилым проектам такого рода. интересный внешний вид, практичное расположение - рядом с транспортными развязками. а в этом случае так вообще - прекрасное расположение на природе
Ответить
Самый новый отзыв
ОА
15 мая 2025
Оценка:
Достоинства
Социальная инфраструктура
Планировки
Внешний вид фасада
Расположение
Выбирала место для комфортной жизни с детьми, изучала учебные учраждения - рядом Щёлковская гимназия, детские сады, больница и много других заведений социальной инфраструктуры. Квартир готовых подходящих не оказалось, взяла в стройке, благо уже скоро сдача планируется
Ответить

Оставить отзыв

Добавьте отзыв, заполнив личные данные, или сначала войдите на сайт, тогда информация будет автоматически взята из личного профиля.
Оценка*