Рейтинг@Mail.ru
Переверните экран
Новостройки Квартиры Ипотека Новостройки Москвы Новостройки Подмосковья Новостройки Новой Москвы Готовые новостройки Новостройки на карте Акции от застройщиков Коммерческие помещения Продавцы и застройщики Панорамы новостроек Видеообзор новостроек Экспертиза новостроек Экология Москвы и Подмосковья Студии 1-комнатные 2-комнатные 3-комнатные Квартиры на карте Ипотечный калькулятор Семейная ипотека Военная ипотека Банки и программы Медиа Новости недвижимости Мнение эксперта Аналитика рынка Покупателю Экспертиза новостроек Эксперты и авторы О проекте Контакты Реклама на сайте Vk Youtube Telegram Дзен Машиноместа Апартаменты #траншевая ипотека #рассрочка IT-ипотека Квартиры со скидками до 40% Видео 360° новостроек Субсидированная застройщиком Rutube Поиск дома в Москве Программа реновации в Москве Новостройки премиум-класса Новостройки бизнес-класса Рассрочка Траншевая ипотека ГАЛС Дома и коттеджи Бизнес-центры Бизнес-центры в Москве Бизнес-центры рядом с метро Строящиеся бизнес-центры Бизнес-центры класса A Бизнес-центры класса B ЛСР
Данная квартира является лидером продаж среди двухкомнатных квартир в ЖК Rakurs (Ракурс) по данным Росреестра
2-комн. квартира, 82.60 м2, 4 этаж
Срок сдачи 1 квартал 2028 года
39 601 661 
479 439 2
обновлено 5 декабря

Описание 2-комн. квартиры

Новостройка
Застройщик
Dar (Дар) СЗ ЛБМ ИНЖИНИРИНГ
Срок ГК
1 квартал 2028 года
Стадия строительства
монтаж нижних этажей
Тип проекта
Общая площадь
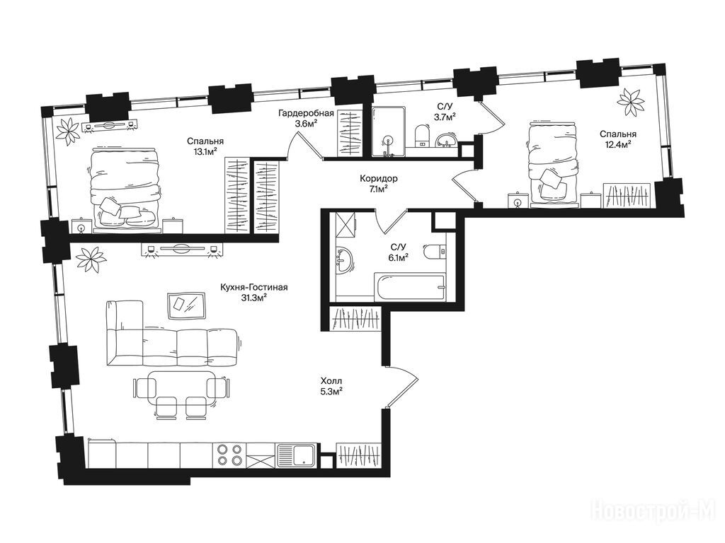
82.60 м2
Жилая площадь
25.50 м2
Площадь кухни
31.30 м2
Этаж
4 / 13
Отделка
нет
Грузовой лифт
есть

Расположение 2-комн. квартиры

Локация
Станция МЦД
Станция МЦК
Дом
4
Адрес
ул. Маршала Бирюзова, вл. 1, секция 4

Способы покупки

Особенности

Продается двухкомнатная квартира в новостройке ЖК Rakurs (Ракурс) по адресу Москва, СЗАО, Щукино, ул. Маршала Бирюзова, вл. 1. Общая площадь квартиры - 82.6 кв. м. Тип проекта, по которому построен дом — Монолит, компания-застройщик — Dar (Дар), СЗ ЛБМ ИНЖИНИРИНГ. Стоимость квартиры — 39 601 661 руб. Способы оплаты можно уточнить у продавца. Срок сдачи — 1 квартал 2028. Более подробная информация по телефону.
Dar (Дар)
Dar (Дар)
Сданных 0
|
Строящихся 3
Время работы 09:00 — 21:00
Выбирайте квартиру в ЖК Rakurs (Ракурс) по ценам от застройщика
Посмотреть все спецпредложения
1-комн. квартира 28,70 м2 19 218 295
Этаж 5/44
Москва, ЖК Rakurs (Ракурс)
Зорге
5 мин.
Строится
1-комн. квартира 28,80 м2 24 123 485
Этаж 26/26
Москва, ЖК Rakurs (Ракурс)
Зорге
5 мин.
Строится
1-комн. квартира 28,90 м2 18 518 860
Этаж 8/26
Москва, ЖК Rakurs (Ракурс)
Зорге
5 мин.
Строится
1-комн. квартира 34,90 м2 23 095 773
Этаж 29/44
Москва, ЖК Rakurs (Ракурс)
Зорге
5 мин.
Строится
Посмотреть 48 квартир в ЖК Rakurs (Ракурс)
2-комн. квартира 51,90 м2 28 330 082
Этаж 2/18
Москва, ЖК Rakurs (Ракурс)
Зорге
5 мин.
Строится
2-комн. квартира 52,40 м2 35 024 789
Этаж 26/26
Москва, ЖК Rakurs (Ракурс)
Зорге
5 мин.
Строится
2-комн. квартира 53,60 м2 27 404 179
Этаж 4/26
Москва, ЖК Rakurs (Ракурс)
Зорге
5 мин.
Строится
2-комн. квартира 53,80 м2 29 659 187
Этаж 27/44
Москва, ЖК Rakurs (Ракурс)
Зорге
5 мин.
Строится
Посмотреть 48 квартир в ЖК Rakurs (Ракурс)
3-комн. квартира 76,90 м2 38 749 987
Этаж 20/44
Москва, ЖК Rakurs (Ракурс)
Зорге
5 мин.
Строится
3-комн. квартира 77,50 м2 36 453 443
Этаж 8/44
Москва, ЖК Rakurs (Ракурс)
Зорге
5 мин.
Строится
3-комн. квартира 77,60 м2 40 573 548
Этаж 35/44
Москва, ЖК Rakurs (Ракурс)
Зорге
5 мин.
Строится
3-комн. квартира 81,00 м2 40 848 786
Этаж 12/18
Москва, ЖК Rakurs (Ракурс)
Зорге
5 мин.
Строится
Посмотреть 22 квартиры в ЖК Rakurs (Ракурс)
4-комн. квартира 101,80 м2 54 463 509
Этаж 22/26
Москва, ЖК Rakurs (Ракурс)
Зорге
5 мин.
Строится
4-комн. квартира 102,00 м2 49 208 472
Этаж 17/26
Москва, ЖК Rakurs (Ракурс)
Зорге
5 мин.
Строится
4-комн. квартира 103,70 м2 52 708 118
Этаж 30/44
Москва, ЖК Rakurs (Ракурс)
Зорге
5 мин.
Строится
4-комн. квартира 106,20 м2 54 185 258
Этаж 34/44
Москва, ЖК Rakurs (Ракурс)
Зорге
5 мин.
Строится
Посмотреть 8 квартир в ЖК Rakurs (Ракурс)

Скидки и спецпредложения от застройщиков

ЖК Rakurs (Ракурс) на карте

Выгодные предложения на новостройки

Отзывы о ЖК Rakurs (Ракурс)

Самый полезный отзыв
Т
27 сентября 2024
Оценка:
Точно будет выделяться на фоне других домов в районе - 3 высокие башни с разной этажностью. Наверное, будут красивые виды на центр.
Ответить
Полезный отзыв?
Самый новый отзыв
А
26 сентября
Оценка:
Район суперский, еще будучи студентом хотел тут жить. Взял студию в жк Ракурс. Дом ещё в стадии строительства, обещают закончить только через 3 года, так что ждать нехило еще. Проект прикольный, нравится расположение и современные фишки типа коворкинга, это прям то, что искал.
Ответить
Полезный отзыв?
Добавьте отзыв, заполнив личные данные, или сначала войдите на сайт, тогда информация будет автоматически взята из личного профиля.
Оценка*