Рейтинг@Mail.ru
Переверните экран
Новостройки Квартиры Ипотека Новостройки Москвы Новостройки Подмосковья Новостройки Новой Москвы Готовые новостройки Новостройки на карте Акции от застройщиков Коммерческие помещения Продавцы и застройщики Панорамы новостроек Видеообзор новостроек Экспертиза новостроек Экология Москвы и Подмосковья Студии 1-комнатные 2-комнатные 3-комнатные Квартиры на карте Ипотечный калькулятор Семейная ипотека Военная ипотека Банки и программы Медиа Новости недвижимости Мнение эксперта Аналитика рынка Покупателю Экспертиза новостроек Эксперты и авторы О проекте Контакты Реклама на сайте Vk Youtube Telegram Дзен Машиноместа Апартаменты #траншевая ипотека #рассрочка IT-ипотека Квартиры со скидками до 40% Видео 360° новостроек Субсидированная застройщиком Rutube Поиск дома в Москве Программа реновации в Москве Новостройки премиум-класса Новостройки бизнес-класса Рассрочка Траншевая ипотека ГАЛС Дома и коттеджи Бизнес-центры Бизнес-центры в Москве Бизнес-центры рядом с метро Строящиеся бизнес-центры Бизнес-центры класса A Бизнес-центры класса B ЛСР
2-комн. квартира, 47.80 м2, 9 этаж
Сдан
7 818 000 
9 195 000
163 556 2
обновлено 5 декабря

Описание 2-комн. квартиры

Новостройка
Срок ГК
Дом сдан
Стадия строительства
выдача ключей + заселение
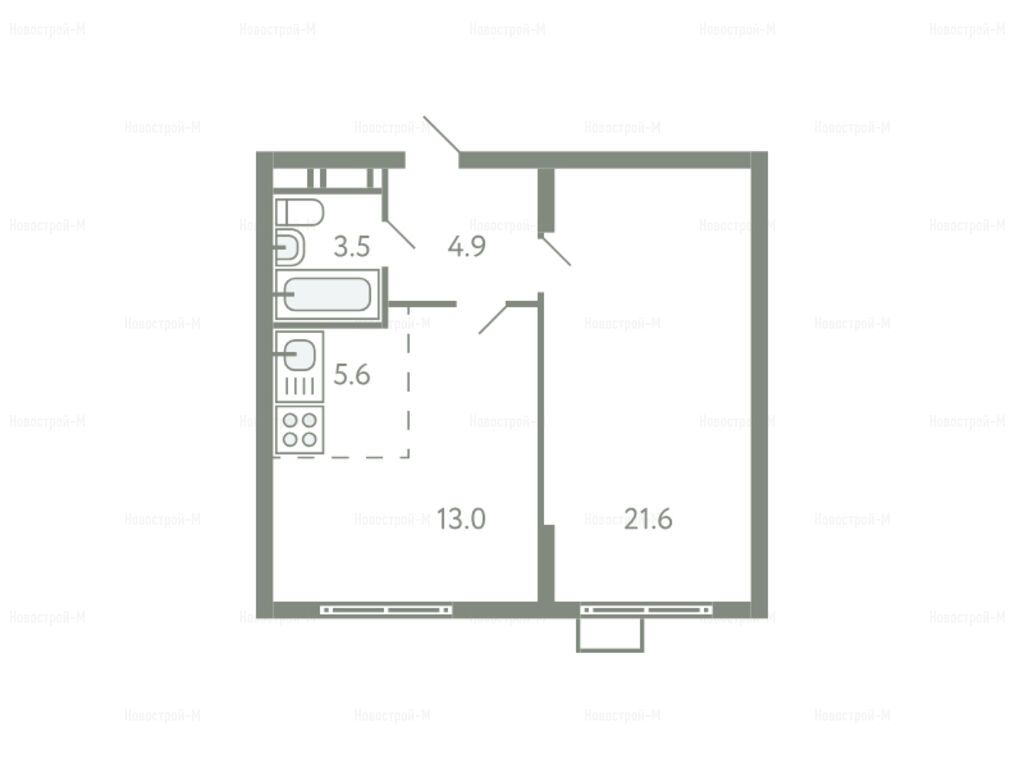
Общая площадь
47.80 м2
Жилая площадь
21.60 м2
Площадь кухни
18.60 м2
Этаж
9 / 9
Отделка
white box
Грузовой лифт
есть

Расположение 2-комн. квартиры

Метро
Ж/Д-станция
Дом
13 (д. 1)
Адрес
Ново-Молоковский б-р, д. 1, секция 5

Способы покупки

Особенности

Продается двухкомнатная квартира в новостройке ЖК «Ново-Молоково» по адресу Московская область, Ленинский городской округ, Молоковское С/П, Молоково с., Ново-Молоковский б-р, д. 1. Общая площадь квартиры - 47.8 кв. м. Тип проекта, по которому построен дом — Монолитно-кирпичный, компания-застройщик — RDI (АрДиАй), МОЛОКОВО-13. Стоимость квартиры — 7 818 000 руб. Способы оплаты можно уточнить у продавца. Более подробная информация по телефону.
RDI (АрДиАй)
RDI (АрДиАй)
Сданных 4
|
Строящихся 1
Время работы 09:00 — 21:00
Выбирайте квартиру в ЖК «Ново-Молоково» по ценам от застройщика

Похожие квартиры в ЖК «Ново-Молоково»

4 этаж
из 9 Дом сдан
Московская область, Молоковское С/П
Домодедовская
30 мин.
13 (д. 1)
Корпус
white box
Отделка
2.74 м
Потолки
ЖК «Ново-Молоково»
7 596 000 8 934 000
ВТБ, Альфа-Банк, Совкомбанк, СберБанк, Банк Санкт-Петербург, ДОМ.РФ, Россельхозбанк, АК БАРС, Сургутнефтегазбанк
5.90%
Ставка
50.10%
Первый взнос
от 45 055 /мес.
Все варианты
3 этаж
из 9 Дом сдан
Московская область, Молоковское С/П
Домодедовская
30 мин.
13 (д. 1)
Корпус
white box
Отделка
2.74 м
Потолки
ЖК «Ново-Молоково»
7 596 000 8 934 000
ВТБ, Альфа-Банк, Совкомбанк, СберБанк, Банк Санкт-Петербург, ДОМ.РФ, Россельхозбанк, АК БАРС, Сургутнефтегазбанк
5.90%
Ставка
50.10%
Первый взнос
от 45 055 /мес.
Все варианты
6 этаж
из 9 Дом сдан
Московская область, Молоковское С/П
Домодедовская
30 мин.
13 (д. 1)
Корпус
white box
Отделка
2.74 м
Потолки
ЖК «Ново-Молоково»
7 612 000 8 952 000
ВТБ, Альфа-Банк, Совкомбанк, СберБанк, Банк Санкт-Петербург, ДОМ.РФ, Россельхозбанк, АК БАРС, Сургутнефтегазбанк
5.90%
Ставка
50.10%
Первый взнос
от 45 150 /мес.
Все варианты
4 этаж
из 9 Дом сдан
Московская область, Молоковское С/П
Домодедовская
30 мин.
13 (д. 1)
Корпус
white box
Отделка
2.74 м
Потолки
ЖК «Ново-Молоково»
7 669 000 9 019 000
ВТБ, Альфа-Банк, Совкомбанк, СберБанк, Банк Санкт-Петербург, ДОМ.РФ, Россельхозбанк, АК БАРС, Сургутнефтегазбанк
5.90%
Ставка
50.10%
Первый взнос
от 45 488 /мес.
Все варианты
4 этаж
из 9 Дом сдан
Московская область, Молоковское С/П
Домодедовская
30 мин.
13 (д. 1)
Корпус
white box
Отделка
2.74 м
Потолки
ЖК «Ново-Молоково»
7 671 000 9 021 000
ВТБ, Альфа-Банк, Совкомбанк, СберБанк, Банк Санкт-Петербург, ДОМ.РФ, Россельхозбанк, АК БАРС, Сургутнефтегазбанк
5.90%
Ставка
50.10%
Первый взнос
от 45 500 /мес.
Все варианты
7 этаж
из 9 Дом сдан
Московская область, Молоковское С/П
Домодедовская
30 мин.
13 (д. 1)
Корпус
white box
Отделка
2.74 м
Потолки
ЖК «Ново-Молоково»
7 683 000 9 035 000
ВТБ, Альфа-Банк, Совкомбанк, СберБанк, Банк Санкт-Петербург, ДОМ.РФ, Россельхозбанк, АК БАРС, Сургутнефтегазбанк
5.90%
Ставка
50.10%
Первый взнос
от 45 571 /мес.
Все варианты
5 этаж
из 9 Дом сдан
Московская область, Молоковское С/П
Домодедовская
30 мин.
13 (д. 1)
Корпус
white box
Отделка
2.74 м
Потолки
ЖК «Ново-Молоково»
7 729 000 9 090 000
ВТБ, Альфа-Банк, Совкомбанк, СберБанк, Банк Санкт-Петербург, ДОМ.РФ, Россельхозбанк, АК БАРС, Сургутнефтегазбанк
5.90%
Ставка
50.10%
Первый взнос
от 45 844 /мес.
Все варианты
8 этаж
из 9 Дом сдан
Московская область, Молоковское С/П
Домодедовская
30 мин.
13 (д. 1)
Корпус
white box
Отделка
2.74 м
Потолки
ЖК «Ново-Молоково»
7 751 000 9 116 000
ВТБ, Альфа-Банк, Совкомбанк, СберБанк, Банк Санкт-Петербург, ДОМ.РФ, Россельхозбанк, АК БАРС, Сургутнефтегазбанк
5.90%
Ставка
50.10%
Первый взнос
от 45 974 /мес.
Все варианты
9 этаж
из 9 Дом сдан
Московская область, Молоковское С/П
Домодедовская
30 мин.
13 (д. 1)
Корпус
white box
Отделка
2.74 м
Потолки
ЖК «Ново-Молоково»
7 818 000 9 195 000
ВТБ, Альфа-Банк, Совкомбанк, СберБанк, Банк Санкт-Петербург, ДОМ.РФ, Россельхозбанк, АК БАРС, Сургутнефтегазбанк
5.90%
Ставка
50.10%
Первый взнос
от 46 371 /мес.
Все варианты
Посмотреть все спецпредложения
студия 21,00 м2 4 537 000
Этаж 9/9
МО, ЖК «Ново-Молоково»
Домодедовская
30 мин.
Сдан
Этаж 4/9
МО, ЖК «Ново-Молоково»
Домодедовская
30 мин.
Сдан
студия 26,40 м2 5 218 000
Этаж 7/9
МО, ЖК «Ново-Молоково»
Домодедовская
30 мин.
Сдан
студия 26,50 м2 5 277 000
Этаж 9/9
МО, ЖК «Ново-Молоково»
Домодедовская
30 мин.
Сдан
Посмотреть 20 квартир в ЖК «Ново-Молоково»
1-комн. квартира 35,70 м2 6 171 000
Этаж 7/9
МО, ЖК «Ново-Молоково»
Домодедовская
30 мин.
Сдан
1-комн. квартира 35,90 м2 6 262 000
Этаж 9/9
МО, ЖК «Ново-Молоково»
Домодедовская
30 мин.
Сдан
1-комн. квартира 36,00 м2 6 279 000
Этаж 8/9
МО, ЖК «Ново-Молоково»
Домодедовская
30 мин.
Сдан
1-комн. квартира 37,80 м2 6 147 000
Этаж 4/9
МО, ЖК «Ново-Молоково»
Домодедовская
30 мин.
Сдан
Посмотреть 39 квартир в ЖК «Ново-Молоково»
2-комн. квартира 42,20 м2 6 253 000
Этаж 6/9
МО, ЖК «Ново-Молоково»
Домодедовская
30 мин.
Сдан
2-комн. квартира 42,30 м2 7 009 000
Этаж 8/9
МО, ЖК «Ново-Молоково»
Домодедовская
30 мин.
Сдан
2-комн. квартира 42,50 м2 6 938 000
Этаж 7/9
МО, ЖК «Ново-Молоково»
Домодедовская
30 мин.
Сдан
2-комн. квартира 42,60 м2 6 881 000
Этаж 2/9
МО, ЖК «Ново-Молоково»
Домодедовская
30 мин.
Сдан
Посмотреть 42 квартиры в ЖК «Ново-Молоково»
3-комн. квартира 84,20 м2 12 245 000
Этаж 8/9
МО, ЖК «Ново-Молоково»
Домодедовская
30 мин.
Сдан
3-комн. квартира 86,60 м2 12 955 000
Этаж 7/9
МО, ЖК «Ново-Молоково»
Домодедовская
30 мин.
Сдан

Скидки и спецпредложения от застройщиков

ЖК «Ново-Молоково» на карте

Выгодные предложения на новостройки

Отзывы о ЖК «Ново-Молоково»

Самый полезный отзыв
С
20 февраля 2018
Оценка:
Готовность
Дома построены, сдано 11 корпусов. Это сейчас - важнее всего. Рассказывать и рекламировать пустое место одно, а когда дома сданы, понятно за что платишь. Плюс еще платишь за однушку на 5 % меньше, если скидка еще действует. 2-х и 3-комнатные на 2 % дешевле можно брать.
Ответить
Полезный отзыв?
Самый новый отзыв
МР
08 ноября
Оценка:
Способы покупки
График офиса Ново-Молоково вообще нормальный: записался легко, работает с 9:00 до 9:00 вечера, приехал без суеты.
Ответить
Полезный отзыв?
Добавьте отзыв, заполнив личные данные, или сначала войдите на сайт, тогда информация будет автоматически взята из личного профиля.
Оценка*