Рейтинг@Mail.ru
Переверните экран
Новостройки Квартиры Ипотека Новостройки Москвы Новостройки Подмосковья Новостройки Новой Москвы Готовые новостройки Новостройки на карте Акции от застройщиков Коммерческие помещения Продавцы и застройщики Панорамы новостроек Видеообзор новостроек Экспертиза новостроек Экология Москвы и Подмосковья Студии 1-комнатные 2-комнатные 3-комнатные Квартиры на карте Ипотечный калькулятор Семейная ипотека Военная ипотека Банки и программы Медиа Новости недвижимости Мнение эксперта Аналитика рынка Покупателю Экспертиза новостроек Эксперты и авторы О проекте Контакты Реклама на сайте Vk Youtube Telegram Дзен Машиноместа Апартаменты #траншевая ипотека #рассрочка ИТ-ипотека Квартиры со скидками до 40% Видео 360° новостроек Субсидированная застройщиком Rutube Поиск дома в Москве Программа реновации в Москве Новостройки премиум-класса Новостройки бизнес-класса Рассрочка Траншевая ипотека Дома и коттеджи Коттеджные поселки в Новой Москве Готовые коттеджные поселки Строящиеся коттеджные поселки Коттеджные поселки в лесу Коттеджные поселки у водоема Коттеджные поселки в ипотеку Бизнес-центры Коттеджи Ипотека со ставкой 0,1%
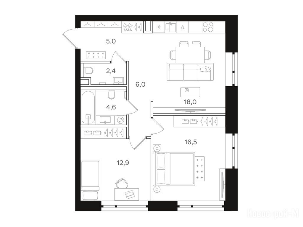
2-комн. квартира, 66.00 м2, 3 этаж
Срок сдачи 3 квартал 2027 года
42 325 800 
641 300 2
обновлено 1 мая

Описание 2-комн. квартиры

Застройщик
Срок ГК
3 квартал 2027 года
Стадия строительства
монтаж верхних этажей
Тип проекта
Общая площадь
66.00 м2
Жилая площадь
29.40 м2
Площадь кухни
18.00 м2
Этаж
3 / 24
Отделка
нет
Грузовой лифт
есть

Расположение 2-комн. квартиры

Локация
Метро
Дом
8.2
Адрес
Ленинградское ш., вл. 57, 63, секция 1

Способы покупки

Особенности

Продается двухкомнатная квартира в новостройке ЖК «Мангазея на Речном» по адресу Москва, САО, Левобережный, Ленинградское ш., вл. 57, 63. Общая площадь квартиры - 66 кв. м. Тип проекта, по которому построен дом — Монолит, компания-застройщик — «Мангазея». Стоимость квартиры — 42 325 800 руб. Способы оплаты можно уточнить у продавца. Срок сдачи — 3 квартал 2027. Более подробная информация по телефону.
Инфоцентр новостроек
Инфоцентр новостроек
+7 (499) 705-91-41
Время работы 9:00 — 21:00
1-комн. квартира 43,70 м2 23 519 689
Этаж 10/24
Москва, ЖК «Мангазея на Речном»
Речной Вокзал
10 мин.
Строится
3-комн. квартира 91,40 м2 56 978 760
Этаж 13/24
Москва, ЖК «Мангазея на Речном»
Речной Вокзал
10 мин.
Строится
студия 29,40 м2 21 670 740
Этаж 20/24
Москва, ЖК «Мангазея на Речном»
Речной Вокзал
10 мин.
Строится
Посмотреть 7 квартир в ЖК «Мангазея на Речном»
1-комн. квартира 38,50 м2 26 153 050
Этаж 6/24
Москва, ЖК «Мангазея на Речном»
Речной Вокзал
10 мин.
Строится
1-комн. квартира 39,50 м2 23 588 136
Этаж 11/24
Москва, ЖК «Мангазея на Речном»
Речной Вокзал
10 мин.
Строится
1-комн. квартира 40,10 м2 23 713 536
Этаж 9/24
Москва, ЖК «Мангазея на Речном»
Речной Вокзал
10 мин.
Строится
1-комн. квартира 41,40 м2 24 077 908
Этаж 6/24
Москва, ЖК «Мангазея на Речном»
Речной Вокзал
10 мин.
Строится
Посмотреть 43 квартиры в ЖК «Мангазея на Речном»
2-комн. квартира 56,50 м2 40 357 950
Этаж 23/24
Москва, ЖК «Мангазея на Речном»
Речной Вокзал
10 мин.
Строится
2-комн. квартира 56,60 м2 38 488 000
Этаж 8/24
Москва, ЖК «Мангазея на Речном»
Речной Вокзал
10 мин.
Строится
2-комн. квартира 65,60 м2 44 693 280
Этаж 23/24
Москва, ЖК «Мангазея на Речном»
Речной Вокзал
10 мин.
Строится
2-комн. квартира 68,60 м2 40 501 440
Этаж 3/24
Москва, ЖК «Мангазея на Речном»
Речной Вокзал
10 мин.
Строится
Посмотреть 18 квартир в ЖК «Мангазея на Речном»
3-комн. квартира 91,40 м2 56 978 760
Этаж 13/24
Москва, ЖК «Мангазея на Речном»
Речной Вокзал
10 мин.
Строится
3-комн. квартира 93,60 м2 56 496 960
Этаж 20/24
Москва, ЖК «Мангазея на Речном»
Речной Вокзал
10 мин.
Строится
Посмотреть 8 квартир в ЖК «Мангазея на Речном»

Скидки и спецпредложения от застройщиков

ЖК «Мангазея на Речном» на карте

Выгодные предложения на новостройки

Отзывы о ЖК «Мангазея на Речном»

Самый полезный отзыв
П
22 февраля 2024
Оценка:
Достоинства
Транспортная доступность
Социальная инфраструктура
Расположение
Интересно посмотреть, что АПЕКС в итоге предложил по архитектурному решению. Проект знаковый для города, так что Кузнецов тоже свою лепту думаю внесет. Я слышал, что международный архитектурный конкурс даже они будут проводить по одному из небоскребов на первой линии. В общем, Москва речная и футуристичная нас ждет.
Ответить
Самый новый отзыв
ОН
15 декабря 2025
Оценка:
Достоинства
Способы покупки
Сейчас выгодные условия для покупки - скидка до 10%, кто еще думает - надо ехать в офис и смотреть
Ответить

Оставить отзыв

Добавьте отзыв, заполнив личные данные, или сначала войдите на сайт, тогда информация будет автоматически взята из личного профиля.
Оценка*