Рейтинг@Mail.ru
Переверните экран
Новостройки Квартиры Ипотека Новостройки Москвы Новостройки Подмосковья Новостройки Новой Москвы Готовые новостройки Новостройки на карте Акции от застройщиков Коммерческие помещения Продавцы и застройщики Панорамы новостроек Видеообзор новостроек Экспертиза новостроек Экология Москвы и Подмосковья Студии 1-комнатные 2-комнатные 3-комнатные Квартиры на карте Ипотечный калькулятор Семейная ипотека Военная ипотека Банки и программы Медиа Новости недвижимости Мнение эксперта Аналитика рынка Покупателю Экспертиза новостроек Эксперты и авторы О проекте Контакты Реклама на сайте Vk Youtube Telegram Дзен Машиноместа Апартаменты #траншевая ипотека #рассрочка ИТ-ипотека Квартиры со скидками до 40% Видео 360° новостроек Субсидированная застройщиком Rutube Поиск дома в Москве Программа реновации в Москве Новостройки премиум-класса Новостройки бизнес-класса Рассрочка Траншевая ипотека Дома и коттеджи Коттеджные поселки в Новой Москве Готовые коттеджные поселки Строящиеся коттеджные поселки Коттеджные поселки в лесу Коттеджные поселки у водоема Коттеджные поселки в ипотеку Бизнес-центры Коттеджи Ипотека со ставкой 0,1%
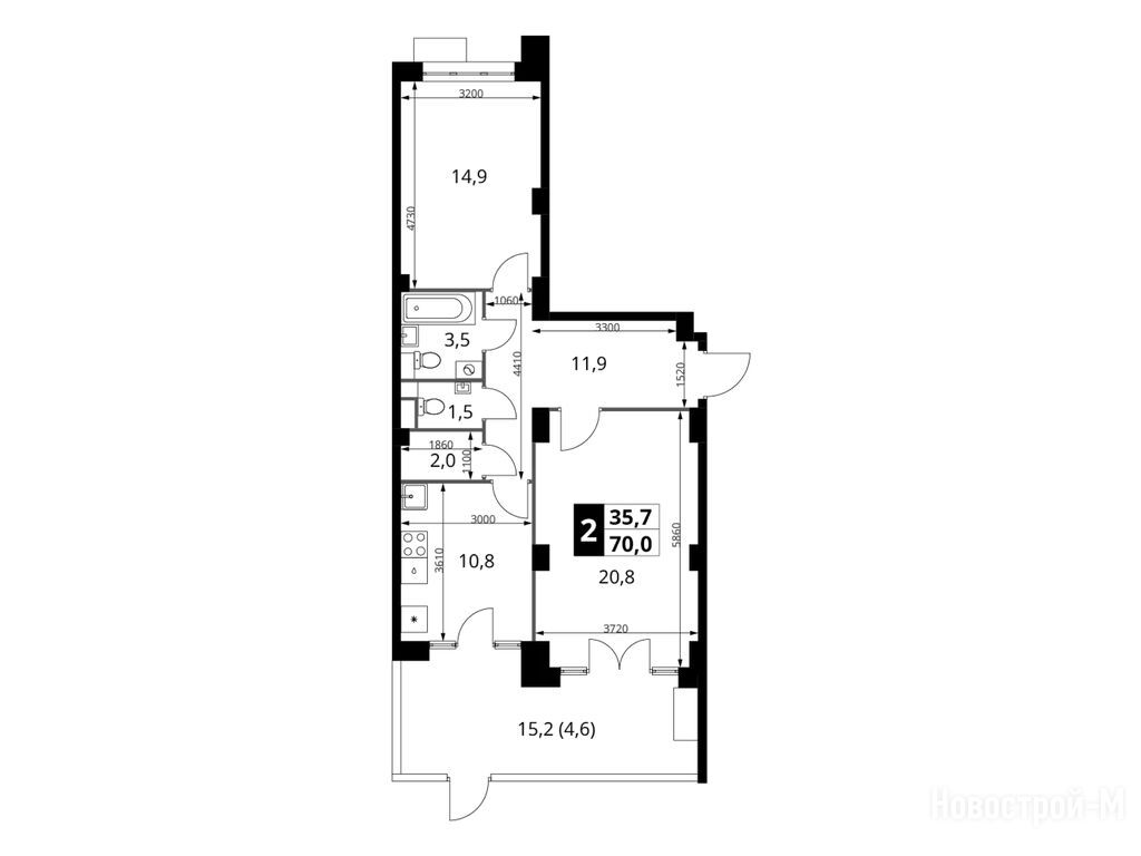
2-комн. квартира, 70.30 м2, 1 этаж
Сдан
17 402 343 
17 940 560
247 544 2
обновлено 13 мая

Описание 2-комн. квартиры

Застройщик
ДСК-1 Специализированный застройщик «Исторический район»
Срок ГК
Дом сдан
Стадия строительства
выдача ключей + заселение
Общая площадь
70.30 м2
Жилая площадь
35.70 м2
Площадь кухни
10.80 м2
Этаж
1 / 22

Расположение 2-комн. квартиры

Метро
Аннино
15 мин.
Станция МЦД
Бутово
17 мин.
Дом
10
Адрес
пос. Битца, мкр. Южная Битца, корп. 10, секция 5

Способы покупки

Особенности

Продается двухкомнатная квартира в новостройке Жилой район «Южная Битца» по адресу Московская область, Ленинский городской округ, Булатниковское С/П, пос. Битца, мкр. Южная Битца, корп. 10. Общая площадь квартиры - 70.3 кв. м. Тип проекта, по которому построен дом — Панельный, компания-застройщик — Специализированный застройщик «Исторический район», ДСК-1, ГК ФСК. Стоимость квартиры — 17 402 343 руб. Способы оплаты можно уточнить у продавца. Более подробная информация по телефону.
Инфоцентр новостроек
Инфоцентр новостроек
+7 (499) 705-91-41
Время работы 9:00 — 21:00
студия 22,90 м2 7 416 165
Этаж 16/24
МО, Жилой район «Южная Битца»
Аннино
15 мин.
Сдан
студия 23,70 м2 7 532 216
Этаж 15/18
МО, Жилой район «Южная Битца»
Аннино
15 мин.
Сдан
студия 25,20 м2 7 848 288
Этаж 19/25
МО, Жилой район «Южная Битца»
Аннино
15 мин.
Сдан
студия 25,30 м2 8 279 425
Этаж 18/24
МО, Жилой район «Южная Битца»
Аннино
15 мин.
Сдан
Посмотреть 22 квартиры в Жилом районе «Южная Битца»
1-комн. квартира 25,00 м2 10 055 263
Этаж 6/22
МО, Жилой район «Южная Битца»
Аннино
15 мин.
Сдан
1-комн. квартира 25,20 м2 9 733 601
Этаж 17/22
МО, Жилой район «Южная Битца»
Аннино
15 мин.
Сдан
1-комн. квартира 28,20 м2 10 201 674
Этаж 12/22
МО, Жилой район «Южная Битца»
Аннино
15 мин.
Сдан
1-комн. квартира 31,50 м2 8 758 103
Этаж 6/24
МО, Жилой район «Южная Битца»
Аннино
15 мин.
Сдан
Посмотреть 163 квартиры в Жилом районе «Южная Битца»
2-комн. квартира 43,90 м2 14 544 224
Этаж 4/22
МО, Жилой район «Южная Битца»
Аннино
15 мин.
Сдан
2-комн. квартира 44,00 м2 11 687 500
Этаж 17/24
МО, Жилой район «Южная Битца»
Аннино
15 мин.
Сдан
2-комн. квартира 44,40 м2 14 731 409
Этаж 11/22
МО, Жилой район «Южная Битца»
Аннино
15 мин.
Сдан
2-комн. квартира 45,10 м2 11 960 520
Этаж 12/24
МО, Жилой район «Южная Битца»
Аннино
15 мин.
Сдан
Посмотреть 197 квартир в Жилом районе «Южная Битца»
3-комн. квартира 62,60 м2 14 233 675
Этаж 2/25
МО, Жилой район «Южная Битца»
Аннино
15 мин.
Сдан
3-комн. квартира 63,20 м2 14 504 400
Этаж 16/25
МО, Жилой район «Южная Битца»
Аннино
15 мин.
Сдан
3-комн. квартира 63,30 м2 14 365 935
Этаж 10/25
МО, Жилой район «Южная Битца»
Аннино
15 мин.
Сдан
3-комн. квартира 63,40 м2 13 887 453
Этаж 17/18
МО, Жилой район «Южная Битца»
Аннино
15 мин.
Сдан
Посмотреть 119 квартир в Жилом районе «Южная Битца»
4-комн. квартира 85,10 м2 19 076 612
Этаж 6/22
МО, Жилой район «Южная Битца»
Аннино
15 мин.
Сдан
4-комн. квартира 85,90 м2 19 255 945
Этаж 9/22
МО, Жилой район «Южная Битца»
Аннино
15 мин.
Сдан
4-комн. квартира 89,30 м2 18 961 069
Этаж 3/25
МО, Жилой район «Южная Битца»
Аннино
15 мин.
Сдан
4-комн. квартира 89,70 м2 20 242 240
Этаж 2/23
МО, Жилой район «Южная Битца»
Аннино
15 мин.
Сдан
Посмотреть 37 квартир в Жилом районе «Южная Битца»

Скидки и спецпредложения от застройщиков

Жилой район «Южная Битца» на карте

Выгодные предложения на новостройки

Отзывы о Жилом районе «Южная Битца»

Самый полезный отзыв
П
07 мая 2019
Оценка:
Достоинства
Планировки
Двор, окружение
Присмотрела квартиру в Южной Битце.Очень понравилось, что двор будет без машин. Да и планировки квартир неплохие. Если решусь брать, то сразу с отделкой. Там есть два варианта. Мне вот приглянулся "кофе" который. А проблемы с транспортной доступностью... они существуют во всех новых районах. Со временем сделают нове развязки, пустят много разных маршрутов. Слышала и ожд станции. это было бы вообще супер.
Ответить
Самый новый отзыв
М
08 апреля
Оценка:
Меня сначала смущала открытая кухня-гостиная, думала, запахи будут по всей квартире. А на деле оказалось супер: гостей принимаем с комфортом, детей видно из любой точки. Два окна дают столько света, что даже зимой в комнате светло))
Ответить

Оставить отзыв

Добавьте отзыв, заполнив личные данные, или сначала войдите на сайт, тогда информация будет автоматически взята из личного профиля.
Оценка*