Рейтинг@Mail.ru
Переверните экран
Новостройки Квартиры Ипотека Новостройки Москвы Новостройки Подмосковья Новостройки Новой Москвы Готовые новостройки Новостройки на карте Акции от застройщиков Коммерческие помещения Продавцы и застройщики Панорамы новостроек Видеообзор новостроек Экспертиза новостроек Экология Москвы и Подмосковья Студии 1-комнатные 2-комнатные 3-комнатные Квартиры на карте Ипотечный калькулятор Семейная ипотека Военная ипотека Банки и программы Медиа Новости недвижимости Мнение эксперта Аналитика рынка Покупателю Экспертиза новостроек Эксперты и авторы О проекте Контакты Реклама на сайте Vk Youtube Telegram Дзен Машиноместа Апартаменты #траншевая ипотека #рассрочка ИТ-ипотека Квартиры со скидками до 40% Видео 360° новостроек Субсидированная застройщиком Rutube Поиск дома в Москве Программа реновации в Москве Новостройки премиум-класса Новостройки бизнес-класса Рассрочка Траншевая ипотека Дома и коттеджи Коттеджные поселки в Новой Москве Готовые коттеджные поселки Строящиеся коттеджные поселки Коттеджные поселки в лесу Коттеджные поселки у водоема Коттеджные поселки в ипотеку Бизнес-центры Коттеджи Ипотека со ставкой 0,1%
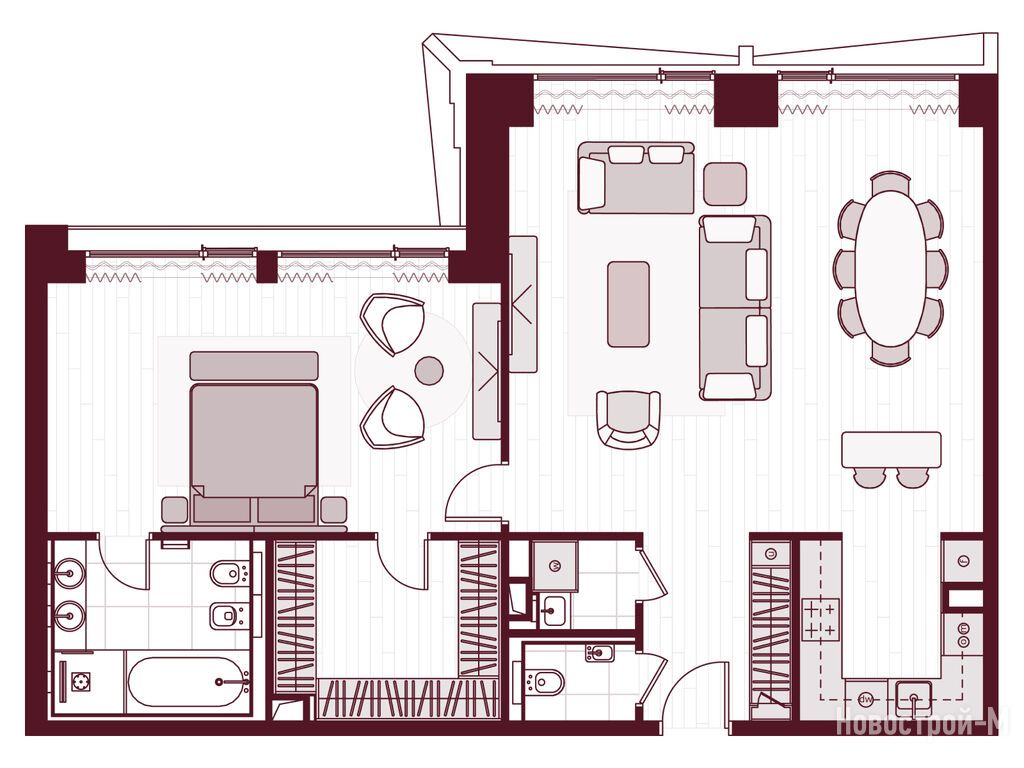
2-комн. квартира, 96.80 м2, 34 этаж
Сдан
84 176 820 
869 595 2
обновлено 17 мая

Описание 2-комн. квартиры

Срок ГК
Дом сдан
Стадия строительства
Тип проекта
Общая площадь
96.80 м2
Жилая площадь
24.20 м2
Площадь кухни
47.50 м2
Высота потолков
3.10
Этаж
34 / 36
Отделка
предчистовая
Грузовой лифт
есть
Стоимость эксплуатации
~ 100 руб./м2

Расположение 2-комн. квартиры

Локация
Метро
Динамо
14 мин.
Дом
R2 Queen Elizabeth Park Tower (Куин Элизабет Парк Тауэр)
Адрес
Ленинградский пр-т, 37/2, секция 2

Особенности

Продается двухкомнатная квартира в новостройке Жилой квартал Prime Park (Прайм Парк) по адресу Москва, САО, Хорошевский, Ленинградский пр-т, 37/2. Общая площадь квартиры - 96.8 кв. м. Тип проекта, по которому построен дом — Монолит, компания-застройщик — Optima Development (Оптима Девелопмент). Стоимость квартиры — 84 176 820 руб. Способы оплаты можно уточнить у продавца. Более подробная информация по телефону.

Правовые документы

Инфоцентр новостроек
Инфоцентр новостроек
+7 (499) 705-91-41
Время работы 9:00 — 21:00
2-комн. квартира 35,80 м2 29 642 400
Этаж 2/4
Москва, Жилой квартал Prime Park (Прайм Парк)
Динамо
14 мин.
Строится
2-комн. квартира 48,20 м2 41 154 606
Этаж 21/34
Москва, Жилой квартал Prime Park (Прайм Парк)
Динамо
14 мин.
Строится
2-комн. квартира 48,50 м2 37 172 515
Этаж 2/34
Москва, Жилой квартал Prime Park (Прайм Парк)
Динамо
14 мин.
Строится
Этаж 11/34
Москва, Жилой квартал Prime Park (Прайм Парк)
Динамо
14 мин.
Строится
Посмотреть 23 квартиры в Жилой квартал Prime Park (Прайм Парк)
3-комн. квартира 66,70 м2 51 025 500
Этаж 2/34
Москва, Жилой квартал Prime Park (Прайм Парк)
Динамо
14 мин.
Строится
3-комн. квартира 66,90 м2 52 322 490
Этаж 6/34
Москва, Жилой квартал Prime Park (Прайм Парк)
Динамо
14 мин.
Строится
3-комн. квартира 67,00 м2 44 622 000
Этаж 2/34
Москва, Жилой квартал Prime Park (Прайм Парк)
Динамо
14 мин.
Строится
3-комн. квартира 67,10 м2 49 097 070
Этаж 12/34
Москва, Жилой квартал Prime Park (Прайм Парк)
Динамо
14 мин.
Строится
Посмотреть 70 квартир в Жилой квартал Prime Park (Прайм Парк)
Этаж 21/34
Москва, Жилой квартал Prime Park (Прайм Парк)
Динамо
14 мин.
Строится
4-комн. квартира 108,30 м2 81 821 192
Этаж 27/34
Москва, Жилой квартал Prime Park (Прайм Парк)
Динамо
14 мин.
Строится
Этаж 29/33
Москва, Жилой квартал Prime Park (Прайм Парк)
Динамо
14 мин.
Сдан
4-комн. квартира 129,00 м2 94 498 287
Этаж 3/32
Москва, Жилой квартал Prime Park (Прайм Парк)
Динамо
14 мин.
Строится
Посмотреть 32 квартиры в Жилой квартал Prime Park (Прайм Парк)
5-комн. квартира 157,50 м2 122 897 250
Этаж 12/34
Москва, Жилой квартал Prime Park (Прайм Парк)
Динамо
14 мин.
Строится
5-комн. квартира 157,90 м2 120 651 390
Этаж 6/34
Москва, Жилой квартал Prime Park (Прайм Парк)
Динамо
14 мин.
Строится
5-комн. квартира 160,70 м2 119 319 750
Этаж 21/34
Москва, Жилой квартал Prime Park (Прайм Парк)
Динамо
14 мин.
Строится
5-комн. квартира 161,10 м2 123 966 450
Этаж 27/34
Москва, Жилой квартал Prime Park (Прайм Парк)
Динамо
14 мин.
Строится
Посмотреть 12 квартир в Жилой квартал Prime Park (Прайм Парк)

Скидки и спецпредложения от застройщиков

Жилой квартал Prime Park (Прайм Парк) на карте

Выгодные предложения на новостройки

Самый полезный отзыв
С
14 декабря 2017
Оценка:
Достоинства
Социальная инфраструктура
Внешний вид фасада
Подземный паркинг
Расположение
Ну что ж, проект по меньшей мере заслуживает внимания. Расположение неплохое, планировки на сайте есть, глянул - довольно функциональные варианты, только балконов не увидел . Что обещает застройщик? Богатую инфраструктуру - парки, школу, аптеку, фитнес с бассейном,детские сады, рестораны, кафе, супермаркет, салон красоты, магазин здорового питания, и еще что-то там)) Отделка - полная (5 вариантов) либо "белая" под чистовую. Внешний вид фасада и дизайн лобби впечатлили. Но: конкуренция в районе присутствует, как по ценам, так и по локации. Посмотрим, как стройка пойдет) В целом, для инвестирования привлекательный вариант.
Показать все комментарии
Ответить
Самый новый отзыв
Т
20 апреля
Оценка:
Переехали в жилой квартал осенью, до этого жили на западе Москвы, и я очень боялась, что ребёнку будет не хватать привычного двора, будет долго привыкать. На деле адаптация прошла неожиданно легко. Здесь реально спокойно отпускать его гулять на закрытой территории, и мне не нужно каждые пять минут выглядывать в окно. Часто ходим гулять в Петровский парк, он совсем рядом. Но и во дворе есть хорошие детские зоны, где не скучно. Нравится ещё, что консьержи быстро запоминают в лицо, улыбчивые)
Ответить

Оставить отзыв

Добавьте отзыв, заполнив личные данные, или сначала войдите на сайт, тогда информация будет автоматически взята из личного профиля.
Оценка*