Рейтинг@Mail.ru
Переверните экран
Новостройки Квартиры Ипотека Новостройки Москвы Новостройки Подмосковья Новостройки Новой Москвы Готовые новостройки Новостройки на карте Акции от застройщиков Коммерческие помещения Продавцы и застройщики Панорамы новостроек Видеообзор новостроек Экспертиза новостроек Экология Москвы и Подмосковья Студии 1-комнатные 2-комнатные 3-комнатные Квартиры на карте Ипотечный калькулятор Семейная ипотека Военная ипотека Банки и программы Медиа Новости недвижимости Мнение эксперта Аналитика рынка Покупателю Экспертиза новостроек Эксперты и авторы О проекте Контакты Реклама на сайте Vk Youtube Telegram Дзен Машиноместа Апартаменты #траншевая ипотека #рассрочка ИТ-ипотека Квартиры со скидками до 40% Видео 360° новостроек Субсидированная застройщиком Rutube Поиск дома в Москве Программа реновации в Москве Новостройки премиум-класса Новостройки бизнес-класса Рассрочка Траншевая ипотека Дома и коттеджи Коттеджные поселки в Новой Москве Готовые коттеджные поселки Строящиеся коттеджные поселки Коттеджные поселки в лесу Коттеджные поселки у водоема Коттеджные поселки в ипотеку Бизнес-центры Коттеджи Ипотека со ставкой 0,1%
Данная квартира является лидером продаж среди двухкомнатных квартир в Алтуфьевское 53 по данным Росреестра
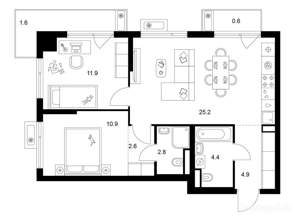
2-комн. квартира, 64.90 м2, 10 этаж
Срок сдачи 4 квартал 2028 года
23 870 220 
367 800 2
обновлено 13 мая

Описание 2-комн. квартиры

Новостройка
Срок ГК
4 квартал 2028 года
Стадия строительства
Тип проекта
Общая площадь
64.90 м2
Жилая площадь
22.80 м2
Площадь кухни
25.20 м2
Этаж
10 / 22
Отделка
чистовая
Грузовой лифт
есть

Расположение 2-комн. квартиры

Локация
Метро
Станция МЦД
Станция МЦК
Дом
1.1
Адрес
ш. Алтуфьевское, корп.1.1, секция 1

Способы покупки

Особенности

Продается двухкомнатная квартира в новостройке Алтуфьевское 53 по адресу Москва, СВАО, Алтуфьевский, ш. Алтуфьевское, корп.1.1. Общая площадь квартиры - 64.9 кв. м. Тип проекта, по которому построен дом — Монолит, компания-застройщик — ПИК, СЗ «Перспективные решения». Стоимость квартиры — 23 870 220 руб. Способы оплаты можно уточнить у продавца. Срок сдачи — 4 квартал 2028. Более подробная информация по телефону.
PIK logo Серия плюс
Сданных 99
|
Строящихся 35
Время работы 02:00 — 21:00
Заказать обратный звонок
Онлайн-сделка
Выбирайте квартиру в Алтуфьевское 53 по ценам от застройщика

Похожие квартиры в Алтуфьевское 53

24 этаж
из 32 4 квартал 2028
Москва, СВАО
Дегунино
20 мин.
1.1
Корпус
чистовая
Отделка
2.66 м
Потолки
Алтуфьевское 53
22 786 390
ВТБ, СберБанк, Альфа-Банк, ДОМ.РФ, Московский Кредитный Банк
6.00%
Ставка
50.10%
Первый взнос
от 136 616 /мес.
Все варианты
студия 28,00 м2 14 274 400
Этаж 31/32
Москва, Алтуфьевское 53
Дегунино
20 мин.
Строится
студия 28,50 м2 14 497 950
Этаж 23/32
Москва, Алтуфьевское 53
Дегунино
20 мин.
Строится
студия 28,70 м2 15 271 270
Этаж 23/32
Москва, Алтуфьевское 53
Дегунино
20 мин.
Строится
студия 28,80 м2 14 880 960
Этаж 31/32
Москва, Алтуфьевское 53
Дегунино
20 мин.
Строится
студия 28,00 м2 14 274 400
Этаж 31/32
Москва, Алтуфьевское 53
Дегунино
20 мин.
Строится
студия 28,50 м2 14 497 950
Этаж 23/32
Москва, Алтуфьевское 53
Дегунино
20 мин.
Строится
студия 28,70 м2 15 426 250
Этаж 10/32
Москва, Алтуфьевское 53
Дегунино
20 мин.
Строится
студия 28,80 м2 14 880 960
Этаж 31/32
Москва, Алтуфьевское 53
Дегунино
20 мин.
Строится
Посмотреть 17 квартир в Алтуфьевское 53
1-комн. квартира 31,90 м2 16 383 840
Этаж 19/32
Москва, Алтуфьевское 53
Дегунино
20 мин.
Строится
1-комн. квартира 32,40 м2 15 276 600
Этаж 3/32
Москва, Алтуфьевское 53
Дегунино
20 мин.
Строится
1-комн. квартира 33,20 м2 17 609 280
Этаж 16/32
Москва, Алтуфьевское 53
Дегунино
20 мин.
Строится
1-комн. квартира 33,70 м2 16 769 120
Этаж 3/32
Москва, Алтуфьевское 53
Дегунино
20 мин.
Строится
Посмотреть 66 квартир в Алтуфьевское 53
2-комн. квартира 48,70 м2 21 647 150
Этаж 7/22
Москва, Алтуфьевское 53
Дегунино
20 мин.
Строится
2-комн. квартира 49,00 м2 21 834 400
Этаж 10/22
Москва, Алтуфьевское 53
Дегунино
20 мин.
Строится
2-комн. квартира 49,50 м2 21 586 950
Этаж 25/32
Москва, Алтуфьевское 53
Дегунино
20 мин.
Строится
2-комн. квартира 50,40 м2 20 648 880
Этаж 20/32
Москва, Алтуфьевское 53
Дегунино
20 мин.
Строится
Посмотреть 76 квартир в Алтуфьевское 53
3-комн. квартира 73,00 м2 25 608 400
Этаж 32/32
Москва, Алтуфьевское 53
Дегунино
20 мин.
Строится
3-комн. квартира 74,60 м2 25 796 680
Этаж 2/32
Москва, Алтуфьевское 53
Дегунино
20 мин.
Строится
3-комн. квартира 74,80 м2 26 030 400
Этаж 19/32
Москва, Алтуфьевское 53
Дегунино
20 мин.
Строится
3-комн. квартира 74,90 м2 26 117 630
Этаж 22/32
Москва, Алтуфьевское 53
Дегунино
20 мин.
Строится
Посмотреть 28 квартир в Алтуфьевское 53

Скидки и спецпредложения от застройщиков

Алтуфьевское 53 на карте

Выгодные предложения на новостройки

Отзывы о Алтуфьевское 53

Самый полезный отзыв
КА
22 сентября 2022
Оценка:
Пик зашел в Алтуфьево с неплохим проектом, сроки реальные. Из инфраструктуры - два садика плюс школа. Паркинг подземный по плану, но инфы по ценам на машиноместа пока нет.
Ответить
Самый новый отзыв
ТТ
27 февраля
Оценка:
Достоинства
Планировки
Недостатки
Транспортная доступность
Готовность
Купили двухкомнатную квартиру на старте продаж. Уже через год цена поднялась почти вдвое! Считаю это очень выгодным вложением, если успеть купить вначале подешевле. К сдаче дома стоимость квартиры будет раза в 3 выше первоначальной, это точно. Ждать долго - это минус. Долго до метро - это минус. Разнообразные планировки - это плюс.
Ответить

Оставить отзыв

Добавьте отзыв, заполнив личные данные, или сначала войдите на сайт, тогда информация будет автоматически взята из личного профиля.
Оценка*