Комплекс апартаментов премиум-класса SLAVA – проект застройщика MR Group, который возводится на Ленинградском проспекте (САО Москвы), на месте снесенного часового завода «Слава», в 5 минутах ходьбы от метро «Белорусская». В его составе построят 6 разновысотных корпусов – от 8 до 17 этажей. В настоящее время открыты продажи I очереди проекта. Покупателям доступны апартаменты от компактных студий до просторных юнитов с собственными террасами. Завершить строительство I очереди девелопер планирует в III квартале 2022 года. Новострой-М внимательно изучил проект и рассказывает о его сильных и слабых сторонах.
Примечание
В статье перечислены только факты о ЖК, собранные из открытых источников. В рубрике «Экспертиза проекта» Новострой-М решил отказаться от оценок и оценочных суждений: право делать выводы из описанных фактов о жилом комплексе мы предоставляем нашим читателям.
Кто строит
Компания MR Group работает на рынке с 2003 года. В ее портфеле на сегодняшний день – 44 объекта жилой и коммерческой недвижимости общей площадью 7 млн кв. метров – в Москве, Московской области и Сочи. Со всеми ЖК, которые в данный момент находятся на этапе строительства в столице и пригороде, можно ознакомиться на сайте Новострой-М. Там вы найдете проектные декларации по каждому жилому комплексу, цены, фотографии, подробные описания и самые выгодные ипотечные программы.
Что строят
SLAVA – это комплекс апартаментов премиум-класса, состоящий из 6 корпусов высотой 8-17 этажей. В проекте заявлен подземный паркинг, благоустроенный двор, а также лобби-бар с ресторанами итальянской и японской кухни, лаунж-зоной и переговорными комнатами.
Архитектура и дизайн
За создание и воплощение архитектурной концепции проекта отвечает известное британское бюро DYER. Все здания комплекса выполнены в современном стиле с использованием высококачественных материалов – натурального камня, клинкерной плитки, керамогранита, закаленного стекла. Основные цвета фасадов – серый, серебристый металл, темный кварцит.
Во всех апартаментах предусмотрено панорамное остекление с использованием окон с пониженной теплопроводностью.
Придомовая территория
Благоустройством пространства вокруг комплекса занимается международное бюро Gillespies. На придомовой территории со временем появится сад с многолетними деревьями – каштанами, кленами, вязами. Также будет обустроена открытая оранжерея, пруд с фонтаном, беседки. Для прогулок создадут центральный променад, для занятий спортом – площадки и игровые зоны с безопасным прорезиненным покрытием, игровые зоны для детей от 3 до 10 лет.
Кроме того, на территории появятся площадки для проведения различных мероприятий. Для удобства жителей будет создан сквозной выход во двор и на улицу.











Безопасность
В комплексе предусмотрен круглосуточный консьерж-сервис, также будет осуществляться контроль доступа на территорию.
Нежилые метры
Особое внимание в комплексе апартаментов уделено созданию максимально полезной собственной инфраструктуры. Так как проект ориентирован в первую очередь на деловых и занятых людей, застройщик постарался уместить все необходимые сервисы на первых этажах зданий. В них можно попасть, просто спустившись в лифте из апартамента.
Условно все объекты можно разделить на две группы: это сервисы для жизни – аптека, цветочный магазин, студия персональных тренировок, салон красоты, детский образовательный центр, банк и службы быта.
Вторая группа – рестораны и бистро, а также объекты с «деловой» функцией: такие, как, например, переговорные комнаты, которые можно забронировать для встреч.
Кроме того, будет построен подземный паркинг на 253 машино-места. На каждом из его уровней запроектированы кладовые помещения (келлеры) площадью 2,7-14,9 кв. м. Также в корпусе В1 кладовки будут предусмотрены прямо на этажах, их площадь составит 3,8 кв. м.
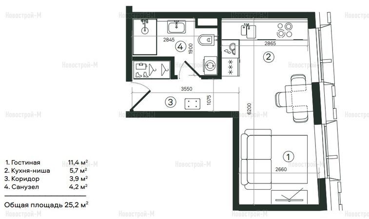
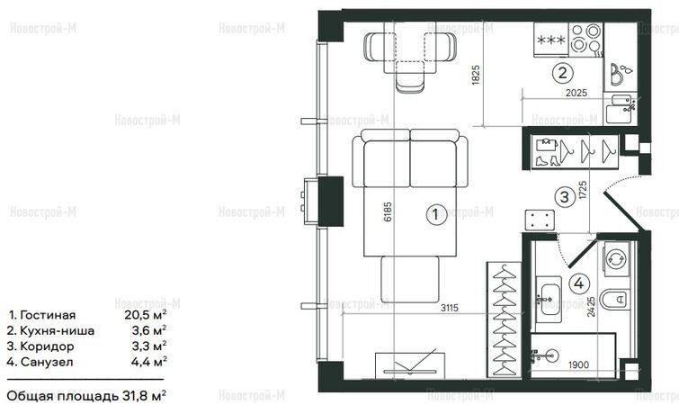
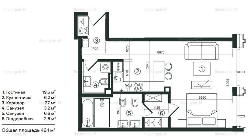
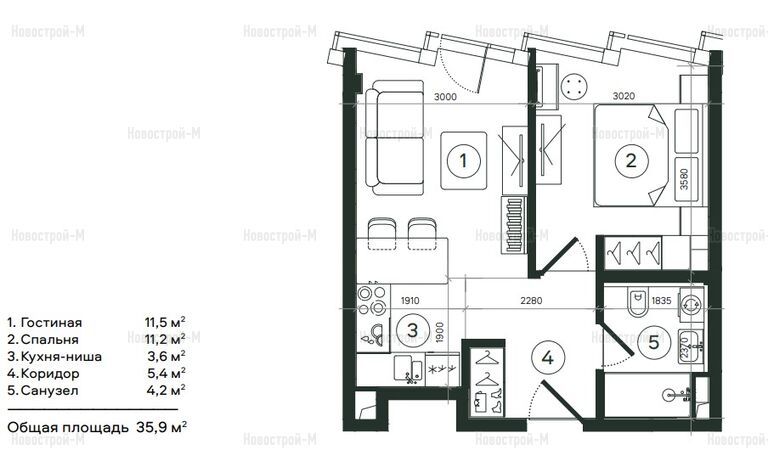
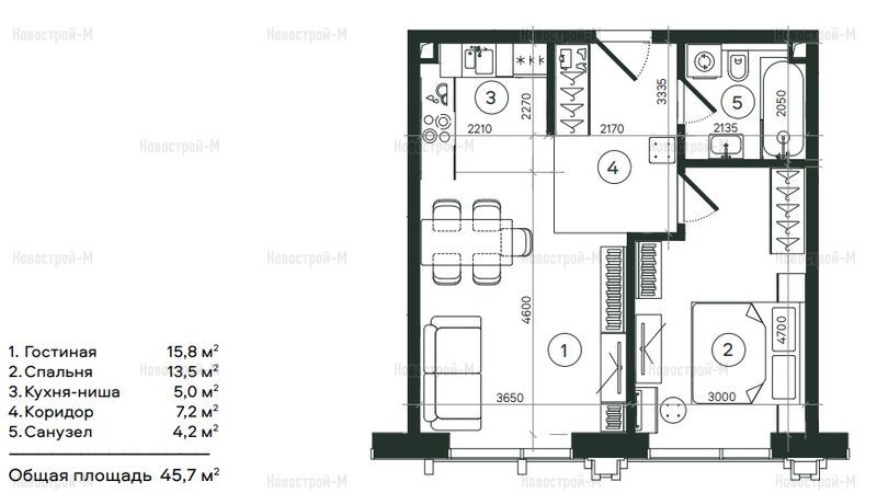
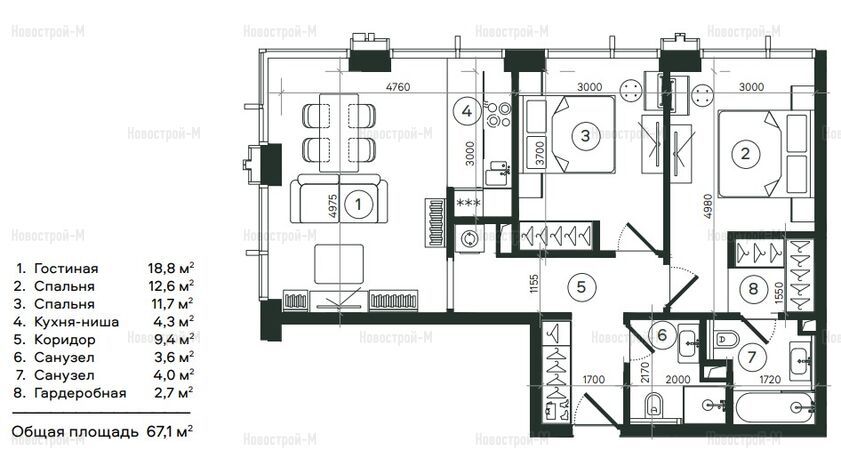
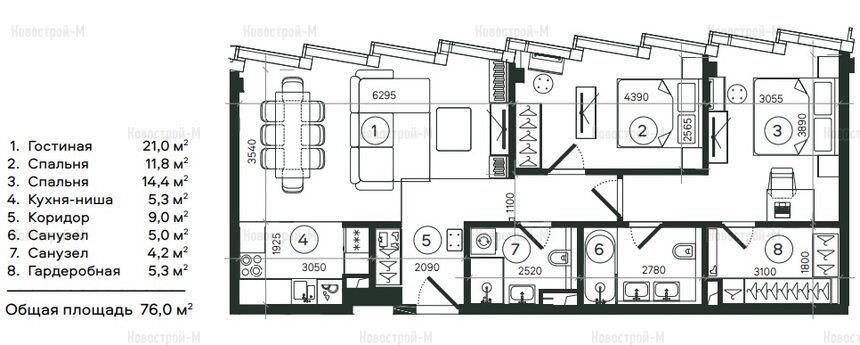
Апартаменты и планировки
В рамках I очереди, которая будет сдана в эксплуатацию в III квартале 2022 года, покупатели могут приобрести апартаменты с европланировками: студии площадью 45,2 кв. м, 1-комнатные варианты площадью 43,2-65,1 кв. м и 2-комнатные площадью от 64,6 до 76 кв. м. Позже в продажу поступят еще более просторные лоты площадью до 95 кв. м.
Все юниты передаются с предчистовой отделкой white box. Во всех апартаментах SLAVA увеличенная площадь остекления и высокие потолки – от 3,1 до 3,3 м. Подробнее изучить планировки вы можете на поэтажных планах в карточке проекта на сайте Новострой-М. Там же легко узнать, на какую сторону света будут выходить окна вашего апартамента и определить уровень инсоляции.









Где строят
Комплекс апартаментов SLAVA возводится в Беговом районе Москвы по адресу: Ленинградский проспект, вл. 8. Транспортная доступность локации высокая.
Пешком от объекта легко дойти до станции метро «Белорусская» и Белорусского вокзала с аэроэкспрессами в Шереметьево (5 минут) и станции метро «Маяковская» (15 минут). А прогулка, например, до Пушкинской площади займет всего 20 минут.
На автомобиле за 4 минуты можно выехать на ТТК, за 10 минут добраться до Кремля, Манежной площади, Садового кольца и Нового Арбата, за 10 минут – доехать до Китай-города и ММДЦ «Москва-Сити».
Дорожная ситуация в районе удовлетворительная: пробки собираются в основном в утренние (с 8.00 до 10.00) и вечерние часы (с 17.00 до 20.00).
Экология
По данным компании EcoStandard, экологическая обстановка в Беговом районе Москвы приемлемая, у локации 5 баллов из 10 возможных – для центра столицы показатель неплохой.
Вредных производств рядом с апарт-комплексом нет, а вот зеленых зон – в избытке: ближайшие – Екатерининский, Фестивальный парки, Миусский сквер и Петровский парк.
Инфраструктура
Как мы уже писали ранее, комплекс апартаментов SLAVA будет укомплектован собственной инфраструктурой. На первых этажах откроются аптека, магазин, спортивная студия и салон красоты, службы быта и отделение банка. Также появится детский образовательный центр, кафе, рестораны, пространства для проведения переговоров и деловых мероприятий.
Кроме того, немаловажен тот факт, что объект возводится в старомосковском районе с отлично развитой инфраструктурой. Магазины, фитнес-центры, театры, рестораны, школы и детские сады – все это в изобилии будет доступно и жителям апарт-комплекса SLAVA.
Отдельное преимущество – это близость одного из самых известных деловых кластеров у метро «Белорусская», резидентами которого являются крупнейшие российские и иностранные компании.
Итак, начнем со школ. В пешей доступности от МФК SLAVA находятся около 5 учебных заведений. Дорога до них займет от 5 до 20 минут. На автомобиле же можно быстро добраться до очень большого количества школ как в локации, так и за ее пределами.
Школы
Похожая ситуация и с детскими садами. До многих легко дойти пешком. Время в пути также составит от 5 до 20 минут.
Детские сады
Ближайшие взрослая и детская городские поликлиники (№69 и №9) находятся всего в 8 минутах пешком от МФК SLAVA. Кроме того, в пешей доступности от комплекса работает множество коммерческих медицинских центров.
Поликлиники
Торговая инфраструктура в локации также хорошо развита. Практически до всех супермаркетов можно легко дойти пешком за 5-15 минут. Также в 10 минутах от МФК SLAVA располагается гастроквартал «Депо Лесная» площадью 25 тыс. кв. м. Там можно не только посетить корнеры с разнообразными кухнями, но и приобрести свежие фермерские продукты на рынке.
Магазины
Недостатка спортивной инфраструктуры в районе также нет. Как минимум до пяти фитнес-клубов жители SLAVA смогут дойти пешком за 5-10 минут. В локации представлены как крупные сетевые объекты, так и небольшие фитнес-студии.
Отдельно стоит упомянуть о «деловом ядре» локации – бизнес-кластере у метро «Белорусская», который находится в пешей доступности от МФК SLAVA. Там расположены крупнейшие офисные центры класса А – «Белые сады», «Белая площадь», White Stone, «Четыре Ветра».
Кроме того, в настоящее время в Бумажном проезде возводится новый премиальный офисный квартал класса А Stone Towers, примерно на 11 тысяч рабочих мест, который будет состоять из четырех зданий, включая высотные башни – одна из них станет архитектурной доминантой всего делового кластера у «Белорусской».
Что касается безопасности района, в котором возводится апарт-комплекс, ее уровень можно оценить как средний – обстановка в локации в общем-то спокойная, к спорным объектам можно отнести разве что Белорусский вокзал. При этом не стоит забывать – территория МФК SLAVA будет закрыта для посторонних.
Ближайший пункт полиции находится всего в 5 минутах ходьбы от комплекса.
Цены
Продажи в SLAVA стартовали 2 марта 2021 года. На тот момент самый бюджетный юнит – апартаменты площадью 40,4 кв. м с одной спальней – стоил 20,66 млн рублей. Сегодня в продаже есть студии площадью 31,9 кв. м, их стоимость – 18,6 млн рублей. Напомним, что недвижимость передается с предчистовой отделкой white box.
Цены в МФК SLAVA
|
Тип жилья |
Метраж, кв. м |
Цена, руб. |
Цена за кв. м, тыс. руб. |
|
студии |
28.10 — 34.40 |
26 958 870 — 33 326 558 |
894.3 — 1112.9 |
|
1-комнатные |
36.40 — 57.90 |
37 171 680 — 53 177 831 |
871.8 — 1231.9 |
|
2-комнатные |
60.80 — 86.40 |
54 518 832 — 86 974 923 |
837.1 — 1068.5 |
|
3-комнатные |
86.70 — 113.40 |
84 898 962 — 107 802 389 |
822.1 — 1101.1 |
|
4-комнатные |
125.20 — 127.30 |
103 043 606 — 124 599 712 |
823 — 978.8 |
|
многокомнатные |
201.00 |
136 138 104 — 136 526 436 |
677.3 — 679.2 |
Юнит для жизни или инвестиций в МФК SLAVA можно приобрести в том числе в ипотеку. Комплекс аккредитован банком «Открытие» – там в рамках программы покупки апартаментов доступен кредит размером до 30 млн рублей по ставке от 7,8% годовых, с первоначальным взносом от 20%, сроком до 30 лет.
Оформить ипотеку на апартаменты в SLAVA можно также в Совкомбанке, в рамках программы «Новостройка». Размер кредита – от 300 тыс. рублей до 50 млн рублей. Первоначальный взнос – от 10% стоимости жилья, срок – от 3 до 30 лет. Процентные ставки зависят от величины первого взноса: при 10% ставка 9,49%, при 20% – 8,65%, при 50% ставка 8,15% годовых.
Конкуренты
В локации у проекта сразу 2 конкурента. Первый – это комплекс апартаментов бизнес-класса Alcon Tower от застройщика Alcon Group. Новостройка возводится на Ленинградском проспекте, д. 34 и представляет собой 36-этажную башню с апартаментами и объектами инфраструктуры.
Все юниты в проекте продаются с готовой отделкой. Начальная стоимость – 25,3 млн рублей – такова цена 2-комнатных апартаментов площадью 71,1 кв. м. Ввести комплекс в эксплуатацию собираются во II квартале 2022 года.
Цены в апарт-комплексе Alcon Tower
|
Тип жилья |
Метраж, кв. м |
Цена, руб. |
Цена за кв. м, тыс. руб. |
Нет в продаже | |||
Второй конкурент МФК SLAVA – это комплекс апартаментов бизнес-класса «Правда» на ул. Правды, д. 24 от Группы ПСН. В рамках проекта застройки бывшего печатного завода возводятся две башни с панорамными окнами.
Цены в апарт-комплексе «Правда»
|
Тип жилья |
Метраж, кв. м |
Цена, руб. |
Цена за кв. м, тыс. руб. |
Нет в продаже | |||
Лоты передаются собственниками в двух вариантах – без отделки или с готовым дизайнерским ремонтом. Цены в комплексе стартуют от 9,5 млн рублей. За эту сумму там можно купить студию площадью 33,2 кв. м в бетоне. Завершить строительство объекта планируют в IV квартале 2022 года.
Резюме
Плюсы ЖК SLAVA:
– надежный застройщик;
– продуманная и грамотно реализованная концепция проекта, полностью соответствующая заявленному классу «премиум»;
– удачная локация: старомосковский район, хорошо укомплектованный всей необходимой инфраструктурой, высокая транспортная доступность, близость к крупнейшему деловому кластеру;
– хорошо организованное внутреннее пространство комплекса – созданы все условия для разнообразного отдыха и деловых активностей;
– большой выбор планировочных решений;
– панорамные окна – живописные виды на центр Москвы.
Не подойти проект может тем, кто ищет новостройку с обязательной московской пропиской. Так как МФК SLAVA – это апартаменты, то есть коммерческая недвижимость, прописаться в них не представляется возможным. Однако после принятия закона о правовом статусе апартаментов – до конца 2021 года – ситуация может измениться.
Автор: Анна Лябегина
Дата публикации 31 марта 2021