Рейтинг@Mail.ru
Переверните экран
Новостройки Квартиры Ипотека Новостройки Москвы Новостройки Подмосковья Новостройки Новой Москвы Готовые новостройки Новостройки на карте Акции от застройщиков Коммерческие помещения Продавцы и застройщики Панорамы новостроек Видеообзор новостроек Экспертиза новостроек Экология Москвы и Подмосковья Студии 1-комнатные 2-комнатные 3-комнатные Квартиры на карте Ипотечный калькулятор Семейная ипотека Военная ипотека Банки и программы Медиа Новости недвижимости Мнение эксперта Аналитика рынка Покупателю Экспертиза новостроек Эксперты и авторы О проекте Контакты Реклама на сайте Vk Youtube Telegram Дзен Машиноместа Апартаменты #траншевая ипотека #рассрочка IT-ипотека Квартиры со скидками до 40% Видео 360° новостроек Субсидированная застройщиком Rutube Поиск дома в Москве Программа реновации в Москве Новостройки премиум-класса Новостройки бизнес-класса Рассрочка Траншевая ипотека ГАЛС Дома и коттеджи Бизнес-центры Бизнес-центры в Москве Бизнес-центры рядом с метро Строящиеся бизнес-центры Бизнес-центры класса A Бизнес-центры класса B ЛСР
Данное предложение на 13.12.2025 неактуально. Пожалуйста, ознакомьтесь с другими похожими предложениями в ЖК «Дзен-кварталы».

Торговое помещение, 47.10 м 2

Москва, ТиНАО, Новомосковский АО, Сосенское С/П, жилой комплекс Дзен-кварталы, 2.4
141 300 /мес.
3 000 2
обновлено 26 ноября
Узнать про коммерческие помещения

Описание

Номер лота
31
Новостройка
Срок ГК
Сдан
Стадия строительства
Тип здания
встроенное помещение
Этаж
1
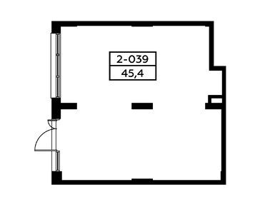
Площадь
47.10 м2
Высота потолка
4.70
Окна
с видом на улицу
Вход в помещение
отдельный с улицы
Выделенная электрическая мощность
14 кВт
Отделка
без отделки
Пожарная сигнализация
есть
Водопровод
есть
Канализация
есть
Рекомендованное назначение
Торговое

Расположение

Поселок
ТиНАО
Район
Сосенское С/П
Шоссе
Калужское 7 км от МКАД
Дом
2.4
Адрес
жилой комплекс Дзен-кварталы, 2.4

Особенности

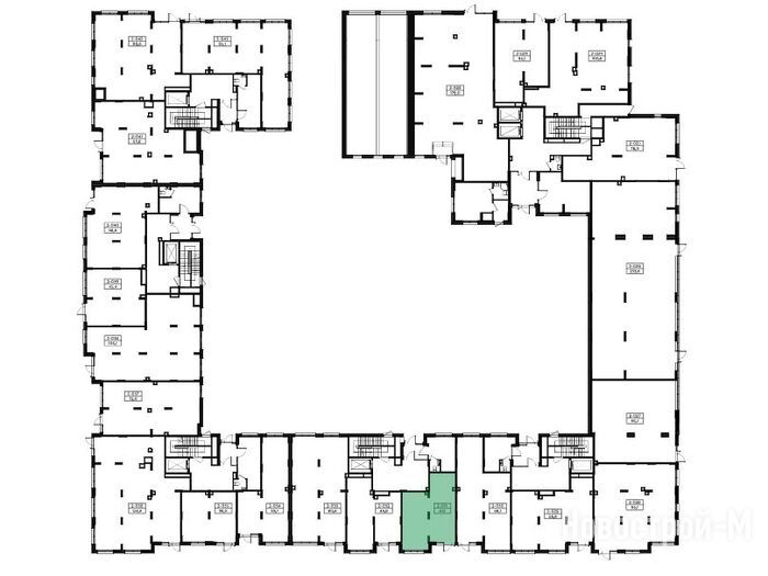
Сдаётся торговое помещение площадью 47.1 кв. м. в новостройке ЖК «Дзен-кварталы» по адресу Москва, ТиНАО, Новомосковский АО, Сосенское С/П, жилой комплекс Дзен-кварталы, 2.4. Без отделки. Окна с видом на улицу. Высота потолков 4.7 м. Выделенная электрическая мощность — 14 кВт. Отдельный вход с улицы. Стоимость аренды помещения — 141 300 руб. в месяц . Способы оплаты и более подробная информация по телефону.

Планировка

Корпус 2.4 (Сдан)
Где арендовать помещение
ООО «А101»
ООО «А101»
09:00 — 21:00
Заказать обратный звонок
Задать вопрос
Выбирайте квартиру в ЖК «Дзен-кварталы» по ценам от застройщика ООО «А101».
Посмотреть все спецпредложения

Еще помещения в ЖК «Дзен-кварталы»

Аренда
Дом сдан
Москва, Новомосковский АО
Новомосковская (Коммунарка)
10 мин.
4.70
Высота потолка
Паркинг
Окна
отдельный с улицы
Вход
2.4
Корпус
ЖК «Дзен-кварталы»
Аренда
Дом сдан
Москва, Новомосковский АО
Новомосковская (Коммунарка)
10 мин.
3.99
Высота потолка
Паркинг
Окна
отдельный с улицы
Вход
2.4
Корпус
ЖК «Дзен-кварталы»
Аренда
1 квартал 2026
Москва, Новомосковский АО
Новомосковская (Коммунарка)
10 мин.
4.10
Высота потолка
Паркинг
Окна
отдельный с улицы
Вход
6.2.1
Корпус
ЖК «Дзен-кварталы»
Аренда
Дом сдан
Москва, Новомосковский АО
Новомосковская (Коммунарка)
10 мин.
5.21
Высота потолка
Паркинг
Окна
отдельный с улицы
Вход
2.2
Корпус
ЖК «Дзен-кварталы»

Скидки и спецпредложения от застройщиков

ЖК «Дзен-кварталы» на карте

Выгодные предложения на новостройки