Рейтинг@Mail.ru
Переверните экран
Новостройки Квартиры Ипотека Новостройки Москвы Новостройки Подмосковья Новостройки Новой Москвы Готовые новостройки Новостройки на карте Акции от застройщиков Коммерческие помещения Продавцы и застройщики Панорамы новостроек Видеообзор новостроек Экспертиза новостроек Экология Москвы и Подмосковья Студии 1-комнатные 2-комнатные 3-комнатные Квартиры на карте Ипотечный калькулятор Семейная ипотека Военная ипотека Банки и программы Медиа Новости недвижимости Мнение эксперта Аналитика рынка Покупателю Экспертиза новостроек Эксперты и авторы О проекте Контакты Реклама на сайте Vk Youtube Telegram Дзен Машиноместа Апартаменты #траншевая ипотека #рассрочка IT-ипотека Квартиры со скидками до 40% Видео 360° новостроек Субсидированная застройщиком Rutube Поиск дома в Москве Программа реновации в Москве Новостройки премиум-класса Новостройки бизнес-класса Рассрочка Траншевая ипотека ГАЛС Дома и коттеджи Бизнес-центры Бизнес-центры в Москве Бизнес-центры рядом с метро Строящиеся бизнес-центры Бизнес-центры класса A Бизнес-центры класса B ЛСР

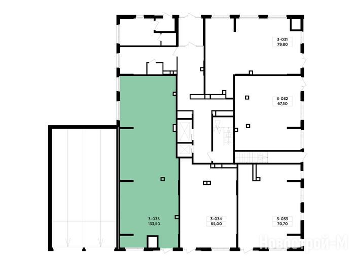
Торговое помещение, 133.50 м 2

Москва, ТиНАО, Новомосковский АО, Сосенское С/П, жилой комплекс Дзен-кварталы, 3.3
33 985 095
254 570 2
обновлено 18 декабря
Узнать про коммерческие помещения

Описание

Номер лота
35
Новостройка
Срок ГК
4 квартал 2025
Тип здания
встроенное помещение
Этаж
1
Площадь
133.50 м2
Высота потолка
4.74
Окна
с видом во двор и на улицу
Вход в помещение
отдельный с улицы
Выделенная электрическая мощность
27 кВт
Отделка
без отделки
Пожарная сигнализация
есть
Водопровод
есть
Канализация
есть
Рекомендованное назначение
Торговое

Расположение

Поселок
ТиНАО
Район
Сосенское С/П
Шоссе
Калужское 7 км от МКАД
Дом
3.3
Адрес
жилой комплекс Дзен-кварталы, 3.3

Особенности

Продаётся торговое помещение площадью 133.5 кв. м. в новостройке ЖК «Дзен-кварталы» по адресу Москва, ТиНАО, Новомосковский АО, Сосенское С/П, жилой комплекс Дзен-кварталы, 3.3. Без отделки. Окна с видом во двор и на улицу. Высота потолков 4.74 м. Выделенная электрическая мощность — 27 кВт. Отдельный вход с улицы. Стоимость помещения — 33 985 095 руб. Способы оплаты и более подробная информация по телефону.

Планировка

Корпус 3.3 (ГК 4 квартал 2025)
Где купить помещение
ООО «А101»
ООО «А101»
09:00 — 21:00
Заказать обратный звонок
Задать вопрос
Выбирайте квартиру в ЖК «Дзен-кварталы» по ценам от застройщика ООО «А101».
Посмотреть все спецпредложения

Еще помещения в ЖК «Дзен-кварталы»

Продажа
3 квартал 2026
Москва, Новомосковский АО
Новомосковская (Коммунарка)
10 мин.
4.69
Высота потолка
Паркинг
Окна
отдельный с улицы
Вход
6.1.3
Корпус
ЖК «Дзен-кварталы»
Продажа
2 квартал 2026
Москва, Новомосковский АО
Новомосковская (Коммунарка)
10 мин.
4.69
Высота потолка
Паркинг
Окна
отдельный с улицы
Вход
6.1.2
Корпус
ЖК «Дзен-кварталы»
Продажа
4 квартал 2027
Москва, Новомосковский АО
Новомосковская (Коммунарка)
10 мин.
5.31
Высота потолка
Паркинг
Окна
отдельный с улицы
Вход
5.3
Корпус
ЖК «Дзен-кварталы»
Продажа
4 квартал 2027
Москва, Новомосковский АО
Новомосковская (Коммунарка)
10 мин.
5.31
Высота потолка
Паркинг
Окна
отдельный с улицы
Вход
5.3
Корпус
ЖК «Дзен-кварталы»

Скидки и спецпредложения от застройщиков

ЖК «Дзен-кварталы» на карте

Выгодные предложения на новостройки