Рейтинг@Mail.ru
Переверните экран
Новостройки Квартиры Ипотека Новостройки Москвы Новостройки Подмосковья Новостройки Новой Москвы Готовые новостройки Новостройки на карте Акции от застройщиков Коммерческие помещения Продавцы и застройщики Панорамы новостроек Видеообзор новостроек Экспертиза новостроек Экология Москвы и Подмосковья Студии 1-комнатные 2-комнатные 3-комнатные Квартиры на карте Ипотечный калькулятор Семейная ипотека Военная ипотека Банки и программы Медиа Новости недвижимости Мнение эксперта Аналитика рынка Покупателю Экспертиза новостроек Эксперты и авторы О проекте Контакты Реклама на сайте Vk Youtube Telegram Дзен Машиноместа Апартаменты #траншевая ипотека #рассрочка IT-ипотека Квартиры со скидками до 40% Видео 360° новостроек Субсидированная застройщиком Rutube Поиск дома в Москве Программа реновации в Москве Новостройки премиум-класса Новостройки бизнес-класса Рассрочка Траншевая ипотека ГАЛС Дома и коттеджи Бизнес-центры Бизнес-центры в Москве Бизнес-центры рядом с метро Строящиеся бизнес-центры Бизнес-центры класса A Бизнес-центры класса B ЛСР

Торговое помещение, 103.50 м 2

Москва, ТиНАО, Новомосковский АО, Марушкинское С/П, Внуково, жилой комплекс Родные Кварталы, корп. 3.1
35 418 735
342 210 2
обновлено 18 декабря
Узнать про коммерческие помещения

Описание

Номер лота
13
Срок ГК
2 квартал 2026
Стадия строительства
Тип здания
встроенное помещение
Этаж
1
Площадь
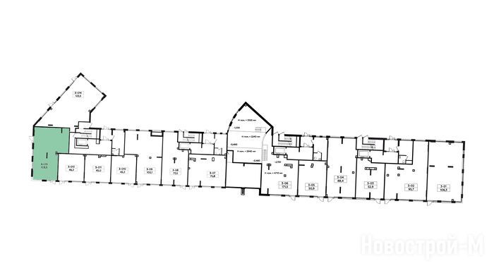
103.50 м2
Высота потолка
4.90
Окна
с видом на улицу
Вход в помещение
отдельный с улицы
Выделенная электрическая мощность
21 кВт
Водопровод
есть
Канализация
есть
Рекомендованное назначение
Торговое

Расположение

Поселок
ТиНАО
Район
Марушкинское С/П
Станция МЦК
Толстопальцево
25 мин.
Кокошкино
40 мин.
Шоссе
Боровское 18 км от МКАД
Дом
3.1
Адрес
Внуково, жилой комплекс Родные Кварталы, корп. 3.1

Особенности

Продаётся торговое помещение площадью 103.5 кв. м. в новостройке Жилой район «Родные кварталы» по адресу Москва, ТиНАО, Новомосковский АО, Марушкинское С/П, Внуково, жилой комплекс Родные Кварталы, корп. 3.1. Окна с видом на улицу. Высота потолков 4.9 м. Выделенная электрическая мощность — 21 кВт. Отдельный вход с улицы. Стоимость помещения — 35 418 735 руб. Способы оплаты и более подробная информация по телефону.

Планировка

Корпус 3.1 (ГК 2 квартал 2026)
Где купить помещение
ООО «А101»
ООО «А101»
09:00 — 21:00
Заказать обратный звонок
Задать вопрос
Выбирайте квартиру в Жилой район «Родные кварталы» по ценам от застройщика ООО «А101».
Посмотреть все спецпредложения

Еще помещения в Жилой район «Родные кварталы»

Продажа
4 квартал 2026
Москва, Новомосковский АО
Пыхтино
25 мин.
5.07
Высота потолка
Паркинг
Окна
отдельный с улицы
Вход
1.2
Корпус
Жилой район «Родные кварталы»
Продажа
2 квартал 2026
Москва, Новомосковский АО
Пыхтино
25 мин.
4.40
Высота потолка
Паркинг
Окна
отдельный с улицы
Вход
3.1
Корпус
Жилой район «Родные кварталы»
Продажа
2 квартал 2026
Москва, Новомосковский АО
Пыхтино
25 мин.
5.71
Высота потолка
Паркинг
Окна
отдельный с улицы
Вход
2
Корпус
Жилой район «Родные кварталы»
Продажа
4 квартал 2026
Москва, Новомосковский АО
Пыхтино
25 мин.
5.07
Высота потолка
Паркинг
Окна
отдельный с улицы
Вход
1.2
Корпус
Жилой район «Родные кварталы»

Скидки и спецпредложения от застройщиков

Жилой район «Родные кварталы» на карте

Выгодные предложения на новостройки