Рейтинг@Mail.ru
Переверните экран
Новостройки Квартиры Ипотека Новостройки Москвы Новостройки Подмосковья Новостройки Новой Москвы Готовые новостройки Новостройки на карте Акции от застройщиков Коммерческие помещения Продавцы и застройщики Панорамы новостроек Видеообзор новостроек Экспертиза новостроек Экология Москвы и Подмосковья Студии 1-комнатные 2-комнатные 3-комнатные Квартиры на карте Ипотечный калькулятор Семейная ипотека Военная ипотека Банки и программы Медиа Новости недвижимости Мнение эксперта Аналитика рынка Покупателю Экспертиза новостроек Эксперты и авторы О проекте Контакты Реклама на сайте Vk Youtube Telegram Дзен Машиноместа Апартаменты #траншевая ипотека #рассрочка ИТ-ипотека Квартиры со скидками до 40% Видео 360° новостроек Субсидированная застройщиком Rutube Поиск дома в Москве Программа реновации в Москве Новостройки премиум-класса Новостройки бизнес-класса Рассрочка Траншевая ипотека Дома и коттеджи Коттеджные поселки в Новой Москве Готовые коттеджные поселки Строящиеся коттеджные поселки Коттеджные поселки в лесу Коттеджные поселки у водоема Коттеджные поселки в ипотеку Бизнес-центры Коттеджи Ипотека со ставкой 0,1%

Машиноместо 3, 13.25 м2

Москва, ЗАО, Кунцево, ул. Ивана Франко
7 015 000
обновлено 26 апреля
Узнать про машиноместа

Описание

Новостройка
Тип парковки
подземная
Тип места
машиноместо
Общая площадь
13.25 м2
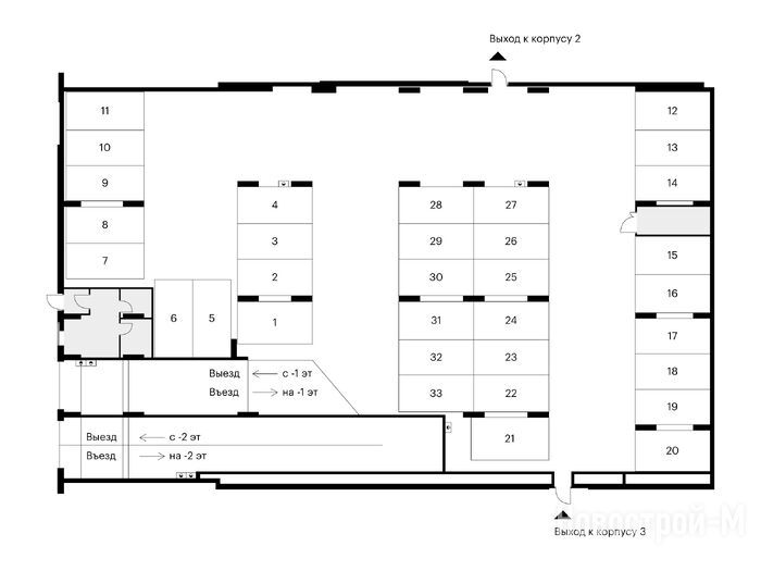
Номер м/м
3
Этаж
-1
Расположение
Секция 1
Отопление
есть
Электроснабжение
есть
Автоматические ворота
есть
Видеонаблюдение
есть
Пожарная сигнализация
есть
Застройщик
Тип проекта
монолит
Удобный доступ из корпусов
2, 3

Расположение

Район
ЗАО
Район
Кунцево
Станция МЦД
Кунцевская
9 мин.
Станция МЦК
Кутузовская
30 мин.
Адрес
ул. Ивана Франко

Особенности

Продается машиноместо в новостройке Кутузовский квартал по адресу Москва, ЗАО, Кунцево, ул. Ивана Франко. Общая площадь — 13.25 кв. м. Тип парковки — подземная. Стоимость машиноместа — 7015000 руб. Способы оплаты можно уточнить у продавца. Более подробная информация по телефону.

Планировка

Где купить машиноместо
ПИК
ПИК
02:00 — 21:00
Заказать обратный звонок
Задать вопрос
Посмотреть все спецпредложения

Еще машиноместа в Кутузовский квартал

Подземная , этаж -1
Москва, Кутузовский квартал
Кунцевская
9 мин.
Подземная , этаж -1
Москва, Кутузовский квартал
Кунцевская
9 мин.
Подземная , этаж -1
Москва, Кутузовский квартал
Кунцевская
9 мин.
Подземная , этаж -1
Москва, Кутузовский квартал
Кунцевская
9 мин.
Посмотреть все 5 машиномест в Кутузовский квартал
Подземная , этаж -1
Москва, Кутузовский квартал
Кунцевская
9 мин.
Подземная , этаж -1
Москва, Кутузовский квартал
Кунцевская
9 мин.
Подземная , этаж -1
Москва, Кутузовский квартал
Кунцевская
9 мин.
Подземная , этаж -1
Москва, Кутузовский квартал
Кунцевская
9 мин.
Посмотреть все 5 машиномест в Кутузовский квартал
Подземная , этаж -1
Москва, Кутузовский квартал
Кунцевская
9 мин.
Подземная , этаж -1
Москва, Кутузовский квартал
Кунцевская
9 мин.
Подземная , этаж -1
Москва, Кутузовский квартал
Кунцевская
9 мин.
Подземная , этаж -1
Москва, Кутузовский квартал
Кунцевская
9 мин.
Посмотреть все 5 машиномест в Кутузовский квартал
Подземная , этаж -1
Москва, Кутузовский квартал
Кунцевская
9 мин.
Подземная , этаж -1
Москва, Кутузовский квартал
Кунцевская
9 мин.
Подземная , этаж -1
Москва, Кутузовский квартал
Кунцевская
9 мин.
Подземная , этаж -1
Москва, Кутузовский квартал
Кунцевская
9 мин.
Посмотреть все 5 машиномест в Кутузовский квартал

Скидки и спецпредложения от застройщиков

Кутузовский квартал на карте

Выгодные предложения на новостройки

9 отзывов сортировать по:
дате добавления
А
Ангелина
02 апреля
Оценка:
Мы живем тут 8 лет, по адресу Будановой 20к1. Это старый дом, вокруг которого построили все эти комплексы. И с каждым годом жить здесь всё хуже и хуже. Бесконечные стройки 24/7, шум и вонища. Они строят днем, ночью, в выходные. Летом невозможно спать с открытыми окнами. У них постоянно происходят пожары и всегда страшно, что огонь перейдет на наш дом. Это самая настоящая пытка. Хорошо подумайте прежде, чем заселяться в этот кошмар, потому что рядом собираются строить еще дома. Это ужасно и невыносимо. Иногда мне хочется умереть, чтобы это все закончилось наконец.
Ответить
И
Игорь
28 июня 2025
Оценка:
Достоинства
Транспортная доступность
Социальная инфраструктура
Планировки
Готовность
Внешний вид фасада
Отличный район, транспортная доступность
Ответить
РТ
Роман Т.
18 февраля 2025
Оценка:
Достоинства
Транспортная доступность
Двор, окружение
Супер жк, отлично расположен всего в 8 минутах от станции метро Кунцевская, есть выбор планировок, в т.ч. с балконами, мастер-спальнями, гардеробными и т.д.
Ответить
ОС
Олег Семенов
21 октября 2024
Оценка:
Достоинства
Транспортная доступность
Социальная инфраструктура
Планировки
Расположение
Из плюсов хочется отметить следующее - террасы, угловое остекление, мастер-спальни, большие гардеробные. Выглядит достаточно нетипично для ПИКа. Район хороший, с транспортом все ок. Всякой инфраструктуры хватает. так что достойно.
Ответить
С
София
22 июля 2024
Оценка:
Достоинства
Планировки
Способы покупки
Расположение
Я хотела бы поделиться своими впечатлениями о ЖК, который мы рассматривали для покупки квартиры. Изначально цены на студии начинались от 9 миллионов рублей, а на однокомнатные квартиры — от 13 миллионов. Однако сейчас таких цен уже нет, и продажи идут не так быстро. Я жалею, что не успела забронировать квартиру на старте продаж, и надеюсь, что цены немного снизятся.
Ответить

Оставить отзыв

Добавьте отзыв, заполнив личные данные, или сначала войдите на сайт, тогда информация будет автоматически взята из личного профиля.
Оценка*