Рейтинг@Mail.ru
Переверните экран
Новостройки Квартиры Ипотека Новостройки Москвы Новостройки Подмосковья Новостройки Новой Москвы Готовые новостройки Новостройки на карте Акции от застройщиков Коммерческие помещения Продавцы и застройщики Панорамы новостроек Видеообзор новостроек Экспертиза новостроек Экология Москвы и Подмосковья Студии 1-комнатные 2-комнатные 3-комнатные Квартиры на карте Ипотечный калькулятор Семейная ипотека Военная ипотека Банки и программы Медиа Новости недвижимости Мнение эксперта Аналитика рынка Покупателю Экспертиза новостроек Эксперты и авторы О проекте Контакты Реклама на сайте Vk Youtube Telegram Дзен Машиноместа Апартаменты #траншевая ипотека #рассрочка ИТ-ипотека Квартиры со скидками до 40% Видео 360° новостроек Субсидированная застройщиком Rutube Поиск дома в Москве Программа реновации в Москве Новостройки премиум-класса Новостройки бизнес-класса Рассрочка Траншевая ипотека Дома и коттеджи Коттеджные поселки в Новой Москве Готовые коттеджные поселки Строящиеся коттеджные поселки Коттеджные поселки в лесу Коттеджные поселки у водоема Коттеджные поселки в ипотеку Бизнес-центры Коттеджи Ипотека со ставкой 0,1%
3-комн. квартира, 73.20 м2, 10 этаж
Срок сдачи 2 квартал 2028 года
37 874 115 
517 406 2
обновлено 26 апреля

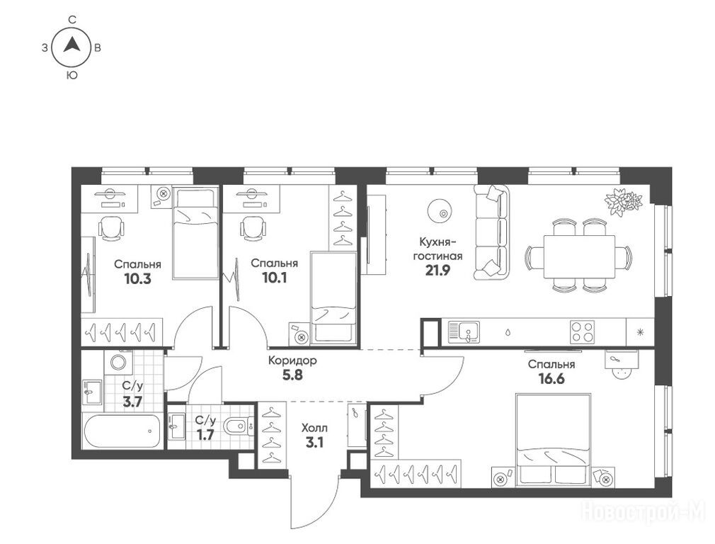
Описание 3-комн. квартиры

Новостройка
Застройщик
Срок ГК
2 квартал 2028 года
Стадия строительства
уточняется
Общая площадь
73.20 м2
Этаж
10 / 13
Отделка
нет
Грузовой лифт
есть

Расположение 3-комн. квартиры

Локация
Дом
1
Адрес
3-я Гражданская, вл. 1, корп. 1, секция 1

Способы покупки

Особенности

Продается трехкомнатная квартира в новостройке ЖК «Соколин парк» по адресу Москва, ВАО, Богородское, 3-я Гражданская, вл. 1, корп. 1. Общая площадь квартиры - 73.2 кв. м. Тип проекта, по которому построен дом — Монолитно-кирпичный, компания-застройщик — Группа «Эталон». Стоимость квартиры — 37 874 115 руб. Способы оплаты можно уточнить у продавца. Срок сдачи — 2 квартал 2028. Более подробная информация по телефону.
Инфоцентр новостроек
Инфоцентр новостроек
+7 (499) 705-91-41
Время работы 9:00 — 21:00
Этаж 11/13
Москва, ЖК «Соколин парк»
Преображенская площадь
16 мин.
Строится
1-комн. квартира 36,90 м2 22 368 814
Этаж 7/22
Москва, ЖК «Соколин парк»
Преображенская площадь
16 мин.
Строится
1-комн. квартира 38,40 м2 23 221 256
Этаж 6/13
Москва, ЖК «Соколин парк»
Преображенская площадь
16 мин.
Строится
1-комн. квартира 39,20 м2 22 163 676
Этаж 4/13
Москва, ЖК «Соколин парк»
Преображенская площадь
16 мин.
Строится
Посмотреть 15 квартир в ЖК «Соколин парк»
2-комн. квартира 50,40 м2 27 906 976
Этаж 10/13
Москва, ЖК «Соколин парк»
Преображенская площадь
16 мин.
Строится
2-комн. квартира 52,80 м2 28 022 391
Этаж 5/13
Москва, ЖК «Соколин парк»
Преображенская площадь
16 мин.
Строится
2-комн. квартира 54,40 м2 25 150 365
Этаж 3/13
Москва, ЖК «Соколин парк»
Преображенская площадь
16 мин.
Строится
2-комн. квартира 58,50 м2 29 581 966
Этаж 12/22
Москва, ЖК «Соколин парк»
Преображенская площадь
16 мин.
Строится
Посмотреть 17 квартир в ЖК «Соколин парк»
3-комн. квартира 78,70 м2 32 105 852
Этаж 6/13
Москва, ЖК «Соколин парк»
Преображенская площадь
16 мин.
Строится
3-комн. квартира 79,50 м2 34 743 836
Этаж 3/13
Москва, ЖК «Соколин парк»
Преображенская площадь
16 мин.
Строится
Этаж 2/22
Москва, ЖК «Соколин парк»
Преображенская площадь
16 мин.
Строится
3-комн. квартира 82,50 м2 40 649 557
Этаж 4/22
Москва, ЖК «Соколин парк»
Преображенская площадь
16 мин.
Строится
Посмотреть 8 квартир в ЖК «Соколин парк»

Скидки и спецпредложения от застройщиков

ЖК «Соколин парк» на карте

Выгодные предложения на новостройки

Отзывы о ЖК «Соколин парк»

Самый полезный отзыв
АК
17 декабря 2025
Оценка:
Достоинства
Планировки
Способы покупки
Выбрала Соколин Парк именно из‑за чистового старта: без отделки могу собрать интерьер под себя.
Ответить
Самый новый отзыв
МА
05 февраля
Оценка:
Достоинства
Планировки
Внешний вид фасада
Двор, окружение
Расположение
Внутренний двор в Соколин парке без машин - хороший формат для прогулок. Ну и сам концепт неплохой - планируются 2 башни, 15 и 22 этажные с общим двором
Ответить

Оставить отзыв

Добавьте отзыв, заполнив личные данные, или сначала войдите на сайт, тогда информация будет автоматически взята из личного профиля.
Оценка*