Рейтинг@Mail.ru
Переверните экран
Новостройки Квартиры Ипотека Новостройки Москвы Новостройки Подмосковья Новостройки Новой Москвы Готовые новостройки Новостройки на карте Акции от застройщиков Коммерческие помещения Продавцы и застройщики Панорамы новостроек Видеообзор новостроек Экспертиза новостроек Экология Москвы и Подмосковья Студии 1-комнатные 2-комнатные 3-комнатные Квартиры на карте Ипотечный калькулятор Семейная ипотека Военная ипотека Банки и программы Медиа Новости недвижимости Мнение эксперта Аналитика рынка Покупателю Экспертиза новостроек Эксперты и авторы О проекте Контакты Реклама на сайте Vk Youtube Telegram Дзен Машиноместа Апартаменты #траншевая ипотека #рассрочка ИТ-ипотека Квартиры со скидками до 40% Видео 360° новостроек Субсидированная застройщиком Rutube Поиск дома в Москве Программа реновации в Москве Новостройки премиум-класса Новостройки бизнес-класса Рассрочка Траншевая ипотека Дома и коттеджи Коттеджные поселки в Новой Москве Готовые коттеджные поселки Строящиеся коттеджные поселки Коттеджные поселки в лесу Коттеджные поселки у водоема Коттеджные поселки в ипотеку Бизнес-центры Коттеджи Ипотека со ставкой 0,1%
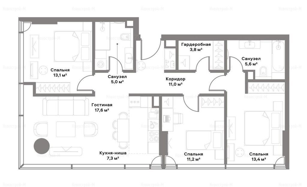
3-комн. квартира, 88.20 м2, 33 этаж
Срок сдачи 2 квартал 2027 года
95 603 861 
103 917 240
1 083 944 2
обновлено 19 мая

Описание 3-комн. квартиры

Новостройка
Застройщик
Срок ГК
2 квартал 2027 года
Стадия строительства
отделка фасада
Общая площадь
88.20 м2
Этаж
33 / 37
Отделка
нет

Расположение 3-комн. квартиры

Локация
Станция МЦД
Дом
F (оч. 2)
Адрес
пр-т Ленинградский, вл. 8 , корп. F, секция 1

Особенности

Продается трехкомнатная квартира в новостройке ЖК «Слава» по адресу Москва, САО, Беговой, пр-т Ленинградский, вл. 8 , корп. F. Общая площадь квартиры - 88.2 кв. м. Тип проекта, по которому построен дом — Монолитно-кирпичный, компания-застройщик — MR Group (МР Групп). Стоимость квартиры — 95 603 861 руб. Способы оплаты можно уточнить у продавца. Срок сдачи — 2 квартал 2027. Более подробная информация по телефону.
Инфоцентр новостроек
Инфоцентр новостроек
+7 (499) 705-91-41
Время работы 9:00 — 21:00
студия 28,10 м2 32 286 563
Этаж 37/37
Москва, ЖК «Слава»
Белорусская
5 мин.
Строится
студия 28,50 м2 28 925 904
Этаж 11/37
Москва, ЖК «Слава»
Белорусская
5 мин.
Строится
студия 28,80 м2 29 545 690
Этаж 15/37
Москва, ЖК «Слава»
Белорусская
5 мин.
Строится
студия 28,90 м2 33 601 914
Этаж 35/37
Москва, ЖК «Слава»
Белорусская
5 мин.
Строится
Посмотреть 27 квартир в ЖК «Слава»
1-комн. квартира 36,40 м2 38 705 430
Этаж 4/37
Москва, ЖК «Слава»
Белорусская
5 мин.
Строится
1-комн. квартира 36,90 м2 39 749 713
Этаж 13/37
Москва, ЖК «Слава»
Белорусская
5 мин.
Строится
1-комн. квартира 37,20 м2 41 414 462
Этаж 37/37
Москва, ЖК «Слава»
Белорусская
5 мин.
Строится
1-комн. квартира 37,90 м2 40 004 056
Этаж 9/37
Москва, ЖК «Слава»
Белорусская
5 мин.
Строится
Посмотреть 42 квартиры в ЖК «Слава»
2-комн. квартира 62,00 м2 58 146 576
Этаж 8/37
Москва, ЖК «Слава»
Белорусская
5 мин.
Строится
2-комн. квартира 62,40 м2 58 659 494
Этаж 4/36
Москва, ЖК «Слава»
Белорусская
5 мин.
Строится
2-комн. квартира 62,80 м2 62 010 981
Этаж 24/37
Москва, ЖК «Слава»
Белорусская
5 мин.
Строится
2-комн. квартира 63,90 м2 63 285 282
Этаж 34/37
Москва, ЖК «Слава»
Белорусская
5 мин.
Строится
Посмотреть 43 квартиры в ЖК «Слава»
3-комн. квартира 86,70 м2 96 362 888
Этаж 35/37
Москва, ЖК «Слава»
Белорусская
5 мин.
Строится
3-комн. квартира 92,20 м2 84 637 387
Этаж 20/37
Москва, ЖК «Слава»
Белорусская
5 мин.
Строится
3-комн. квартира 96,70 м2 98 145 085
Этаж 19/36
Москва, ЖК «Слава»
Белорусская
5 мин.
Строится
3-комн. квартира 100,60 м2 95 078 670
Этаж 22/37
Москва, ЖК «Слава»
Белорусская
5 мин.
Строится
Посмотреть 15 квартир в ЖК «Слава»
4-комн. квартира 115,10 м2 97 960 689
Этаж 7/37
Москва, ЖК «Слава»
Белорусская
5 мин.
Строится
4-комн. квартира 125,20 м2 107 386 043
Этаж 7/37
Москва, ЖК «Слава»
Белорусская
5 мин.
Строится
4-комн. квартира 125,70 м2 123 565 614
Этаж 14/37
Москва, ЖК «Слава»
Белорусская
5 мин.
Строится
4-комн. квартира 126,60 м2 126 558 475
Этаж 23/37
Москва, ЖК «Слава»
Белорусская
5 мин.
Строится
Посмотреть 5 квартир в ЖК «Слава»

Скидки и спецпредложения от застройщиков

ЖК «Слава» на карте

Выгодные предложения на новостройки

Отзывы о ЖК «Слава»

Самый полезный отзыв
И
16 марта 2021
Оценка:
Проект интересный, стоит отдать должное архитекторам, которые разработали Славу и дизайнерам. Застрой любит привлекать в свою команду именитых участников, вот и получаются красивые новостройки.
Ответить
Самый новый отзыв
ЕЛ
31 марта
Оценка:
Достоинства
Транспортная доступность
Планировки
Отличный ЖК — всё на уровне! Квартиры просторные, есть удобная подземная парковка, а расположение просто супер: до центра на машине недалеко, зато не надо стоять в вечных пробках, как рядом с Садовым кольцом. И что приятно — цены тут куда приятнее, чем в центре!
Ответить

Оставить отзыв

Добавьте отзыв, заполнив личные данные, или сначала войдите на сайт, тогда информация будет автоматически взята из личного профиля.
Оценка*