Рейтинг@Mail.ru
Переверните экран
Новостройки Квартиры Ипотека Новостройки Москвы Новостройки Подмосковья Новостройки Новой Москвы Готовые новостройки Новостройки на карте Акции от застройщиков Коммерческие помещения Продавцы и застройщики Панорамы новостроек Видеообзор новостроек Экспертиза новостроек Экология Москвы и Подмосковья Студии 1-комнатные 2-комнатные 3-комнатные Квартиры на карте Ипотечный калькулятор Семейная ипотека Военная ипотека Банки и программы Медиа Новости недвижимости Мнение эксперта Аналитика рынка Покупателю Экспертиза новостроек Эксперты и авторы О проекте Контакты Реклама на сайте Vk Youtube Telegram Дзен Машиноместа Апартаменты #траншевая ипотека #рассрочка IT-ипотека Квартиры со скидками до 40% Видео 360° новостроек Субсидированная застройщиком Rutube Поиск дома в Москве Программа реновации в Москве Новостройки премиум-класса Новостройки бизнес-класса Рассрочка Траншевая ипотека ГАЛС Дома и коттеджи Бизнес-центры Бизнес-центры в Москве Бизнес-центры рядом с метро Строящиеся бизнес-центры Бизнес-центры класса A Бизнес-центры класса B ЛСР
Данная квартира является лидером продаж среди трехкомнатных квартир в ЖК «Поколение Первых» по данным Росреестра
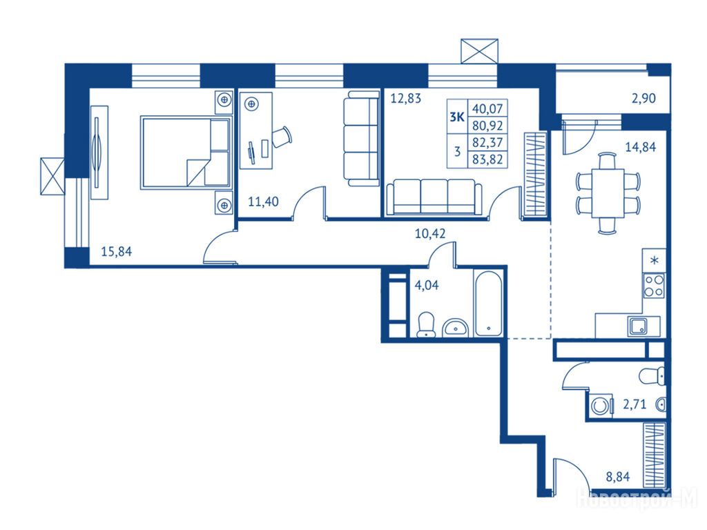
3-комн. квартира, 80.92 м2, 13 этаж
Срок сдачи 2 квартал 2028 года
17 397 800 
215 000 2
обновлено 5 декабря

Описание 3-комн. квартиры

Срок ГК
2 квартал 2028 года
Стадия строительства
монтаж нижних этажей
Общая площадь
80.92 м2
Жилая площадь
40.07 м2
Площадь кухни
14.84 м2
Этаж
13 / 22
Отделка
нет
Грузовой лифт
есть

Расположение 3-комн. квартиры

Станция МЦК
Ж/Д-станция
Мытищи
23 мин.
Болшево
25 мин.
Дом
2
Адрес
ул. Калининградская, корп. 2, секция 1

Особенности

Продается трехкомнатная квартира в новостройке ЖК «Поколение Первых» по адресу Московская область, Королев городской округ, Королев, ул. Калининградская, корп. 2. Общая площадь квартиры - 80.92 кв. м. Тип проекта, по которому построен дом — Монолитно-кирпичный, компания-застройщик — Профи-Инвест, ООО СЗ Профи-Королев. Стоимость квартиры — 17 397 800 руб. Способы оплаты можно уточнить у продавца. Срок сдачи — 2 квартал 2028. Более подробная информация по телефону.
Профи-Инвест
Профи-Инвест
Сданных 8
|
Строящихся 8
Время работы 09:00 — 21:00
Выбирайте квартиру в ЖК «Поколение Первых» по ценам от застройщика
Посмотреть все спецпредложения
студия 30,01 м2 6 692 230
Этаж 13/17
МО, ЖК «Поколение Первых»
Ростокино
34 мин.
Строится
студия 30,26 м2 6 899 280
Этаж 8/17
МО, ЖК «Поколение Первых»
Ростокино
34 мин.
Строится
студия 30,30 м2 6 817 500
Этаж 5/17
МО, ЖК «Поколение Первых»
Ростокино
34 мин.
Строится
студия 31,23 м2 6 964 290
Этаж 13/17
МО, ЖК «Поколение Первых»
Ростокино
34 мин.
Строится
Посмотреть 100 квартир в ЖК «Поколение Первых»
1-комн. квартира 35,55 м2 7 998 750
Этаж 7/17
МО, ЖК «Поколение Первых»
Ростокино
34 мин.
Строится
1-комн. квартира 35,91 м2 7 828 380
Этаж 10/17
МО, ЖК «Поколение Первых»
Ростокино
34 мин.
Строится
1-комн. квартира 36,21 м2 8 111 040
Этаж 5/17
МО, ЖК «Поколение Первых»
Ростокино
34 мин.
Строится
1-комн. квартира 36,68 м2 7 996 240
Этаж 10/17
МО, ЖК «Поколение Первых»
Ростокино
34 мин.
Строится
Посмотреть 185 квартир в ЖК «Поколение Первых»
2-комн. квартира 46,23 м2 9 939 450
Этаж 10/17
МО, ЖК «Поколение Первых»
Ростокино
34 мин.
Строится
2-комн. квартира 46,37 м2 9 923 180
Этаж 9/17
МО, ЖК «Поколение Первых»
Ростокино
34 мин.
Строится
2-комн. квартира 46,40 м2 10 254 400
Этаж 6/17
МО, ЖК «Поколение Первых»
Ростокино
34 мин.
Строится
2-комн. квартира 46,48 м2 10 132 640
Этаж 13/17
МО, ЖК «Поколение Первых»
Ростокино
34 мин.
Строится
Посмотреть 18 квартир в ЖК «Поколение Первых»
3-комн. квартира 80,39 м2 16 238 780
Этаж 2/16
МО, ЖК «Поколение Первых»
Ростокино
34 мин.
Строится
3-комн. квартира 80,92 м2 17 478 720
Этаж 20/22
МО, ЖК «Поколение Первых»
Ростокино
34 мин.
Строится
3-комн. квартира 81,22 м2 16 406 440
Этаж 2/16
МО, ЖК «Поколение Первых»
Ростокино
34 мин.
Строится
3-комн. квартира 81,24 м2 17 222 880
Этаж 10/22
МО, ЖК «Поколение Первых»
Ростокино
34 мин.
Строится
Посмотреть 37 квартир в ЖК «Поколение Первых»

Скидки и спецпредложения от застройщиков

ЖК «Поколение Первых» на карте

Выгодные предложения на новостройки

Отзывы о ЖК «Поколение Первых»

Самый полезный отзыв
ЖК
29 мая
Оценка:
Планировки
Способы покупки
Внешний вид фасада
Двор, окружение
Расположение
То, что комплекс состоит из 10 домов переменной этажности, мне нравится – не выглядит однообразно. Но самое интересное - они размещены на стилобатной части, в которой расположен двухуровневый паркинг и кладовые. Это очень удобно, все под рукой, не нужно далеко ходить. И места для машин, надеюсь, хватит всем.
Ответить
Полезный отзыв?
Самый новый отзыв
О
03 декабря
Оценка:
Экология
Социальная инфраструктура
Двор, окружение
Планировки
Очень жаль, что так и не могу дозвониться уже два дня.. Прошу обратить внимание руководителя отдела продаж, если он там вообще существует)) потому что трубки просто не берут… будто и продавать не хотят :) а жаль. Застройщик неплохой, место тоже . Есть еще минус- сайт) ну он очень древний и не удобно сделан вроде мелочи, но что стоит сделать красивый и функциональный сайт и хороших менеджеров укомплектовать)
Ответить
Полезный отзыв?
Добавьте отзыв, заполнив личные данные, или сначала войдите на сайт, тогда информация будет автоматически взята из личного профиля.
Оценка*