Рейтинг@Mail.ru
Переверните экран
Новостройки Квартиры Ипотека Новостройки Москвы Новостройки Подмосковья Новостройки Новой Москвы Готовые новостройки Новостройки на карте Акции от застройщиков Коммерческие помещения Продавцы и застройщики Панорамы новостроек Видеообзор новостроек Экспертиза новостроек Экология Москвы и Подмосковья Студии 1-комнатные 2-комнатные 3-комнатные Квартиры на карте Ипотечный калькулятор Семейная ипотека Военная ипотека Банки и программы Медиа Новости недвижимости Мнение эксперта Аналитика рынка Покупателю Экспертиза новостроек Эксперты и авторы О проекте Контакты Реклама на сайте Vk Youtube Telegram Дзен Машиноместа Апартаменты #траншевая ипотека #рассрочка ИТ-ипотека Квартиры со скидками до 40% Видео 360° новостроек Субсидированная застройщиком Rutube Поиск дома в Москве Программа реновации в Москве Новостройки премиум-класса Новостройки бизнес-класса Рассрочка Траншевая ипотека Дома и коттеджи Коттеджные поселки в Новой Москве Готовые коттеджные поселки Строящиеся коттеджные поселки Коттеджные поселки в лесу Коттеджные поселки у водоема Коттеджные поселки в ипотеку Бизнес-центры Коттеджи Ипотека со ставкой 0,1%
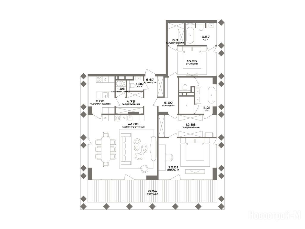
3-комн. квартира, 149.00 м2, 2 этаж
Срок сдачи 2 квартал 2029 года
426 475 566 
2 862 252 2
обновлено 24 апреля

Описание 3-комн. квартиры

Новостройка
Застройщик
Срок ГК
2 квартал 2029 года
Стадия строительства
котлован/фундамент
Тип проекта
монолит, железобетон
Общая площадь
149.00 м2
Жилая площадь
36.36 м2
Площадь кухни
41.89 м2
Этаж
2 / 14

Расположение 3-комн. квартиры

Локация
Дом
3
Адрес
пер. Пыжевский, вл. 5, корп. C, секция 3

Особенности

Продается трехкомнатная квартира в новостройке ЖК «Пыжёвский» по адресу Москва, ЦАО, Замоскворечье, пер. Пыжевский, вл. 5, корп. C. Общая площадь квартиры - 149 кв. м. Тип проекта, по которому построен дом — Монолит,Железобетон, компания-застройщик — ТЕКТА ГРУПП. Стоимость квартиры — 426 475 566 руб. Способы оплаты можно уточнить у продавца. Срок сдачи — 2 квартал 2029. Более подробная информация по телефону.
Инфоцентр новостроек
Инфоцентр новостроек
Время работы 9:00 — 21:00
Выбирайте квартиру в ЖК «Пыжёвский» по ценам от застройщика

Похожие квартиры в ЖК «Пыжёвский»

3 этаж
из 14 2 квартал 2029
Москва, ЦАО
Третьяковская
5 мин.
3
Корпус
нет данных
Отделка
3.14 м
Потолки
ЖК «Пыжёвский»
457 047 772
4 этаж
из 14 2 квартал 2029
Москва, ЦАО
Третьяковская
5 мин.
3
Корпус
нет данных
Отделка
3.14 м
Потолки
ЖК «Пыжёвский»
476 142 358
5 этаж
из 14 2 квартал 2029
Москва, ЦАО
Третьяковская
5 мин.
3
Корпус
нет данных
Отделка
3.14 м
Потолки
ЖК «Пыжёвский»
495 236 944
Этаж 2/14
Москва, ЖК «Пыжёвский»
Третьяковская
5 мин.
Строится
Этаж 2/9
Москва, ЖК «Пыжёвский»
Третьяковская
5 мин.
Строится
Этаж 5/9
Москва, ЖК «Пыжёвский»
Третьяковская
5 мин.
Строится
Посмотреть 8 квартир в ЖК «Пыжёвский»
Этаж 3/14
Москва, ЖК «Пыжёвский»
Третьяковская
5 мин.
Строится
Этаж 3/9
Москва, ЖК «Пыжёвский»
Третьяковская
5 мин.
Строится
Этаж 2/9
Москва, ЖК «Пыжёвский»
Третьяковская
5 мин.
Строится
Этаж 5/9
Москва, ЖК «Пыжёвский»
Третьяковская
5 мин.
Строится
Посмотреть 12 квартир в ЖК «Пыжёвский»

Скидки и спецпредложения от застройщиков

ЖК «Пыжёвский» на карте

Выгодные предложения на новостройки

Отзывы о ЖК «Пыжёвский»

А
08 января
Оценка:
Застройщик порадовал своевременной сдачей дома. Квартиры просторные, планировки удобные. Правда, зелёных насаждений во дворе маловато, но в целом всё ок.
Ответить

Оставить отзыв

Добавьте отзыв, заполнив личные данные, или сначала войдите на сайт, тогда информация будет автоматически взята из личного профиля.
Оценка*