Рейтинг@Mail.ru
Переверните экран
Новостройки Квартиры Ипотека Новостройки Москвы Новостройки Подмосковья Новостройки Новой Москвы Готовые новостройки Новостройки на карте Акции от застройщиков Коммерческие помещения Продавцы и застройщики Панорамы новостроек Видеообзор новостроек Экспертиза новостроек Экология Москвы и Подмосковья Студии 1-комнатные 2-комнатные 3-комнатные Квартиры на карте Ипотечный калькулятор Семейная ипотека Военная ипотека Банки и программы Медиа Новости недвижимости Мнение эксперта Аналитика рынка Покупателю Экспертиза новостроек Эксперты и авторы О проекте Контакты Реклама на сайте Vk Youtube Telegram Дзен Машиноместа Апартаменты #траншевая ипотека #рассрочка IT-ипотека Квартиры со скидками до 40% Видео 360° новостроек Субсидированная застройщиком Rutube Поиск дома в Москве Программа реновации в Москве Новостройки премиум-класса Новостройки бизнес-класса Рассрочка Траншевая ипотека ГАЛС Дома и коттеджи Бизнес-центры Бизнес-центры в Москве Бизнес-центры рядом с метро Строящиеся бизнес-центры Бизнес-центры класса A Бизнес-центры класса B ЛСР
3-комн. квартира, 65.50 м2, 19 этаж
Сдан
13 797 378 
210 647 2
обновлено 5 декабря

Описание 3-комн. квартиры

Срок ГК
Дом сдан
Стадия строительства
Общая площадь
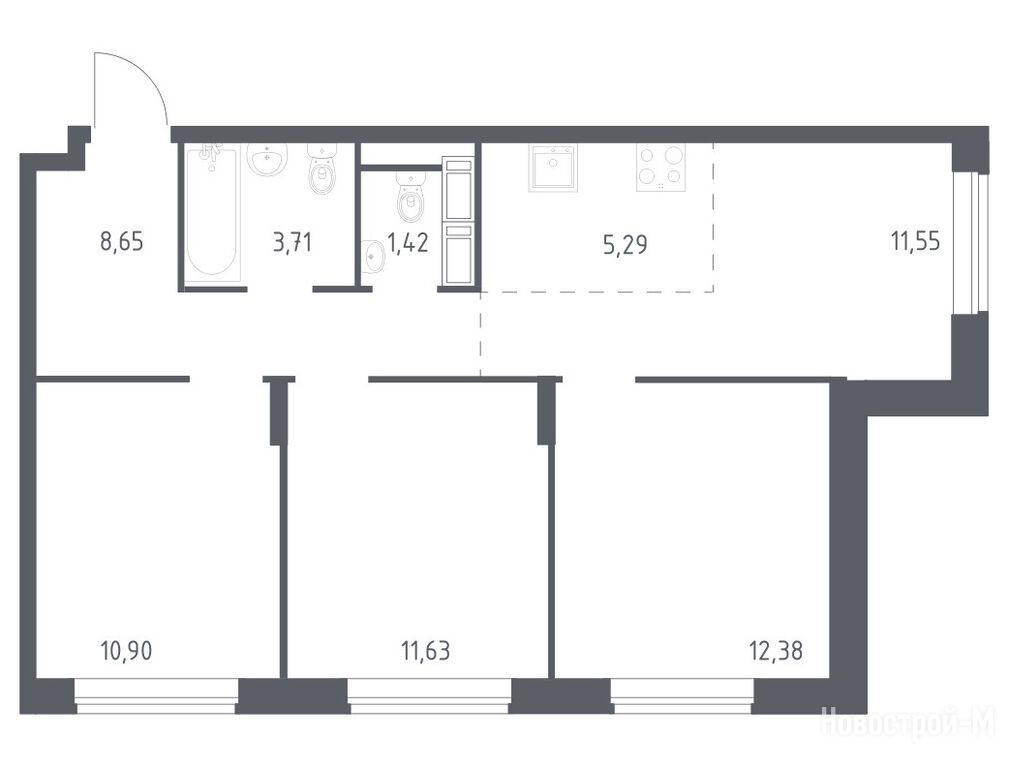
65.50 м2
Жилая площадь
34.91 м2
Площадь кухни
16.84 м2
Высота потолков
2.74
Этаж
19 / 22
Отделка
чистовая
Тип санузла
совмещенный

Расположение 3-комн. квартиры

Станция МЦД
Дом
32
Адрес
мкр. Новое Павлино, корп. 32

Способы покупки

Особенности

Продается трехкомнатная квартира в новостройке ЖК «Новоград Павлино» по адресу Московская область, Балашиха городской округ, Балашиха, мкр. Новое Павлино, корп. 32. Общая площадь квартиры - 65.5 кв. м. Тип проекта, по которому построен дом — Монолитно-кирпичный, компания-застройщик — Группа «Самолет», ООО СЗ «МИЦ-Инвестрой». Стоимость квартиры — 13 797 378 руб. Способы оплаты можно уточнить у продавца. Более подробная информация по телефону.

Правовые документы

Посмотреть все спецпредложения
студия 18,90 м2 4 687 577
Этаж 6/22
МО, ЖК «Новоград Павлино»
Железнодорожная
20 мин.
Сдан
студия 19,00 м2 5 627 743
Этаж 18/22
МО, ЖК «Новоград Павлино»
Железнодорожная
20 мин.
Сдан
студия 19,10 м2 5 733 400
Этаж 14/22
МО, ЖК «Новоград Павлино»
Железнодорожная
20 мин.
Сдан
студия 19,20 м2 5 445 926
Этаж 22/22
МО, ЖК «Новоград Павлино»
Железнодорожная
20 мин.
Сдан
Посмотреть 61 квартира в ЖК «Новоград Павлино»
1-комн. квартира 32,10 м2 7 500 711
Этаж 22/22
МО, ЖК «Новоград Павлино»
Железнодорожная
20 мин.
Сдан
1-комн. квартира 32,40 м2 7 637 522
Этаж 17/22
МО, ЖК «Новоград Павлино»
Железнодорожная
20 мин.
Сдан
1-комн. квартира 32,50 м2 7 585 565
Этаж 21/22
МО, ЖК «Новоград Павлино»
Железнодорожная
20 мин.
Сдан
1-комн. квартира 32,60 м2 7 102 497
Этаж 22/22
МО, ЖК «Новоград Павлино»
Железнодорожная
20 мин.
Сдан
Посмотреть 316 квартир в ЖК «Новоград Павлино»
2-комн. квартира 46,73 м2 10 648 272
Этаж 7/22
МО, ЖК «Новоград Павлино»
Железнодорожная
20 мин.
Строится
2-комн. квартира 54,20 м2 11 076 095
Этаж 20/22
МО, ЖК «Новоград Павлино»
Железнодорожная
20 мин.
Сдан
2-комн. квартира 55,20 м2 11 345 818
Этаж 20/22
МО, ЖК «Новоград Павлино»
Железнодорожная
20 мин.
Сдан
2-комн. квартира 55,50 м2 11 377 833
Этаж 22/22
МО, ЖК «Новоград Павлино»
Железнодорожная
20 мин.
Сдан
Посмотреть 37 квартир в ЖК «Новоград Павлино»
3-комн. квартира 71,80 м2 14 371 201
Этаж 21/22
МО, ЖК «Новоград Павлино»
Железнодорожная
20 мин.
Сдан
3-комн. квартира 89,10 м2 18 760 807
Этаж 15/22
МО, ЖК «Новоград Павлино»
Железнодорожная
20 мин.
Сдан

Скидки и спецпредложения от застройщиков

ЖК «Новоград Павлино» на карте

Выгодные предложения на новостройки

Самый полезный отзыв
П
02 августа 2018
Оценка:
Экология
Социальная инфраструктура
Планировки
Двор, окружение
Нам тоже говорили, что сдадут раньше. Но всякое бывает, и не смотря на просрочки, нам по-прежнему все нравится. Все мы знаем, что МИЦ надежный и достроит обязательно.
Ответить
Полезный отзыв?
Самый новый отзыв
ОС
27 ноября
Оценка:
Сначала отказался от покупки здесь из‑за пробок и транспортной доступности. Потом пожалел в своём доме шумоизоляция никакая, инфраструктура слабая. Заехал посмотреть район заметно изменился дворы ухоженные, есть магазины и площадки. Опять хочу купить тут квартиру)
Ответить
Полезный отзыв?
Добавьте отзыв, заполнив личные данные, или сначала войдите на сайт, тогда информация будет автоматически взята из личного профиля.
Оценка*