Рейтинг@Mail.ru
Переверните экран
Новостройки Квартиры Ипотека Новостройки Москвы Новостройки Подмосковья Новостройки Новой Москвы Готовые новостройки Новостройки на карте Акции от застройщиков Коммерческие помещения Продавцы и застройщики Панорамы новостроек Видеообзор новостроек Экспертиза новостроек Экология Москвы и Подмосковья Студии 1-комнатные 2-комнатные 3-комнатные Квартиры на карте Ипотечный калькулятор Семейная ипотека Военная ипотека Банки и программы Медиа Новости недвижимости Мнение эксперта Аналитика рынка Покупателю Экспертиза новостроек Эксперты и авторы О проекте Контакты Реклама на сайте Vk Youtube Telegram Дзен Машиноместа Апартаменты #траншевая ипотека #рассрочка IT-ипотека Квартиры со скидками до 40% Видео 360° новостроек Субсидированная застройщиком Rutube Поиск дома в Москве Программа реновации в Москве Новостройки премиум-класса Новостройки бизнес-класса Рассрочка Траншевая ипотека ГАЛС Дома и коттеджи Бизнес-центры Бизнес-центры в Москве Бизнес-центры рядом с метро Строящиеся бизнес-центры Бизнес-центры класса A Бизнес-центры класса B ЛСР
3-комн. квартира, 66.22 м2, 9 этаж
Срок сдачи 2 квартал 2027 года
26 370 224 
30 403 317
398 221 2
обновлено 5 декабря

Описание 3-комн. квартиры

Застройщик
Срок ГК
2 квартал 2027 года
Стадия строительства
Тип проекта
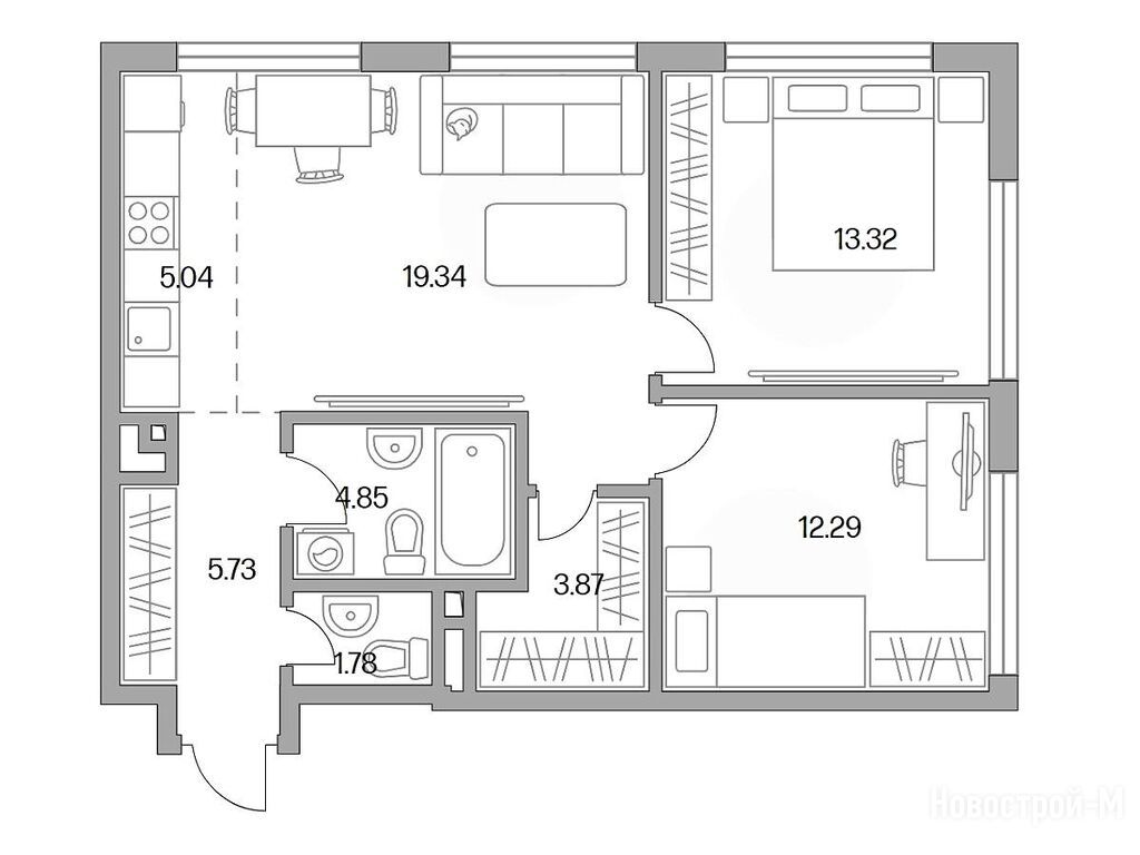
Общая площадь
66.22 м2
Жилая площадь
25.61 м2
Площадь кухни
24.38 м2
Этаж
9 / 30
Отделка
white box
Грузовой лифт
есть

Расположение 3-комн. квартиры

Локация
Метро
Станция МЦК
Дом
1
Адрес
ш. Каширское, 1с17, корп. 1, секция 2

Способы покупки

Особенности

Продается трехкомнатная квартира в новостройке ЖК «BeLuck Коломенское» (БиЛак Коломенское) по адресу Москва, ЮАО, Нагатино-Садовники, ш. Каширское, 1с17, корп. 1. Общая площадь квартиры - 66.22 кв. м. Тип проекта, по которому построен дом — Монолит, компания-застройщик — ГК «Гранель». Стоимость квартиры — 26 370 224 руб. Способы оплаты можно уточнить у продавца. Срок сдачи — 2 квартал 2027. Более подробная информация по телефону.
ГК «Гранель»
ГК «Гранель»
Сданных 16
|
Строящихся 16
Время работы 09:00 — 21:00
Выбирайте квартиру в ЖК «BeLuck Коломенское» (БиЛак Коломенское) по ценам от застройщика

Похожие квартиры в ЖК «BeLuck Коломенское» (БиЛак Коломенское)

4 этаж
из 30 2 квартал 2027
Москва, ЮАО
Нагатинская
14 мин.
1
Корпус
white box
Отделка
2.70 м
Потолки
ЖК «BeLuck Коломенское» (БиЛак Коломенское)
26 175 130 30 178 385
ВТБ, Всероссийский банк развития регионов, Сургутнефтегазбанк, Азиатско-Тихоокеанский Банк, СберБанк, Банк Санкт-Петербург, Совкомбанк, Абсолют Банк, Примсоцбанк, Металлинвестбанк, Россельхозбанк, ДОМ.РФ, Уралсиб, Промсвязьбанк, Севергазбанк, Московский Кредитный Банк, МТС Банк, Альфа-Банк
6.00%
Ставка
40.10%
Первый взнос
от 156 933 /мес.
Все варианты
5 этаж
из 30 2 квартал 2027
Москва, ЮАО
Нагатинская
14 мин.
1
Корпус
white box
Отделка
2.70 м
Потолки
ЖК «BeLuck Коломенское» (БиЛак Коломенское)
26 175 130 30 178 385
ВТБ, Всероссийский банк развития регионов, Сургутнефтегазбанк, Азиатско-Тихоокеанский Банк, СберБанк, Банк Санкт-Петербург, Совкомбанк, Абсолют Банк, Примсоцбанк, Металлинвестбанк, Россельхозбанк, ДОМ.РФ, Уралсиб, Промсвязьбанк, Севергазбанк, Московский Кредитный Банк, МТС Банк, Альфа-Банк
6.00%
Ставка
40.10%
Первый взнос
от 156 933 /мес.
Все варианты
7 этаж
из 30 2 квартал 2027
Москва, ЮАО
Нагатинская
14 мин.
1
Корпус
white box
Отделка
2.70 м
Потолки
ЖК «BeLuck Коломенское» (БиЛак Коломенское)
26 370 224 30 403 317
ВТБ, Всероссийский банк развития регионов, Сургутнефтегазбанк, Азиатско-Тихоокеанский Банк, СберБанк, Банк Санкт-Петербург, Совкомбанк, Абсолют Банк, Примсоцбанк, Металлинвестбанк, Россельхозбанк, ДОМ.РФ, Уралсиб, Промсвязьбанк, Севергазбанк, Московский Кредитный Банк, МТС Банк, Альфа-Банк
6.00%
Ставка
40.10%
Первый взнос
от 158 103 /мес.
Все варианты
11 этаж
из 30 2 квартал 2027
Москва, ЮАО
Нагатинская
14 мин.
1
Корпус
white box
Отделка
2.70 м
Потолки
ЖК «BeLuck Коломенское» (БиЛак Коломенское)
26 370 224 30 403 317
ВТБ, Всероссийский банк развития регионов, Сургутнефтегазбанк, Азиатско-Тихоокеанский Банк, СберБанк, Банк Санкт-Петербург, Совкомбанк, Абсолют Банк, Примсоцбанк, Металлинвестбанк, Россельхозбанк, ДОМ.РФ, Уралсиб, Промсвязьбанк, Севергазбанк, Московский Кредитный Банк, МТС Банк, Альфа-Банк
6.00%
Ставка
40.10%
Первый взнос
от 158 103 /мес.
Все варианты
Посмотреть все спецпредложения
студия 27,65 м2 14 513 650
Этаж 3/30
Москва, ЖК «BeLuck Коломенское» (БиЛак Коломенское)
Нагатинская
14 мин.
Строится
Этаж 11/32
Москва, ЖК «BeLuck Коломенское» (БиЛак Коломенское)
Нагатинская
14 мин.
Строится
студия 32,56 м2 15 779 940
Этаж 5/23
Москва, ЖК «BeLuck Коломенское» (БиЛак Коломенское)
Нагатинская
14 мин.
Строится
студия 32,64 м2 16 011 036
Этаж 17/23
Москва, ЖК «BeLuck Коломенское» (БиЛак Коломенское)
Нагатинская
14 мин.
Строится
Посмотреть 14 квартир в ЖК «BeLuck Коломенское» (БиЛак Коломенское)
2-комн. квартира 37,13 м2 18 067 680
Этаж 4/23
Москва, ЖК «BeLuck Коломенское» (БиЛак Коломенское)
Нагатинская
14 мин.
Строится
2-комн. квартира 42,65 м2 19 601 923
Этаж 4/23
Москва, ЖК «BeLuck Коломенское» (БиЛак Коломенское)
Нагатинская
14 мин.
Строится
2-комн. квартира 42,90 м2 19 716 823
Этаж 3/23
Москва, ЖК «BeLuck Коломенское» (БиЛак Коломенское)
Нагатинская
14 мин.
Строится
3-комн. квартира 54,64 м2 20 980 761
Этаж 4/25
Москва, ЖК «BeLuck Коломенское» (БиЛак Коломенское)
Нагатинская
14 мин.
Строится
3-комн. квартира 54,93 м2 21 415 780
Этаж 17/25
Москва, ЖК «BeLuck Коломенское» (БиЛак Коломенское)
Нагатинская
14 мин.
Строится
3-комн. квартира 55,22 м2 21 095 013
Этаж 2/25
Москва, ЖК «BeLuck Коломенское» (БиЛак Коломенское)
Нагатинская
14 мин.
Строится
3-комн. квартира 58,37 м2 21 180 584
Этаж 2/25
Москва, ЖК «BeLuck Коломенское» (БиЛак Коломенское)
Нагатинская
14 мин.
Строится
Посмотреть 56 квартир в ЖК «BeLuck Коломенское» (БиЛак Коломенское)
4-комн. квартира 73,96 м2 30 069 834
Этаж 32/32
Москва, ЖК «BeLuck Коломенское» (БиЛак Коломенское)
Нагатинская
14 мин.
Строится
4-комн. квартира 75,36 м2 31 379 104
Этаж 29/32 лоджия
Москва, ЖК «BeLuck Коломенское» (БиЛак Коломенское)
Нагатинская
14 мин.
Строится
4-комн. квартира 76,85 м2 31 999 524
Этаж 26/32
Москва, ЖК «BeLuck Коломенское» (БиЛак Коломенское)
Нагатинская
14 мин.
Строится
4-комн. квартира 82,58 м2 34 385 435
Этаж 32/32 лоджия
Москва, ЖК «BeLuck Коломенское» (БиЛак Коломенское)
Нагатинская
14 мин.
Строится
Посмотреть 9 квартир в ЖК «BeLuck Коломенское» (БиЛак Коломенское)

Скидки и спецпредложения от застройщиков

ЖК «BeLuck Коломенское» (БиЛак Коломенское) на карте

Выгодные предложения на новостройки

Отзывы о ЖК «BeLuck Коломенское» (БиЛак Коломенское)

Самый полезный отзыв
ДК
09 августа 2024
Оценка:
Транспортная доступность
Социальная инфраструктура
Планировки
Способы покупки
Внешний вид фасада
Расположение
Комплекс состоит из нескольких корпусов от 19 до 32 этажей, и в его подземной части предусмотрен паркинг на 147 мест и кладовые помещения. Когда я впервые увидел этот жилой комплекс, то заметил, что он находится на чистом поле, но всего в двух метрах от дороги. И это не просто дорога, а оживлённое Варшавское шоссе. Я считаю, что это отличное расположение, ведь оно обеспечивает быстрый доступ к основным транспортным артериям города. Пока конечно страшновато, но это место явно будет застраиваться и дома все таки будут сильно поглощать шум от дороги
Ответить
Полезный отзыв?
Самый новый отзыв
БИ
08 ноября
Оценка:
Способы покупки
В БиЛак Коломенское обратил внимание на условия ипотеки: по цифрам всё прозрачно, можно подобрать комфортный вариант, траншевая ипотека есть, семейка 5.75%
Ответить
Полезный отзыв?
Добавьте отзыв, заполнив личные данные, или сначала войдите на сайт, тогда информация будет автоматически взята из личного профиля.
Оценка*