Рейтинг@Mail.ru
Переверните экран
Новостройки Квартиры Ипотека Новостройки Москвы Новостройки Подмосковья Новостройки Новой Москвы Готовые новостройки Новостройки на карте Акции от застройщиков Коммерческие помещения Продавцы и застройщики Панорамы новостроек Видеообзор новостроек Экспертиза новостроек Экология Москвы и Подмосковья Студии 1-комнатные 2-комнатные 3-комнатные Квартиры на карте Ипотечный калькулятор Семейная ипотека Военная ипотека Банки и программы Медиа Новости недвижимости Мнение эксперта Аналитика рынка Покупателю Экспертиза новостроек Эксперты и авторы О проекте Контакты Реклама на сайте Vk Youtube Telegram Дзен Машиноместа Апартаменты #траншевая ипотека #рассрочка ИТ-ипотека Квартиры со скидками до 40% Видео 360° новостроек Субсидированная застройщиком Rutube Поиск дома в Москве Программа реновации в Москве Новостройки премиум-класса Новостройки бизнес-класса Рассрочка Траншевая ипотека Дома и коттеджи Бизнес-центры Бизнес-центры в Москве Бизнес-центры рядом с метро Строящиеся бизнес-центры Бизнес-центры класса A Бизнес-центры класса B Ипотека со ставкой 0,1%
3-комн. квартира, 105.06 м2, 13 этаж
Срок сдачи 2 квартал 2029 года
106 089 722 
1 009 801 2
обновлено 16 марта

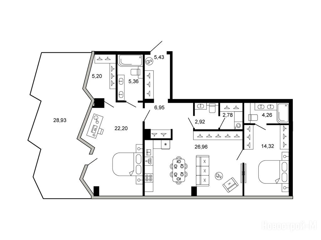
Описание 3-комн. квартиры

Застройщик
Срок ГК
2 квартал 2029 года
Стадия строительства
котлован/фундамент
Тип проекта
Общая площадь
105.06 м2
Жилая площадь
36.52 м2
Площадь кухни
26.96 м2
Этаж
13 / 15
Грузовой лифт
есть

Расположение 3-комн. квартиры

Локация
Дом
Яуза
Адрес
ул. Новая дорога, вл. 11б, секция 1

Особенности

Продается трехкомнатная квартира в новостройке Клубный дом «Новая, 11» по адресу Москва, ЦАО, Басманный, ул. Новая дорога, вл. 11б. Общая площадь квартиры - 105.06 кв. м. Тип проекта, по которому построен дом — Монолитно-кирпичный, компания-застройщик — Element Development. Стоимость квартиры — 106 089 722 руб. Способы оплаты можно уточнить у продавца. Срок сдачи — 2 квартал 2029. Более подробная информация по телефону.
Инфоцентр новостроек
Инфоцентр новостроек
Время работы 9:00 — 21:00
Выбирайте квартиру в Клубный дом «Новая, 11» по ценам от застройщика
Этаж 7/15
Москва, Клубный дом «Новая, 11»
Электрозаводская
16 мин.
Строится
Этаж 5/15
Москва, Клубный дом «Новая, 11»
Электрозаводская
16 мин.
Строится
Этаж 8/15
Москва, Клубный дом «Новая, 11»
Электрозаводская
16 мин.
Строится
Этаж 4/15
Москва, Клубный дом «Новая, 11»
Электрозаводская
16 мин.
Строится
Посмотреть 5 квартир в Клубном доме «Новая, 11»
Этаж 3/15
Москва, Клубный дом «Новая, 11»
Электрозаводская
16 мин.
Строится
Этаж 7/15
Москва, Клубный дом «Новая, 11»
Электрозаводская
16 мин.
Строится
Этаж 7/15
Москва, Клубный дом «Новая, 11»
Электрозаводская
16 мин.
Строится
Этаж 7/15
Москва, Клубный дом «Новая, 11»
Электрозаводская
16 мин.
Строится
Посмотреть 5 квартир в Клубном доме «Новая, 11»
Этаж 9/15
Москва, Клубный дом «Новая, 11»
Электрозаводская
16 мин.
Строится
Этаж 7/9
Москва, Клубный дом «Новая, 11»
Электрозаводская
16 мин.
Строится
Этаж 10/15
Москва, Клубный дом «Новая, 11»
Электрозаводская
16 мин.
Строится
Этаж 6/15
Москва, Клубный дом «Новая, 11»
Электрозаводская
16 мин.
Строится
Посмотреть 26 квартир в Клубном доме «Новая, 11»
Этаж 7/9
Москва, Клубный дом «Новая, 11»
Электрозаводская
16 мин.
Строится
Этаж 6/9
Москва, Клубный дом «Новая, 11»
Электрозаводская
16 мин.
Строится
3-комн. квартира 66,23 м2 52 115 078
Этаж 8/9
Москва, Клубный дом «Новая, 11»
Электрозаводская
16 мин.
Строится
Этаж 4/9
Москва, Клубный дом «Новая, 11»
Электрозаводская
16 мин.
Строится
Посмотреть 12 квартир в Клубном доме «Новая, 11»
Этаж 15/15
Москва, Клубный дом «Новая, 11»
Электрозаводская
16 мин.
Строится

Скидки и спецпредложения от застройщиков

Клубный дом «Новая, 11» на карте

Выгодные предложения на новостройки

Отзывы о Клубном доме «Новая, 11»

Самый новый отзыв
А
04 марта
Оценка:
Достоинства
Социальная инфраструктура
Внешний вид фасада
Входные группы
Двор, окружение
Место и так развитое для жизни, но перспектив еще много. Эркеры гармонично вписали, много естественного света будет, хотя придется призадуматься с расстановкой мебели. В любом случае, это клубный дом в 10 минутах от Садового, это подкупило сильно, ну и цена на старте тоже.
Ответить

Оставить отзыв

Добавьте отзыв, заполнив личные данные, или сначала войдите на сайт, тогда информация будет автоматически взята из личного профиля.
Оценка*