Рейтинг@Mail.ru
Переверните экран
Новостройки Квартиры Ипотека Новостройки Москвы Новостройки Подмосковья Новостройки Новой Москвы Готовые новостройки Новостройки на карте Акции от застройщиков Коммерческие помещения Продавцы и застройщики Панорамы новостроек Видеообзор новостроек Экспертиза новостроек Экология Москвы и Подмосковья Студии 1-комнатные 2-комнатные 3-комнатные Квартиры на карте Ипотечный калькулятор Семейная ипотека Военная ипотека Банки и программы Медиа Новости недвижимости Мнение эксперта Аналитика рынка Покупателю Экспертиза новостроек Эксперты и авторы О проекте Контакты Реклама на сайте Vk Youtube Telegram Дзен Машиноместа Апартаменты #траншевая ипотека #рассрочка ИТ-ипотека Квартиры со скидками до 40% Видео 360° новостроек Субсидированная застройщиком Rutube Поиск дома в Москве Программа реновации в Москве Новостройки премиум-класса Новостройки бизнес-класса Рассрочка Траншевая ипотека Дома и коттеджи Коттеджные поселки в Новой Москве Готовые коттеджные поселки Строящиеся коттеджные поселки Коттеджные поселки в лесу Коттеджные поселки у водоема Коттеджные поселки в ипотеку Бизнес-центры Коттеджи Ипотека со ставкой 0,1%
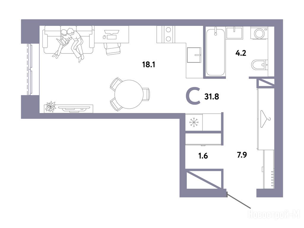
студия, 31.80 м2, 12 этаж
Срок сдачи 1 квартал 2028 года
15 890 000 
499 686 2
обновлено 13 мая

Описание студии

Срок ГК
1 квартал 2028 года
Стадия строительства
монтаж нижних этажей
Тип проекта
Общая площадь
31.80 м2
Жилая площадь
12.80 м2
Площадь кухни
5.00 м2
Высота потолков
2.70
Этаж
12 / 31
Отделка
нет

Расположение студии

Локация
Станция МЦД
Дом
Дом Стремление
Адрес
ул. Иловайская, 3, секция 5

Способы покупки

Особенности

Продается студия в новостройке ЖК «Страна. Заречная» по адресу Москва, ЮВАО, Марьино, ул. Иловайская, 3. Общая площадь квартиры - 31.8 кв. м. Тип проекта, по которому построен дом — Монолит, компания-застройщик — Страна Девелопмент. Стоимость квартиры — 15 890 000 руб. Способы оплаты можно уточнить у продавца. Срок сдачи — 1 квартал 2028. Более подробная информация по телефону.
Инфоцентр новостроек
Инфоцентр новостроек
Время работы 9:00 — 21:00
Выбирайте квартиру в ЖК «Страна. Заречная» по ценам от застройщика
студия 18,70 м2 12 190 000
Этаж 2/12
Москва, ЖК «Страна. Заречная»
Перерва
10 мин.
Строится
студия 19,10 м2 12 390 000
Этаж 19/33
Москва, ЖК «Страна. Заречная»
Перерва
10 мин.
Строится
студия 21,40 м2 13 190 000
Этаж 27/38
Москва, ЖК «Страна. Заречная»
Перерва
10 мин.
Строится
студия 22,70 м2 13 690 000
Этаж 3/12
Москва, ЖК «Страна. Заречная»
Перерва
10 мин.
Строится
Посмотреть 38 квартир в ЖК «Страна. Заречная»
2-комн. квартира 33,30 м2 18 890 000
Этаж 8/12
Москва, ЖК «Страна. Заречная»
Перерва
10 мин.
Строится
2-комн. квартира 34,40 м2 18 090 000
Этаж 2/12
Москва, ЖК «Страна. Заречная»
Перерва
10 мин.
Строится
2-комн. квартира 35,20 м2 20 290 000
Этаж 8/12
Москва, ЖК «Страна. Заречная»
Перерва
10 мин.
Строится
Этаж 5/12
Москва, ЖК «Страна. Заречная»
Перерва
10 мин.
Строится
Посмотреть 56 квартир в ЖК «Страна. Заречная»
3-комн. квартира 48,40 м2 21 690 000
Этаж 2/33
Москва, ЖК «Страна. Заречная»
Перерва
10 мин.
Строится
3-комн. квартира 48,50 м2 21 290 000
Этаж 3/33
Москва, ЖК «Страна. Заречная»
Перерва
10 мин.
Строится
3-комн. квартира 48,60 м2 21 390 000
Этаж 3/33
Москва, ЖК «Страна. Заречная»
Перерва
10 мин.
Строится
3-комн. квартира 48,70 м2 21 790 000
Этаж 12/33
Москва, ЖК «Страна. Заречная»
Перерва
10 мин.
Строится
Посмотреть 129 квартир в ЖК «Страна. Заречная»
4-комн. квартира 78,10 м2 29 690 000
Этаж 15/38
Москва, ЖК «Страна. Заречная»
Перерва
10 мин.
Строится
4-комн. квартира 78,50 м2 31 690 000
Этаж 26/38
Москва, ЖК «Страна. Заречная»
Перерва
10 мин.
Строится
4-комн. квартира 82,40 м2 35 090 000
Этаж 17/38
Москва, ЖК «Страна. Заречная»
Перерва
10 мин.
Строится
4-комн. квартира 82,60 м2 35 690 000
Этаж 29/38
Москва, ЖК «Страна. Заречная»
Перерва
10 мин.
Строится
Посмотреть 8 квартир в ЖК «Страна. Заречная»

Скидки и спецпредложения от застройщиков

ЖК «Страна. Заречная» на карте

Выгодные предложения на новостройки

Отзывы о ЖК «Страна. Заречная»

Самый полезный отзыв
МС
28 ноября 2024
Оценка:
Достоинства
Социальная инфраструктура
Планировки
Входные группы
Двор, окружение
Недостатки
Транспортная доступность
Понравился жк, смотрим студию для инвестиций
Ответить
Самый новый отзыв
АС
27 февраля
Оценка:
Достоинства
Планировки
Способы покупки
Квартиры сдаются без отделки или с предчистовой, но есть варианты под ключ за дополнительную плату.
Ответить

Оставить отзыв

Добавьте отзыв, заполнив личные данные, или сначала войдите на сайт, тогда информация будет автоматически взята из личного профиля.
Оценка*