Рейтинг@Mail.ru
Переверните экран
Новостройки Квартиры Ипотека Новостройки Москвы Новостройки Подмосковья Новостройки Новой Москвы Готовые новостройки Новостройки на карте Акции от застройщиков Коммерческие помещения Продавцы и застройщики Панорамы новостроек Видеообзор новостроек Экспертиза новостроек Экология Москвы и Подмосковья Студии 1-комнатные 2-комнатные 3-комнатные Квартиры на карте Ипотечный калькулятор Семейная ипотека Военная ипотека Банки и программы Медиа Новости недвижимости Мнение эксперта Аналитика рынка Покупателю Экспертиза новостроек Эксперты и авторы О проекте Контакты Реклама на сайте Vk Youtube Telegram Дзен Машиноместа Апартаменты #траншевая ипотека #рассрочка ИТ-ипотека Квартиры со скидками до 40% Видео 360° новостроек Субсидированная застройщиком Rutube Поиск дома в Москве Программа реновации в Москве Новостройки премиум-класса Новостройки бизнес-класса Рассрочка Траншевая ипотека Дома и коттеджи Бизнес-центры Бизнес-центры в Москве Бизнес-центры рядом с метро Строящиеся бизнес-центры Бизнес-центры класса A Бизнес-центры класса B Ипотека со ставкой 0,1%
студия, 28.90 м2, 2 этаж
Срок сдачи 3 квартал 2027 года
5 528 448 
6 772 349
191 296 2
обновлено 19 марта

Описание студии

Срок ГК
3 квартал 2027 года
Стадия строительства
Тип проекта
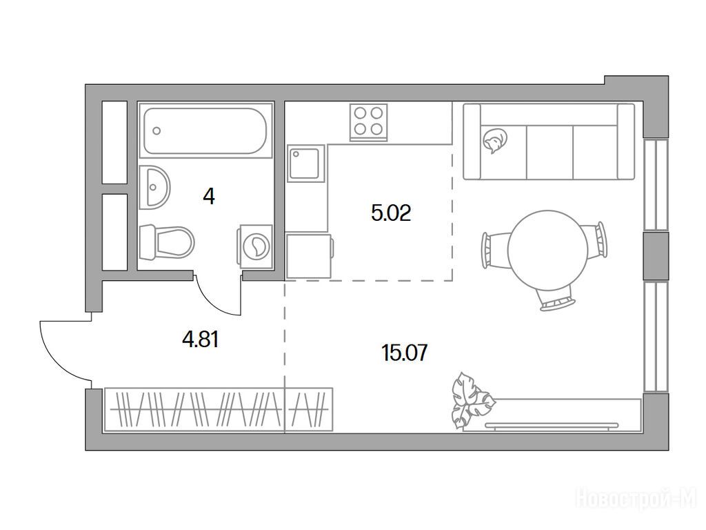
Общая площадь
28.90 м2
Жилая площадь
15.07 м2
Площадь кухни
5.02 м2
Этаж
2 / 17
Отделка
нет

Расположение студии

Метро
Ж/Д-станция
Дом
4
Адрес
ЖК «Новая Алексеевская роща», корп. 4, секция 1

Способы покупки

Особенности

Продается студия в новостройке ЖК «Новая Алексеевская роща» по адресу Московская область, Балашиха городской округ, Балашиха, ЖК «Новая Алексеевская роща», корп. 4. Общая площадь квартиры - 28.9 кв. м. Тип проекта, по которому построен дом — Монолитно-кирпичный,Панельный, компания-застройщик — ООО «СЗ«Гранель БТ», ГК «Гранель». Стоимость квартиры — 5 528 448 руб. Способы оплаты можно уточнить у продавца. Срок сдачи — 3 квартал 2027. Более подробная информация по телефону.

Правовые документы

ГК «Гранель»
ГК «Гранель»
Сданных 16
|
Строящихся 16
Время работы 09:00 — 21:00
Выбирайте квартиру в ЖК «Новая Алексеевская роща» по ценам от застройщика

Похожие квартиры в ЖК Новая Алексеевская роща

2 этаж
из 17 3 квартал 2027
Московская область, Балашиха городской округ
Щелковская
13 мин.
4
Корпус
нет
Отделка
2.70 м
Потолки
ЖК «Новая Алексеевская роща»
5 182 920 6 772 349
Альфа-Банк, Уралсиб, Всероссийский банк развития регионов, СберБанк, Азиатско-Тихоокеанский Банк, Совкомбанк, Металлинвестбанк, ДОМ.РФ, Банк Санкт-Петербург, Абсолют Банк, Севергазбанк, Сургутнефтегазбанк, ВТБ, Московский Кредитный Банк, МТС Банк
6.00%
Ставка
30.10%
Первый взнос
от 31 074 /мес.
Все варианты
12 этаж
из 17 3 квартал 2027
Московская область, Балашиха городской округ
Щелковская
13 мин.
4
Корпус
нет
Отделка
2.70 м
Потолки
ЖК «Новая Алексеевская роща»
5 476 042 7 155 362
Альфа-Банк, Уралсиб, Всероссийский банк развития регионов, СберБанк, Азиатско-Тихоокеанский Банк, Совкомбанк, Металлинвестбанк, ДОМ.РФ, Банк Санкт-Петербург, Абсолют Банк, Севергазбанк, Сургутнефтегазбанк, ВТБ, Московский Кредитный Банк, МТС Банк
6.00%
Ставка
30.10%
Первый взнос
от 32 832 /мес.
Все варианты
9 этаж
из 17 3 квартал 2027
Московская область, Балашиха городской округ
Щелковская
13 мин.
4
Корпус
нет
Отделка
2.70 м
Потолки
ЖК «Новая Алексеевская роща»
5 476 042 7 155 362
Альфа-Банк, Уралсиб, Всероссийский банк развития регионов, СберБанк, Азиатско-Тихоокеанский Банк, Совкомбанк, Металлинвестбанк, ДОМ.РФ, Банк Санкт-Петербург, Абсолют Банк, Севергазбанк, Сургутнефтегазбанк, ВТБ, Московский Кредитный Банк, МТС Банк
6.00%
Ставка
30.10%
Первый взнос
от 32 832 /мес.
Все варианты
3 этаж
из 17 3 квартал 2027
Московская область, Балашиха городской округ
Щелковская
13 мин.
4
Корпус
нет
Отделка
2.70 м
Потолки
ЖК «Новая Алексеевская роща»
5 476 042 7 155 362
Альфа-Банк, Уралсиб, Всероссийский банк развития регионов, СберБанк, Азиатско-Тихоокеанский Банк, Совкомбанк, Металлинвестбанк, ДОМ.РФ, Банк Санкт-Петербург, Абсолют Банк, Севергазбанк, Сургутнефтегазбанк, ВТБ, Московский Кредитный Банк, МТС Банк
6.00%
Ставка
30.10%
Первый взнос
от 32 832 /мес.
Все варианты
14 этаж
из 17 3 квартал 2027
Московская область, Балашиха городской округ
Щелковская
13 мин.
4
Корпус
нет
Отделка
2.70 м
Потолки
ЖК «Новая Алексеевская роща»
5 476 042 7 155 362
Альфа-Банк, Уралсиб, Всероссийский банк развития регионов, СберБанк, Азиатско-Тихоокеанский Банк, Совкомбанк, Металлинвестбанк, ДОМ.РФ, Банк Санкт-Петербург, Абсолют Банк, Севергазбанк, Сургутнефтегазбанк, ВТБ, Московский Кредитный Банк, МТС Банк
6.00%
Ставка
30.10%
Первый взнос
от 32 832 /мес.
Все варианты
3 этаж
из 17 3 квартал 2027
Московская область, Балашиха городской округ
Щелковская
13 мин.
4
Корпус
нет
Отделка
2.70 м
Потолки
ЖК «Новая Алексеевская роща»
5 476 042 7 155 362
Альфа-Банк, Уралсиб, Всероссийский банк развития регионов, СберБанк, Азиатско-Тихоокеанский Банк, Совкомбанк, Металлинвестбанк, ДОМ.РФ, Банк Санкт-Петербург, Абсолют Банк, Севергазбанк, Сургутнефтегазбанк, ВТБ, Московский Кредитный Банк, МТС Банк
6.00%
Ставка
30.10%
Первый взнос
от 32 832 /мес.
Все варианты
7 этаж
из 17 3 квартал 2027
Московская область, Балашиха городской округ
Щелковская
13 мин.
4
Корпус
нет
Отделка
2.70 м
Потолки
ЖК «Новая Алексеевская роща»
5 476 042 7 155 362
Альфа-Банк, Уралсиб, Всероссийский банк развития регионов, СберБанк, Азиатско-Тихоокеанский Банк, Совкомбанк, Металлинвестбанк, ДОМ.РФ, Банк Санкт-Петербург, Абсолют Банк, Севергазбанк, Сургутнефтегазбанк, ВТБ, Московский Кредитный Банк, МТС Банк
6.00%
Ставка
30.10%
Первый взнос
от 32 832 /мес.
Все варианты
6 этаж
из 17 3 квартал 2027
Московская область, Балашиха городской округ
Щелковская
13 мин.
4
Корпус
нет
Отделка
2.70 м
Потолки
ЖК «Новая Алексеевская роща»
5 476 042 7 155 362
Альфа-Банк, Уралсиб, Всероссийский банк развития регионов, СберБанк, Азиатско-Тихоокеанский Банк, Совкомбанк, Металлинвестбанк, ДОМ.РФ, Банк Санкт-Петербург, Абсолют Банк, Севергазбанк, Сургутнефтегазбанк, ВТБ, Московский Кредитный Банк, МТС Банк
6.00%
Ставка
30.10%
Первый взнос
от 32 832 /мес.
Все варианты
4 этаж
из 17 3 квартал 2027
Московская область, Балашиха городской округ
Щелковская
13 мин.
4
Корпус
нет
Отделка
2.70 м
Потолки
ЖК «Новая Алексеевская роща»
5 476 042 7 155 362
Альфа-Банк, Уралсиб, Всероссийский банк развития регионов, СберБанк, Азиатско-Тихоокеанский Банк, Совкомбанк, Металлинвестбанк, ДОМ.РФ, Банк Санкт-Петербург, Абсолют Банк, Севергазбанк, Сургутнефтегазбанк, ВТБ, Московский Кредитный Банк, МТС Банк
6.00%
Ставка
30.10%
Первый взнос
от 32 832 /мес.
Все варианты
10 этаж
из 17 3 квартал 2027
Московская область, Балашиха городской округ
Щелковская
13 мин.
4
Корпус
нет
Отделка
2.70 м
Потолки
ЖК «Новая Алексеевская роща»
5 476 042 7 155 362
Альфа-Банк, Уралсиб, Всероссийский банк развития регионов, СберБанк, Азиатско-Тихоокеанский Банк, Совкомбанк, Металлинвестбанк, ДОМ.РФ, Банк Санкт-Петербург, Абсолют Банк, Севергазбанк, Сургутнефтегазбанк, ВТБ, Московский Кредитный Банк, МТС Банк
6.00%
Ставка
30.10%
Первый взнос
от 32 832 /мес.
Все варианты
15 этаж
из 17 3 квартал 2027
Московская область, Балашиха городской округ
Щелковская
13 мин.
4
Корпус
нет
Отделка
2.70 м
Потолки
ЖК «Новая Алексеевская роща»
5 476 042 7 155 362
Альфа-Банк, Уралсиб, Всероссийский банк развития регионов, СберБанк, Азиатско-Тихоокеанский Банк, Совкомбанк, Металлинвестбанк, ДОМ.РФ, Банк Санкт-Петербург, Абсолют Банк, Севергазбанк, Сургутнефтегазбанк, ВТБ, Московский Кредитный Банк, МТС Банк
6.00%
Ставка
30.10%
Первый взнос
от 32 832 /мес.
Все варианты
17 этаж
из 17 3 квартал 2027
Московская область, Балашиха городской округ
Щелковская
13 мин.
4
Корпус
нет
Отделка
2.70 м
Потолки
ЖК «Новая Алексеевская роща»
5 476 042 7 155 362
Альфа-Банк, Уралсиб, Всероссийский банк развития регионов, СберБанк, Азиатско-Тихоокеанский Банк, Совкомбанк, Металлинвестбанк, ДОМ.РФ, Банк Санкт-Петербург, Абсолют Банк, Севергазбанк, Сургутнефтегазбанк, ВТБ, Московский Кредитный Банк, МТС Банк
6.00%
Ставка
30.10%
Первый взнос
от 32 832 /мес.
Все варианты
2 этаж
из 17 3 квартал 2027
Московская область, Балашиха городской округ
Щелковская
13 мин.
4
Корпус
нет
Отделка
2.70 м
Потолки
ЖК «Новая Алексеевская роща»
5 528 448 6 772 349
Альфа-Банк, Уралсиб, Всероссийский банк развития регионов, СберБанк, Азиатско-Тихоокеанский Банк, Совкомбанк, Металлинвестбанк, ДОМ.РФ, Банк Санкт-Петербург, Абсолют Банк, Севергазбанк, Сургутнефтегазбанк, ВТБ, Московский Кредитный Банк, МТС Банк
6.00%
Ставка
30.10%
Первый взнос
от 33 146 /мес.
Все варианты
16 этаж
из 17 3 квартал 2027
Московская область, Балашиха городской округ
Щелковская
13 мин.
4
Корпус
нет
Отделка
2.70 м
Потолки
ЖК «Новая Алексеевская роща»
5 841 111 7 155 362
Альфа-Банк, Уралсиб, Всероссийский банк развития регионов, СберБанк, Азиатско-Тихоокеанский Банк, Совкомбанк, Металлинвестбанк, ДОМ.РФ, Банк Санкт-Петербург, Абсолют Банк, Севергазбанк, Сургутнефтегазбанк, ВТБ, Московский Кредитный Банк, МТС Банк
6.00%
Ставка
30.10%
Первый взнос
от 35 020 /мес.
Все варианты
8 этаж
из 17 3 квартал 2027
Московская область, Балашиха городской округ
Щелковская
13 мин.
4
Корпус
нет
Отделка
2.70 м
Потолки
ЖК «Новая Алексеевская роща»
5 841 111 7 155 362
Альфа-Банк, Уралсиб, Всероссийский банк развития регионов, СберБанк, Азиатско-Тихоокеанский Банк, Совкомбанк, Металлинвестбанк, ДОМ.РФ, Банк Санкт-Петербург, Абсолют Банк, Севергазбанк, Сургутнефтегазбанк, ВТБ, Московский Кредитный Банк, МТС Банк
6.00%
Ставка
30.10%
Первый взнос
от 35 020 /мес.
Все варианты
17 этаж
из 17 3 квартал 2027
Московская область, Балашиха городской округ
Щелковская
13 мин.
4
Корпус
нет
Отделка
2.70 м
Потолки
ЖК «Новая Алексеевская роща»
5 841 111 7 155 362
Альфа-Банк, Уралсиб, Всероссийский банк развития регионов, СберБанк, Азиатско-Тихоокеанский Банк, Совкомбанк, Металлинвестбанк, ДОМ.РФ, Банк Санкт-Петербург, Абсолют Банк, Севергазбанк, Сургутнефтегазбанк, ВТБ, Московский Кредитный Банк, МТС Банк
6.00%
Ставка
30.10%
Первый взнос
от 35 020 /мес.
Все варианты
17 этаж
из 17 3 квартал 2027
Московская область, Балашиха городской округ
Щелковская
13 мин.
4
Корпус
нет
Отделка
2.70 м
Потолки
ЖК «Новая Алексеевская роща»
5 841 111 7 155 362
Альфа-Банк, Уралсиб, Всероссийский банк развития регионов, СберБанк, Азиатско-Тихоокеанский Банк, Совкомбанк, Металлинвестбанк, ДОМ.РФ, Банк Санкт-Петербург, Абсолют Банк, Севергазбанк, Сургутнефтегазбанк, ВТБ, Московский Кредитный Банк, МТС Банк
6.00%
Ставка
30.10%
Первый взнос
от 35 020 /мес.
Все варианты
14 этаж
из 17 3 квартал 2027
Московская область, Балашиха городской округ
Щелковская
13 мин.
4
Корпус
нет
Отделка
2.70 м
Потолки
ЖК «Новая Алексеевская роща»
5 841 111 7 155 362
Альфа-Банк, Уралсиб, Всероссийский банк развития регионов, СберБанк, Азиатско-Тихоокеанский Банк, Совкомбанк, Металлинвестбанк, ДОМ.РФ, Банк Санкт-Петербург, Абсолют Банк, Севергазбанк, Сургутнефтегазбанк, ВТБ, Московский Кредитный Банк, МТС Банк
6.00%
Ставка
30.10%
Первый взнос
от 35 020 /мес.
Все варианты
12 этаж
из 17 3 квартал 2027
Московская область, Балашиха городской округ
Щелковская
13 мин.
4
Корпус
нет
Отделка
2.70 м
Потолки
ЖК «Новая Алексеевская роща»
5 841 111 7 155 362
Альфа-Банк, Уралсиб, Всероссийский банк развития регионов, СберБанк, Азиатско-Тихоокеанский Банк, Совкомбанк, Металлинвестбанк, ДОМ.РФ, Банк Санкт-Петербург, Абсолют Банк, Севергазбанк, Сургутнефтегазбанк, ВТБ, Московский Кредитный Банк, МТС Банк
6.00%
Ставка
30.10%
Первый взнос
от 35 020 /мес.
Все варианты
5 этаж
из 17 3 квартал 2027
Московская область, Балашиха городской округ
Щелковская
13 мин.
4
Корпус
нет
Отделка
2.70 м
Потолки
ЖК «Новая Алексеевская роща»
5 841 111 7 155 362
Альфа-Банк, Уралсиб, Всероссийский банк развития регионов, СберБанк, Азиатско-Тихоокеанский Банк, Совкомбанк, Металлинвестбанк, ДОМ.РФ, Банк Санкт-Петербург, Абсолют Банк, Севергазбанк, Сургутнефтегазбанк, ВТБ, Московский Кредитный Банк, МТС Банк
6.00%
Ставка
30.10%
Первый взнос
от 35 020 /мес.
Все варианты
10 этаж
из 17 3 квартал 2027
Московская область, Балашиха городской округ
Щелковская
13 мин.
4
Корпус
нет
Отделка
2.70 м
Потолки
ЖК «Новая Алексеевская роща»
5 841 111 7 155 362
Альфа-Банк, Уралсиб, Всероссийский банк развития регионов, СберБанк, Азиатско-Тихоокеанский Банк, Совкомбанк, Металлинвестбанк, ДОМ.РФ, Банк Санкт-Петербург, Абсолют Банк, Севергазбанк, Сургутнефтегазбанк, ВТБ, Московский Кредитный Банк, МТС Банк
6.00%
Ставка
30.10%
Первый взнос
от 35 020 /мес.
Все варианты
6 этаж
из 17 3 квартал 2027
Московская область, Балашиха городской округ
Щелковская
13 мин.
4
Корпус
нет
Отделка
2.70 м
Потолки
ЖК «Новая Алексеевская роща»
5 841 111 7 155 362
Альфа-Банк, Уралсиб, Всероссийский банк развития регионов, СберБанк, Азиатско-Тихоокеанский Банк, Совкомбанк, Металлинвестбанк, ДОМ.РФ, Банк Санкт-Петербург, Абсолют Банк, Севергазбанк, Сургутнефтегазбанк, ВТБ, Московский Кредитный Банк, МТС Банк
6.00%
Ставка
30.10%
Первый взнос
от 35 020 /мес.
Все варианты
11 этаж
из 17 3 квартал 2027
Московская область, Балашиха городской округ
Щелковская
13 мин.
4
Корпус
нет
Отделка
2.70 м
Потолки
ЖК «Новая Алексеевская роща»
5 841 111 7 155 362
Альфа-Банк, Уралсиб, Всероссийский банк развития регионов, СберБанк, Азиатско-Тихоокеанский Банк, Совкомбанк, Металлинвестбанк, ДОМ.РФ, Банк Санкт-Петербург, Абсолют Банк, Севергазбанк, Сургутнефтегазбанк, ВТБ, Московский Кредитный Банк, МТС Банк
6.00%
Ставка
30.10%
Первый взнос
от 35 020 /мес.
Все варианты
5 этаж
из 17 3 квартал 2027
Московская область, Балашиха городской округ
Щелковская
13 мин.
4
Корпус
нет
Отделка
2.70 м
Потолки
ЖК «Новая Алексеевская роща»
5 841 111 7 155 362
Альфа-Банк, Уралсиб, Всероссийский банк развития регионов, СберБанк, Азиатско-Тихоокеанский Банк, Совкомбанк, Металлинвестбанк, ДОМ.РФ, Банк Санкт-Петербург, Абсолют Банк, Севергазбанк, Сургутнефтегазбанк, ВТБ, Московский Кредитный Банк, МТС Банк
6.00%
Ставка
30.10%
Первый взнос
от 35 020 /мес.
Все варианты
8 этаж
из 17 3 квартал 2027
Московская область, Балашиха городской округ
Щелковская
13 мин.
4
Корпус
нет
Отделка
2.70 м
Потолки
ЖК «Новая Алексеевская роща»
5 841 111 7 155 362
Альфа-Банк, Уралсиб, Всероссийский банк развития регионов, СберБанк, Азиатско-Тихоокеанский Банк, Совкомбанк, Металлинвестбанк, ДОМ.РФ, Банк Санкт-Петербург, Абсолют Банк, Севергазбанк, Сургутнефтегазбанк, ВТБ, Московский Кредитный Банк, МТС Банк
6.00%
Ставка
30.10%
Первый взнос
от 35 020 /мес.
Все варианты
студия 28,60 м2 5 419 197
Этаж 16/17
МО, ЖК «Новая Алексеевская роща»
Щелковская
13 мин.
Строится
студия 28,90 м2 5 841 111
Этаж 16/17
МО, ЖК «Новая Алексеевская роща»
Щелковская
13 мин.
Строится
студия 28,91 м2 5 530 361
Этаж 2/17
МО, ЖК «Новая Алексеевская роща»
Щелковская
13 мин.
Строится
Посмотреть 41 квартира в ЖК Новая Алексеевская роща
1-комн. квартира 32,88 м2 6 225 129
Этаж 7/17
МО, ЖК «Новая Алексеевская роща»
Щелковская
13 мин.
Строится
1-комн. квартира 33,45 м2 6 004 057
Этаж 17/17
МО, ЖК «Новая Алексеевская роща»
Щелковская
13 мин.
Строится
1-комн. квартира 34,34 м2 6 163 806
Этаж 15/17
МО, ЖК «Новая Алексеевская роща»
Щелковская
13 мин.
Строится
1-комн. квартира 35,10 м2 6 265 700
Этаж 2/17
МО, ЖК «Новая Алексеевская роща»
Щелковская
13 мин.
Строится
Посмотреть 18 квартир в ЖК Новая Алексеевская роща
2-комн. квартира 51,21 м2 9 267 411
Этаж 10/17
МО, ЖК «Новая Алексеевская роща»
Щелковская
13 мин.
Строится
2-комн. квартира 53,43 м2 9 143 664
Этаж 13/17
МО, ЖК «Новая Алексеевская роща»
Щелковская
13 мин.
Строится
2-комн. квартира 53,90 м2 10 758 839
Этаж 14/14 лоджия
МО, ЖК «Новая Алексеевская роща»
Щелковская
13 мин.
Сдан
2-комн. квартира 54,00 м2 10 785 405
Этаж 12/17 лоджия
МО, ЖК «Новая Алексеевская роща»
Щелковская
13 мин.
Сдан
Посмотреть 77 квартир в ЖК Новая Алексеевская роща
3-комн. квартира 72,20 м2 15 366 747
Этаж 8/17 балкон
МО, ЖК «Новая Алексеевская роща»
Щелковская
13 мин.
Сдан

Скидки и спецпредложения от застройщиков

ЖК «Новая Алексеевская роща» на карте

Выгодные предложения на новостройки

Отзывы о ЖК Новая Алексеевская роща

Самый полезный отзыв
И
13 февраля 2021
Оценка:
Ну все, скоро ключи поедем получать. Помню, когда выбирали кватриру, нам сразу понравилось место, где построен наш ЖК. Там столько зелени рядом! Метро, правда, далековато, надо ехать. Но остановка, откуда маршрутки отходят, рядом с комплексом. Думаю, приспособимся.
Ответить
Самый новый отзыв
АТ
17 декабря 2025
Оценка:
Достоинства
Способы покупки
График офиса ЖК Новая Алексеевская роща оказался удобным с 9 до 9, так что записался, приехал без суеты.
Ответить

Оставить отзыв

Добавьте отзыв, заполнив личные данные, или сначала войдите на сайт, тогда информация будет автоматически взята из личного профиля.
Оценка*