Рейтинг@Mail.ru
Переверните экран
Новостройки Квартиры Ипотека Новостройки Москвы Новостройки Подмосковья Новостройки Новой Москвы Готовые новостройки Новостройки на карте Акции от застройщиков Коммерческие помещения Продавцы и застройщики Панорамы новостроек Видеообзор новостроек Экспертиза новостроек Экология Москвы и Подмосковья Студии 1-комнатные 2-комнатные 3-комнатные Квартиры на карте Ипотечный калькулятор Семейная ипотека Военная ипотека Банки и программы Медиа Новости недвижимости Мнение эксперта Аналитика рынка Покупателю Экспертиза новостроек Эксперты и авторы О проекте Контакты Реклама на сайте Vk Youtube Telegram Дзен Машиноместа Апартаменты #траншевая ипотека #рассрочка ИТ-ипотека Квартиры со скидками до 40% Видео 360° новостроек Субсидированная застройщиком Rutube Поиск дома в Москве Программа реновации в Москве Новостройки премиум-класса Новостройки бизнес-класса Рассрочка Траншевая ипотека Дома и коттеджи Бизнес-центры Бизнес-центры в Москве Бизнес-центры рядом с метро Строящиеся бизнес-центры Бизнес-центры класса A Бизнес-центры класса B Ипотека со ставкой 0,1%
студия, 32.60 м2, 2 этаж
Срок сдачи 4 квартал 2029 года
21 388 860 
656 100 2
обновлено 29 марта

Описание студии

Новостройка
Застройщик
Срок ГК
4 квартал 2029 года
Стадия строительства
Общая площадь
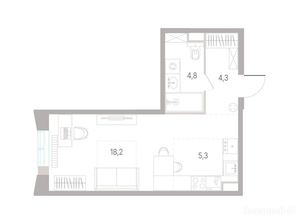
32.60 м2
Жилая площадь
18.20 м2
Площадь кухни
5.30 м2
Этаж
2 / 12
Отделка
нет
Грузовой лифт
есть

Расположение студии

Локация
Метро
Станция МЦД
Дом
2.1
Адрес
ул. Шумкина, секция 2

Способы покупки

Особенности

Продается студия в новостройке КОД Сокольники по адресу Москва, ВАО, Сокольники, ул. Шумкина. Общая площадь квартиры - 32.6 кв. м. Тип проекта, по которому построен дом — Монолитно-кирпичный, компания-застройщик — Новая Эра. Стоимость квартиры — 21 388 860 руб. Способы оплаты можно уточнить у продавца. Срок сдачи — 4 квартал 2029. Более подробная информация по телефону.
Новая Эра
Новая Эра
Сданных 0
|
Строящихся 1
Выбирайте квартиру в КОД Сокольники по ценам от застройщика
студия 28,30 м2 18 694 980
Этаж 6/12
Москва, КОД Сокольники
Митьково
3 мин.
Строится
студия 28,80 м2 19 503 360
Этаж 9/12
Москва, КОД Сокольники
Митьково
3 мин.
Строится
студия 29,30 м2 19 505 010
Этаж 2/12
Москва, КОД Сокольники
Митьково
3 мин.
Строится
студия 29,40 м2 20 000 820
Этаж 7/12
Москва, КОД Сокольники
Митьково
3 мин.
Строится
Посмотреть 22 квартиры в КОД Сокольники
1-комн. квартира 34,80 м2 20 069 160
Этаж 2/39
Москва, КОД Сокольники
Митьково
3 мин.
Строится
1-комн. квартира 34,90 м2 20 283 880
Этаж 5/39
Москва, КОД Сокольники
Митьково
3 мин.
Строится
1-комн. квартира 35,50 м2 20 472 850
Этаж 2/39
Москва, КОД Сокольники
Митьково
3 мин.
Строится
Этаж 7/39
Москва, КОД Сокольники
Митьково
3 мин.
Строится
Посмотреть 31 квартира в КОД Сокольники
Этаж 17/39
Москва, КОД Сокольники
Митьково
3 мин.
Строится
Этаж 5/7
Москва, КОД Сокольники
Митьково
3 мин.
Строится
2-комн. квартира 59,10 м2 32 386 800
Этаж 23/39
Москва, КОД Сокольники
Митьково
3 мин.
Строится
2-комн. квартира 59,40 м2 32 967 000
Этаж 28/39
Москва, КОД Сокольники
Митьково
3 мин.
Строится
Посмотреть 86 квартир в КОД Сокольники
3-комн. квартира 80,90 м2 42 512 950
Этаж 2/39
Москва, КОД Сокольники
Митьково
3 мин.
Строится
3-комн. квартира 81,20 м2 42 776 160
Этаж 3/39
Москва, КОД Сокольники
Митьково
3 мин.
Строится
Этаж 6/39
Москва, КОД Сокольники
Митьково
3 мин.
Строится
3-комн. квартира 82,60 м2 43 827 560
Этаж 5/39
Москва, КОД Сокольники
Митьково
3 мин.
Строится
Посмотреть 44 квартиры в КОД Сокольники

Скидки и спецпредложения от застройщиков

КОД Сокольники на карте

Выгодные предложения на новостройки

Отзывы о КОД Сокольники

Самый полезный отзыв
А
26 января
Оценка:
Давно пора было взяться за это место, оно явно ждало такого апгрейда. Квартал на Сокольниках выглядит на рендере супер, внутрянка тоже соответствует. Инвестиционную часть я бы изучила подробнее
Ответить
Самый новый отзыв
СН
17 марта
Оценка:
Достоинства
Расположение
ТТК рядом — это огромный плюс, особенно для автомобилистов. До центра всего 10–15 минут, что удобно для тех, кто работает в центре города.
Ответить

Оставить отзыв

Добавьте отзыв, заполнив личные данные, или сначала войдите на сайт, тогда информация будет автоматически взята из личного профиля.
Оценка*