Рейтинг@Mail.ru
Переверните экран
Новостройки Квартиры Ипотека Новостройки Москвы Новостройки Подмосковья Новостройки Новой Москвы Готовые новостройки Новостройки на карте Акции от застройщиков Коммерческие помещения Продавцы и застройщики Панорамы новостроек Видеообзор новостроек Экспертиза новостроек Экология Москвы и Подмосковья Студии 1-комнатные 2-комнатные 3-комнатные Квартиры на карте Ипотечный калькулятор Семейная ипотека Военная ипотека Банки и программы Медиа Новости недвижимости Мнение эксперта Аналитика рынка Покупателю Экспертиза новостроек Эксперты и авторы О проекте Контакты Реклама на сайте Vk Youtube Telegram Дзен Машиноместа Апартаменты #траншевая ипотека #рассрочка IT-ипотека Квартиры со скидками до 40% Видео 360° новостроек Субсидированная застройщиком Rutube Поиск дома в Москве Программа реновации в Москве Новостройки премиум-класса Новостройки бизнес-класса Рассрочка Траншевая ипотека ГАЛС Дома и коттеджи Бизнес-центры Бизнес-центры в Москве Бизнес-центры рядом с метро Строящиеся бизнес-центры Бизнес-центры класса A Бизнес-центры класса B ЛСР
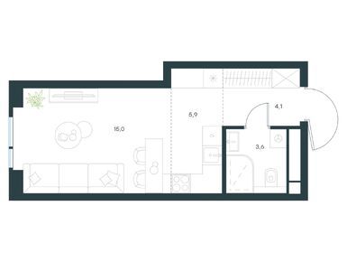
студия, 28.60 м2, 7 этаж
Срок сдачи 3 квартал 2028 года
17 407 592 
20 479 520
608 657 2
обновлено 5 декабря

Описание студии

Новостройка
Срок ГК
3 квартал 2028 года
Стадия строительства
котлован/фундамент
Общая площадь
28.60 м2
Жилая площадь
14.80 м2
Площадь кухни
5.90 м2
Высота потолков
3.02
Этаж
7 / 26
Отделка
white box
Грузовой лифт
есть

Расположение студии

Локация
Станция МЦК
Дом
4
Адрес
Старопетровский проезд, вл 11, корп. 4, секция 1

Способы покупки

Особенности

Продается студия в новостройке Level Войковская по адресу Москва, САО, Войковский, Старопетровский проезд, вл 11, корп. 4. Общая площадь квартиры - 28.6 кв. м. Тип проекта, по которому построен дом — Монолитно-кирпичный, компания-застройщик — Снегири, Level Group (Левел Групп), ООО СЗ ТИМИРЯЗЕВСКИЙ ПАРК. Стоимость квартиры — 17 407 592 руб. Способы оплаты можно уточнить у продавца. Срок сдачи — 3 квартал 2028. Более подробная информация по телефону.
Level Group (Левел Групп)
Level Group (Левел Групп)
Сданных 8
|
Строящихся 18
Время работы 09:00 — 21:00
Выбирайте квартиру в Level Войковская по ценам от застройщика

Похожие квартиры в Level Войковская

13 этаж
из 26 3 квартал 2028
Москва, САО
Балтийская
7 мин.
4
Корпус
white box
Отделка
3.02 м
Потолки
Level Войковская
17 771 012 20 907 074
ВТБ, Альфа-Банк, Новикомбанк, Всероссийский банк развития регионов, СберБанк, Банк Санкт-Петербург, Банк Россия, Примсоцбанк, Абсолют Банк, Металлинвестбанк, Россельхозбанк, ДОМ.РФ, Уралсиб, АК БАРС, Промсвязьбанк, Московский Кредитный Банк, Совкомбанк, МТС Банк
6.00%
Ставка
40.10%
Первый взнос
от 106 546 /мес.
Все варианты
15 этаж
из 26 3 квартал 2028
Москва, САО
Балтийская
7 мин.
4
Корпус
white box
Отделка
3.02 м
Потолки
Level Войковская
18 002 280 21 179 154
ВТБ, Альфа-Банк, Новикомбанк, Всероссийский банк развития регионов, СберБанк, Банк Санкт-Петербург, Банк Россия, Примсоцбанк, Абсолют Банк, Металлинвестбанк, Россельхозбанк, ДОМ.РФ, Уралсиб, АК БАРС, Промсвязьбанк, Московский Кредитный Банк, Совкомбанк, МТС Банк
6.00%
Ставка
40.10%
Первый взнос
от 107 933 /мес.
Все варианты
Посмотреть все спецпредложения
студия 28,40 м2 17 561 441
Этаж 10/26
Москва, Level Войковская
Балтийская
7 мин.
Строится
студия 28,60 м2 17 771 012
Этаж 13/26
Москва, Level Войковская
Балтийская
7 мин.
Строится
студия 29,10 м2 17 231 766
Этаж 16/20
Москва, Level Войковская
Балтийская
7 мин.
Строится
студия 29,20 м2 16 778 546
Этаж 11/20
Москва, Level Войковская
Балтийская
7 мин.
Строится
Посмотреть 10 квартир в Level Войковская
Этаж 4/26
Москва, Level Войковская
Балтийская
7 мин.
Строится
1-комн. квартира 41,00 м2 21 388 764
Этаж 16/26
Москва, Level Войковская
Балтийская
7 мин.
Строится
1-комн. квартира 41,20 м2 21 860 973
Этаж 16/26
Москва, Level Войковская
Балтийская
7 мин.
Строится
Этаж 3/26
Москва, Level Войковская
Балтийская
7 мин.
Строится
Посмотреть 65 квартир в Level Войковская
2-комн. квартира 62,00 м2 27 791 851
Этаж 10/26
Москва, Level Войковская
Балтийская
7 мин.
Строится
2-комн. квартира 62,10 м2 27 168 142
Этаж 4/26
Москва, Level Войковская
Балтийская
7 мин.
Строится
2-комн. квартира 62,40 м2 28 980 235
Этаж 13/26
Москва, Level Войковская
Балтийская
7 мин.
Строится
Этаж 3/26
Москва, Level Войковская
Балтийская
7 мин.
Строится
Посмотреть 43 квартиры в Level Войковская
3-комн. квартира 87,30 м2 39 229 483
Этаж 24/26
Москва, Level Войковская
Балтийская
7 мин.
Строится
3-комн. квартира 88,60 м2 34 232 852
Этаж 14/20
Москва, Level Войковская
Балтийская
7 мин.
Строится
3-комн. квартира 89,60 м2 38 407 190
Этаж 11/26
Москва, Level Войковская
Балтийская
7 мин.
Строится
3-комн. квартира 89,90 м2 39 162 377
Этаж 16/26
Москва, Level Войковская
Балтийская
7 мин.
Строится
Посмотреть 23 квартиры в Level Войковская
Этаж 19/26
Москва, Level Войковская
Балтийская
7 мин.
Строится
Этаж 21/26
Москва, Level Войковская
Балтийская
7 мин.
Строится
4-комн. квартира 99,50 м2 44 091 018
Этаж 24/26
Москва, Level Войковская
Балтийская
7 мин.
Строится
4-комн. квартира 113,30 м2 43 867 779
Этаж 18/20
Москва, Level Войковская
Балтийская
7 мин.
Строится
Посмотреть 6 квартир в Level Войковская

Скидки и спецпредложения от застройщиков

Level Войковская на карте

Выгодные предложения на новостройки

Отзывы о Level Войковская

Самый новый отзыв
ОП
21 октября
Оценка:
Планировки
Внешний вид фасада
Двор, окружение
Расположение
Отличная локация. Красивый дом, мне понравились планировки. Подождать придется заселения, но, думаю, что оно того стоит
Ответить
Полезный отзыв?
Добавьте отзыв, заполнив личные данные, или сначала войдите на сайт, тогда информация будет автоматически взята из личного профиля.
Оценка*