Рейтинг@Mail.ru
Переверните экран
Новостройки Квартиры Ипотека Новостройки Москвы Новостройки Подмосковья Новостройки Новой Москвы Готовые новостройки Новостройки на карте Акции от застройщиков Коммерческие помещения Продавцы и застройщики Панорамы новостроек Видеообзор новостроек Экспертиза новостроек Экология Москвы и Подмосковья Студии 1-комнатные 2-комнатные 3-комнатные Квартиры на карте Ипотечный калькулятор Семейная ипотека Военная ипотека Банки и программы Медиа Новости недвижимости Мнение эксперта Аналитика рынка Покупателю Экспертиза новостроек Эксперты и авторы О проекте Контакты Реклама на сайте Vk Youtube Telegram Дзен Машиноместа Апартаменты #траншевая ипотека #рассрочка ИТ-ипотека Квартиры со скидками до 40% Видео 360° новостроек Субсидированная застройщиком Rutube Поиск дома в Москве Программа реновации в Москве Новостройки премиум-класса Новостройки бизнес-класса Рассрочка Траншевая ипотека Дома и коттеджи Коттеджные поселки в Новой Москве Готовые коттеджные поселки Строящиеся коттеджные поселки Коттеджные поселки в лесу Коттеджные поселки у водоема Коттеджные поселки в ипотеку Бизнес-центры Коттеджи Ипотека со ставкой 0,1%
Данная квартира является лидером продаж среди однокомнатных квартир в ЖК «УНО.Горбунова» по данным Росреестра
1-комн. квартира, 28.70 м2, 3 этаж
Срок сдачи 1 квартал 2028 года
13 489 000 
470 000 2
обновлено 21 мая

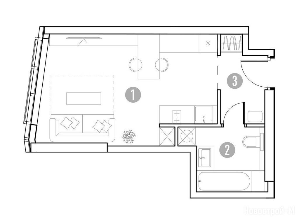
Описание 1-комн. квартиры

Новостройка
Срок ГК
1 квартал 2028 года
Стадия строительства
Общая площадь
28.70 м2
Жилая площадь
14.84 м2
Площадь кухни
5.00 м2
Этаж
3 / 30
Грузовой лифт
есть

Расположение 1-комн. квартиры

Локация
Станция МЦД
Дом
1
Адрес
ул. Горбунова, вл. 27, корп. 1, секция 1

Способы покупки

Особенности

Продается однокомнатная квартира в новостройке ЖК «УНО.Горбунова» по адресу Москва, ЗАО, Можайский, ул. Горбунова, вл. 27, корп. 1. Общая площадь квартиры - 28.7 кв. м. Тип проекта, по которому построен дом — Монолитно-кирпичный, компания-застройщик — ГК «Основа», СЗ ГЕРМЕССТРОЙ. Стоимость квартиры — 13 489 000 руб. Способы оплаты можно уточнить у продавца. Срок сдачи — 1 квартал 2028. Более подробная информация по телефону.
Инфоцентр новостроек
Инфоцентр новостроек
+7 (499) 705-91-41
Время работы 9:00 — 21:00
Этаж 10/30
Москва, ЖК «УНО.Горбунова»
Сетунь
10 мин.
Строится
1-комн. квартира 28,70 м2 13 996 990
Этаж 4/30
Москва, ЖК «УНО.Горбунова»
Сетунь
10 мин.
Строится
1-комн. квартира 32,25 м2 15 825 075
Этаж 9/30
Москва, ЖК «УНО.Горбунова»
Сетунь
10 мин.
Строится
1-комн. квартира 33,49 м2 16 698 114
Этаж 12/30
Москва, ЖК «УНО.Горбунова»
Сетунь
10 мин.
Строится
Посмотреть 41 квартира в ЖК «УНО.Горбунова»
2-комн. квартира 53,12 м2 22 565 376
Этаж 22/30
Москва, ЖК «УНО.Горбунова»
Сетунь
10 мин.
Строится
2-комн. квартира 53,13 м2 22 070 202
Этаж 14/30
Москва, ЖК «УНО.Горбунова»
Сетунь
10 мин.
Строится
2-комн. квартира 53,30 м2 21 447 920
Этаж 6/30
Москва, ЖК «УНО.Горбунова»
Сетунь
10 мин.
Строится
2-комн. квартира 53,56 м2 22 463 064
Этаж 18/30
Москва, ЖК «УНО.Горбунова»
Сетунь
10 мин.
Строится
Посмотреть 18 квартир в ЖК «УНО.Горбунова»
3-комн. квартира 82,32 м2 34 343 904
Этаж 30/30
Москва, ЖК «УНО.Горбунова»
Сетунь
10 мин.
Строится
3-комн. квартира 84,39 м2 35 215 947
Этаж 30/30
Москва, ЖК «УНО.Горбунова»
Сетунь
10 мин.
Строится
3-комн. квартира 95,03 м2 39 532 480
Этаж 30/30
Москва, ЖК «УНО.Горбунова»
Сетунь
10 мин.
Строится

Скидки и спецпредложения от застройщиков

ЖК «УНО.Горбунова» на карте

Выгодные предложения на новостройки

Отзывы о ЖК «УНО.Горбунова»

Самый полезный отзыв
ЭН
29 мая 2025
Оценка:
Достоинства
Внешний вид фасада
Двор, окружение
Расположение
Честно говоря, из всего, что мы смотрели на западе Москвы, UNO на Горбунова нам больше всего понравился. Отличная транспортная доступность - это огромный плюс! Плюс, двор с ландшафтным дизайном запланирован, представила себе эту красоту и сразу захотелось там жить. Виды в сторону леса - вообще мечта, а застройщик, вроде, с хорошей репутацией, что тоже важно.
Ответить
Самый новый отзыв
ПМ
06 марта
Оценка:
Достоинства
Транспортная доступность
Планировки
Способы покупки
Двор, окружение
Расположение
Одни плюсы. Потолки варьируются от 2,7 до 3,4 м в зависимости от этажа, что даёт ощущение простора. До МЦД-1 Сетунь несколько минут пешком, до метро Молодёжная 6-10 минут на транспорте. Предусмотрены кладовые помещения, что добавляет удобства для хранения вещей.
Ответить

Оставить отзыв

Добавьте отзыв, заполнив личные данные, или сначала войдите на сайт, тогда информация будет автоматически взята из личного профиля.
Оценка*