Рейтинг@Mail.ru
Переверните экран
Новостройки Квартиры Ипотека Новостройки Москвы Новостройки Подмосковья Новостройки Новой Москвы Готовые новостройки Новостройки на карте Акции от застройщиков Коммерческие помещения Продавцы и застройщики Панорамы новостроек Видеообзор новостроек Экспертиза новостроек Экология Москвы и Подмосковья Студии 1-комнатные 2-комнатные 3-комнатные Квартиры на карте Ипотечный калькулятор Семейная ипотека Военная ипотека Банки и программы Медиа Новости недвижимости Мнение эксперта Аналитика рынка Покупателю Экспертиза новостроек Эксперты и авторы О проекте Контакты Реклама на сайте Vk Youtube Telegram Дзен Машиноместа Апартаменты #траншевая ипотека #рассрочка ИТ-ипотека Квартиры со скидками до 40% Видео 360° новостроек Субсидированная застройщиком Rutube Поиск дома в Москве Программа реновации в Москве Новостройки премиум-класса Новостройки бизнес-класса Рассрочка Траншевая ипотека Дома и коттеджи Бизнес-центры Бизнес-центры в Москве Бизнес-центры рядом с метро Строящиеся бизнес-центры Бизнес-центры класса A Бизнес-центры класса B Ипотека со ставкой 0,1%
Данная квартира является лидером продаж среди однокомнатных квартир в ЖК «Союзный» по данным Росреестра
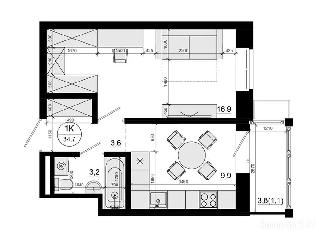
1-комн. квартира, 34.70 м2, 3 этаж
Срок сдачи 4 квартал 2028 года
10 182 000 
293 429 2
обновлено 20 марта

Описание 1-комн. квартиры

Новостройка
Срок ГК
4 квартал 2028 года
Стадия строительства
Общая площадь
34.70 м2
Жилая площадь
16.90 м2
Площадь кухни
9.90 м2
Этаж
3 / 25

Расположение 1-комн. квартиры

Метро
Станция МЦД
Дом
4
Адрес
ул. Маковского, д. 26, д. 28, корп. 3; ул Сосновая, д. 13, секция 1

Способы покупки

Особенности

Продается однокомнатная квартира в новостройке ЖК «Союзный» по адресу Московская область, Одинцовский район, Одинцово, ул. Маковского, д. 26, д. 28, корп. 3; ул Сосновая, д. 13. Общая площадь квартиры - 34.7 кв. м. Тип проекта, по которому построен дом — Монолитно-кирпичный, компания-застройщик — АО «СЗ «Вектор недвижимости», Группа компаний «Вектор». Стоимость квартиры — 10 182 000 руб. Способы оплаты можно уточнить у продавца. Срок сдачи — 4 квартал 2028. Более подробная информация по телефону.
Инфоцентр новостроек
Инфоцентр новостроек
Время работы 9:00 — 21:00
Выбирайте квартиру в ЖК «Союзный» по ценам от застройщика

Похожие квартиры в ЖК «Союзный»

5 этаж
из 25 4 квартал 2028
Московская область, Одинцовский район
Одинцово
10 мин.
4
Корпус
нет данных
Отделка
2.80 м
Потолки
ЖК «Союзный»
10 406 000
ВТБ
6.00%
Ставка
20.10%
Первый взнос
от 62 389 /мес.
Все варианты
21 этаж
из 25 4 квартал 2028
Московская область, Одинцовский район
Одинцово
10 мин.
4
Корпус
нет данных
Отделка
2.80 м
Потолки
ЖК «Союзный»
10 451 000
ВТБ
6.00%
Ставка
20.10%
Первый взнос
от 62 659 /мес.
Все варианты
16 этаж
из 25 4 квартал 2028
Московская область, Одинцовский район
Одинцово
10 мин.
4
Корпус
нет данных
Отделка
2.80 м
Потолки
ЖК «Союзный»
10 519 000
ВТБ
6.00%
Ставка
20.10%
Первый взнос
от 63 067 /мес.
Все варианты
13 этаж
из 25 4 квартал 2028
Московская область, Одинцовский район
Одинцово
10 мин.
4
Корпус
нет данных
Отделка
2.80 м
Потолки
ЖК «Союзный»
10 563 000
ВТБ
6.00%
Ставка
20.10%
Первый взнос
от 63 331 /мес.
Все варианты
студия 29,20 м2 9 361 000
Этаж 18/25
МО, ЖК «Союзный»
Одинцово
10 мин.
Строится
студия 29,30 м2 8 916 000
Этаж 3/25
МО, ЖК «Союзный»
Одинцово
10 мин.
Строится
Посмотреть 12 квартир в ЖК «Союзный»
1-комн. квартира 34,00 м2 11 267 000
Этаж 19/25
МО, ЖК «Союзный»
Одинцово
10 мин.
Строится
1-комн. квартира 34,40 м2 9 328 000
Этаж 18/25
МО, ЖК «Союзный»
Одинцово
10 мин.
Строится
1-комн. квартира 34,60 м2 10 332 000
Этаж 4/25
МО, ЖК «Союзный»
Одинцово
10 мин.
Строится
1-комн. квартира 34,70 м2 10 451 000
Этаж 21/25
МО, ЖК «Союзный»
Одинцово
10 мин.
Строится
Посмотреть 35 квартир в ЖК «Союзный»
2-комн. квартира 50,30 м2 14 978 000
Этаж 9/25
МО, ЖК «Союзный»
Одинцово
10 мин.
Строится
Этаж 6/25
МО, ЖК «Союзный»
Одинцово
10 мин.
Строится
2-комн. квартира 50,90 м2 14 300 000
Этаж 15/25
МО, ЖК «Союзный»
Одинцово
10 мин.
Строится
2-комн. квартира 52,30 м2 14 650 000
Этаж 13/25
МО, ЖК «Союзный»
Одинцово
10 мин.
Строится
Посмотреть 30 квартир в ЖК «Союзный»
3-комн. квартира 62,80 м2 17 811 000
Этаж 13/25
МО, ЖК «Союзный»
Одинцово
10 мин.
Строится
3-комн. квартира 65,60 м2 18 124 000
Этаж 4/25
МО, ЖК «Союзный»
Одинцово
10 мин.
Строится
3-комн. квартира 66,00 м2 17 984 000
Этаж 5/25
МО, ЖК «Союзный»
Одинцово
10 мин.
Строится
3-комн. квартира 75,20 м2 17 922 000
Этаж 5/25
МО, ЖК «Союзный»
Одинцово
10 мин.
Строится
Посмотреть 26 квартир в ЖК «Союзный»

Скидки и спецпредложения от застройщиков

ЖК «Союзный» на карте

Выгодные предложения на новостройки

Отзывы о ЖК «Союзный»

Самый полезный отзыв
М
05 сентября 2023
Оценка:
Переехали в Союзный недавно. Обживаемся. Комплекс комфортный. Для детей будет площадка, она сейчас в процессе установки. Пока ходим гулять в парк, который рядом с комплексом. Единственное что у нас в жк маловато коммерции, но мы ждем когда еще откроются магазины.
Ответить
Самый новый отзыв
А
18 марта
Оценка:
В Союзный переехала около года назад. Территория жк классно организована, дома высотные, но не давят, не угнетают, вообще не похожи на человейники. Стоят так, что я из своих окон не вижу соседей в рядом стоящем доме. Много полезной коммерции в шаговой доступности, есть где продукты купить, забрать посылки, выпить хороший кофе. Придомовая территория обустроена, везде чисто, много зелени. До Москвы ходят несколько видов общественного транспорта, автобусная остановка рядом, МЦД1 Одинцово в 15 мин ходьбы. Квартира у меня однокомнатная, спальня+кухня-гостиная. Балкон с увеличенным остеклением, я все на нем обустроила, приятно посидеть с чашкой чая, полюбоваться видами. Воздух не загазован, вообще экология на высоте.
Ответить

Оставить отзыв

Добавьте отзыв, заполнив личные данные, или сначала войдите на сайт, тогда информация будет автоматически взята из личного профиля.
Оценка*