Рейтинг@Mail.ru
Переверните экран
Новостройки Квартиры Ипотека Новостройки Москвы Новостройки Подмосковья Новостройки Новой Москвы Готовые новостройки Новостройки на карте Акции от застройщиков Коммерческие помещения Продавцы и застройщики Панорамы новостроек Видеообзор новостроек Экспертиза новостроек Экология Москвы и Подмосковья Студии 1-комнатные 2-комнатные 3-комнатные Квартиры на карте Ипотечный калькулятор Семейная ипотека Военная ипотека Банки и программы Медиа Новости недвижимости Мнение эксперта Аналитика рынка Покупателю Экспертиза новостроек Эксперты и авторы О проекте Контакты Реклама на сайте Vk Youtube Telegram Дзен Машиноместа Апартаменты #траншевая ипотека #рассрочка IT-ипотека Квартиры со скидками до 35% Видео 360° новостроек Субсидированная застройщиком Rutube Поиск дома в Москве Программа реновации в Москве Новостройки премиум-класса Новостройки бизнес-класса Рассрочка Траншевая ипотека Дома и коттеджи Бизнес-центры Бизнес-центры в Москве Бизнес-центры рядом с метро Строящиеся бизнес-центры Бизнес-центры класса A Бизнес-центры класса B
Данная квартира является лидером продаж среди однокомнатных квартир в ЖК SEZAR CITY (Сезар Сити) по данным Росреестра
1-комн. квартира, 44.42 м2, 2 этаж
Срок сдачи 3 квартал 2027 года
25 319 400 
570 000 2
обновлено 5 февраля

Описание 1-комн. квартиры

Новостройка
Срок ГК
3 квартал 2027 года
Стадия строительства
монтаж нижних этажей
Общая площадь
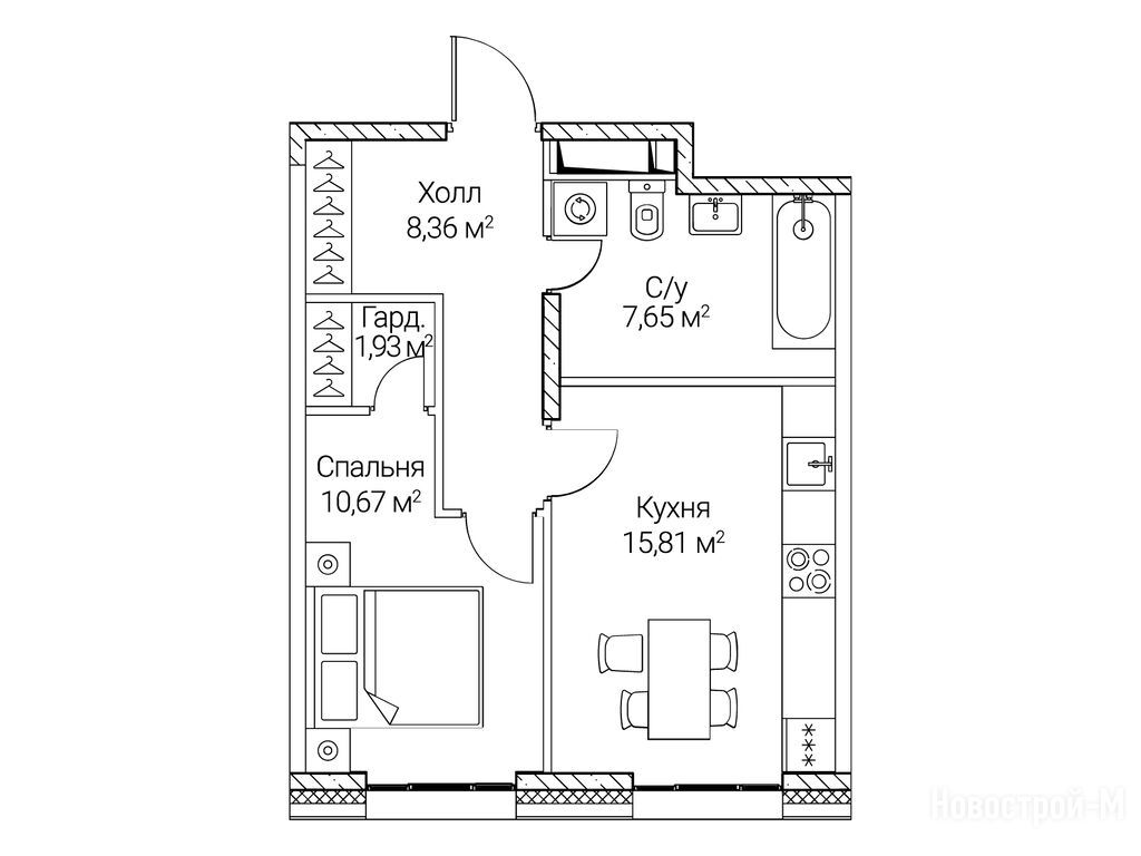
44.42 м2
Жилая площадь
10.67 м2
Площадь кухни
15.81 м2
Этаж
2 / 7
Грузовой лифт
есть

Расположение 1-комн. квартиры

Локация
Метро
Станция МЦД
Беговая
15 мин.
Дом
2
Адрес
2-й Хорошевский пр-д, вл. 7, корп. 2, секция 3

Особенности

Продается однокомнатная квартира в новостройке ЖК SEZAR CITY (Сезар Сити) по адресу Москва, САО, Хорошевский, 2-й Хорошевский пр-д, вл. 7, корп. 2. Общая площадь квартиры - 44.42 кв. м. Тип проекта, по которому построен дом — Монолитно-кирпичный, компания-застройщик — Sezar Group (Сезар Групп), ООО СЗ Триумф Капитал. Стоимость квартиры — 25 319 400 руб. Способы оплаты можно уточнить у продавца. Срок сдачи — 3 квартал 2027. Более подробная информация по телефону.
Инфоцентр новостроек
Инфоцентр новостроек
+7 (499) 705-91-41
Время работы 9:00 — 21:00
Посмотреть все спецпредложения
1-комн. квартира 35,67 м2 23 970 240
Этаж 23/35
Москва, ЖК SEZAR CITY (Сезар Сити)
Беговая
10 мин.
Строится
1-комн. квартира 36,05 м2 24 802 400
Этаж 27/35
Москва, ЖК SEZAR CITY (Сезар Сити)
Беговая
10 мин.
Строится
1-комн. квартира 36,41 м2 25 487 000
Этаж 30/35
Москва, ЖК SEZAR CITY (Сезар Сити)
Беговая
10 мин.
Строится
1-комн. квартира 37,02 м2 26 654 400
Этаж 45/51
Москва, ЖК SEZAR CITY (Сезар Сити)
Беговая
10 мин.
Строится
Посмотреть 266 квартир в ЖК SEZAR CITY (Сезар Сити)
2-комн. квартира 57,85 м2 33 784 400
Этаж 35/51
Москва, ЖК SEZAR CITY (Сезар Сити)
Беговая
10 мин.
Строится
2-комн. квартира 58,61 м2 34 462 680
Этаж 37/51
Москва, ЖК SEZAR CITY (Сезар Сити)
Беговая
10 мин.
Строится
2-комн. квартира 59,91 м2 32 950 500
Этаж 8/51
Москва, ЖК SEZAR CITY (Сезар Сити)
Беговая
10 мин.
Строится
2-комн. квартира 60,24 м2 33 734 400
Этаж 13/51
Москва, ЖК SEZAR CITY (Сезар Сити)
Беговая
10 мин.
Строится
Посмотреть 128 квартир в ЖК SEZAR CITY (Сезар Сити)
3-комн. квартира 71,62 м2 42 757 140
Этаж 29/51
Москва, ЖК SEZAR CITY (Сезар Сити)
Беговая
10 мин.
Строится
3-комн. квартира 72,05 м2 44 454 850
Этаж 39/51
Москва, ЖК SEZAR CITY (Сезар Сити)
Беговая
10 мин.
Строится
3-комн. квартира 72,15 м2 39 682 500
Этаж 5/9
Москва, ЖК SEZAR CITY (Сезар Сити)
Беговая
10 мин.
Строится
3-комн. квартира 72,81 м2 37 497 150
Этаж 2/14
Москва, ЖК SEZAR CITY (Сезар Сити)
Беговая
10 мин.
Строится
Посмотреть 132 квартиры в ЖК SEZAR CITY (Сезар Сити)
4-комн. квартира 117,64 м2 111 758 000
Этаж 46/51
Москва, ЖК SEZAR CITY (Сезар Сити)
Беговая
10 мин.
Строится
4-комн. квартира 121,08 м2 70 226 400
Этаж 49/51
Москва, ЖК SEZAR CITY (Сезар Сити)
Беговая
10 мин.
Строится

Скидки и спецпредложения от застройщиков

ЖК SEZAR CITY (Сезар Сити) на карте

Выгодные предложения на новостройки

Отзывы о ЖК SEZAR CITY (Сезар Сити)

Самый полезный отзыв
ВС
17 июня 2024
Оценка:
Офис продаж рядом с Династией, там есть макет и можно в целом составить понять что будет. По адресу проехали, сейчас стройка только начинается и место выглядит конечно так себе. Но. Видно, что за район взялись серьезно и промку убирают. Поэтому в целом это хороший вариант, как кажется. Сезаровская Династия очень даже сейчас неплоха на фоне того, что строится
Ответить
Полезный отзыв?
Самый новый отзыв
МФ
30 января
Оценка:
Прекрасно, что даже минимальные метражи - это полноценный квартиры, а не кладовки с кухней и санузлом на 20 квадратах. Для тех, кто ищет перспективную недвижку - отличный вариант
Ответить
Полезный отзыв?
Добавьте отзыв, заполнив личные данные, или сначала войдите на сайт, тогда информация будет автоматически взята из личного профиля.
Оценка*