Рейтинг@Mail.ru
Переверните экран
Новостройки Квартиры Ипотека Новостройки Москвы Новостройки Подмосковья Новостройки Новой Москвы Готовые новостройки Новостройки на карте Акции от застройщиков Коммерческие помещения Продавцы и застройщики Панорамы новостроек Видеообзор новостроек Экспертиза новостроек Экология Москвы и Подмосковья Студии 1-комнатные 2-комнатные 3-комнатные Квартиры на карте Ипотечный калькулятор Семейная ипотека Военная ипотека Банки и программы Медиа Новости недвижимости Мнение эксперта Аналитика рынка Покупателю Экспертиза новостроек Эксперты и авторы О проекте Контакты Реклама на сайте Vk Youtube Telegram Дзен Машиноместа Апартаменты #траншевая ипотека #рассрочка ИТ-ипотека Квартиры со скидками до 40% Видео 360° новостроек Субсидированная застройщиком Rutube Поиск дома в Москве Программа реновации в Москве Новостройки премиум-класса Новостройки бизнес-класса Рассрочка Траншевая ипотека Дома и коттеджи Бизнес-центры Бизнес-центры в Москве Бизнес-центры рядом с метро Строящиеся бизнес-центры Бизнес-центры класса A Бизнес-центры класса B Ипотека со ставкой 0,1%
Данная квартира является лидером продаж среди однокомнатных квартир в ЖК «Сезар Сити» по данным Росреестра
1-комн. квартира, 39.56 м2, 27 этаж
Срок сдачи 3 квартал 2027 года
29 274 400 
740 000 2
обновлено 4 апреля

Описание 1-комн. квартиры

Новостройка
Срок ГК
3 квартал 2027 года
Стадия строительства
монтаж нижних этажей
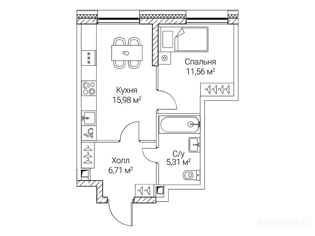
Общая площадь
39.56 м2
Жилая площадь
11.56 м2
Площадь кухни
15.98 м2
Этаж
27 / 28
Грузовой лифт
есть

Расположение 1-комн. квартиры

Локация
Метро
Станция МЦД
Беговая
15 мин.
Дом
2
Адрес
2-й Хорошевский пр-д, вл. 7, корп. 2, секция 1

Особенности

Продается однокомнатная квартира в новостройке ЖК «Сезар Сити» по адресу Москва, САО, Хорошевский, 2-й Хорошевский пр-д, вл. 7, корп. 2. Общая площадь квартиры - 39.56 кв. м. Тип проекта, по которому построен дом — Монолитно-кирпичный, компания-застройщик — Sezar Group (Сезар Групп), ООО СЗ Триумф Капитал. Стоимость квартиры — 29 274 400 руб. Способы оплаты можно уточнить у продавца. Срок сдачи — 3 квартал 2027. Более подробная информация по телефону.
Инфоцентр новостроек
Инфоцентр новостроек
+7 (499) 705-91-41
Время работы 9:00 — 21:00
1-комн. квартира 36,41 м2 28 399 800
Этаж 30/35
Москва, ЖК «Сезар Сити»
Беговая
10 мин.
Строится
1-комн. квартира 37,02 м2 28 505 400
Этаж 38/51
Москва, ЖК «Сезар Сити»
Беговая
10 мин.
Строится
1-комн. квартира 37,46 м2 27 495 640
Этаж 27/35
Москва, ЖК «Сезар Сити»
Беговая
10 мин.
Строится
1-комн. квартира 37,68 м2 27 732 480
Этаж 29/35
Москва, ЖК «Сезар Сити»
Беговая
10 мин.
Строится
Посмотреть 249 квартир в ЖК «Сезар Сити»
2-комн. квартира 57,85 м2 38 817 350
Этаж 28/51
Москва, ЖК «Сезар Сити»
Беговая
10 мин.
Строится
2-комн. квартира 58,61 м2 40 030 630
Этаж 37/51
Москва, ЖК «Сезар Сити»
Беговая
10 мин.
Строится
2-комн. квартира 59,91 м2 38 641 950
Этаж 8/51
Москва, ЖК «Сезар Сити»
Беговая
10 мин.
Строится
2-комн. квартира 60,24 м2 39 457 200
Этаж 13/51
Москва, ЖК «Сезар Сити»
Беговая
10 мин.
Строится
Посмотреть 115 квартир в ЖК «Сезар Сити»
3-комн. квартира 71,62 м2 49 561 040
Этаж 29/51
Москва, ЖК «Сезар Сити»
Беговая
10 мин.
Строится
3-комн. квартира 72,05 м2 51 299 600
Этаж 39/51
Москва, ЖК «Сезар Сити»
Беговая
10 мин.
Строится
3-комн. квартира 72,15 м2 46 536 750
Этаж 5/9
Москва, ЖК «Сезар Сити»
Беговая
10 мин.
Строится
3-комн. квартира 72,81 м2 44 414 100
Этаж 2/14
Москва, ЖК «Сезар Сити»
Беговая
10 мин.
Строится
Посмотреть 114 квартир в ЖК «Сезар Сити»
4-комн. квартира 117,64 м2 111 758 000
Этаж 46/51
Москва, ЖК «Сезар Сити»
Беговая
10 мин.
Строится
4-комн. квартира 121,08 м2 81 123 600
Этаж 48/51
Москва, ЖК «Сезар Сити»
Беговая
10 мин.
Строится

Скидки и спецпредложения от застройщиков

ЖК «Сезар Сити» на карте

Выгодные предложения на новостройки

Отзывы о ЖК «Сезар Сити»

Самый полезный отзыв
ВС
17 июня 2024
Оценка:
Офис продаж рядом с Династией, там есть макет и можно в целом составить понять что будет. По адресу проехали, сейчас стройка только начинается и место выглядит конечно так себе. Но. Видно, что за район взялись серьезно и промку убирают. Поэтому в целом это хороший вариант, как кажется. Сезаровская Династия очень даже сейчас неплоха на фоне того, что строится
Ответить
Самый новый отзыв
В
02 апреля
Оценка:
Таки дождались возвращения классики в новостройки. Без ненужных цветных вставок и рисунков????
Ответить

Оставить отзыв

Добавьте отзыв, заполнив личные данные, или сначала войдите на сайт, тогда информация будет автоматически взята из личного профиля.
Оценка*