Рейтинг@Mail.ru
Переверните экран
Новостройки Квартиры Ипотека Новостройки Москвы Новостройки Подмосковья Новостройки Новой Москвы Готовые новостройки Новостройки на карте Акции от застройщиков Коммерческие помещения Продавцы и застройщики Панорамы новостроек Видеообзор новостроек Экспертиза новостроек Экология Москвы и Подмосковья Студии 1-комнатные 2-комнатные 3-комнатные Квартиры на карте Ипотечный калькулятор Семейная ипотека Военная ипотека Банки и программы Медиа Новости недвижимости Мнение эксперта Аналитика рынка Покупателю Экспертиза новостроек Эксперты и авторы О проекте Контакты Реклама на сайте Vk Youtube Telegram Дзен Машиноместа Апартаменты #траншевая ипотека #рассрочка IT-ипотека Квартиры со скидками до 40% Видео 360° новостроек Субсидированная застройщиком Rutube Поиск дома в Москве Программа реновации в Москве Новостройки премиум-класса Новостройки бизнес-класса Рассрочка Траншевая ипотека ГАЛС Дома и коттеджи Бизнес-центры Бизнес-центры в Москве Бизнес-центры рядом с метро Строящиеся бизнес-центры Бизнес-центры класса A Бизнес-центры класса B ЛСР
Данная квартира является лидером продаж среди однокомнатных квартир в ЖК «Подольском квартале» по данным Росреестра
1-комн. квартира, 44.48 м2, 1 этаж
Срок сдачи 4 квартал 2025 года
9 795 169 
220 215 2
обновлено 5 декабря

Описание 1-комн. квартиры

Срок ГК
4 квартал 2025 года
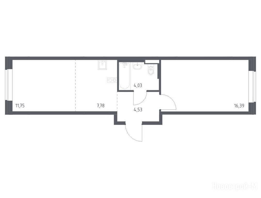
Общая площадь
44.48 м2
Жилая площадь
16.39 м2
Площадь кухни
19.53 м2
Высота потолков
2.78
Этаж
1 / 9
Отделка
чистовая
Тип санузла
совмещенный

Расположение 1-комн. квартиры

Локация
Метро
Станция МЦД
Дом
4
Адрес
ЖК «Подольские кварталы», корп.4

Способы покупки

Особенности

Продается однокомнатная квартира в новостройке ЖК «Подольские кварталы» по адресу Москва, ТиНАО, Новомосковский АО, Щербинка, ЖК «Подольские кварталы», корп.4. Общая площадь квартиры - 44.48 кв. м. Тип проекта, по которому построен дом — Монолитно-кирпичный, компания-застройщик — ООО СЗ «Рязанское 1», Группа «Самолет». Стоимость квартиры — 9 795 169 руб. Способы оплаты можно уточнить у продавца. Срок сдачи — 4 квартал 2025. Более подробная информация по телефону.
Посмотреть все спецпредложения
студия 21,82 м2 7 877 744
Этаж 1/9
НМ, ЖК «Подольские кварталы»
Силикатная
15 мин.
Строится
студия 22,94 м2 8 563 433
Этаж 5/9 балкон
НМ, ЖК «Подольские кварталы»
Силикатная
15 мин.
Строится
студия 25,91 м2 9 227 389
Этаж 5/9
НМ, ЖК «Подольские кварталы»
Силикатная
15 мин.
Строится
студия 26,56 м2 8 118 409
Этаж 3/9 балкон
НМ, ЖК «Подольские кварталы»
Силикатная
15 мин.
Строится
Посмотреть 20 квартир в ЖК «Подольском квартале»
Этаж 5/9
НМ, ЖК «Подольские кварталы»
Силикатная
15 мин.
Строится
1-комн. квартира 32,39 м2 8 754 272
Этаж 5/12
НМ, ЖК «Подольские кварталы»
Силикатная
15 мин.
Строится
1-комн. квартира 33,42 м2 9 756 334
Этаж 7/12 балкон
НМ, ЖК «Подольские кварталы»
Силикатная
15 мин.
Строится
1-комн. квартира 33,72 м2 8 839 125
Этаж 7/9 балкон
НМ, ЖК «Подольские кварталы»
Силикатная
15 мин.
Строится
Посмотреть 102 квартиры в ЖК «Подольском квартале»
2-комн. квартира 51,87 м2 12 365 497
Этаж 5/9 балкон
НМ, ЖК «Подольские кварталы»
Силикатная
15 мин.
Строится
2-комн. квартира 51,91 м2 12 988 401
Этаж 3/9
НМ, ЖК «Подольские кварталы»
Силикатная
15 мин.
Строится
2-комн. квартира 52,57 м2 13 490 566
Этаж 3/9 балкон
НМ, ЖК «Подольские кварталы»
Силикатная
15 мин.
Строится
2-комн. квартира 52,62 м2 13 797 227
Этаж 5/9 балкон
НМ, ЖК «Подольские кварталы»
Силикатная
15 мин.
Строится
Посмотреть 30 квартир в ЖК «Подольском квартале»
3-комн. квартира 76,32 м2 18 431 923
Этаж 3/12
НМ, ЖК «Подольские кварталы»
Силикатная
15 мин.
Строится
3-комн. квартира 78,51 м2 16 802 876
Этаж 1/9
НМ, ЖК «Подольские кварталы»
Силикатная
15 мин.
Строится
3-комн. квартира 78,53 м2 15 836 046
Этаж 7/9
НМ, ЖК «Подольские кварталы»
Силикатная
15 мин.
Строится
3-комн. квартира 78,55 м2 17 382 801
Этаж 5/9
НМ, ЖК «Подольские кварталы»
Силикатная
15 мин.
Строится
Посмотреть 23 квартиры в ЖК «Подольском квартале»

Скидки и спецпредложения от застройщиков

ЖК «Подольские кварталы» на карте

Выгодные предложения на новостройки

Отзывы о ЖК «Подольском квартале»

Самый полезный отзыв
ИХ
10 февраля 2024
Оценка:
Комплекс однозначно стоит внимания, понятное дело, без личного автомобиля в таком районе будет много неудобств, но в остальном все классно. Квартиры, которые сделают будут соответствовать современным стандартам, с высокими потолками и увеличенным остеклением ну и практически все будут с отличным видом на Бутовский лесопарк.
Ответить
Полезный отзыв?
Самый новый отзыв
А
03 декабря
Оценка:
дорога до метро действительно долгая, это минус. надеюсь, со временем транспортную развязку улучшат. но в противовес вокруг много зелени и исторические усадьбы рядом, Остафьево, Дубровицы. Люблю гулять в таких местах, думаю, с ребенком будет куда сходить в выходные. Еще понравилось, что дворы закрытые от машин, опять же кто с ребенком спокойнее
Ответить
Полезный отзыв?
Добавьте отзыв, заполнив личные данные, или сначала войдите на сайт, тогда информация будет автоматически взята из личного профиля.
Оценка*