Рейтинг@Mail.ru
Переверните экран
Новостройки Квартиры Ипотека Новостройки Москвы Новостройки Подмосковья Новостройки Новой Москвы Готовые новостройки Новостройки на карте Акции от застройщиков Коммерческие помещения Продавцы и застройщики Панорамы новостроек Видеообзор новостроек Экспертиза новостроек Экология Москвы и Подмосковья Студии 1-комнатные 2-комнатные 3-комнатные Квартиры на карте Ипотечный калькулятор Семейная ипотека Военная ипотека Банки и программы Медиа Новости недвижимости Мнение эксперта Аналитика рынка Покупателю Экспертиза новостроек Эксперты и авторы О проекте Контакты Реклама на сайте Vk Youtube Telegram Дзен Машиноместа Апартаменты #траншевая ипотека #рассрочка IT-ипотека Квартиры со скидками до 40% Видео 360° новостроек Субсидированная застройщиком Rutube Поиск дома в Москве Программа реновации в Москве Новостройки премиум-класса Новостройки бизнес-класса Рассрочка Траншевая ипотека ГАЛС Дома и коттеджи Бизнес-центры Бизнес-центры в Москве Бизнес-центры рядом с метро Строящиеся бизнес-центры Бизнес-центры класса A Бизнес-центры класса B ЛСР
Данная квартира является лидером продаж среди однокомнатных квартир в ЖК «Остров» по данным Росреестра
1-комн. квартира, 50.00 м2, 16 этаж
Срок сдачи 3 квартал 2028 года
40 750 000 
815 000 2
обновлено 5 декабря

Описание 1-комн. квартиры

Новостройка
Срок ГК
3 квартал 2028 года
Стадия строительства
котлован/фундамент
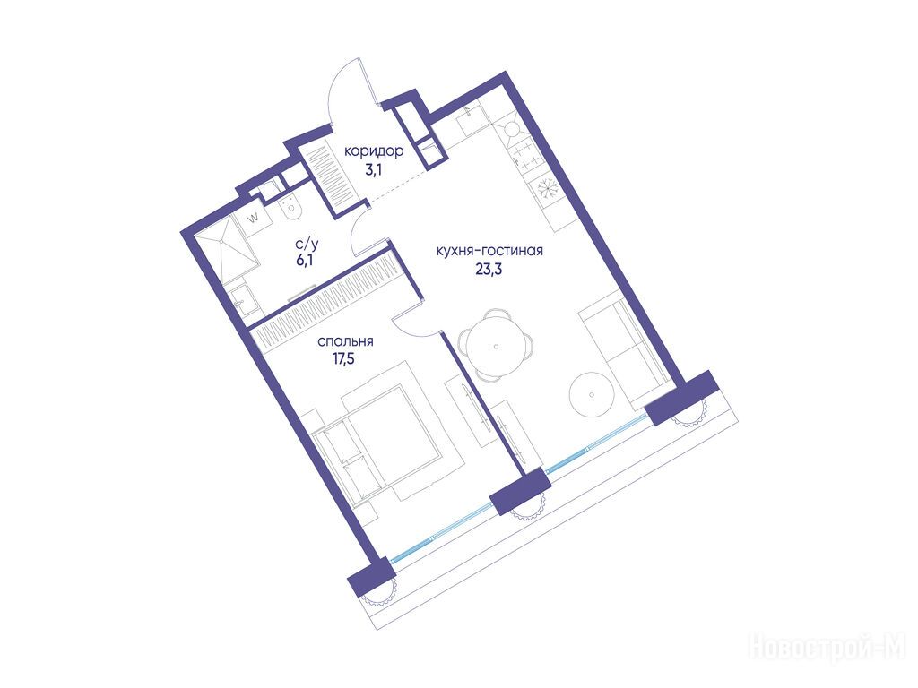
Общая площадь
50.00 м2
Жилая площадь
17.50 м2
Площадь кухни
23.30 м2
Высота потолков
3.12
Этаж
16 / 21
Отделка
нет

Расположение 1-комн. квартиры

Локация
Метро
Дом
7 (7 квартал)
Адрес
улица Нижние Мнёвники, ЖК «Остров», 7-й квартал, к7, секция 2

Способы покупки

Особенности

Продается однокомнатная квартира в новостройке ЖК «Остров» по адресу Москва, СЗАО, Хорошево-Мневники, улица Нижние Мнёвники, ЖК «Остров», 7-й квартал, к7. Общая площадь квартиры - 50 кв. м. Тип проекта, по которому построен дом — Монолитно-кирпичный, компания-застройщик — Донстрой, ООО СЗ ТПУ ТЕРЕХОВО 8. Стоимость квартиры — 40 750 000 руб. Способы оплаты можно уточнить у продавца. Срок сдачи — 3 квартал 2028. Более подробная информация по телефону.

Правовые документы

Донстрой
Донстрой
Сданных 31
|
Строящихся 9
Время работы 09:00 — 21:00
Выбирайте квартиру в ЖК «Остров» по ценам от застройщика

Похожие квартиры в ЖК «Остров»

19 этаж
из 21 3 квартал 2028
Москва, СЗАО
Терехово
8 мин.
7 (7 квартал)
Корпус
нет
Отделка
3.10 м
Потолки
ЖК «Остров»
42 350 000
ВТБ, Московский Кредитный Банк, СберБанк, Альфа-Банк, Совкомбанк, ДОМ.РФ
6.00%
Ставка
40.10%
Первый взнос
от 253 910 /мес.
Все варианты
Посмотреть все спецпредложения
3-комн. квартира 89,70 м2 60 816 600
Этаж 17/21
Москва, ЖК «Остров»
Терехово
8 мин.
Строится
студия 28,50 м2 26 134 500
Этаж 15/22
Москва, ЖК «Остров»
Терехово
8 мин.
Строится
студия 31,70 м2 27 864 300
Этаж 12/18
Москва, ЖК «Остров»
Терехово
8 мин.
Строится
студия 34,50 м2 27 979 500
Этаж 11/14
Москва, ЖК «Остров»
Терехово
8 мин.
Строится
студия 35,40 м2 31 152 000
Этаж 5/10
Москва, ЖК «Остров»
Терехово
8 мин.
Строится
Посмотреть 7 квартир в ЖК «Остров»
1-комн. квартира 42,20 м2 33 464 600
Этаж 17/18
Москва, ЖК «Остров»
Терехово
8 мин.
Строится
1-комн. квартира 42,60 м2 34 250 400
Этаж 18/22
Москва, ЖК «Остров»
Терехово
8 мин.
Строится
Этаж 3/21
Москва, ЖК «Остров»
Терехово
8 мин.
Сдан
1-комн. квартира 44,00 м2 44 528 000
Этаж 21/21
Москва, ЖК «Остров»
Терехово
8 мин.
Строится
Посмотреть 33 квартиры в ЖК «Остров»
2-комн. квартира 63,60 м2 52 088 400
Этаж 19/21
Москва, ЖК «Остров»
Терехово
8 мин.
Строится
2-комн. квартира 64,20 м2 58 999 800
Этаж 17/21
Москва, ЖК «Остров»
Терехово
8 мин.
Строится
2-комн. квартира 64,50 м2 59 856 000
Этаж 18/21
Москва, ЖК «Остров»
Терехово
8 мин.
Строится
2-комн. квартира 65,20 м2 46 031 200
Этаж 8/18
Москва, ЖК «Остров»
Терехово
8 мин.
Строится
Посмотреть 129 квартир в ЖК «Остров»
3-комн. квартира 67,20 м2 49 412 160
Этаж 21/22
Москва, ЖК «Остров»
Терехово
8 мин.
Строится
3-комн. квартира 86,40 м2 74 995 200
Этаж 20/21
Москва, ЖК «Остров»
Терехово
8 мин.
Строится
3-комн. квартира 86,50 м2 75 341 500
Этаж 21/21
Москва, ЖК «Остров»
Терехово
8 мин.
Строится
3-комн. квартира 87,60 м2 57 202 800
Этаж 3/22
Москва, ЖК «Остров»
Терехово
8 мин.
Строится
Посмотреть 103 квартиры в ЖК «Остров»
4-комн. квартира 100,50 м2 103 314 000
Этаж 21/21
Москва, ЖК «Остров»
Терехово
8 мин.
Строится
4-комн. квартира 105,80 м2 111 619 000
Этаж 11/17
Москва, ЖК «Остров»
Терехово
8 мин.
Строится
4-комн. квартира 113,10 м2 73 187 010
Этаж 3/18
Москва, ЖК «Остров»
Терехово
8 мин.
Строится
4-комн. квартира 113,40 м2 70 115 220
Этаж 7/22
Москва, ЖК «Остров»
Терехово
8 мин.
Строится
Посмотреть 108 квартир в ЖК «Остров»
5-комн. квартира 142,00 м2 107 210 000
Этаж 16/21
Москва, ЖК «Остров»
Терехово
8 мин.
Строится
5-комн. квартира 143,70 м2 123 150 900
Этаж 4/16
Москва, ЖК «Остров»
Терехово
8 мин.
Строится
5-комн. квартира 144,10 м2 130 842 800
Этаж 8/16
Москва, ЖК «Остров»
Терехово
8 мин.
Строится
5-комн. квартира 145,20 м2 96 049 800
Этаж 18/18
Москва, ЖК «Остров»
Терехово
8 мин.
Строится
Посмотреть 63 квартиры в ЖК «Остров»

Скидки и спецпредложения от застройщиков

ЖК «Остров» на карте

Выгодные предложения на новостройки

Отзывы о ЖК «Остров»

Самый полезный отзыв
S
20 января 2021
Оценка:
рендеры первого квартала понравились. фасады классические донстроевские - клинкер как будто, сдержанная цветовая гамма, строгие линии, угловое остекление. придомовая как обычно крутая. цены осталось дождаться.
Ответить
Полезный отзыв?
Самый новый отзыв
И
30 ноября
Оценка:
Социальная инфраструктура
Двор, окружение
Расположение
Из плюсов могу выделить высокие потолки от 3,20 метров, умный дом уже входит, видовые террасы. Контингент приличный. То есть тут покупаешь даже не столько недвижку, сколько вклад в будущее своих детей с приличным окружением. Человек красит место, как говорится.
Ответить
Полезный отзыв?
Добавьте отзыв, заполнив личные данные, или сначала войдите на сайт, тогда информация будет автоматически взята из личного профиля.
Оценка*