Рейтинг@Mail.ru
Переверните экран
Новостройки Квартиры Ипотека Новостройки Москвы Новостройки Подмосковья Новостройки Новой Москвы Готовые новостройки Новостройки на карте Акции от застройщиков Коммерческие помещения Продавцы и застройщики Панорамы новостроек Видеообзор новостроек Экспертиза новостроек Экология Москвы и Подмосковья Студии 1-комнатные 2-комнатные 3-комнатные Квартиры на карте Ипотечный калькулятор Семейная ипотека Военная ипотека Банки и программы Медиа Новости недвижимости Мнение эксперта Аналитика рынка Покупателю Экспертиза новостроек Эксперты и авторы О проекте Контакты Реклама на сайте Vk Youtube Telegram Дзен Машиноместа Апартаменты #траншевая ипотека #рассрочка IT-ипотека Квартиры со скидками до 40% Видео 360° новостроек Субсидированная застройщиком Rutube Поиск дома в Москве Программа реновации в Москве Новостройки премиум-класса Новостройки бизнес-класса Рассрочка Траншевая ипотека ГАЛС Дома и коттеджи Бизнес-центры Бизнес-центры в Москве Бизнес-центры рядом с метро Строящиеся бизнес-центры Бизнес-центры класса A Бизнес-центры класса B ЛСР
Данная квартира является лидером продаж среди однокомнатных квартир в ЖК«Новая Ивантеевка» по данным Росреестра
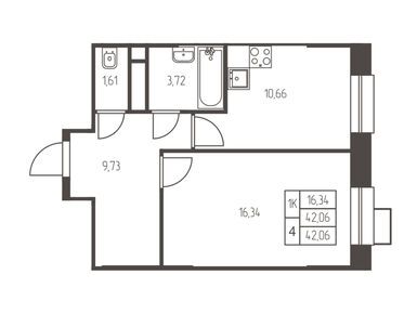
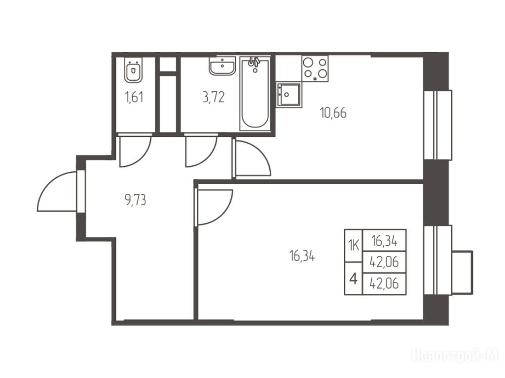
1-комн. квартира, 42.10 м2, 25 этаж
Срок сдачи 3 квартал 2026 года
6 792 690 
161 347 2
обновлено 18 декабря

Описание 1-комн. квартиры

Срок ГК
3 квартал 2026 года
Стадия строительства
Общая площадь
42.10 м2
Жилая площадь
16.34 м2
Площадь кухни
10.66 м2
Этаж
25 / 25
Грузовой лифт
есть

Расположение 1-комн. квартиры

Станция МЦК
Ж/Д-станция
Дом
1 очередь Секция 2
Адрес
ул. Заводская, 1 очередь, секция 2, секция 1

Особенности

Продается однокомнатная квартира в новостройке ЖК «Новая Ивантеевка» по адресу Московская область, Ивантеевка городской округ, Ивантеевка, ул. Заводская, 1 очередь, секция 2. Общая площадь квартиры - 42.1 кв. м. Тип проекта, по которому построен дом — Монолитно-кирпичный, компания-застройщик — Профи-Инвест, ООО СЗ Заводская-1. Стоимость квартиры — 6 792 690 руб. Способы оплаты можно уточнить у продавца. Срок сдачи — 3 квартал 2026. Более подробная информация по телефону.

Правовые документы

Профи-Инвест
Профи-Инвест
Сданных 8
|
Строящихся 8
Выбирайте квартиру в ЖК «Новая Ивантеевка» по ценам от застройщика

Похожие квартиры в ЖК«Новая Ивантеевка»

2 этаж
из 25 3 квартал 2026
Московская область, Ивантеевка городской округ
Ростокино
33 мин.
1 очередь Секция 2
Корпус
нет данных
Отделка
2.74 м
Потолки
ЖК «Новая Ивантеевка»
6 273 249
3 этаж
из 25 3 квартал 2026
Московская область, Ивантеевка городской округ
Ростокино
33 мин.
1 очередь Секция 2
Корпус
нет данных
Отделка
2.74 м
Потолки
ЖК «Новая Ивантеевка»
6 273 249
4 этаж
из 25 3 квартал 2026
Московская область, Ивантеевка городской округ
Ростокино
33 мин.
1 очередь Секция 2
Корпус
нет данных
Отделка
2.74 м
Потолки
ЖК «Новая Ивантеевка»
6 273 249
5 этаж
из 25 3 квартал 2026
Московская область, Ивантеевка городской округ
Ростокино
33 мин.
1 очередь Секция 2
Корпус
нет данных
Отделка
2.74 м
Потолки
ЖК «Новая Ивантеевка»
6 273 249
6 этаж
из 25 3 квартал 2026
Московская область, Ивантеевка городской округ
Ростокино
33 мин.
1 очередь Секция 2
Корпус
нет данных
Отделка
2.74 м
Потолки
ЖК «Новая Ивантеевка»
6 313 206
8 этаж
из 25 3 квартал 2026
Московская область, Ивантеевка городской округ
Ростокино
33 мин.
1 очередь Секция 2
Корпус
нет данных
Отделка
2.74 м
Потолки
ЖК «Новая Ивантеевка»
6 393 120
9 этаж
из 25 3 квартал 2026
Московская область, Ивантеевка городской округ
Ростокино
33 мин.
1 очередь Секция 2
Корпус
нет данных
Отделка
2.74 м
Потолки
ЖК «Новая Ивантеевка»
6 433 077
10 этаж
из 25 3 квартал 2026
Московская область, Ивантеевка городской округ
Ростокино
33 мин.
1 очередь Секция 2
Корпус
нет данных
Отделка
2.74 м
Потолки
ЖК «Новая Ивантеевка»
6 473 034
11 этаж
из 25 3 квартал 2026
Московская область, Ивантеевка городской округ
Ростокино
33 мин.
1 очередь Секция 2
Корпус
нет данных
Отделка
2.74 м
Потолки
ЖК «Новая Ивантеевка»
6 512 991
12 этаж
из 25 3 квартал 2026
Московская область, Ивантеевка городской округ
Ростокино
33 мин.
1 очередь Секция 2
Корпус
нет данных
Отделка
2.74 м
Потолки
ЖК «Новая Ивантеевка»
6 512 991
13 этаж
из 25 3 квартал 2026
Московская область, Ивантеевка городской округ
Ростокино
33 мин.
1 очередь Секция 2
Корпус
нет данных
Отделка
2.74 м
Потолки
ЖК «Новая Ивантеевка»
6 552 948
14 этаж
из 25 3 квартал 2026
Московская область, Ивантеевка городской округ
Ростокино
33 мин.
1 очередь Секция 2
Корпус
нет данных
Отделка
2.74 м
Потолки
ЖК «Новая Ивантеевка»
6 552 948
15 этаж
из 25 3 квартал 2026
Московская область, Ивантеевка городской округ
Ростокино
33 мин.
1 очередь Секция 2
Корпус
нет данных
Отделка
2.74 м
Потолки
ЖК «Новая Ивантеевка»
6 592 905
16 этаж
из 25 3 квартал 2026
Московская область, Ивантеевка городской округ
Ростокино
33 мин.
1 очередь Секция 2
Корпус
нет данных
Отделка
2.74 м
Потолки
ЖК «Новая Ивантеевка»
6 632 862
17 этаж
из 25 3 квартал 2026
Московская область, Ивантеевка городской округ
Ростокино
33 мин.
1 очередь Секция 2
Корпус
нет данных
Отделка
2.74 м
Потолки
ЖК «Новая Ивантеевка»
6 632 862
18 этаж
из 25 3 квартал 2026
Московская область, Ивантеевка городской округ
Ростокино
33 мин.
1 очередь Секция 2
Корпус
нет данных
Отделка
2.74 м
Потолки
ЖК «Новая Ивантеевка»
6 672 819
19 этаж
из 25 3 квартал 2026
Московская область, Ивантеевка городской округ
Ростокино
33 мин.
1 очередь Секция 2
Корпус
нет данных
Отделка
2.74 м
Потолки
ЖК «Новая Ивантеевка»
6 672 819
20 этаж
из 25 3 квартал 2026
Московская область, Ивантеевка городской округ
Ростокино
33 мин.
1 очередь Секция 2
Корпус
нет данных
Отделка
2.74 м
Потолки
ЖК «Новая Ивантеевка»
6 712 776
22 этаж
из 25 3 квартал 2026
Московская область, Ивантеевка городской округ
Ростокино
33 мин.
1 очередь Секция 2
Корпус
нет данных
Отделка
2.74 м
Потолки
ЖК «Новая Ивантеевка»
6 752 733
23 этаж
из 25 3 квартал 2026
Московская область, Ивантеевка городской округ
Ростокино
33 мин.
1 очередь Секция 2
Корпус
нет данных
Отделка
2.74 м
Потолки
ЖК «Новая Ивантеевка»
6 752 733
21 этаж
из 25 3 квартал 2026
Московская область, Ивантеевка городской округ
Ростокино
33 мин.
1 очередь Секция 2
Корпус
нет данных
Отделка
2.74 м
Потолки
ЖК «Новая Ивантеевка»
6 752 733
24 этаж
из 25 3 квартал 2026
Московская область, Ивантеевка городской округ
Ростокино
33 мин.
1 очередь Секция 2
Корпус
нет данных
Отделка
2.74 м
Потолки
ЖК «Новая Ивантеевка»
6 792 690
Посмотреть все спецпредложения
студия 28,20 м2 4 761 970
Этаж 11/12
МО, ЖК «Новая Ивантеевка»
Ростокино
33 мин.
Строится
студия 28,60 м2 4 358 396
Этаж 8/12
МО, ЖК «Новая Ивантеевка»
Ростокино
33 мин.
Строится
студия 29,30 м2 4 871 148
Этаж 9/12
МО, ЖК «Новая Ивантеевка»
Ростокино
33 мин.
Строится
студия 29,50 м2 4 546 206
Этаж 8/25
МО, ЖК «Новая Ивантеевка»
Ростокино
33 мин.
Строится
Посмотреть 255 квартир в ЖК«Новая Ивантеевка»
1-комн. квартира 34,70 м2 5 133 319
Этаж 2/20
МО, ЖК «Новая Ивантеевка»
Ростокино
33 мин.
Строится
1-комн. квартира 35,00 м2 5 935 056
Этаж 10/12
МО, ЖК «Новая Ивантеевка»
Ростокино
33 мин.
Строится
1-комн. квартира 35,50 м2 5 950 765
Этаж 8/12
МО, ЖК «Новая Ивантеевка»
Ростокино
33 мин.
Строится
1-комн. квартира 35,70 м2 5 753 927
Этаж 2/20
МО, ЖК «Новая Ивантеевка»
Ростокино
33 мин.
Строится
Посмотреть 402 квартиры в ЖК«Новая Ивантеевка»
2-комн. квартира 47,10 м2 7 945 610
Этаж 12/20
МО, ЖК «Новая Ивантеевка»
Ростокино
33 мин.
Строится
2-комн. квартира 55,40 м2 8 986 349
Этаж 8/20
МО, ЖК «Новая Ивантеевка»
Ростокино
33 мин.
Строится
2-комн. квартира 56,30 м2 8 781 342
Этаж 2/20
МО, ЖК «Новая Ивантеевка»
Ростокино
33 мин.
Строится
2-комн. квартира 58,00 м2 8 610 030
Этаж 2/25
МО, ЖК «Новая Ивантеевка»
Ростокино
33 мин.
Строится
Посмотреть 236 квартир в ЖК«Новая Ивантеевка»
3-комн. квартира 70,90 м2 10 212 480
Этаж 8/25
МО, ЖК «Новая Ивантеевка»
Ростокино
33 мин.
Строится
3-комн. квартира 75,60 м2 11 634 840
Этаж 18/25
МО, ЖК «Новая Ивантеевка»
Ростокино
33 мин.
Строится
Посмотреть 40 квартир в ЖК«Новая Ивантеевка»

Скидки и спецпредложения от застройщиков

ЖК «Новая Ивантеевка» на карте

Выгодные предложения на новостройки

Отзывы о ЖК«Новая Ивантеевка»

Самый полезный отзыв
ОК
20 ноября 2024
Оценка:
Транспортная доступность
Социальная инфраструктура
Планировки
Двор, окружение
Расположение
Проект комфорт-класса в 25 км от МКАД, рядом парки и заповедники. Хорошая транспортная развязка - до станции «Зеленый Бор» можно пешком дойти. Рядом есть съезд к Ярославскому шоссе. Всего в комплексе будет 13 домов, к ним анонсировали три детских сада, две школы и физкультурный комплекс с бассейном.
Ответить
Полезный отзыв?
Самый новый отзыв
АЛ
24 октября
Оценка:
Способы покупки
При покупке можно использовать материнский капитал, семейную ипотеку и как вариант - трейд-ин. Это очень удобно, так как с обычной ставкой сейчас мало кто в состоянии купить квартиру
Ответить
Полезный отзыв?
Добавьте отзыв, заполнив личные данные, или сначала войдите на сайт, тогда информация будет автоматически взята из личного профиля.
Оценка*