Рейтинг@Mail.ru
Переверните экран
Новостройки Квартиры Ипотека Новостройки Москвы Новостройки Подмосковья Новостройки Новой Москвы Готовые новостройки Новостройки на карте Акции от застройщиков Коммерческие помещения Продавцы и застройщики Панорамы новостроек Видеообзор новостроек Экспертиза новостроек Экология Москвы и Подмосковья Студии 1-комнатные 2-комнатные 3-комнатные Квартиры на карте Ипотечный калькулятор Семейная ипотека Военная ипотека Банки и программы Медиа Новости недвижимости Мнение эксперта Аналитика рынка Покупателю Экспертиза новостроек Эксперты и авторы О проекте Контакты Реклама на сайте Vk Youtube Telegram Дзен Машиноместа Апартаменты #траншевая ипотека #рассрочка IT-ипотека Квартиры со скидками до 40% Видео 360° новостроек Субсидированная застройщиком Rutube Поиск дома в Москве Программа реновации в Москве Новостройки премиум-класса Новостройки бизнес-класса Рассрочка Траншевая ипотека ГАЛС Дома и коттеджи Бизнес-центры Бизнес-центры в Москве Бизнес-центры рядом с метро Строящиеся бизнес-центры Бизнес-центры класса A Бизнес-центры класса B ЛСР
1-комн. квартира, 35.00 м2, 12 этаж
Сдан
8 560 000 
244 571 2
обновлено 5 декабря

Описание 1-комн. квартиры

Новостройка
Застройщик
Срок ГК
Дом сдан
Стадия строительства
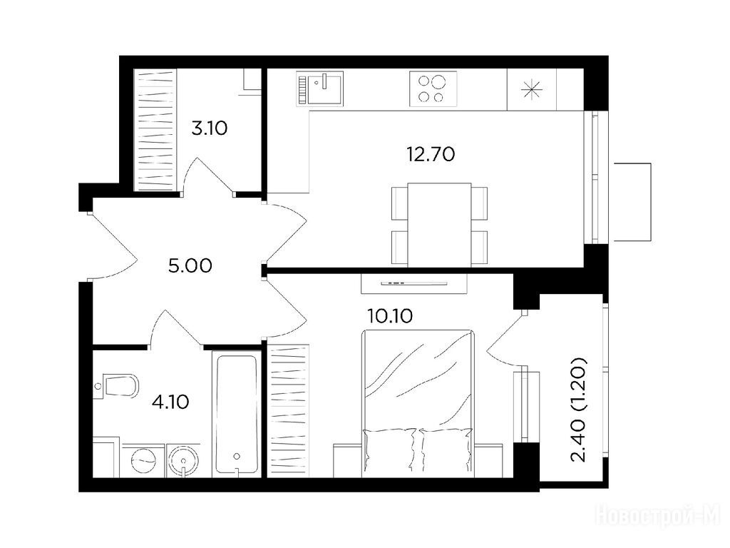
Общая площадь
35.00 м2
Жилая площадь
10.20 м2
Площадь кухни
12.70 м2
Высота потолков
2.82
Этаж
12 / 17
Отделка
нет
Тип санузла
раздельный

Расположение 1-комн. квартиры

Метро
Станция МЦД
Дом
1
Адрес
посёлок Развилка, 207Ю, секция 2

Способы покупки

Особенности

Продается однокомнатная квартира в новостройке ЖК «Миловидное» по адресу Московская область, Ленинский городской округ, Развилка пос., посёлок Развилка, 207Ю. Общая площадь квартиры - 35 кв. м. Тип проекта, по которому построен дом — Монолит, компания-застройщик — Ingrad (Инград). Стоимость квартиры — 8 560 000 руб. Способы оплаты можно уточнить у продавца. Более подробная информация по телефону.
Инфоцентр новостроек
Инфоцентр новостроек
+7 (499) 705-91-41
Время работы 9:00 — 21:00
Посмотреть все спецпредложения
студия 22,10 м2 6 180 000
Этаж 17/17
МО, ЖК «Миловидное»
Домодедовская
20 мин.
Сдан
студия 26,20 м2 6 820 000
Этаж 16/17
МО, ЖК «Миловидное»
Домодедовская
20 мин.
Сдан
студия 28,30 м2 6 900 000
Этаж 9/17
МО, ЖК «Миловидное»
Домодедовская
20 мин.
Сдан
1-комн. квартира 33,60 м2 8 810 000
Этаж 16/17
МО, ЖК «Миловидное»
Домодедовская
20 мин.
Сдан
1-комн. квартира 35,20 м2 8 660 000
Этаж 11/17
МО, ЖК «Миловидное»
Домодедовская
20 мин.
Сдан
1-комн. квартира 35,30 м2 8 530 000
Этаж 10/17 балкон
МО, ЖК «Миловидное»
Домодедовская
20 мин.
Сдан
1-комн. квартира 40,60 м2 9 650 000
Этаж 13/17
МО, ЖК «Миловидное»
Домодедовская
20 мин.
Сдан
Посмотреть 9 квартир в ЖК «Миловидное»

Скидки и спецпредложения от застройщиков

ЖК «Миловидное» на карте

Выгодные предложения на новостройки

Отзывы о ЖК «Миловидное»

Будьте первым, кто оставит отзыв
о ЖК «Миловидное»
Добавьте отзыв, заполнив личные данные, или сначала войдите на сайт, тогда информация будет автоматически взята из личного профиля.
Оценка*